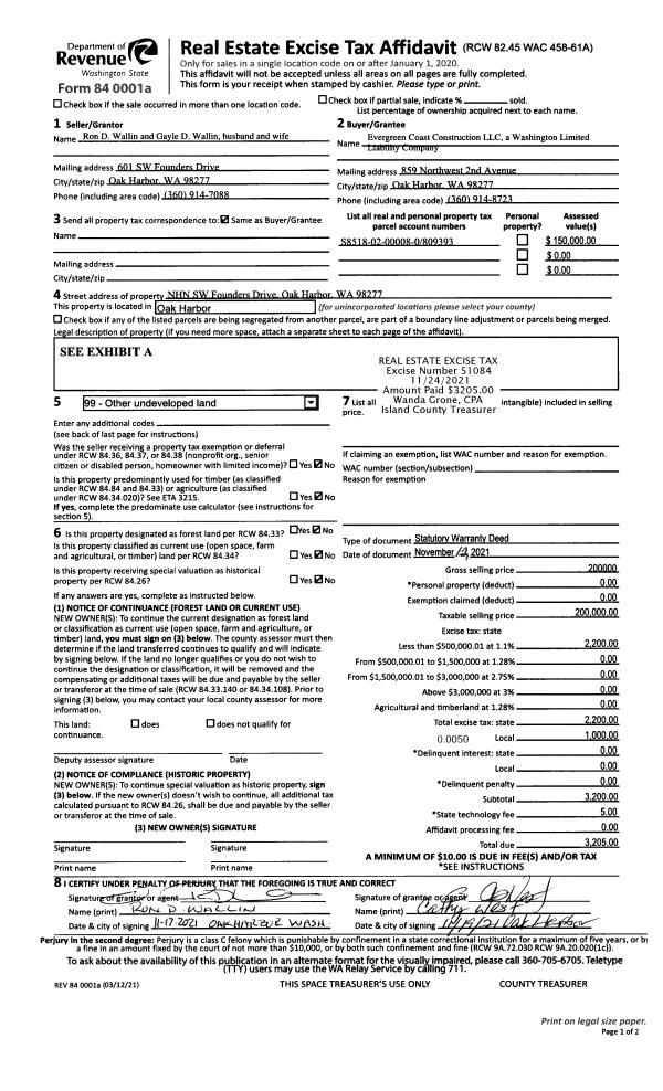
Property
Account |
| Property ID: | 277444 | Abbreviated Legal Description: | HHGY 5 LOT 29 BLK 1 |
| Geographic ID: | S7165-05-01029-0 | Agent Code: | |
| Type: | Real | | |
| Tax Area: | 770 - APPRAISER-S Whid Schl Dist, Special District, improved & less than 1 acre | Land Use Code | 11 |
| Open Space: | N | DFL | N |
| Historic Property: | N | Remodel Property: | N |
| Multi-Family Redevelopment: | N | | |
| Township: | | Section: | |
| Range: | |
Location |
| Address: | 4876 BREEZEFAIR RD FREELAND, WA 98249 | Mapsco: | |
| Neighborhood: | Cycle 3 | Map ID: | 290 |
| Neighborhood CD: | 3 |
Owner |
| Name: | CILLEY, MELISSA NICOLE | Owner ID: | 299186 |
| Mailing Address: | HERBERT ARTHUR ACKEN 4876 BREEZEFAIR RD FREELAND, WA 98249 | % Ownership: | 100.0000000000% |
| | | Exemptions: | |
Taxes and Assessment Details
Values
| (+) Improvement Homesite Value: | + | $0 | |
| (+) Improvement Non-Homesite Value: | + | $375,421 | |
| (+) Land Homesite Value: | + | $0 | |
| (+) Land Non-Homesite Value: | + | $260,000 | |
| (+) Curr Use (HS): | + | $0 | $0 |
| (+) Curr Use (NHS): | + | $0 | $0 |
| | | -------------------------- | |
| (=) Market Value: | = | $635,421 | |
| (–) Productivity Loss: | – | $0 | |
| | | -------------------------- | |
| (=) Subtotal: | = | $635,421 | |
| (+) Senior Appraised Value: | + | $0 | |
| (+) Non-Senior Appraised Value: | + | $635,421 | |
| | | -------------------------- | |
| (=) Total Appraised Value: | = | $635,421 | |
| (–) Senior Exemption Loss: | – | $0 | |
| (–) Exemption Loss: | – | $0 | |
| | | -------------------------- | |
| (=) Taxable Value: | = | $635,421 | |
Taxing Jurisdiction
| Owner: | CILLEY, MELISSA NICOLE | | |
| % Ownership: | 100.0000000000% | | |
| Total Value: | $635,421 | | |
| Tax Area: | 770 - APPRAISER-S Whid Schl Dist, Special District, improved & less than 1 acre |
| CF | Conservation Futures | 0.0316035091 | $635,421 | $635,421 | $20.08 | | |
| FIRE3 | Fire & Rescue Dist #3 S Whidbey GEN | 1.2004855531 | $635,421 | $635,421 | $762.81 | | |
| HOBOND | Hospital BOND | 0.1910887512 | $635,421 | $635,421 | $121.42 | | |
| HOGEN | Hospital GEN | 0.3902502903 | $635,421 | $635,421 | $247.97 | | |
| CE | County Current Expense | 0.3708482477 | $635,421 | $635,421 | $235.64 | | |
| CR | County Roads | 0.4584763726 | $635,421 | $635,421 | $291.33 | | |
| ISLANDEMS | Hospital GEN (EMS) | 0.5000000000 | $635,421 | $635,421 | $317.71 | | |
| LIB | Library Sno-Isle GEN | 0.3153421757 | $635,421 | $635,421 | $200.38 | | |
| PORTWHID | Port of S Whidbey GEN | 0.1094540357 | $635,421 | $635,421 | $69.55 | | |
| SCH206BOND | School 206 BOND | 0.3161759235 | $635,421 | $635,421 | $200.90 | | |
| SCH206MO | School 206 Enrichment | 0.4547169547 | $635,421 | $635,421 | $288.94 | | |
| ST | State School | 1.3035497053 | $635,421 | $635,421 | $828.30 | | |
| ST2 | State School Part 2 | 0.8169543533 | $635,421 | $635,421 | $519.11 | | |
| SWHIDPRBD | P & R S Whidbey BOND | 0.0152817568 | $635,421 | $635,421 | $9.71 | | |
| SWHIDPRBD2 | P & R S Whidbey BOND2 | 0.0138911264 | $635,421 | $635,421 | $8.83 | | |
| SWHIDPRMT | P & R S Whidbey GEN | 0.2053334452 | $635,421 | $635,421 | $130.47 | | |
| | Total Tax Rate: | 6.6934522006 | | | | | |
| | | | | Taxes w/Current Exemptions: | $4,253.15 | | |
| | | | | Taxes w/o Exemptions: | $4,253.15 | | |
Improvement / Building
| Improvement #1: | RESIDENTIAL | State Code: | Y | 1613.0 sqft | Value: | $375,421 |
| Bathrooms: | 2.5 | Bedrooms: | 2 | | Ceiling: | DRYWALL PAINTED | Exterior Wall/Cover: | CEMENT FIBER | | Floor Covering: | HARDWOOD/CARP 60-40 | Floor Structure: | WOOD W/SUBFLOOR | | Foundation: | CONCRETE | Heating: | FHA GAS | | Interior Finish: | DRYWALL PAINT | Plumbing Fixture Cnt: | 14 | | Roof Slope: | 8" IN 12" | Roof Structure/Cover: | CJ ASPHALT |
|
| | Type | Description | Class CD | Sub Class CD | Year Built | Area |
| | BAS | BASE/MAIN FLOOR | 4 | 0 | 2007 | 840.0 |
| | BIG | BUILT IN GARAGE | 4 | 0 | 2007 | 520.0 |
| | UPS | UPPER STORY | 4 | 0 | 2007 | 773.0 |
| | OWP | OPEN WOOD PORCH W/STEPS | 4 | 0 | 2007 | 181.5 |
| | OWP | OPEN WOOD PORCH W/STEPS | 4 | 0 | 2007 | 31.3 |
| | OWC | OPEN WOOD PORCH W/STEPS/ROOF/C | 4 | 0 | 2007 | 84.0 |
Sketch
Property Image
Land
| 1 | 14 | SQ (08001-12000) | 0.2100 | 9147.60 | 0.00 | 0.00 | 1.00 | $260,000 | $0 |
Roll Value History
| 2026 | N/A | N/A | N/A | N/A | N/A |
| 2025 | $375,421 | $260,000 | $0 | $635,421 | $635,421 |
| 2024 | $379,724 | $260,000 | $0 | $639,724 | $639,724 |
| 2023 | $384,027 | $230,000 | $0 | $614,027 | $614,027 |
| 2022 | $350,660 | $200,000 | $0 | $550,660 | $550,660 |
| 2021 | $266,238 | $115,000 | $0 | $381,238 | $381,238 |
| 2020 | $258,600 | $100,000 | $0 | $358,600 | $358,600 |
| 2019 | $183,407 | $170,000 | $0 | $353,407 | $353,407 |
| 2018 | $183,928 | $140,000 | $0 | $323,928 | $323,928 |
| 2017 | $175,721 | $120,000 | $0 | $295,721 | $295,721 |
| 2016 | $177,695 | $75,000 | $0 | $252,695 | $252,695 |
| 2015 | $179,670 | $65,000 | $0 | $244,670 | $244,670 |
| 2014 | $181,644 | $55,000 | $0 | $236,644 | $236,644 |
| 2013 | $191,338 | $45,000 | $0 | $236,338 | $236,338 |
| 2012 | $193,392 | $45,900 | $0 | $239,292 | $239,292 |
| 2011 | $195,452 | $54,000 | $0 | $249,452 | $249,452 |
| 2010 | $200,093 | $65,000 | $0 | $265,093 | $265,093 |
| 2009 | $220,565 | $82,000 | $0 | $302,565 | $302,565 |
| 2008 | $220,733 | $100,000 | $0 | $320,733 | $320,733 |
| 2007 | $223,072 | $100,000 | $0 | $323,072 | $323,072 |
Deed and Sales History
| 1 | 04/20/2021 | WD | Warranty Deed | WILSON, LANA | CILLEY, MELISSA NICOLE | | | $502,000.00 | 48085 | 4518189 |
| 2 | 09/12/2011 | WD | Warranty Deed | NEIS 95% UNDIV INT, PAUL & STEPHANIE | WILSON, LANA | | | $175,000.00 | 5599 | 4301538 |
| 3 | 03/24/2010 | WD | Warranty Deed | MADSEN, GERALD ALLEN | NEIS 95% UNDIV INT, PAUL & STE | | | $0.00 | 840 | 4272000 |
| 4 | 07/31/2007 | QCD | Quit Claim Deed | MADSEN, GERALD ALLEN | MADSEN, GERALD ALLEN | | | $0.00 | 72739 | 4209347 |
| 5 | 02/09/2006 | WD | Warranty Deed | ISLAND CONSTRUCTION INC, | MADSEN, GERALD ALLEN | | | $60,000.00 | 60550 | 4161975 |
| 6 | 02/06/2006 | ESTSEPPROP | Establish Separate Property | MADSEN, GERALD ALLEN | MADSEN, GERALD ALLEN | | | $0.00 | 60551 | 4161976 |
| 7 | 04/27/2005 | WD | Warranty Deed | TEUTSCH, DELORES S | ISLAND CONSTRUCTION INC, | | | $40,000.00 | 51856 | 4132812 |
| 8 | 03/01/1991 | WD | Warranty Deed | STONE, LAURA | TEUTSCH, DELORES S | | | $0.00 | 11005 | 91004296 |
| 9 | 01/01/1900 | OTHER | Other - Misc. Documents | Unknown | STONE, LAURA | | | $0.00 | 0 | 0 |
Payout Agreement
| No payout information available.. |