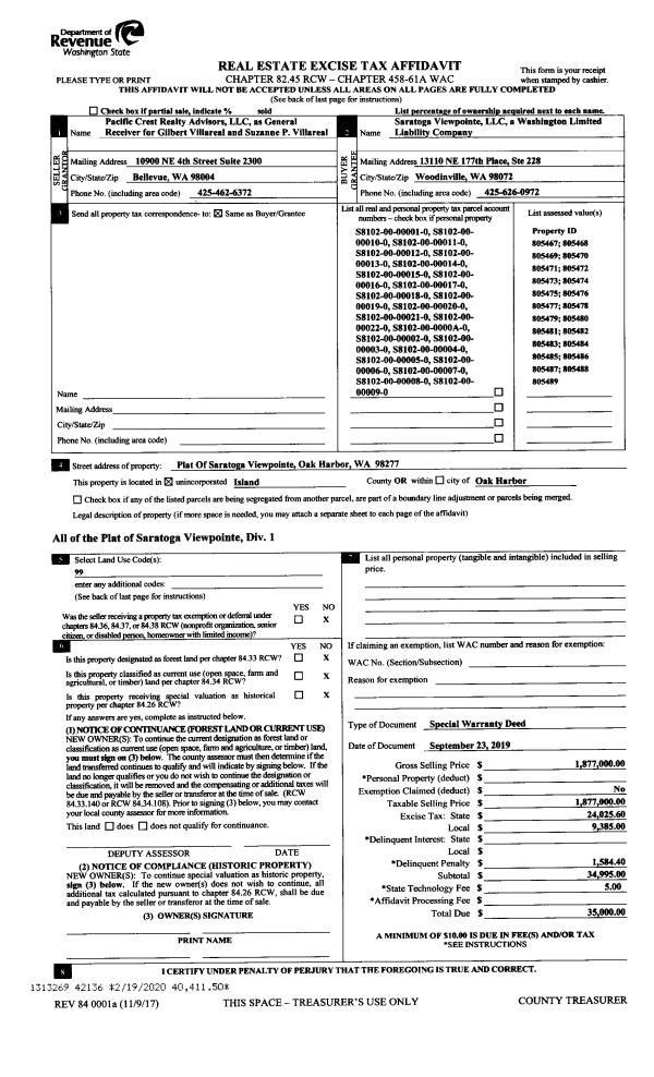
Property
Account |
| Property ID: | 277729 | Abbreviated Legal Description: | HHGH 6 SL 2 TR B .34AC: BG SECR LONG DR N S110' S89*E160' TO ELN TR B NWLY ALG ELN 120' N89*W130' TPB FINAL SITE PLAN 27-92 AF#93013767 |
| Geographic ID: | S7165-06-0000B-2 | Agent Code: | |
| Type: | Real | | |
| Tax Area: | 770 - APPRAISER-S Whid Schl Dist, Special District, improved & less than 1 acre | Land Use Code | 11 |
| Open Space: | N | DFL | N |
| Historic Property: | N | Remodel Property: | N |
| Multi-Family Redevelopment: | N | | |
| Township: | | Section: | |
| Range: | |
Location |
| Address: | | Mapsco: | |
| Neighborhood: | 32cRR-honeymoon b | Map ID: | 287 |
| Neighborhood CD: | 32cRRhonba |
Owner |
| Name: | HOLMES HARBOR SEWER DISTRICT | Owner ID: | 261552 |
| Mailing Address: | P.O. BOX 1330 FREELAND, WA 98249 | % Ownership: | 100.0000000000% |
| | | Exemptions: | EX |
Taxes and Assessment Details
Values
| (+) Improvement Homesite Value: | + | $0 | |
| (+) Improvement Non-Homesite Value: | + | $21,450 | |
| (+) Land Homesite Value: | + | $0 | |
| (+) Land Non-Homesite Value: | + | $80,000 | |
| (+) Curr Use (HS): | + | $0 | $0 |
| (+) Curr Use (NHS): | + | $0 | $0 |
| | | -------------------------- | |
| (=) Market Value: | = | $101,450 | |
| (–) Productivity Loss: | – | $0 | |
| | | -------------------------- | |
| (=) Subtotal: | = | $101,450 | |
| (+) Senior Appraised Value: | + | $0 | |
| (+) Non-Senior Appraised Value: | + | $101,450 | |
| | | -------------------------- | |
| (=) Total Appraised Value: | = | $101,450 | |
| (–) Senior Exemption Loss: | – | $0 | |
| (–) Exemption Loss: | – | $101,450 | |
| | | -------------------------- | |
| (=) Taxable Value: | = | $0 | |
Taxing Jurisdiction
| Owner: | HOLMES HARBOR SEWER DISTRICT | | |
| % Ownership: | 100.0000000000% | | |
| Total Value: | $101,450 | | |
| Tax Area: | 770 - APPRAISER-S Whid Schl Dist, Special District, improved & less than 1 acre |
| CF | Conservation Futures | 0.0316035091 | $101,450 | $0 | $0.00 | | |
| FIRE3 | Fire & Rescue Dist #3 S Whidbey GEN | 1.2004855531 | $101,450 | $0 | $0.00 | | |
| HOBOND | Hospital BOND | 0.1910887512 | $101,450 | $0 | $0.00 | | |
| HOGEN | Hospital GEN | 0.3902502903 | $101,450 | $0 | $0.00 | | |
| CE | County Current Expense | 0.3708482477 | $101,450 | $0 | $0.00 | | |
| CR | County Roads | 0.4584763726 | $101,450 | $0 | $0.00 | | |
| ISLANDEMS | Hospital GEN (EMS) | 0.5000000000 | $101,450 | $0 | $0.00 | | |
| LIB | Library Sno-Isle GEN | 0.3153421757 | $101,450 | $0 | $0.00 | | |
| PORTWHID | Port of S Whidbey GEN | 0.1094540357 | $101,450 | $0 | $0.00 | | |
| SCH206BOND | School 206 BOND | 0.3161759235 | $101,450 | $0 | $0.00 | | |
| SCH206MO | School 206 Enrichment | 0.4547169547 | $101,450 | $0 | $0.00 | | |
| ST | State School | 1.3035497053 | $101,450 | $0 | $0.00 | | |
| ST2 | State School Part 2 | 0.8169543533 | $101,450 | $0 | $0.00 | | |
| SWHIDPRBD | P & R S Whidbey BOND | 0.0152817568 | $101,450 | $0 | $0.00 | | |
| SWHIDPRBD2 | P & R S Whidbey BOND2 | 0.0138911264 | $101,450 | $0 | $0.00 | | |
| SWHIDPRMT | P & R S Whidbey GEN | 0.2053334452 | $101,450 | $0 | $0.00 | | |
| | Total Tax Rate: | 6.6934522006 | | | | | |
| | | | | Taxes w/Current Exemptions: | $0.00 | | |
| | | | | Taxes w/o Exemptions: | $679.06 | | |
Improvement / Building
| Improvement #1: | RESIDENTIAL | State Code: | Y | 0.0 sqft | Value: | $21,450 |
Sketch
| No sketches available for this property. |
Property Image
Land
| 1 | 15 | SQ (12001-21780) | 0.3200 | 13939.20 | 0.00 | 0.00 | 1.00 | $80,000 | $0 |
Roll Value History
| 2026 | N/A | N/A | N/A | N/A | N/A |
| 2025 | $21,450 | $80,000 | $0 | $101,450 | $0 |
| 2024 | $21,450 | $80,000 | $0 | $101,450 | $0 |
| 2023 | $21,450 | $70,000 | $0 | $91,450 | $0 |
| 2022 | $21,450 | $35,000 | $0 | $56,450 | $0 |
| 2021 | $21,450 | $35,000 | $0 | $56,450 | $0 |
| 2020 | $21,450 | $35,000 | $0 | $56,450 | $0 |
| 2019 | $21,450 | $35,000 | $0 | $56,450 | $0 |
| 2018 | $21,450 | $35,000 | $0 | $56,450 | $0 |
| 2017 | $21,450 | $30,000 | $0 | $51,450 | $0 |
| 2016 | $21,450 | $30,000 | $0 | $51,450 | $0 |
| 2015 | $21,450 | $2,132 | $0 | $23,582 | $0 |
| 2014 | $21,450 | $2,132 | $0 | $23,582 | $0 |
| 2013 | $21,450 | $2,132 | $0 | $23,582 | $0 |
| 2012 | $21,450 | $2,132 | $0 | $23,582 | $0 |
| 2011 | $21,450 | $2,132 | $0 | $23,582 | $23,582 |
| 2010 | $65,000 | $6,462 | $0 | $71,462 | $71,462 |
| 2009 | $65,000 | $7,101 | $0 | $72,101 | $72,101 |
| 2008 | $65,000 | $7,101 | $0 | $72,101 | $72,101 |
| 2007 | $65,000 | $7,101 | $0 | $72,101 | $72,101 |
Deed and Sales History
| 1 | 04/18/2013 | WD | Warranty Deed | ONYXX CAPITAL 1 LLC | HOLMES HARBOR SEWER DISTRICT | | | $0.00 | 11055 | 4338062 |
| 2 | 06/28/2011 | WD | Warranty Deed | HOLMES HARBOR COMMUNITY | ONYXX CAPITAL 1 LLC | | | $0.00 | 4849 | 4297418 |
| 3 | 07/02/2003 | WD | Warranty Deed | HOLMES, HARBOR A | HOLMES HARBOR COMM PARTNERS LL | | | $25,276.00 | 32891 | 4065424 |
| 4 | 12/01/1993 | QCD | Quit Claim Deed | GOLF, NORTHWEST I | HOLMES, HARBOR A | | | $25,814.00 | 34907 | 93025644 |
| 5 | 11/01/1990 | WD | Warranty Deed | ADAMS, & C | GOLF, NORTHWEST I | | | $6,682.00 | 6305 | 90021776 |
| 6 | 06/01/1988 | WD | Warranty Deed | TODD, SAILBOAT & | ADAMS, & C | | | $6,670.00 | 81703 | 88006371 |
| 7 | 09/01/1979 | TRUSTEED | Trustee's Deed | HOLMES, HARBOR P | TODD, SAILBOAT & | | | $0.00 | 94499 | 358597 |
| 8 | 01/01/1900 | OTHER | Other - Misc. Documents | Unknown | HOLMES, HARBOR P | | | $0.00 | 0 | 0 |
Payout Agreement
| No payout information available.. |