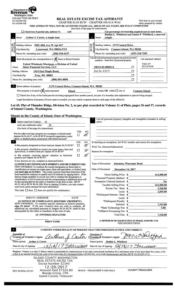
Property
Account |
| Property ID: | 277943 | Abbreviated Legal Description: | HHGY 6 LOT 15 BLK 2 EX W3' |
| Geographic ID: | S7165-06-02015-0 | Agent Code: | |
| Type: | Real | | |
| Tax Area: | 770 - APPRAISER-S Whid Schl Dist, Special District, improved & less than 1 acre | Land Use Code | 11 |
| Open Space: | N | DFL | N |
| Historic Property: | N | Remodel Property: | N |
| Multi-Family Redevelopment: | N | | |
| Township: | | Section: | |
| Range: | |
Location |
| Address: | 1216 LOTUS LN FREELAND, WA 98249 | Mapsco: | |
| Neighborhood: | Cycle 3 | Map ID: | 287 |
| Neighborhood CD: | 3 |
Owner |
| Name: | STICKLES, DENNIS W | Owner ID: | 288057 |
| Mailing Address: | LYNDSI D STICKLES 1216 LOTUS LN FREELAND, WA 98249 | % Ownership: | 100.0000000000% |
| | | Exemptions: | |
Taxes and Assessment Details
Values
| (+) Improvement Homesite Value: | + | $0 | |
| (+) Improvement Non-Homesite Value: | + | $313,853 | |
| (+) Land Homesite Value: | + | $0 | |
| (+) Land Non-Homesite Value: | + | $260,000 | |
| (+) Curr Use (HS): | + | $0 | $0 |
| (+) Curr Use (NHS): | + | $0 | $0 |
| | | -------------------------- | |
| (=) Market Value: | = | $573,853 | |
| (–) Productivity Loss: | – | $0 | |
| | | -------------------------- | |
| (=) Subtotal: | = | $573,853 | |
| (+) Senior Appraised Value: | + | $0 | |
| (+) Non-Senior Appraised Value: | + | $573,853 | |
| | | -------------------------- | |
| (=) Total Appraised Value: | = | $573,853 | |
| (–) Senior Exemption Loss: | – | $0 | |
| (–) Exemption Loss: | – | $0 | |
| | | -------------------------- | |
| (=) Taxable Value: | = | $573,853 | |
Taxing Jurisdiction
| Owner: | STICKLES, DENNIS W | | |
| % Ownership: | 100.0000000000% | | |
| Total Value: | $573,853 | | |
| Tax Area: | 770 - APPRAISER-S Whid Schl Dist, Special District, improved & less than 1 acre |
| CF | Conservation Futures | 0.0316035091 | $573,853 | $573,853 | $18.14 | | |
| FIRE3 | Fire & Rescue Dist #3 S Whidbey GEN | 1.2004855531 | $573,853 | $573,853 | $688.90 | | |
| HOBOND | Hospital BOND | 0.1910887512 | $573,853 | $573,853 | $109.66 | | |
| HOGEN | Hospital GEN | 0.3902502903 | $573,853 | $573,853 | $223.95 | | |
| CE | County Current Expense | 0.3708482477 | $573,853 | $573,853 | $212.81 | | |
| CR | County Roads | 0.4584763726 | $573,853 | $573,853 | $263.10 | | |
| ISLANDEMS | Hospital GEN (EMS) | 0.5000000000 | $573,853 | $573,853 | $286.93 | | |
| LIB | Library Sno-Isle GEN | 0.3153421757 | $573,853 | $573,853 | $180.96 | | |
| PORTWHID | Port of S Whidbey GEN | 0.1094540357 | $573,853 | $573,853 | $62.81 | | |
| SCH206BOND | School 206 BOND | 0.3161759235 | $573,853 | $573,853 | $181.44 | | |
| SCH206MO | School 206 Enrichment | 0.4547169547 | $573,853 | $573,853 | $260.94 | | |
| ST | State School | 1.3035497053 | $573,853 | $573,853 | $748.05 | | |
| ST2 | State School Part 2 | 0.8169543533 | $573,853 | $573,853 | $468.81 | | |
| SWHIDPRBD | P & R S Whidbey BOND | 0.0152817568 | $573,853 | $573,853 | $8.77 | | |
| SWHIDPRBD2 | P & R S Whidbey BOND2 | 0.0138911264 | $573,853 | $573,853 | $7.97 | | |
| SWHIDPRMT | P & R S Whidbey GEN | 0.2053334452 | $573,853 | $573,853 | $117.83 | | |
| | Total Tax Rate: | 6.6934522006 | | | | | |
| | | | | Taxes w/Current Exemptions: | $3,841.07 | | |
| | | | | Taxes w/o Exemptions: | $3,841.07 | | |
Improvement / Building
| Improvement #1: | RESIDENTIAL | State Code: | Y | 1456.0 sqft | Value: | $313,853 |
| Bathrooms: | 2 | Bedrooms: | 3 | | Ceiling: | DRYWALL PAINTED | Exterior Wall/Cover: | CEMENT FIBER | | Floor Covering: | HARDWOOD/CARP 20-80 | Floor Structure: | WOOD W/SUBFLOOR | | Foundation: | CONCRETE | Heating: | FHA GAS | | Interior Finish: | DRYWALL PAINT | Plumbing Fixture Cnt: | 11 | | Roof Slope: | 8" IN 12" | Roof Structure/Cover: | CJ ASPHALT |
|
| | Type | Description | Class CD | Sub Class CD | Year Built | Area |
| | BAS | BASE/MAIN FLOOR | 3 | 0 | 1998 | 1456.0 |
| | AGR | ATTACHED GARAGE | 3 | 0 | 1998 | 782.0 |
| | OWP | OPEN WOOD PORCH W/STEPS | 3 | 0 | 1998 | 168.0 |
| | OWP | OPEN WOOD PORCH W/STEPS | 3 | 0 | 1998 | 144.0 |
| | OWC | OPEN WOOD PORCH W/STEPS/ROOF/C | 3 | 0 | 1998 | 36.0 |
Sketch
Property Image
Land
| 1 | 15 | SQ (12001-21780) | 0.3400 | 14810.40 | 0.00 | 0.00 | 1.00 | $260,000 | $0 |
Roll Value History
| 2026 | N/A | N/A | N/A | N/A | N/A |
| 2025 | $313,853 | $260,000 | $0 | $573,853 | $573,853 |
| 2024 | $317,623 | $260,000 | $0 | $577,623 | $577,623 |
| 2023 | $321,393 | $230,000 | $0 | $551,393 | $551,393 |
| 2022 | $294,443 | $200,000 | $0 | $494,443 | $494,443 |
| 2021 | $259,001 | $115,000 | $0 | $374,001 | $374,001 |
| 2020 | $251,779 | $100,000 | $0 | $351,779 | $351,779 |
| 2019 | $180,804 | $170,000 | $0 | $350,804 | $350,804 |
| 2018 | $169,424 | $140,000 | $0 | $309,424 | $309,424 |
| 2017 | $170,437 | $120,000 | $0 | $290,437 | $290,437 |
| 2016 | $172,467 | $75,000 | $0 | $247,467 | $247,467 |
| 2015 | $174,495 | $65,000 | $0 | $239,495 | $239,495 |
| 2014 | $176,525 | $55,000 | $0 | $231,525 | $231,525 |
| 2013 | $197,900 | $45,000 | $0 | $242,900 | $242,900 |
| 2012 | $200,082 | $45,900 | $0 | $245,982 | $245,982 |
| 2011 | $202,261 | $54,000 | $0 | $256,261 | $256,261 |
| 2010 | $206,537 | $65,000 | $0 | $271,537 | $271,537 |
| 2009 | $213,346 | $82,000 | $0 | $295,346 | $295,346 |
| 2008 | $216,209 | $85,000 | $0 | $301,209 | $301,209 |
| 2007 | $217,441 | $78,000 | $0 | $295,441 | $295,441 |
Deed and Sales History
| 1 | 11/20/2018 | WD | Warranty Deed | BABCOCK TRUSTEE, DANIEL LEON | STICKLES, DENNIS W | | | $345,000.00 | 36813 | 4455724 |
| 2 | 01/10/2018 | QCD | Quit Claim Deed | BABCOCK, DANIEL L | BABCOCK TRUSTEE, DANIEL LEON | | | $0.00 | 32585 | 4437342 |
| 3 | 09/10/2003 | WD | Warranty Deed | KOETJE CONST INC, | BABCOCK, DANIEL L | | | $210,000.00 | 34116 | 4075079 |
| 4 | 08/31/1998 | BLA | DNU - Boundary Line Adjustment | GREGORY, GREG B | KOETJE CONST INC, | | | $0.00 | 67996 | 98016997 |
| 5 | 08/21/1998 | WD | Warranty Deed | KOETJE, CONSTRUCTION I | GREGORY, GREG B | | | $171,100.00 | 83334 | 98017472 |
| 6 | 12/01/1996 | WD | Warranty Deed | R, K P | KOETJE, CONSTRUCTION I | | | $13,000.00 | 64617 | 96022227 |
| 7 | 07/01/1988 | WD | Warranty Deed | WEST, WINDS I | R, K P | | | $3,450.00 | 82664 | 88010055 |
| 8 | 06/01/1988 | WD | Warranty Deed | FISHER, RONALD G | WEST, WINDS I | | | $2,600.00 | 81951 | 88007178 |
| 9 | 01/01/1900 | OTHER | Other - Misc. Documents | Unknown | FISHER, RONALD G | | | $0.00 | 0 | 0 |
Payout Agreement
| No payout information available.. |