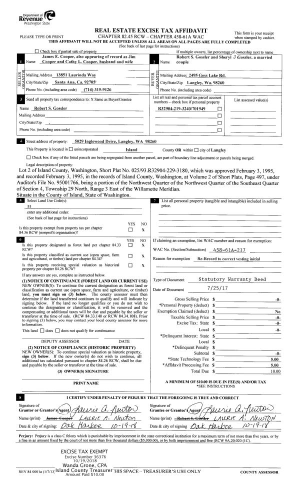
Property
Account |
| Property ID: | 277998 | Abbreviated Legal Description: | HHGY 6 LOT 20 BLK 2 |
| Geographic ID: | S7165-06-02020-0 | Agent Code: | |
| Type: | Real | | |
| Tax Area: | 770 - APPRAISER-S Whid Schl Dist, Special District, improved & less than 1 acre | Land Use Code | 11 |
| Open Space: | N | DFL | N |
| Historic Property: | N | Remodel Property: | N |
| Multi-Family Redevelopment: | N | | |
| Township: | | Section: | |
| Range: | |
Location |
| Address: | 1205 LOTUS LN FREELAND, WA 98249 | Mapsco: | |
| Neighborhood: | Cycle 3 | Map ID: | 287 |
| Neighborhood CD: | 3 |
Owner |
| Name: | SCHIAVONE-RUTHENSTEINER, SEBASTIAN | Owner ID: | 287323 |
| Mailing Address: | PO BOX 1226 FREELAND, WA 98249 | % Ownership: | 100.0000000000% |
| | | Exemptions: | |
Taxes and Assessment Details
Values
| (+) Improvement Homesite Value: | + | $0 | |
| (+) Improvement Non-Homesite Value: | + | $306,025 | |
| (+) Land Homesite Value: | + | $0 | |
| (+) Land Non-Homesite Value: | + | $260,000 | |
| (+) Curr Use (HS): | + | $0 | $0 |
| (+) Curr Use (NHS): | + | $0 | $0 |
| | | -------------------------- | |
| (=) Market Value: | = | $566,025 | |
| (–) Productivity Loss: | – | $0 | |
| | | -------------------------- | |
| (=) Subtotal: | = | $566,025 | |
| (+) Senior Appraised Value: | + | $0 | |
| (+) Non-Senior Appraised Value: | + | $566,025 | |
| | | -------------------------- | |
| (=) Total Appraised Value: | = | $566,025 | |
| (–) Senior Exemption Loss: | – | $0 | |
| (–) Exemption Loss: | – | $0 | |
| | | -------------------------- | |
| (=) Taxable Value: | = | $566,025 | |
Taxing Jurisdiction
| Owner: | SCHIAVONE-RUTHENSTEINER, SEBASTIAN | | |
| % Ownership: | 100.0000000000% | | |
| Total Value: | $566,025 | | |
| Tax Area: | 770 - APPRAISER-S Whid Schl Dist, Special District, improved & less than 1 acre |
| CF | Conservation Futures | 0.0316035091 | $566,025 | $566,025 | $17.89 | | |
| FIRE3 | Fire & Rescue Dist #3 S Whidbey GEN | 1.2004855531 | $566,025 | $566,025 | $679.50 | | |
| HOBOND | Hospital BOND | 0.1910887512 | $566,025 | $566,025 | $108.16 | | |
| HOGEN | Hospital GEN | 0.3902502903 | $566,025 | $566,025 | $220.89 | | |
| CE | County Current Expense | 0.3708482477 | $566,025 | $566,025 | $209.91 | | |
| CR | County Roads | 0.4584763726 | $566,025 | $566,025 | $259.51 | | |
| ISLANDEMS | Hospital GEN (EMS) | 0.5000000000 | $566,025 | $566,025 | $283.01 | | |
| LIB | Library Sno-Isle GEN | 0.3153421757 | $566,025 | $566,025 | $178.49 | | |
| PORTWHID | Port of S Whidbey GEN | 0.1094540357 | $566,025 | $566,025 | $61.95 | | |
| SCH206BOND | School 206 BOND | 0.3161759235 | $566,025 | $566,025 | $178.96 | | |
| SCH206MO | School 206 Enrichment | 0.4547169547 | $566,025 | $566,025 | $257.38 | | |
| ST | State School | 1.3035497053 | $566,025 | $566,025 | $737.84 | | |
| ST2 | State School Part 2 | 0.8169543533 | $566,025 | $566,025 | $462.42 | | |
| SWHIDPRBD | P & R S Whidbey BOND | 0.0152817568 | $566,025 | $566,025 | $8.65 | | |
| SWHIDPRBD2 | P & R S Whidbey BOND2 | 0.0138911264 | $566,025 | $566,025 | $7.86 | | |
| SWHIDPRMT | P & R S Whidbey GEN | 0.2053334452 | $566,025 | $566,025 | $116.22 | | |
| | Total Tax Rate: | 6.6934522006 | | | | | |
| | | | | Taxes w/Current Exemptions: | $3,788.64 | | |
| | | | | Taxes w/o Exemptions: | $3,788.64 | | |
Improvement / Building
| Improvement #1: | RESIDENTIAL | State Code: | Y | 1424.0 sqft | Value: | $306,025 |
| Bathrooms: | 3 | Bedrooms: | 3 | | Ceiling: | DRYWALL PAINTED | Exterior Wall/Cover: | CEMENT FIBER | | Floor Covering: | CARPET/VINYL 80-20 | Floor Structure: | WOOD W/SUBFLOOR | | Foundation: | CONCRETE | Heating: | FHA GAS | | Interior Finish: | DRYWALL PAINT | Plumbing Fixture Cnt: | 12 | | Roof Slope: | 5" IN 12" | Roof Structure/Cover: | CJ ASPHALT |
|
| | Type | Description | Class CD | Sub Class CD | Year Built | Area |
| | BAS | BASE/MAIN FLOOR | 3 | 0 | 1998 | 1424.0 |
| | OP4 | OPEN PORCH W/CEILING-ROOF | 3 | 0 | 1998 | 32.0 |
| | AGR | ATTACHED GARAGE | 3 | 0 | 1998 | 484.0 |
| | OP4 | OPEN PORCH W/CEILING-ROOF | 3 | 0 | 1998 | 140.0 |
| | DGR | DETACHED GARAGE | 3 | 0 | 1998 | 680.0 |
Sketch
Property Image
Land
| 1 | 14 | SQ (08001-12000) | 0.3000 | 13068.00 | 0.00 | 0.00 | 1.00 | $260,000 | $0 |
Roll Value History
| 2026 | N/A | N/A | N/A | N/A | N/A |
| 2025 | $306,025 | $260,000 | $0 | $566,025 | $566,025 |
| 2024 | $309,747 | $260,000 | $0 | $569,747 | $569,747 |
| 2023 | $313,466 | $230,000 | $0 | $543,466 | $543,466 |
| 2022 | $287,223 | $200,000 | $0 | $487,223 | $487,223 |
| 2021 | $252,690 | $115,000 | $0 | $367,690 | $367,690 |
| 2020 | $245,384 | $100,000 | $0 | $345,384 | $345,384 |
| 2019 | $174,491 | $170,000 | $0 | $344,491 | $344,491 |
| 2018 | $150,428 | $140,000 | $0 | $290,428 | $290,428 |
| 2017 | $151,291 | $120,000 | $0 | $271,291 | $271,291 |
| 2016 | $153,013 | $75,000 | $0 | $228,013 | $228,013 |
| 2015 | $154,736 | $65,000 | $0 | $219,736 | $219,736 |
| 2014 | $156,460 | $55,000 | $0 | $211,460 | $211,460 |
| 2013 | $177,322 | $45,000 | $0 | $222,322 | $222,322 |
| 2012 | $179,186 | $45,900 | $0 | $225,086 | $225,086 |
| 2011 | $181,049 | $54,000 | $0 | $235,049 | $235,049 |
| 2010 | $188,925 | $65,000 | $0 | $253,925 | $253,925 |
| 2009 | $196,654 | $82,000 | $0 | $278,654 | $278,654 |
| 2008 | $209,599 | $85,000 | $0 | $294,599 | $294,599 |
| 2007 | $187,265 | $78,000 | $0 | $265,265 | $265,265 |
Deed and Sales History
| 1 | 10/02/2018 | QCD | Quit Claim Deed | SCHIAVONE-RUTHENSTEINER, SEBASTIAN | SCHIAVONE-RUTHENSTEINER, SEBASTIAN | | | $0.00 | 36190 | 4452984 |
| 2 | 10/02/2018 | WD | Warranty Deed | BELL, RICHARD LEIGH | SCHIAVONE-RUTHENSTEINER, SEBASTIAN | | | $355,000.00 | 36189 | 4452983 |
| 3 | 03/21/2017 | SPWARDEED | Special Warranty Deed | SECRETARY OF HOUSING AND URBAN DEVELOPMENT | BELL, RICHARD LEIGH | | | $238,525.00 | 28570 | 4419435 |
| 4 | 09/28/2016 | SPWARDEED | Special Warranty Deed | BANK OF AMERICA | SECRETARY OF HOUSING AND URBAN DEVELOPMENT | | | $207,264.00 | 27308 | 4413285 |
| 5 | 09/06/2016 | TRUSTEED | Trustee's Deed | BERTO, JAMES ALBERT | BANK OF AMERICA | | | $210,000.00 | 26026 | 4406786 |
| 6 | 03/19/2013 | DECREE | Divorce Decree/Legal Separation | BERTO, JAMES A | BERTO, JAMES ALBERT | | | $0.00 | 10766 | 4336064 |
| 7 | 12/03/2008 | WD | Warranty Deed | KING, RICHARD C | BERTO, JAMES A | | | $210,000.00 | 83086 | 4240930 |
| 8 | 03/01/1998 | WD | Warranty Deed | KOETJE, CONSTRUCTION I | KING, RICHARD C | | | $135,950.00 | 80808 | 98004519 |
| 9 | 12/01/1996 | WD | Warranty Deed | R, K P | KOETJE, CONSTRUCTION I | | | $13,000.00 | 64617 | 96022227 |
| 10 | 07/01/1988 | WD | Warranty Deed | WEST, WINDS I | R, K P | | | $3,400.00 | 82664 | 88010055 |
| 11 | 06/01/1988 | WD | Warranty Deed | FISHER, RONALD G | WEST, WINDS I | | | $2,550.00 | 81951 | 88007178 |
Payout Agreement
| No payout information available.. |