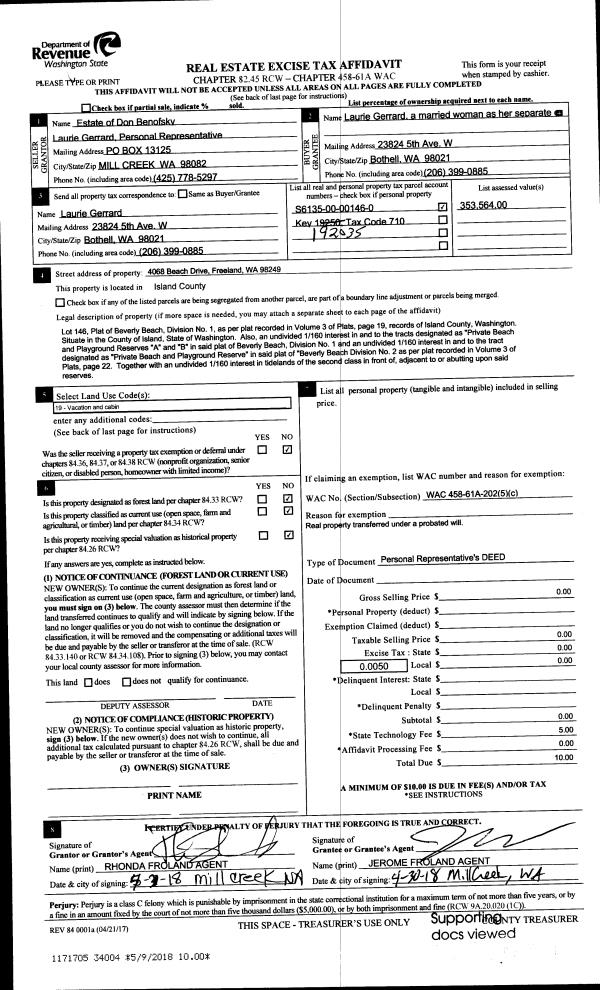
Property
Account |
| Property ID: | 278069 | Abbreviated Legal Description: | HHGY 6 LOT 27 BLK 2 |
| Geographic ID: | S7165-06-02027-0 | Agent Code: | |
| Type: | Real | | |
| Tax Area: | 770 - APPRAISER-S Whid Schl Dist, Special District, improved & less than 1 acre | Land Use Code | 11 |
| Open Space: | N | DFL | N |
| Historic Property: | N | Remodel Property: | N |
| Multi-Family Redevelopment: | N | | |
| Township: | | Section: | |
| Range: | |
Location |
| Address: | 5010 CHIPSHOT WAY FREELAND, WA 98249 | Mapsco: | |
| Neighborhood: | Cycle 3 | Map ID: | 287 |
| Neighborhood CD: | 3 |
Owner |
| Name: | AZIM, RICK | Owner ID: | 285384 |
| Mailing Address: | 5010 CHIPSHOT WAY FREELAND, WA 98249-9775 | % Ownership: | 100.0000000000% |
| | | Exemptions: | SNR/DSBL |
Taxes and Assessment Details
Values
| (+) Improvement Homesite Value: | + | $317,081 | |
| (+) Improvement Non-Homesite Value: | + | $0 | |
| (+) Land Homesite Value: | + | $260,000 | |
| (+) Land Non-Homesite Value: | + | $0 | |
| (+) Curr Use (HS): | + | $0 | $0 |
| (+) Curr Use (NHS): | + | $0 | $0 |
| | | -------------------------- | |
| (=) Market Value: | = | $577,081 | |
| (–) Productivity Loss: | – | $0 | |
| | | -------------------------- | |
| (=) Subtotal: | = | $577,081 | |
| (+) Senior Appraised Value: | + | $313,155 | |
| (+) Non-Senior Appraised Value: | + | $0 | |
| | | -------------------------- | |
| (=) Total Appraised Value: | = | $313,155 | |
| (–) Senior Exemption Loss: | – | $70,000 | |
| (–) Exemption Loss: | – | $0 | |
| | | -------------------------- | |
| (=) Taxable Value: | = | $243,155 | |
Taxing Jurisdiction
| Owner: | AZIM, RICK | | |
| % Ownership: | 100.0000000000% | | |
| Total Value: | $577,081 | | |
| Tax Area: | 770 - APPRAISER-S Whid Schl Dist, Special District, improved & less than 1 acre |
| CF | Conservation Futures | 0.0316035091 | $577,081 | $243,155 | $7.68 | | |
| FIRE3 | Fire & Rescue Dist #3 S Whidbey GEN | 1.2004855531 | $577,081 | $243,155 | $291.90 | | |
| HOBOND | Hospital BOND | 0.0000000000 | $577,081 | $0 | $0.00 | | |
| HOGEN | Hospital GEN | 0.3902502903 | $577,081 | $243,155 | $94.89 | | |
| CE | County Current Expense | 0.3708482477 | $577,081 | $243,155 | $90.17 | | |
| CR | County Roads | 0.4584763726 | $577,081 | $243,155 | $111.48 | | |
| ISLANDEMS | Hospital GEN (EMS) | 0.5000000000 | $577,081 | $243,155 | $121.58 | | |
| LIB | Library Sno-Isle GEN | 0.3153421757 | $577,081 | $243,155 | $76.68 | | |
| PORTWHID | Port of S Whidbey GEN | 0.1094540357 | $577,081 | $243,155 | $26.61 | | |
| SCH206BOND | School 206 BOND | 0.3161759235 | $577,081 | $243,155 | $76.88 | | |
| SCH206MO | School 206 Enrichment | 0.0000000000 | $577,081 | $0 | $0.00 | | |
| ST | State School | 1.3035497053 | $577,081 | $243,155 | $316.96 | | |
| ST2 | State School Part 2 | 0.0000000000 | $577,081 | $0 | $0.00 | | |
| SWHIDPRBD | P & R S Whidbey BOND | 0.0000000000 | $577,081 | $0 | $0.00 | | |
| SWHIDPRBD2 | P & R S Whidbey BOND2 | 0.0000000000 | $577,081 | $0 | $0.00 | | |
| SWHIDPRMT | P & R S Whidbey GEN | 0.2053334452 | $577,081 | $243,155 | $49.93 | | |
| | Total Tax Rate: | 5.2015192582 | | | | | |
| | | | | Taxes w/Current Exemptions: | $1,264.76 | | |
| | | | | Taxes w/o Exemptions: | $3,862.67 | | |
Improvement / Building
| Improvement #1: | RESIDENTIAL | State Code: | Y | 1456.0 sqft | Value: | $317,081 |
| Bathrooms: | 2 | Bedrooms: | 3 | | Ceiling: | DRYWALL PAINTED | Exterior Wall/Cover: | CEMENT FIBER | | Floor Covering: | HARDWOOD/CARP 60-40 | Floor Structure: | WOOD W/SUBFLOOR | | Foundation: | CONCRETE | Heating: | FHA GAS | | Interior Finish: | DRYWALL PAINT | Plumbing Fixture Cnt: | 13 | | Roof Slope: | 5" IN 12" | Roof Structure/Cover: | CJ ASPHALT |
|
| | Type | Description | Class CD | Sub Class CD | Year Built | Area |
| | BAS | BASE/MAIN FLOOR | 3 | 0 | 1997 | 1456.0 |
| | OP4 | OPEN PORCH W/CEILING-ROOF | 3 | 0 | 1997 | 36.0 |
| | AGR | ATTACHED GARAGE | 3 | 0 | 1997 | 484.0 |
| | OWP | OPEN WOOD PORCH W/STEPS | 3 | 0 | 1997 | 165.0 |
Sketch
Property Image
Land
| 1 | 15 | SQ (12001-21780) | 0.3200 | 13939.20 | 0.00 | 0.00 | 1.00 | $260,000 | $0 |
Roll Value History
| 2026 | N/A | N/A | N/A | N/A | N/A |
| 2025 | $317,081 | $260,000 | $0 | $577,081 | $243,155 |
| 2024 | $320,801 | $260,000 | $0 | $580,801 | $243,155 |
| 2023 | $324,520 | $230,000 | $0 | $554,520 | $243,155 |
| 2022 | $297,217 | $200,000 | $0 | $497,217 | $243,155 |
| 2021 | $261,385 | $115,000 | $0 | $376,385 | $243,155 |
| 2020 | $253,000 | $100,000 | $0 | $353,000 | $243,155 |
| 2019 | $180,576 | $170,000 | $0 | $350,576 | $243,155 |
| 2018 | $173,155 | $140,000 | $0 | $313,155 | $243,155 |
| 2017 | $174,144 | $120,000 | $0 | $294,144 | $294,144 |
| 2016 | $176,122 | $75,000 | $0 | $251,122 | $251,122 |
| 2015 | $178,102 | $65,000 | $0 | $243,102 | $243,102 |
| 2014 | $180,082 | $55,000 | $0 | $235,082 | $235,082 |
| 2013 | $167,034 | $45,000 | $0 | $212,034 | $212,034 |
| 2012 | $168,922 | $45,900 | $0 | $214,822 | $214,822 |
| 2011 | $170,811 | $54,000 | $0 | $224,811 | $224,811 |
| 2010 | $177,748 | $65,000 | $0 | $242,748 | $242,748 |
| 2009 | $183,367 | $82,000 | $0 | $265,367 | $265,367 |
| 2008 | $185,498 | $85,000 | $0 | $270,498 | $270,498 |
| 2007 | $160,921 | $78,000 | $0 | $238,921 | $238,921 |
Deed and Sales History
| 1 | 05/25/2018 | QCD | Quit Claim Deed | AZIM, RICK | AZIM, RICK | | | $0.00 | 34467 | 4445951 |
| 2 | 06/01/2018 | WD | Warranty Deed | HENDRIX, MICHAEL G | AZIM, RICK | | | $365,000.00 | 34466 | 4445950 |
| 3 | 10/15/2014 | WD | Warranty Deed | MEIER, NOAH | HENDRIX, MICHAEL G | | | $252,500.00 | 17188 | 4367033 |
| 4 | 03/15/2004 | WD | Warranty Deed | BAKER, BRETT A | MEIER, NOAH | | | $189,500.00 | 41156 | 4095263 |
| 5 | 08/01/1997 | WD | Warranty Deed | KOETJE, CONSTRUCTION I | BAKER, BRETT A | | | $137,450.00 | 73068 | 97014450 |
| 6 | 12/01/1996 | WD | Warranty Deed | R, K P | KOETJE, CONSTRUCTION I | | | $13,000.00 | 64617 | 96022227 |
| 7 | 07/01/1988 | WD | Warranty Deed | WEST, WINDS I | R, K P | | | $3,450.00 | 82664 | 88010055 |
| 8 | 06/01/1988 | WD | Warranty Deed | FISHER, RONALD G | WEST, WINDS I | | | $2,600.00 | 81951 | 88007178 |
Payout Agreement
| No payout information available.. |