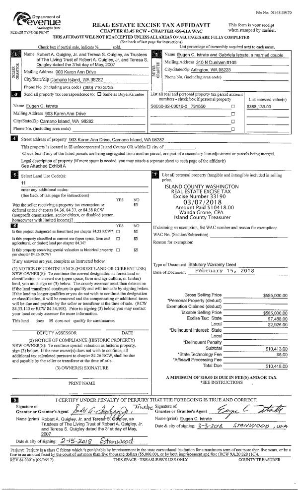
Property
Account |
| Property ID: | 278158 | Abbreviated Legal Description: | HHGY 6 LOT 9 BLK 3 |
| Geographic ID: | S7165-06-03009-0 | Agent Code: | |
| Type: | Real | | |
| Tax Area: | 770 - APPRAISER-S Whid Schl Dist, Special District, improved & less than 1 acre | Land Use Code | 11 |
| Open Space: | N | DFL | N |
| Historic Property: | N | Remodel Property: | N |
| Multi-Family Redevelopment: | N | | |
| Township: | | Section: | |
| Range: | |
Location |
| Address: | 1271 LONG DR FREELAND, WA 98249 | Mapsco: | |
| Neighborhood: | Cycle 3 | Map ID: | 287 |
| Neighborhood CD: | 3 |
Owner |
| Name: | ADAMS, MELINDA A | Owner ID: | 283910 |
| Mailing Address: | 1271 LONG DR FREELAND, WA 98249 | % Ownership: | 100.0000000000% |
| | | Exemptions: | |
Taxes and Assessment Details
Values
| (+) Improvement Homesite Value: | + | $0 | |
| (+) Improvement Non-Homesite Value: | + | $376,020 | |
| (+) Land Homesite Value: | + | $0 | |
| (+) Land Non-Homesite Value: | + | $285,000 | |
| (+) Curr Use (HS): | + | $0 | $0 |
| (+) Curr Use (NHS): | + | $0 | $0 |
| | | -------------------------- | |
| (=) Market Value: | = | $661,020 | |
| (–) Productivity Loss: | – | $0 | |
| | | -------------------------- | |
| (=) Subtotal: | = | $661,020 | |
| (+) Senior Appraised Value: | + | $0 | |
| (+) Non-Senior Appraised Value: | + | $661,020 | |
| | | -------------------------- | |
| (=) Total Appraised Value: | = | $661,020 | |
| (–) Senior Exemption Loss: | – | $0 | |
| (–) Exemption Loss: | – | $0 | |
| | | -------------------------- | |
| (=) Taxable Value: | = | $661,020 | |
Taxing Jurisdiction
| Owner: | ADAMS, MELINDA A | | |
| % Ownership: | 100.0000000000% | | |
| Total Value: | $661,020 | | |
| Tax Area: | 770 - APPRAISER-S Whid Schl Dist, Special District, improved & less than 1 acre |
| CF | Conservation Futures | 0.0316035091 | $661,020 | $661,020 | $20.89 | | |
| FIRE3 | Fire & Rescue Dist #3 S Whidbey GEN | 1.2004855531 | $661,020 | $661,020 | $793.54 | | |
| HOBOND | Hospital BOND | 0.1910887512 | $661,020 | $661,020 | $126.31 | | |
| HOGEN | Hospital GEN | 0.3902502903 | $661,020 | $661,020 | $257.96 | | |
| CE | County Current Expense | 0.3708482477 | $661,020 | $661,020 | $245.14 | | |
| CR | County Roads | 0.4584763726 | $661,020 | $661,020 | $303.06 | | |
| ISLANDEMS | Hospital GEN (EMS) | 0.5000000000 | $661,020 | $661,020 | $330.51 | | |
| LIB | Library Sno-Isle GEN | 0.3153421757 | $661,020 | $661,020 | $208.45 | | |
| PORTWHID | Port of S Whidbey GEN | 0.1094540357 | $661,020 | $661,020 | $72.35 | | |
| SCH206BOND | School 206 BOND | 0.3161759235 | $661,020 | $661,020 | $209.00 | | |
| SCH206MO | School 206 Enrichment | 0.4547169547 | $661,020 | $661,020 | $300.58 | | |
| ST | State School | 1.3035497053 | $661,020 | $661,020 | $861.67 | | |
| ST2 | State School Part 2 | 0.8169543533 | $661,020 | $661,020 | $540.02 | | |
| SWHIDPRBD | P & R S Whidbey BOND | 0.0152817568 | $661,020 | $661,020 | $10.10 | | |
| SWHIDPRBD2 | P & R S Whidbey BOND2 | 0.0138911264 | $661,020 | $661,020 | $9.18 | | |
| SWHIDPRMT | P & R S Whidbey GEN | 0.2053334452 | $661,020 | $661,020 | $135.73 | | |
| | Total Tax Rate: | 6.6934522006 | | | | | |
| | | | | Taxes w/Current Exemptions: | $4,424.49 | | |
| | | | | Taxes w/o Exemptions: | $4,424.49 | | |
Improvement / Building
| Improvement #1: | RESIDENTIAL | State Code: | Y | 2192.0 sqft | Value: | $376,020 |
| Bathrooms: | 2 | Bedrooms: | 3 | | Ceiling: | DRYWALL PAINTED | Cooling: | HEAT PUMP/CONV/V | | Exterior Wall/Cover: | CEMENT FIBER | Floor Covering: | CARPET/VINYL 80-20 | | Floor Structure: | WOOD W/SUBFLOOR | Foundation: | CONCRETE | | Interior Finish: | DRYWALL PAINT | Plumbing Fixture Cnt: | 12 | | Roof Slope: | 6" IN 12" | Roof Structure/Cover: | CJ ASPHALT |
|
| | Type | Description | Class CD | Sub Class CD | Year Built | Area |
| | BAS | BASE/MAIN FLOOR | 3 | 0 | 2006 | 2192.0 |
| | AGR | ATTACHED GARAGE | 3 | 0 | 2006 | 718.0 |
| | OWP | OPEN WOOD PORCH W/STEPS | 3 | 0 | 2006 | 534.0 |
| | OWC | OPEN WOOD PORCH W/STEPS/ROOF/C | 3 | 0 | 2006 | 205.0 |
Sketch
Property Image
Land
| 1 | 14 | SQ (08001-12000) | 0.2600 | 11325.60 | 0.00 | 0.00 | 1.00 | $285,000 | $0 |
Roll Value History
| 2026 | N/A | N/A | N/A | N/A | N/A |
| 2025 | $376,020 | $285,000 | $0 | $661,020 | $661,020 |
| 2024 | $380,593 | $260,000 | $0 | $640,593 | $640,593 |
| 2023 | $385,164 | $240,000 | $0 | $625,164 | $625,164 |
| 2022 | $352,901 | $200,000 | $0 | $552,901 | $552,901 |
| 2021 | $310,477 | $115,000 | $0 | $425,477 | $425,477 |
| 2020 | $302,557 | $100,000 | $0 | $402,557 | $402,557 |
| 2019 | $232,362 | $170,000 | $0 | $402,362 | $402,362 |
| 2018 | $233,021 | $140,000 | $0 | $373,021 | $373,021 |
| 2017 | $234,338 | $120,000 | $0 | $354,338 | $354,338 |
| 2016 | $236,970 | $75,000 | $0 | $311,970 | $311,970 |
| 2015 | $239,603 | $65,000 | $0 | $304,603 | $304,603 |
| 2014 | $242,236 | $55,000 | $0 | $297,236 | $297,236 |
| 2013 | $271,607 | $45,000 | $0 | $316,607 | $316,607 |
| 2012 | $274,494 | $45,900 | $0 | $320,394 | $320,394 |
| 2011 | $277,381 | $54,000 | $0 | $331,381 | $331,381 |
| 2010 | $283,419 | $65,000 | $0 | $348,419 | $348,419 |
| 2009 | $295,298 | $82,000 | $0 | $377,298 | $377,298 |
| 2008 | $308,870 | $85,000 | $0 | $393,870 | $393,870 |
| 2007 | $291,623 | $78,000 | $0 | $369,623 | $369,623 |
Deed and Sales History
| 1 | 02/14/2018 | WD | Warranty Deed | BARCHENGER, BRUCE R | ADAMS, MELINDA A | | | $425,000.00 | 32956 | 4439270 |
| 2 | 02/15/2005 | WD | Warranty Deed | ASPEN HOMEBUILDING INC, | BARCHENGER, BRUCE R | | | $57,500.00 | 50619 | 4126036 |
| 3 | 06/02/2004 | WD | Warranty Deed | CHILDREN'S, ORTHOPEDIC | ASPEN HOMEBUILDING INC, | | | $34,000.00 | 42816 | 4104989 |
| 4 | 10/01/1980 | TRUSTEED | Trustee's Deed | GLASS, HAROLD P | CHILDREN'S, ORTHOPEDIC | | | $0.00 | 10729 | 380485 |
| 5 | 10/01/1978 | OTHER | Other - Misc. Documents | Unknown | GLASS, HAROLD P | | | $0.00 | 85524 | 342901 |
Payout Agreement
| No payout information available.. |