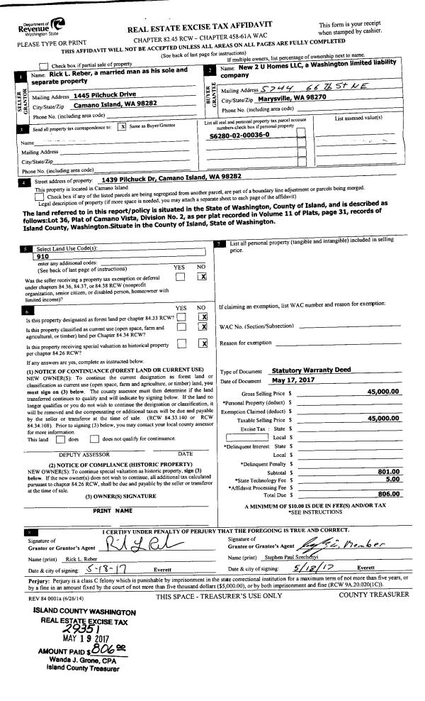
Property
Account |
| Property ID: | 278194 | Abbreviated Legal Description: | HHGY 6 LOT 13 BLK 3 |
| Geographic ID: | S7165-06-03013-0 | Agent Code: | |
| Type: | Real | | |
| Tax Area: | 770 - APPRAISER-S Whid Schl Dist, Special District, improved & less than 1 acre | Land Use Code | 11 |
| Open Space: | N | DFL | N |
| Historic Property: | N | Remodel Property: | N |
| Multi-Family Redevelopment: | N | | |
| Township: | | Section: | |
| Range: | |
Location |
| Address: | 1241 LONG DR FREELAND, WA 98249 | Mapsco: | |
| Neighborhood: | Cycle 3 | Map ID: | 287 |
| Neighborhood CD: | 3 |
Owner |
| Name: | COSPITO TTEE, JOSEPH | Owner ID: | 306848 |
| Mailing Address: | DORIAN MCGLANNAN TTEE 1241 LONG DR FREELAND, WA 98249 | % Ownership: | 100.0000000000% |
| | | Exemptions: | |
Taxes and Assessment Details
Values
| (+) Improvement Homesite Value: | + | $0 | |
| (+) Improvement Non-Homesite Value: | + | $507,866 | |
| (+) Land Homesite Value: | + | $0 | |
| (+) Land Non-Homesite Value: | + | $285,000 | |
| (+) Curr Use (HS): | + | $0 | $0 |
| (+) Curr Use (NHS): | + | $0 | $0 |
| | | -------------------------- | |
| (=) Market Value: | = | $792,866 | |
| (–) Productivity Loss: | – | $0 | |
| | | -------------------------- | |
| (=) Subtotal: | = | $792,866 | |
| (+) Senior Appraised Value: | + | $0 | |
| (+) Non-Senior Appraised Value: | + | $792,866 | |
| | | -------------------------- | |
| (=) Total Appraised Value: | = | $792,866 | |
| (–) Senior Exemption Loss: | – | $0 | |
| (–) Exemption Loss: | – | $0 | |
| | | -------------------------- | |
| (=) Taxable Value: | = | $792,866 | |
Taxing Jurisdiction
| Owner: | COSPITO TTEE, JOSEPH | | |
| % Ownership: | 100.0000000000% | | |
| Total Value: | $792,866 | | |
| Tax Area: | 770 - APPRAISER-S Whid Schl Dist, Special District, improved & less than 1 acre |
| CF | Conservation Futures | 0.0316035091 | $792,866 | $792,866 | $25.06 | | |
| FIRE3 | Fire & Rescue Dist #3 S Whidbey GEN | 1.2004855531 | $792,866 | $792,866 | $951.82 | | |
| HOBOND | Hospital BOND | 0.1910887512 | $792,866 | $792,866 | $151.51 | | |
| HOGEN | Hospital GEN | 0.3902502903 | $792,866 | $792,866 | $309.42 | | |
| CE | County Current Expense | 0.3708482477 | $792,866 | $792,866 | $294.03 | | |
| CR | County Roads | 0.4584763726 | $792,866 | $792,866 | $363.51 | | |
| ISLANDEMS | Hospital GEN (EMS) | 0.5000000000 | $792,866 | $792,866 | $396.43 | | |
| LIB | Library Sno-Isle GEN | 0.3153421757 | $792,866 | $792,866 | $250.02 | | |
| PORTWHID | Port of S Whidbey GEN | 0.1094540357 | $792,866 | $792,866 | $86.78 | | |
| SCH206BOND | School 206 BOND | 0.3161759235 | $792,866 | $792,866 | $250.69 | | |
| SCH206MO | School 206 Enrichment | 0.4547169547 | $792,866 | $792,866 | $360.53 | | |
| ST | State School | 1.3035497053 | $792,866 | $792,866 | $1,033.54 | | |
| ST2 | State School Part 2 | 0.8169543533 | $792,866 | $792,866 | $647.74 | | |
| SWHIDPRBD | P & R S Whidbey BOND | 0.0152817568 | $792,866 | $792,866 | $12.12 | | |
| SWHIDPRBD2 | P & R S Whidbey BOND2 | 0.0138911264 | $792,866 | $792,866 | $11.01 | | |
| SWHIDPRMT | P & R S Whidbey GEN | 0.2053334452 | $792,866 | $792,866 | $162.80 | | |
| | Total Tax Rate: | 6.6934522006 | | | | | |
| | | | | Taxes w/Current Exemptions: | $5,307.01 | | |
| | | | | Taxes w/o Exemptions: | $5,307.01 | | |
Improvement / Building
| Improvement #1: | RESIDENTIAL | State Code: | Y | 2166.7 sqft | Value: | $507,866 |
| Bathrooms: | 2.5 | Bedrooms: | 3 | | Ceiling: | DRYWALL PAINTED | Cooling: | HEAT PUMP/CONV/V | | Exterior Wall/Cover: | WOOD SIDING | Floor Covering: | HARDWOOD/CARP 60-40 | | Floor Structure: | WOOD W/SUBFLOOR | Foundation: | CONCRETE | | Interior Finish: | DRYWALL PAINT | Plumbing Fixture Cnt: | 14 | | Roof Slope: | 10" IN 12" | Roof Structure/Cover: | BEAM ALUMINUM HEAVY |
|
| | Type | Description | Class CD | Sub Class CD | Year Built | Area |
| | BAS | BASE/MAIN FLOOR | 4 | 0 | 2003 | 1524.1 |
| | AGR | ATTACHED GARAGE | 4 | 0 | 2003 | 725.6 |
| | UPS | UPPER STORY | 4 | 0 | 2003 | 642.6 |
| | OWP | OPEN WOOD PORCH W/STEPS | 4 | 0 | 2003 | 540.6 |
| | OWC | OPEN WOOD PORCH W/STEPS/ROOF/C | 4 | 0 | 2003 | 96.8 |
| | OWC | OPEN WOOD PORCH W/STEPS/ROOF/C | 4 | 0 | 2003 | 54.6 |
Sketch
Property Image
Land
| 1 | 14 | SQ (08001-12000) | 0.2500 | 10890.00 | 0.00 | 0.00 | 1.00 | $285,000 | $0 |
Roll Value History
| 2026 | N/A | N/A | N/A | N/A | N/A |
| 2025 | $507,866 | $285,000 | $0 | $792,866 | $792,866 |
| 2024 | $513,967 | $260,000 | $0 | $773,967 | $773,967 |
| 2023 | $514,336 | $240,000 | $0 | $754,336 | $754,336 |
| 2022 | $471,208 | $200,000 | $0 | $671,208 | $671,208 |
| 2021 | $414,497 | $115,000 | $0 | $529,497 | $529,497 |
| 2020 | $403,496 | $100,000 | $0 | $503,496 | $503,496 |
| 2019 | $291,632 | $170,000 | $0 | $461,632 | $461,632 |
| 2018 | $292,469 | $140,000 | $0 | $432,469 | $432,469 |
| 2017 | $293,815 | $120,000 | $0 | $413,815 | $413,815 |
| 2016 | $297,152 | $75,000 | $0 | $372,152 | $372,152 |
| 2015 | $300,492 | $65,000 | $0 | $365,492 | $365,492 |
| 2014 | $303,830 | $55,000 | $0 | $358,830 | $358,830 |
| 2013 | $297,368 | $45,000 | $0 | $342,368 | $342,368 |
| 2012 | $300,669 | $45,900 | $0 | $346,569 | $346,569 |
| 2011 | $303,969 | $54,000 | $0 | $357,969 | $357,969 |
| 2010 | $317,386 | $65,000 | $0 | $382,386 | $382,386 |
| 2009 | $334,263 | $82,000 | $0 | $416,263 | $416,263 |
| 2008 | $334,899 | $85,000 | $0 | $419,899 | $419,899 |
| 2007 | $321,538 | $78,000 | $0 | $399,538 | $399,538 |
Deed and Sales History
| 1 | 12/09/2022 | QCD | Quit Claim Deed | MCGLANNAN, DORIAN | COSPITO TTEE, JOSEPH | | | $0.00 | 55335 | 4554677 |
| 2 | 07/05/2018 | WD | Warranty Deed | NELSON, THOMAS R | MCGLANNAN, DORIAN | | | $455,000.00 | 34997 | 4447990 |
| 3 | 07/01/1981 | EXECUTORD | Executor Deed | REYNOLDS, PAUL F | NELSON, THOMAS R | | | $6,217.00 | 13460 | 0 |
| 4 | 10/01/1978 | OTHER | Other - Misc. Documents | Unknown | REYNOLDS, PAUL F | | | $3,250.00 | 85030 | 341202 |
Payout Agreement
| No payout information available.. |