Property
Account |
| Property ID: | 278327 | Abbreviated Legal Description: | HHGY 6 LOT 32 BLK 3 |
| Geographic ID: | S7165-06-03032-0 | Agent Code: | |
| Type: | Real | | |
| Tax Area: | 770 - APPRAISER-S Whid Schl Dist, Special District, improved & less than 1 acre | Land Use Code | 11 |
| Open Space: | N | DFL | N |
| Historic Property: | N | Remodel Property: | N |
| Multi-Family Redevelopment: | N | | |
| Township: | | Section: | |
| Range: | |
Location |
| Address: | 5003 CHIPSHOT WAY FREELAND, WA 98249 | Mapsco: | |
| Neighborhood: | Cycle 3 | Map ID: | 287 |
| Neighborhood CD: | 3 |
Owner |
| Name: | KANSKY, KATHLEEN L | Owner ID: | 273248 |
| Mailing Address: | 5003 CHIPSHOT WAY FREELAND, WA 98239 | % Ownership: | 100.0000000000% |
| | | Exemptions: | |
Taxes and Assessment Details
Values
| (+) Improvement Homesite Value: | + | $0 | |
| (+) Improvement Non-Homesite Value: | + | $361,559 | |
| (+) Land Homesite Value: | + | $0 | |
| (+) Land Non-Homesite Value: | + | $285,000 | |
| (+) Curr Use (HS): | + | $0 | $0 |
| (+) Curr Use (NHS): | + | $0 | $0 |
| | | -------------------------- | |
| (=) Market Value: | = | $646,559 | |
| (–) Productivity Loss: | – | $0 | |
| | | -------------------------- | |
| (=) Subtotal: | = | $646,559 | |
| (+) Senior Appraised Value: | + | $0 | |
| (+) Non-Senior Appraised Value: | + | $646,559 | |
| | | -------------------------- | |
| (=) Total Appraised Value: | = | $646,559 | |
| (–) Senior Exemption Loss: | – | $0 | |
| (–) Exemption Loss: | – | $0 | |
| | | -------------------------- | |
| (=) Taxable Value: | = | $646,559 | |
Taxing Jurisdiction
| Owner: | KANSKY, KATHLEEN L | | |
| % Ownership: | 100.0000000000% | | |
| Total Value: | $646,559 | | |
| Tax Area: | 770 - APPRAISER-S Whid Schl Dist, Special District, improved & less than 1 acre |
| CF | Conservation Futures | 0.0316035091 | $646,559 | $646,559 | $20.43 | | |
| FIRE3 | Fire & Rescue Dist #3 S Whidbey GEN | 1.2004855531 | $646,559 | $646,559 | $776.18 | | |
| HOBOND | Hospital BOND | 0.1910887512 | $646,559 | $646,559 | $123.55 | | |
| HOGEN | Hospital GEN | 0.3902502903 | $646,559 | $646,559 | $252.32 | | |
| CE | County Current Expense | 0.3708482477 | $646,559 | $646,559 | $239.78 | | |
| CR | County Roads | 0.4584763726 | $646,559 | $646,559 | $296.43 | | |
| ISLANDEMS | Hospital GEN (EMS) | 0.5000000000 | $646,559 | $646,559 | $323.28 | | |
| LIB | Library Sno-Isle GEN | 0.3153421757 | $646,559 | $646,559 | $203.89 | | |
| PORTWHID | Port of S Whidbey GEN | 0.1094540357 | $646,559 | $646,559 | $70.77 | | |
| SCH206BOND | School 206 BOND | 0.3161759235 | $646,559 | $646,559 | $204.43 | | |
| SCH206MO | School 206 Enrichment | 0.4547169547 | $646,559 | $646,559 | $294.00 | | |
| ST | State School | 1.3035497053 | $646,559 | $646,559 | $842.82 | | |
| ST2 | State School Part 2 | 0.8169543533 | $646,559 | $646,559 | $528.21 | | |
| SWHIDPRBD | P & R S Whidbey BOND | 0.0152817568 | $646,559 | $646,559 | $9.88 | | |
| SWHIDPRBD2 | P & R S Whidbey BOND2 | 0.0138911264 | $646,559 | $646,559 | $8.98 | | |
| SWHIDPRMT | P & R S Whidbey GEN | 0.2053334452 | $646,559 | $646,559 | $132.76 | | |
| | Total Tax Rate: | 6.6934522006 | | | | | |
| | | | | Taxes w/Current Exemptions: | $4,327.71 | | |
| | | | | Taxes w/o Exemptions: | $4,327.71 | | |
Improvement / Building
| Improvement #1: | RESIDENTIAL | State Code: | Y | 1558.0 sqft | Value: | $361,559 |
| Bathrooms: | 2 | Bedrooms: | 3 | | Ceiling: | DRYWALL PAINTED | Cooling: | FHA AND AC | | Exterior Wall/Cover: | CEMENT FIBER | Floor Covering: | HARDWOOD/CARP 60-40 | | Floor Structure: | WOOD W/SUBFLOOR | Foundation: | CONCRETE | | Interior Finish: | DRYWALL PAINT | Plumbing Fixture Cnt: | 10 | | Roof Slope: | 8" IN 12" | Roof Structure/Cover: | CJ ASPHALT |
|
| | Type | Description | Class CD | Sub Class CD | Year Built | Area |
| | BAS | BASE/MAIN FLOOR | 3 | 0 | 2018 | 1558.0 |
| | AGR | ATTACHED GARAGE | 3 | 0 | 2018 | 440.0 |
| | OP4 | OPEN PORCH W/CEILING-ROOF | 3 | 0 | 2018 | 105.0 |
| | OP4 | OPEN PORCH W/CEILING-ROOF | 3 | 0 | 2018 | 352.0 |
Sketch
Property Image
Land
| 1 | 15 | SQ (12001-21780) | 0.3200 | 13939.20 | 0.00 | 0.00 | 1.00 | $285,000 | $0 |
Roll Value History
| 2026 | N/A | N/A | N/A | N/A | N/A |
| 2025 | $361,559 | $285,000 | $0 | $646,559 | $646,559 |
| 2024 | $364,498 | $260,000 | $0 | $624,498 | $624,498 |
| 2023 | $367,438 | $240,000 | $0 | $607,438 | $607,438 |
| 2022 | $335,385 | $200,000 | $0 | $535,385 | $535,385 |
| 2021 | $293,947 | $115,000 | $0 | $408,947 | $408,947 |
| 2020 | $285,959 | $100,000 | $0 | $385,959 | $385,959 |
| 2019 | $212,402 | $170,000 | $0 | $382,402 | $382,402 |
| 2018 | $214,007 | $140,000 | $0 | $354,007 | $354,007 |
| 2017 | $0 | $35,000 | $0 | $35,000 | $35,000 |
| 2016 | $0 | $35,000 | $0 | $35,000 | $35,000 |
| 2015 | $0 | $30,000 | $0 | $30,000 | $30,000 |
| 2014 | $0 | $30,000 | $0 | $30,000 | $30,000 |
| 2013 | $0 | $30,000 | $0 | $30,000 | $30,000 |
| 2012 | $0 | $45,900 | $0 | $45,900 | $45,900 |
| 2011 | $0 | $54,000 | $0 | $54,000 | $54,000 |
| 2010 | $0 | $65,000 | $0 | $65,000 | $65,000 |
| 2009 | $0 | $82,000 | $0 | $82,000 | $82,000 |
| 2008 | $0 | $100,000 | $0 | $100,000 | $100,000 |
| 2007 | $0 | $78,000 | $0 | $78,000 | $78,000 |
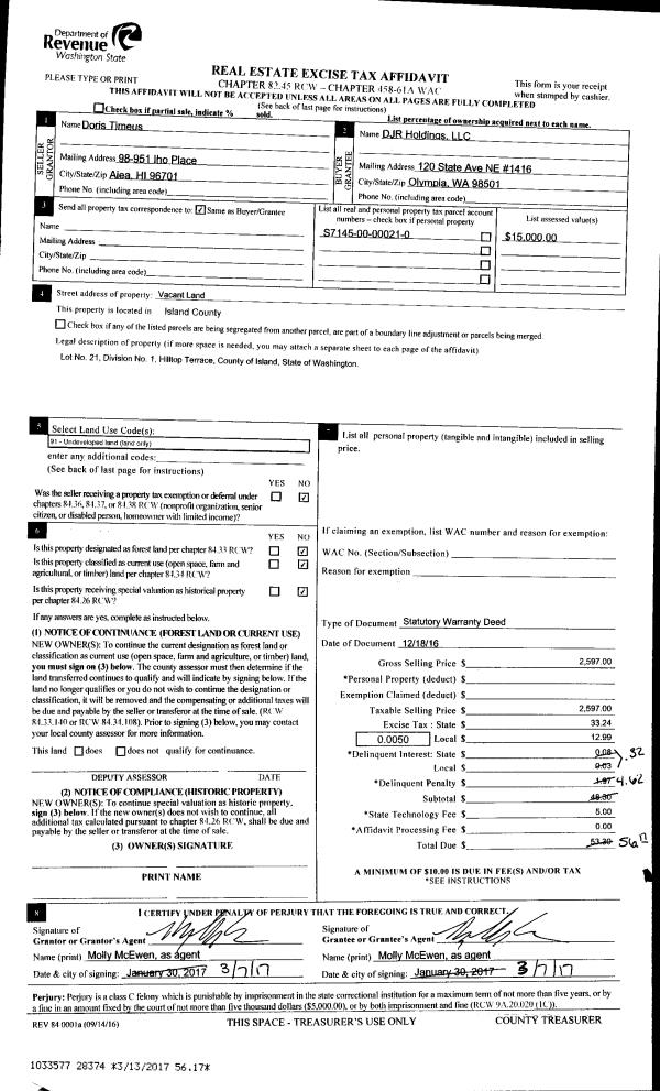
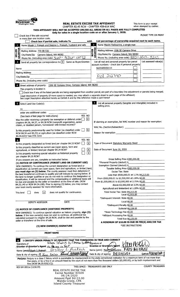
Deed and Sales History
| 1 | 06/16/2022 | WD | Warranty Deed | WILSON, TODD | KANSKY, KATHLEEN L | | | $775,000.00 | 53653 | 4547425 |
| 2 | 03/08/2017 | WD | Warranty Deed | HEZEL, BOB | WILSON, TODD | | | $39,000.00 | 28349 | 4418484 |
| 3 | 06/24/2015 | WD | Warranty Deed | BARRIE, DONALD M | HEZEL, BOB | | | $27,000.00 | 20173 | 4380918 |
| 4 | 03/15/2000 | WD | Warranty Deed | WILCHER, JAMES W | BARRIE, DONALD M | | | $20,850.00 | 1067 | 20005134 |
| 5 | 01/01/1900 | OTHER | Other - Misc. Documents | Unknown | WILCHER, JAMES W | | | $0.00 | 0 | 0 |
Payout Agreement
| 421 | Locked | Annual Payments | | 10/24/2012 3:56:19 PM | Annually | 2 | $0 |