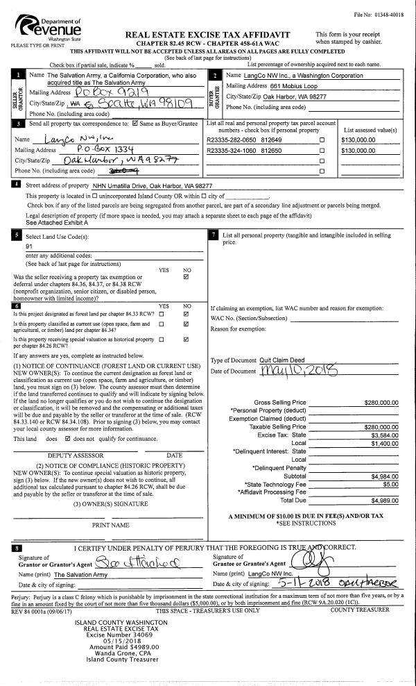
Property
Account |
| Property ID: | 278390 | Abbreviated Legal Description: | HHGY 6 LOT 7 BLK 4 |
| Geographic ID: | S7165-06-04007-0 | Agent Code: | |
| Type: | Real | | |
| Tax Area: | 770 - APPRAISER-S Whid Schl Dist, Special District, improved & less than 1 acre | Land Use Code | 11 |
| Open Space: | N | DFL | N |
| Historic Property: | N | Remodel Property: | N |
| Multi-Family Redevelopment: | N | | |
| Township: | | Section: | |
| Range: | |
Location |
| Address: | 1256 DUNLAP DR FREELAND, WA 98249 | Mapsco: | |
| Neighborhood: | Cycle 3 | Map ID: | 287 |
| Neighborhood CD: | 3 |
Owner |
| Name: | DUNN, SKYE | Owner ID: | 286203 |
| Mailing Address: | 1256 DUNLAP DR FREELAND, WA 98249 | % Ownership: | 100.0000000000% |
| | | Exemptions: | |
Taxes and Assessment Details
Values
| (+) Improvement Homesite Value: | + | $0 | |
| (+) Improvement Non-Homesite Value: | + | $291,555 | |
| (+) Land Homesite Value: | + | $0 | |
| (+) Land Non-Homesite Value: | + | $260,000 | |
| (+) Curr Use (HS): | + | $0 | $0 |
| (+) Curr Use (NHS): | + | $0 | $0 |
| | | -------------------------- | |
| (=) Market Value: | = | $551,555 | |
| (–) Productivity Loss: | – | $0 | |
| | | -------------------------- | |
| (=) Subtotal: | = | $551,555 | |
| (+) Senior Appraised Value: | + | $0 | |
| (+) Non-Senior Appraised Value: | + | $551,555 | |
| | | -------------------------- | |
| (=) Total Appraised Value: | = | $551,555 | |
| (–) Senior Exemption Loss: | – | $0 | |
| (–) Exemption Loss: | – | $0 | |
| | | -------------------------- | |
| (=) Taxable Value: | = | $551,555 | |
Taxing Jurisdiction
| Owner: | DUNN, SKYE | | |
| % Ownership: | 100.0000000000% | | |
| Total Value: | $551,555 | | |
| Tax Area: | 770 - APPRAISER-S Whid Schl Dist, Special District, improved & less than 1 acre |
| CF | Conservation Futures | 0.0316035091 | $551,555 | $551,555 | $17.43 | | |
| FIRE3 | Fire & Rescue Dist #3 S Whidbey GEN | 1.2004855531 | $551,555 | $551,555 | $662.13 | | |
| HOBOND | Hospital BOND | 0.1910887512 | $551,555 | $551,555 | $105.40 | | |
| HOGEN | Hospital GEN | 0.3902502903 | $551,555 | $551,555 | $215.24 | | |
| CE | County Current Expense | 0.3708482477 | $551,555 | $551,555 | $204.54 | | |
| CR | County Roads | 0.4584763726 | $551,555 | $551,555 | $252.87 | | |
| ISLANDEMS | Hospital GEN (EMS) | 0.5000000000 | $551,555 | $551,555 | $275.78 | | |
| LIB | Library Sno-Isle GEN | 0.3153421757 | $551,555 | $551,555 | $173.93 | | |
| PORTWHID | Port of S Whidbey GEN | 0.1094540357 | $551,555 | $551,555 | $60.37 | | |
| SCH206BOND | School 206 BOND | 0.3161759235 | $551,555 | $551,555 | $174.39 | | |
| SCH206MO | School 206 Enrichment | 0.4547169547 | $551,555 | $551,555 | $250.80 | | |
| ST | State School | 1.3035497053 | $551,555 | $551,555 | $718.98 | | |
| ST2 | State School Part 2 | 0.8169543533 | $551,555 | $551,555 | $450.60 | | |
| SWHIDPRBD | P & R S Whidbey BOND | 0.0152817568 | $551,555 | $551,555 | $8.43 | | |
| SWHIDPRBD2 | P & R S Whidbey BOND2 | 0.0138911264 | $551,555 | $551,555 | $7.66 | | |
| SWHIDPRMT | P & R S Whidbey GEN | 0.2053334452 | $551,555 | $551,555 | $113.25 | | |
| | Total Tax Rate: | 6.6934522006 | | | | | |
| | | | | Taxes w/Current Exemptions: | $3,691.80 | | |
| | | | | Taxes w/o Exemptions: | $3,691.80 | | |
Improvement / Building
| Improvement #1: | RESIDENTIAL | State Code: | Y | 1917.0 sqft | Value: | $291,555 |
| Bathrooms: | 2.5 | Bedrooms: | 3 | | Ceiling: | DRYWALL PAINTED | Exterior Wall/Cover: | CEMENT FIBER | | Floor Covering: | CARPET/VINYL 60-40 | Floor Structure: | WOOD W/SUBFLOOR | | Foundation: | CONCRETE | Heating: | FHA GAS | | Interior Finish: | DRYWALL PAINT | Plumbing Fixture Cnt: | 12 | | Roof Slope: | 6" IN 12" | Roof Structure/Cover: | CJ ASPHALT |
|
| | Type | Description | Class CD | Sub Class CD | Year Built | Area |
| | BAS | BASE/MAIN FLOOR | 3 | 0 | 2006 | 816.0 |
| | OP4 | OPEN PORCH W/CEILING-ROOF | 3 | 0 | 2006 | 49.0 |
| | BIG | BUILT IN GARAGE | 3 | 0 | 2006 | 420.0 |
| | UPS | UPPER STORY | 3 | 0 | 2006 | 1101.0 |
| | OWP | OPEN WOOD PORCH W/STEPS | 3 | 0 | 2006 | 120.0 |
Sketch
Property Image
Land
| 1 | 14 | SQ (08001-12000) | 0.2500 | 10890.00 | 0.00 | 0.00 | 1.00 | $260,000 | $0 |
Roll Value History
| 2026 | N/A | N/A | N/A | N/A | N/A |
| 2025 | $291,555 | $260,000 | $0 | $551,555 | $551,555 |
| 2024 | $295,099 | $260,000 | $0 | $555,099 | $555,099 |
| 2023 | $298,645 | $230,000 | $0 | $528,645 | $528,645 |
| 2022 | $273,635 | $200,000 | $0 | $473,635 | $473,635 |
| 2021 | $240,741 | $115,000 | $0 | $355,741 | $355,741 |
| 2020 | $234,357 | $100,000 | $0 | $334,357 | $334,357 |
| 2019 | $175,411 | $170,000 | $0 | $345,411 | $345,411 |
| 2018 | $175,907 | $140,000 | $0 | $315,907 | $315,907 |
| 2017 | $176,899 | $120,000 | $0 | $296,899 | $296,899 |
| 2016 | $178,889 | $75,000 | $0 | $253,889 | $253,889 |
| 2015 | $180,876 | $65,000 | $0 | $245,876 | $245,876 |
| 2014 | $182,864 | $55,000 | $0 | $237,864 | $237,864 |
| 2013 | $188,044 | $45,000 | $0 | $233,044 | $233,044 |
| 2012 | $190,089 | $45,900 | $0 | $235,989 | $235,989 |
| 2011 | $192,132 | $54,000 | $0 | $246,132 | $246,132 |
| 2010 | $205,228 | $65,000 | $0 | $270,228 | $270,228 |
| 2009 | $213,753 | $82,000 | $0 | $295,753 | $295,753 |
| 2008 | $216,033 | $85,000 | $0 | $301,033 | $301,033 |
| 2007 | $216,191 | $78,000 | $0 | $294,191 | $294,191 |
Deed and Sales History
| 1 | 07/24/2018 | WD | Warranty Deed | CRAIN, DAVID W | DUNN, SKYE | | | $339,000.00 | 35196 | 4448847 |
| 2 | 02/04/2010 | WD | Warranty Deed | BISSELL, LAVONE J | CRAIN, DAVID W | | | $246,500.00 | 277 | 4268354 |
| 3 | 12/22/2005 | WD | Warranty Deed | ISLAND CONSTRUCTION INC, | BISSELL, LAVONE J | | | $294,811.00 | 60017 | 4158700 |
| 4 | 03/10/2005 | WD | Warranty Deed | THOMPSON, LARRY | ISLAND CONSTRUCTION INC, | | | $25,000.00 | 50950 | 4128021 |
| 5 | 05/01/1985 | QCD | Quit Claim Deed | TODD, TERRANCE F | THOMPSON, LARRY | | | $0.00 | 60909 | 86004216 |
| 6 | 08/01/1981 | CD | DNU - Correction Deed | SPEER, ELIZABETH T | TODD, TERRANCE F | | | $1.00 | 13489 | 390008 |
| 7 | 02/01/1980 | EXECUTORD | Executor Deed | TODD, T F | SPEER, ELIZABETH T | | | $34,000.00 | 633 | 365539 |
| 8 | 08/01/1979 | EXECUTORD | Executor Deed | THOMPSON, LARRY J | TODD, T F | | | $18,000.00 | 94210 | 357873 |
| 9 | 01/01/1900 | OTHER | Other - Misc. Documents | Unknown | THOMPSON, LARRY J | | | $0.00 | 0 | 0 |
Payout Agreement
| No payout information available.. |