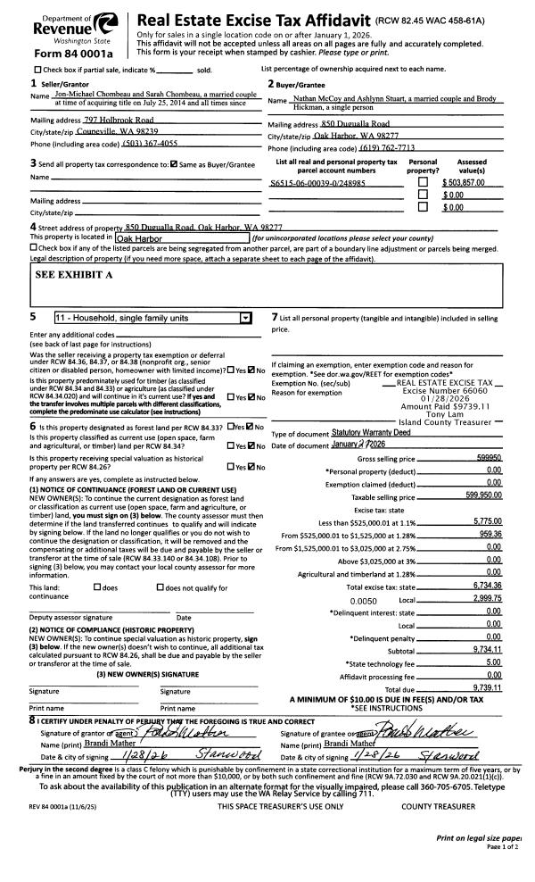
Property
Account |
| Property ID: | 278452 | Abbreviated Legal Description: | HHGY 6 LOT 13 BLK 4 |
| Geographic ID: | S7165-06-04013-0 | Agent Code: | |
| Type: | Real | | |
| Tax Area: | 770 - APPRAISER-S Whid Schl Dist, Special District, improved & less than 1 acre | Land Use Code | 11 |
| Open Space: | N | DFL | N |
| Historic Property: | N | Remodel Property: | N |
| Multi-Family Redevelopment: | N | | |
| Township: | | Section: | |
| Range: | |
Location |
| Address: | 1237 DUNLAP DR FREELAND, WA 98249 | Mapsco: | |
| Neighborhood: | Cycle 3 | Map ID: | 287 |
| Neighborhood CD: | 3 |
Owner |
| Name: | SAINT YVES, RANDALL | Owner ID: | 191674 |
| Mailing Address: | AURORA SAINT YVES 1237 DUNLAP DR FREELAND, WA 98249-9777 | % Ownership: | 100.0000000000% |
| | | Exemptions: | SNR/DSBL |
Taxes and Assessment Details
Values
| (+) Improvement Homesite Value: | + | $356,477 | |
| (+) Improvement Non-Homesite Value: | + | $0 | |
| (+) Land Homesite Value: | + | $285,000 | |
| (+) Land Non-Homesite Value: | + | $0 | |
| (+) Curr Use (HS): | + | $0 | $0 |
| (+) Curr Use (NHS): | + | $0 | $0 |
| | | -------------------------- | |
| (=) Market Value: | = | $641,477 | |
| (–) Productivity Loss: | – | $0 | |
| | | -------------------------- | |
| (=) Subtotal: | = | $641,477 | |
| (+) Senior Appraised Value: | + | $345,607 | |
| (+) Non-Senior Appraised Value: | + | $0 | |
| | | -------------------------- | |
| (=) Total Appraised Value: | = | $345,607 | |
| (–) Senior Exemption Loss: | – | $0 | |
| (–) Exemption Loss: | – | $0 | |
| | | -------------------------- | |
| (=) Taxable Value: | = | $345,607 | |
Taxing Jurisdiction
| Owner: | SAINT YVES, RANDALL | | |
| % Ownership: | 100.0000000000% | | |
| Total Value: | $641,477 | | |
| Tax Area: | 770 - APPRAISER-S Whid Schl Dist, Special District, improved & less than 1 acre |
| CF | Conservation Futures | 0.0316035091 | $641,477 | $345,607 | $10.92 | | |
| FIRE3 | Fire & Rescue Dist #3 S Whidbey GEN | 1.2004855531 | $641,477 | $345,607 | $414.90 | | |
| HOBOND | Hospital BOND | 0.0000000000 | $641,477 | $0 | $0.00 | | |
| HOGEN | Hospital GEN | 0.3902502903 | $641,477 | $345,607 | $134.87 | | |
| CE | County Current Expense | 0.3708482477 | $641,477 | $345,607 | $128.17 | | |
| CR | County Roads | 0.4584763726 | $641,477 | $345,607 | $158.45 | | |
| ISLANDEMS | Hospital GEN (EMS) | 0.5000000000 | $641,477 | $345,607 | $172.80 | | |
| LIB | Library Sno-Isle GEN | 0.3153421757 | $641,477 | $345,607 | $108.98 | | |
| PORTWHID | Port of S Whidbey GEN | 0.1094540357 | $641,477 | $345,607 | $37.83 | | |
| SCH206BOND | School 206 BOND | 0.3161759235 | $641,477 | $345,607 | $109.27 | | |
| SCH206MO | School 206 Enrichment | 0.0000000000 | $641,477 | $0 | $0.00 | | |
| ST | State School | 1.3035497053 | $641,477 | $345,607 | $450.52 | | |
| ST2 | State School Part 2 | 0.0000000000 | $641,477 | $0 | $0.00 | | |
| SWHIDPRBD | P & R S Whidbey BOND | 0.0000000000 | $641,477 | $0 | $0.00 | | |
| SWHIDPRBD2 | P & R S Whidbey BOND2 | 0.0000000000 | $641,477 | $0 | $0.00 | | |
| SWHIDPRMT | P & R S Whidbey GEN | 0.2053334452 | $641,477 | $345,607 | $70.96 | | |
| | Total Tax Rate: | 5.2015192582 | | | | | |
| | | | | Taxes w/Current Exemptions: | $1,797.67 | | |
| | | | | Taxes w/o Exemptions: | $4,293.69 | | |
Improvement / Building
| Improvement #1: | RESIDENTIAL | State Code: | Y | 1562.0 sqft | Value: | $356,477 |
| Bathrooms: | 2.5 | Bedrooms: | 1 | | Ceiling: | DRYWALL PAINTED | Exterior Wall/Cover: | CEMENT FIBER | | Floor Covering: | CERAMIC TILE/CPT 40-60 | Floor Structure: | WOOD W/SUBFLOOR | | Foundation: | CONCRETE | Heating: | FHA GAS | | Interior Finish: | DRYWALL PAINT | Plumbing Fixture Cnt: | 12 | | Roof Slope: | 6" IN 12" | Roof Structure/Cover: | CJ ASPHALT |
|
| | Type | Description | Class CD | Sub Class CD | Year Built | Area |
| | BAS | BASE/MAIN FLOOR | 3 | 0 | 2004 | 1058.0 |
| | OP4 | OPEN PORCH W/CEILING-ROOF | 3 | 0 | 2004 | 36.0 |
| | DGR | DETACHED GARAGE | 3 | 0 | 2004 | 720.0 |
| | AGR | ATTACHED GARAGE | 3 | 0 | 2004 | 612.0 |
| | OWP | OPEN WOOD PORCH W/STEPS | 3 | 0 | 2004 | 74.0 |
| | OWC | OPEN WOOD PORCH W/STEPS/ROOF/C | 3 | 0 | 2004 | 50.0 |
| | UPH | HALF STORY | 3 | 0 | 2004 | 504.0 |
Sketch
Property Image
Land
| 1 | 15 | SQ (12001-21780) | 0.2700 | 11761.20 | 0.00 | 0.00 | 1.00 | $285,000 | $0 |
Roll Value History
| 2026 | N/A | N/A | N/A | N/A | N/A |
| 2025 | $356,477 | $285,000 | $0 | $641,477 | $345,607 |
| 2024 | $360,758 | $260,000 | $0 | $620,758 | $345,607 |
| 2023 | $365,040 | $240,000 | $0 | $605,040 | $345,607 |
| 2022 | $334,419 | $200,000 | $0 | $534,419 | $345,607 |
| 2021 | $294,175 | $115,000 | $0 | $409,175 | $345,607 |
| 2020 | $286,010 | $100,000 | $0 | $386,010 | $345,607 |
| 2019 | $205,025 | $170,000 | $0 | $375,025 | $345,607 |
| 2018 | $205,607 | $140,000 | $0 | $345,607 | $345,607 |
| 2017 | $206,768 | $120,000 | $0 | $326,768 | $326,768 |
| 2016 | $209,091 | $75,000 | $0 | $284,091 | $284,091 |
| 2015 | $211,413 | $65,000 | $0 | $276,413 | $276,413 |
| 2014 | $213,737 | $55,000 | $0 | $268,737 | $268,737 |
| 2013 | $226,935 | $45,000 | $0 | $271,935 | $271,935 |
| 2012 | $229,358 | $45,900 | $0 | $275,258 | $275,258 |
| 2011 | $231,783 | $54,000 | $0 | $285,783 | $285,783 |
| 2010 | $236,398 | $65,000 | $0 | $301,398 | $301,398 |
| 2009 | $248,899 | $82,000 | $0 | $330,899 | $330,899 |
| 2008 | $250,871 | $83,624 | $0 | $334,494 | $334,494 |
| 2007 | $234,900 | $78,000 | $0 | $312,900 | $312,900 |
Deed and Sales History
| 1 | 12/09/2003 | WD | Warranty Deed | COOK, CHARLES A | SAINT YVES, RANDALL | | | $191,500.00 | 35533 | 4085454 |
| 2 | 03/20/2003 | WD | Warranty Deed | HOLMES, HARBOR H | COOK, CHARLES A | | | $13,888.00 | 31227 | 4052479 |
| 3 | 12/01/1995 | WD | Warranty Deed | HOLMES, HARBOR A | HOLMES, HARBOR H | | | $0.00 | 54314 | 95019942 |
| 4 | 12/01/1993 | QCD | Quit Claim Deed | GOLF, NORTHWEST I | HOLMES, HARBOR A | | | $14,600.00 | 34907 | 93025644 |
| 5 | 11/01/1990 | WD | Warranty Deed | ADAMS, & C | GOLF, NORTHWEST I | | | $6,963.00 | 6305 | 90021776 |
| 6 | 06/01/1988 | WD | Warranty Deed | TODD, LEISURE L | ADAMS, & C | | | $6,465.00 | 81703 | 88006371 |
| 7 | 12/01/1982 | OTHER | Other - Misc. Documents | FIRST, REALTY I | TODD, LEISURE L | | | $0.00 | 23090 | 404099 |
| 8 | 01/01/1900 | OTHER | Other - Misc. Documents | Unknown | FIRST, REALTY I | | | $0.00 | 0 | 0 |
Payout Agreement
| No payout information available.. |