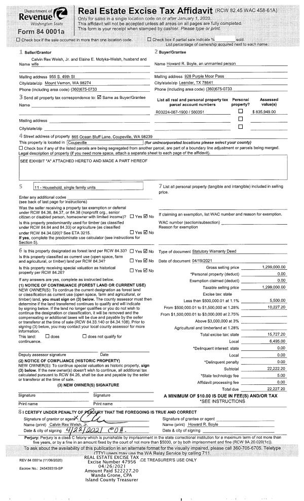
Property
Account |
| Property ID: | 2785 | Abbreviated Legal Description: | IN GL1 & 2: BG SECR J CROCKETT DLC N61*E1485' N2*E646.9' N2*E843.1' N88*W 490' S2*W430' N88*W140' N24*W242.83' S66*E593' N25*E40' S87*E150' TPB TGW CONSERVATION EZ AF#4434013 |
| Geographic ID: | R13103-045-1700 | Agent Code: | |
| Type: | Real | | |
| Tax Area: | 312 - APPRAISER-Cpvl Schl Dist, outside Cpvl, improved, greater than 1 acre | Land Use Code | 11 |
| Open Space: | N | DFL | N |
| Historic Property: | N | Remodel Property: | N |
| Multi-Family Redevelopment: | N | | |
| Township: | 31 | Section: | 03 |
| Range: | R1 |
Location |
| Address: | 1066 BURCHELL RD COUPEVILLE, WA 98239 | Mapsco: | |
| Neighborhood: | Cycle 2 | Map ID: | 25 |
| Neighborhood CD: | 2 |
Owner |
| Name: | WILSON, JERRY T | Owner ID: | 297312 |
| Mailing Address: | NANCY V WILSON 1066 BURCHELL ROAD COUPEVILLE, WA 98239 | % Ownership: | 100.0000000000% |
| | | Exemptions: | |
Taxes and Assessment Details
Values
| (+) Improvement Homesite Value: | + | $0 | |
| (+) Improvement Non-Homesite Value: | + | $273,956 | |
| (+) Land Homesite Value: | + | $0 | |
| (+) Land Non-Homesite Value: | + | $415,619 | |
| (+) Curr Use (HS): | + | $0 | $0 |
| (+) Curr Use (NHS): | + | $0 | $0 |
| | | -------------------------- | |
| (=) Market Value: | = | $689,575 | |
| (–) Productivity Loss: | – | $0 | |
| | | -------------------------- | |
| (=) Subtotal: | = | $689,575 | |
| (+) Senior Appraised Value: | + | $0 | |
| (+) Non-Senior Appraised Value: | + | $689,575 | |
| | | -------------------------- | |
| (=) Total Appraised Value: | = | $689,575 | |
| (–) Senior Exemption Loss: | – | $0 | |
| (–) Exemption Loss: | – | $0 | |
| | | -------------------------- | |
| (=) Taxable Value: | = | $689,575 | |
Taxing Jurisdiction
| Owner: | WILSON, JERRY T | | |
| % Ownership: | 100.0000000000% | | |
| Total Value: | $689,575 | | |
| Tax Area: | 312 - APPRAISER-Cpvl Schl Dist, outside Cpvl, improved, greater than 1 acre |
| CF | Conservation Futures | 0.0316035091 | $689,575 | $689,575 | $21.79 | | |
| CEM2 | Cemetery #2 | 0.0095056933 | $689,575 | $689,575 | $6.55 | | |
| FIRE5 | Fire & Rescue Dist #5 C Whidbey GEN | 1.2008080668 | $689,575 | $689,575 | $828.05 | | |
| FIRE5BOND | Fire & Rescue Dist #5 C Whidbey BOND | 0.1400090713 | $689,575 | $689,575 | $96.55 | | |
| HOBOND | Hospital BOND | 0.1910887512 | $689,575 | $689,575 | $131.77 | | |
| HOGEN | Hospital GEN | 0.3902502903 | $689,575 | $689,575 | $269.11 | | |
| CE | County Current Expense | 0.3708482477 | $689,575 | $689,575 | $255.73 | | |
| CR | County Roads | 0.4584763726 | $689,575 | $689,575 | $316.15 | | |
| ISLANDEMS | Hospital GEN (EMS) | 0.5000000000 | $689,575 | $689,575 | $344.79 | | |
| LIB | Library Sno-Isle GEN | 0.3153421757 | $689,575 | $689,575 | $217.45 | | |
| LIBCAP | Library Sno-Isle BOND (Cap Fac Imp Area) | 0.0543427938 | $689,575 | $689,575 | $37.47 | | |
| POCOUP | Port of Coupeville GEN | 0.1093371703 | $689,575 | $689,575 | $75.40 | | |
| POCOUPIDD | Port of Coupeville IDD | 0.3409740022 | $689,575 | $689,575 | $235.13 | | |
| COUPSDTECH | School 204 CP (TECH) | 0.7545480007 | $689,575 | $689,575 | $520.32 | | |
| SCH204MO | School 204 Enrichment | 0.6716186034 | $689,575 | $689,575 | $463.13 | | |
| ST | State School | 1.3035497053 | $689,575 | $689,575 | $898.90 | | |
| ST2 | State School Part 2 | 0.8169543533 | $689,575 | $689,575 | $563.35 | | |
| | Total Tax Rate: | 7.6592568070 | | | | | |
| | | | | Taxes w/Current Exemptions: | $5,281.64 | | |
| | | | | Taxes w/o Exemptions: | $5,281.64 | | |
Improvement / Building
| Improvement #1: | RESIDENTIAL | State Code: | Y | 1921.0 sqft | Value: | $273,956 |
| Bathrooms: | 2.5 | Bedrooms: | 4 | | Ceiling: | DRYWALL PAINTED | Cooling: | HEAT PUMP/CONV/V | | Exterior Wall/Cover: | CEMENT FIBER | Floor Covering: | HARDWOOD/CARP 60-40 | | Floor Structure: | WOOD W/SUBFLOOR | Foundation: | CONCRETE | | Interior Finish: | DRYWALL PAINT | Plumbing Fixture Cnt: | 9 | | Roof Slope: | 5" IN 12" | Roof Structure/Cover: | CJ ASPHALT |
|
| | Type | Description | Class CD | Sub Class CD | Year Built | Area |
| | BAS | BASE/MAIN FLOOR | 3 | 0 | 1952 | 1421.0 |
| | OP2 | OPEN PORCH W/STEPS | 3 | 0 | 1952 | 48.0 |
| | OP4 | OPEN PORCH W/CEILING-ROOF | 3 | 0 | 1952 | 200.0 |
| | BIG | BUILT IN GARAGE | 3 | 0 | 1952 | 500.0 |
| | UTY | STORAGE/UTILITY | 3 | 0 | 1952 | 384.0 |
| | UPS | UPPER STORY | 3 | 0 | 1952 | 500.0 |
Sketch
Property Image
Land
| 1 | 91 | UNDEVELOPED LAND-METES AND BOUNDS | 9.4400 | 411206.40 | 0.00 | 0.00 | 1.00 | $75,619 | $0 |
| 2 | HS | HOMESITE | 1.0000 | 43560.00 | 0.00 | 0.00 | 1.00 | $340,000 | $0 |
Roll Value History
| 2026 | N/A | N/A | N/A | N/A | N/A |
| 2025 | $273,956 | $415,619 | $0 | $689,575 | $689,575 |
| 2024 | $265,569 | $390,000 | $0 | $655,569 | $655,569 |
| 2023 | $269,458 | $370,000 | $0 | $639,458 | $639,458 |
| 2022 | $247,532 | $350,000 | $0 | $597,532 | $597,532 |
| 2021 | $218,304 | $285,000 | $0 | $503,304 | $503,304 |
| 2020 | $210,706 | $285,000 | $0 | $495,706 | $495,706 |
| 2019 | $160,111 | $350,000 | $0 | $510,111 | $510,111 |
| 2018 | $109,275 | $280,000 | $0 | $389,275 | $389,275 |
| 2017 | $88,998 | $220,000 | $0 | $308,998 | $308,998 |
| 2016 | $91,054 | $200,000 | $0 | $291,054 | $291,054 |
| 2015 | $93,110 | $187,920 | $0 | $281,030 | $281,030 |
| 2014 | $95,165 | $187,920 | $0 | $283,085 | $283,085 |
| 2013 | $97,223 | $187,920 | $0 | $285,143 | $285,143 |
| 2012 | $99,279 | $187,920 | $0 | $287,199 | $287,199 |
| 2011 | $101,335 | $208,800 | $0 | $310,135 | $310,135 |
| 2010 | $116,108 | $208,800 | $0 | $324,908 | $324,908 |
| 2009 | $121,521 | $334,080 | $0 | $455,601 | $455,601 |
| 2008 | $123,590 | $334,080 | $0 | $457,670 | $457,670 |
| 2007 | $125,659 | $334,080 | $0 | $459,739 | $459,739 |
Deed and Sales History
| 1 | 12/10/2020 | WD | Warranty Deed | HICKS TRUSTEE, KEITH R | WILSON, JERRY T | | | $525,000.00 | 46122 | 4505219 |
| 2 | 04/11/2016 | QCD | Quit Claim Deed | HICKS, LIDABETH | HICKS TRUSTEE, KEITH R | | | $0.00 | 24156 | 4398684 |
| 3 | 06/01/1993 | QCD | Quit Claim Deed | HICKS, LIDABETH | HICKS, LIDABETH & | | | $0.00 | 32720 | 93014125 |
| 4 | 05/01/1990 | OTHER | Other - Misc. Documents | HOPKINS, JOHN C | HICKS, LIDABETH | | | $0.00 | 63652 | 0 |
| 5 | 09/01/1978 | OTHER | Other - Misc. Documents | Unknown | HOPKINS, JOHN C | | | $8,000.00 | 85923 | 339028 |
Payout Agreement
| No payout information available.. |