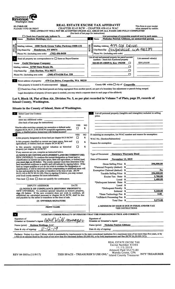
Property
Account |
| Property ID: | 278755 | Abbreviated Legal Description: | HHGY 7 LOT 15 BLK 2 |
| Geographic ID: | S7165-07-02015-0 | Agent Code: | |
| Type: | Real | | |
| Tax Area: | 770 - APPRAISER-S Whid Schl Dist, Special District, improved & less than 1 acre | Land Use Code | 11 |
| Open Space: | N | DFL | N |
| Historic Property: | N | Remodel Property: | N |
| Multi-Family Redevelopment: | N | | |
| Township: | | Section: | |
| Range: | |
Location |
| Address: | 1308 BACKSWING LN FREELAND, WA 98249 | Mapsco: | |
| Neighborhood: | Cycle 3 | Map ID: | 290 |
| Neighborhood CD: | 3 |
Owner |
| Name: | STACIE, MICHAEL OWEN | Owner ID: | 308221 |
| Mailing Address: | RENEE YVONNE BAGBY 1308 BACKSWING LN FREELAND, WA 98249 | % Ownership: | 100.0000000000% |
| | | Exemptions: | |
Taxes and Assessment Details
Values
| (+) Improvement Homesite Value: | + | $0 | |
| (+) Improvement Non-Homesite Value: | + | $432,245 | |
| (+) Land Homesite Value: | + | $0 | |
| (+) Land Non-Homesite Value: | + | $285,000 | |
| (+) Curr Use (HS): | + | $0 | $0 |
| (+) Curr Use (NHS): | + | $0 | $0 |
| | | -------------------------- | |
| (=) Market Value: | = | $717,245 | |
| (–) Productivity Loss: | – | $0 | |
| | | -------------------------- | |
| (=) Subtotal: | = | $717,245 | |
| (+) Senior Appraised Value: | + | $0 | |
| (+) Non-Senior Appraised Value: | + | $717,245 | |
| | | -------------------------- | |
| (=) Total Appraised Value: | = | $717,245 | |
| (–) Senior Exemption Loss: | – | $0 | |
| (–) Exemption Loss: | – | $0 | |
| | | -------------------------- | |
| (=) Taxable Value: | = | $717,245 | |
Taxing Jurisdiction
| Owner: | STACIE, MICHAEL OWEN | | |
| % Ownership: | 100.0000000000% | | |
| Total Value: | $717,245 | | |
| Tax Area: | 770 - APPRAISER-S Whid Schl Dist, Special District, improved & less than 1 acre |
| CF | Conservation Futures | 0.0316035091 | $717,245 | $717,245 | $22.67 | | |
| FIRE3 | Fire & Rescue Dist #3 S Whidbey GEN | 1.2004855531 | $717,245 | $717,245 | $861.04 | | |
| HOBOND | Hospital BOND | 0.1910887512 | $717,245 | $717,245 | $137.06 | | |
| HOGEN | Hospital GEN | 0.3902502903 | $717,245 | $717,245 | $279.91 | | |
| CE | County Current Expense | 0.3708482477 | $717,245 | $717,245 | $265.99 | | |
| CR | County Roads | 0.4584763726 | $717,245 | $717,245 | $328.84 | | |
| ISLANDEMS | Hospital GEN (EMS) | 0.5000000000 | $717,245 | $717,245 | $358.62 | | |
| LIB | Library Sno-Isle GEN | 0.3153421757 | $717,245 | $717,245 | $226.18 | | |
| PORTWHID | Port of S Whidbey GEN | 0.1094540357 | $717,245 | $717,245 | $78.51 | | |
| SCH206BOND | School 206 BOND | 0.3161759235 | $717,245 | $717,245 | $226.78 | | |
| SCH206MO | School 206 Enrichment | 0.4547169547 | $717,245 | $717,245 | $326.14 | | |
| ST | State School | 1.3035497053 | $717,245 | $717,245 | $934.96 | | |
| ST2 | State School Part 2 | 0.8169543533 | $717,245 | $717,245 | $585.96 | | |
| SWHIDPRBD | P & R S Whidbey BOND | 0.0152817568 | $717,245 | $717,245 | $10.96 | | |
| SWHIDPRBD2 | P & R S Whidbey BOND2 | 0.0138911264 | $717,245 | $717,245 | $9.96 | | |
| SWHIDPRMT | P & R S Whidbey GEN | 0.2053334452 | $717,245 | $717,245 | $147.27 | | |
| | Total Tax Rate: | 6.6934522006 | | | | | |
| | | | | Taxes w/Current Exemptions: | $4,800.85 | | |
| | | | | Taxes w/o Exemptions: | $4,800.85 | | |
Improvement / Building
| Improvement #1: | RESIDENTIAL | State Code: | Y | 2173.6 sqft | Value: | $432,245 |
| Bathrooms: | 2.5 | Bedrooms: | 4 | | Ceiling: | DRYWALL PAINTED | Exterior Wall/Cover: | CEMENT FIBER | | Floor Covering: | HARDWOOD/CARP 60-40 | Floor Structure: | WOOD W/SUBFLOOR | | Foundation: | CONCRETE | Heating: | FHA GAS | | Interior Finish: | DRYWALL PAINT | Plumbing Fixture Cnt: | 14 | | Roof Slope: | 5" IN 12" | Roof Structure/Cover: | CJ ASPHALT |
|
| | Type | Description | Class CD | Sub Class CD | Year Built | Area |
| | BAS | BASE/MAIN FLOOR | 4 | 0 | 2007 | 872.8 |
| | OP4 | OPEN PORCH W/CEILING-ROOF | 4 | 0 | 2007 | 77.0 |
| | BIG | BUILT IN GARAGE | 4 | 0 | 2007 | 484.0 |
| | UPS | UPPER STORY | 4 | 0 | 2007 | 1300.8 |
| | OWP | OPEN WOOD PORCH W/STEPS | 4 | 0 | 2007 | 89.2 |
| | OWP | OPEN WOOD PORCH W/STEPS | 4 | 0 | 2007 | 339.2 |
Sketch
Property Image
Land
| 1 | 13 | SQ (06001-08000) | 0.1700 | 7405.20 | 0.00 | 0.00 | 1.00 | $285,000 | $0 |
Roll Value History
| 2026 | N/A | N/A | N/A | N/A | N/A |
| 2025 | $432,245 | $285,000 | $0 | $717,245 | $717,245 |
| 2024 | $437,316 | $260,000 | $0 | $697,316 | $697,316 |
| 2023 | $442,386 | $240,000 | $0 | $682,386 | $682,386 |
| 2022 | $405,183 | $200,000 | $0 | $605,183 | $605,183 |
| 2021 | $356,328 | $115,000 | $0 | $471,328 | $471,328 |
| 2020 | $345,686 | $100,000 | $0 | $445,686 | $445,686 |
| 2019 | $255,329 | $170,000 | $0 | $425,329 | $425,329 |
| 2018 | $256,029 | $140,000 | $0 | $396,029 | $396,029 |
| 2017 | $221,568 | $120,000 | $0 | $341,568 | $341,568 |
| 2016 | $224,027 | $85,000 | $0 | $309,027 | $309,027 |
| 2015 | $226,489 | $85,000 | $0 | $311,489 | $311,489 |
| 2014 | $228,951 | $65,000 | $0 | $293,951 | $293,951 |
| 2013 | $256,008 | $65,000 | $0 | $321,008 | $321,008 |
| 2012 | $258,762 | $65,000 | $0 | $323,762 | $323,762 |
| 2011 | $261,514 | $54,000 | $0 | $315,514 | $315,514 |
| 2010 | $268,603 | $65,000 | $0 | $333,603 | $333,603 |
| 2009 | $279,708 | $82,000 | $0 | $361,708 | $361,708 |
| 2008 | $279,853 | $100,000 | $0 | $379,853 | $379,853 |
| 2007 | $287,930 | $125,000 | $0 | $412,930 | $412,930 |
Deed and Sales History
| 1 | 03/31/2023 | WD | Warranty Deed | SALAZAR, WAYNE A | STACIE, MICHAEL OWEN | | | $655,000.00 | 56339 | 4558551 |
| 2 | 08/01/2017 | WD | Warranty Deed | BREWER, WILLIAM S | SALAZAR, WAYNE A | | | $400,000.00 | 30482 | 4427519 |
| 3 | 06/02/2009 | WD | Warranty Deed | GRANVILLE HOMES INC, | BREWER, WILLIAM S | | | $330,000.00 | 91223 | 4252987 |
| 4 | 07/29/2005 | WD | Warranty Deed | COUPE, J THOMAS | GRANVILLE HOMES INC, | | | $72,500.00 | 53695 | 4142653 |
| 5 | 01/01/1900 | OTHER | Other - Misc. Documents | Unknown | COUPE, J THOMAS | | | $0.00 | 0 | 0 |
Payout Agreement
| No payout information available.. |