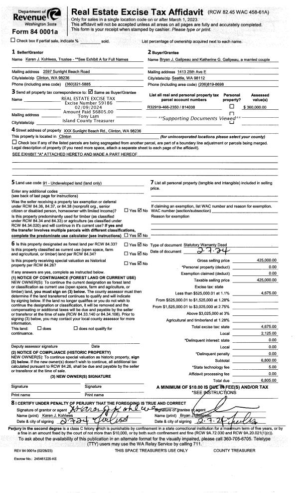
Property
Account |
| Property ID: | 279549 | Abbreviated Legal Description: | HHGY 8 S150.46' OF TR D MEAS ALG WLN & PARA/W SLN TR D |
| Geographic ID: | S7165-08-0000D-2 | Agent Code: | |
| Type: | Real | | |
| Tax Area: | 770 - APPRAISER-S Whid Schl Dist, Special District, improved & less than 1 acre | Land Use Code | 74 |
| Open Space: | N | DFL | N |
| Historic Property: | N | Remodel Property: | N |
| Multi-Family Redevelopment: | N | | |
| Township: | | Section: | |
| Range: | |
Location |
| Address: | 4998 ANTELOPE DR FREELAND, WA 98249 | Mapsco: | |
| Neighborhood: | 32cRR-honeymoon b | Map ID: | 289 |
| Neighborhood CD: | 32cRRhonba |
Owner |
| Name: | HOLMES HARBOR SEWER DISTRICT | Owner ID: | 311397 |
| Mailing Address: | 4998 ANTELOPE DR FREELAND, WA 98249 | % Ownership: | 100.0000000000% |
| | | Exemptions: | |
Taxes and Assessment Details
Values
| (+) Improvement Homesite Value: | + | $0 | |
| (+) Improvement Non-Homesite Value: | + | $65,657 | |
| (+) Land Homesite Value: | + | $0 | |
| (+) Land Non-Homesite Value: | + | $110,000 | |
| (+) Curr Use (HS): | + | $0 | $0 |
| (+) Curr Use (NHS): | + | $0 | $0 |
| | | -------------------------- | |
| (=) Market Value: | = | $175,657 | |
| (–) Productivity Loss: | – | $0 | |
| | | -------------------------- | |
| (=) Subtotal: | = | $175,657 | |
| (+) Senior Appraised Value: | + | $0 | |
| (+) Non-Senior Appraised Value: | + | $175,657 | |
| | | -------------------------- | |
| (=) Total Appraised Value: | = | $175,657 | |
| (–) Senior Exemption Loss: | – | $0 | |
| (–) Exemption Loss: | – | $0 | |
| | | -------------------------- | |
| (=) Taxable Value: | = | $175,657 | |
Taxing Jurisdiction
| Owner: | HOLMES HARBOR SEWER DISTRICT | | |
| % Ownership: | 100.0000000000% | | |
| Total Value: | $175,657 | | |
| Tax Area: | 770 - APPRAISER-S Whid Schl Dist, Special District, improved & less than 1 acre |
| CF | Conservation Futures | 0.0316035091 | $175,657 | $175,657 | $5.55 | | |
| FIRE3 | Fire & Rescue Dist #3 S Whidbey GEN | 1.2004855531 | $175,657 | $175,657 | $210.87 | | |
| HOBOND | Hospital BOND | 0.1910887512 | $175,657 | $175,657 | $33.57 | | |
| HOGEN | Hospital GEN | 0.3902502903 | $175,657 | $175,657 | $68.55 | | |
| CE | County Current Expense | 0.3708482477 | $175,657 | $175,657 | $65.14 | | |
| CR | County Roads | 0.4584763726 | $175,657 | $175,657 | $80.53 | | |
| ISLANDEMS | Hospital GEN (EMS) | 0.5000000000 | $175,657 | $175,657 | $87.83 | | |
| LIB | Library Sno-Isle GEN | 0.3153421757 | $175,657 | $175,657 | $55.39 | | |
| PORTWHID | Port of S Whidbey GEN | 0.1094540357 | $175,657 | $175,657 | $19.23 | | |
| SCH206BOND | School 206 BOND | 0.3161759235 | $175,657 | $175,657 | $55.54 | | |
| SCH206MO | School 206 Enrichment | 0.4547169547 | $175,657 | $175,657 | $79.87 | | |
| ST | State School | 1.3035497053 | $175,657 | $175,657 | $228.98 | | |
| ST2 | State School Part 2 | 0.8169543533 | $175,657 | $175,657 | $143.50 | | |
| SWHIDPRBD | P & R S Whidbey BOND | 0.0152817568 | $175,657 | $175,657 | $2.68 | | |
| SWHIDPRBD2 | P & R S Whidbey BOND2 | 0.0138911264 | $175,657 | $175,657 | $2.44 | | |
| SWHIDPRMT | P & R S Whidbey GEN | 0.2053334452 | $175,657 | $175,657 | $36.07 | | |
| | Total Tax Rate: | 6.6934522006 | | | | | |
| | | | | Taxes w/Current Exemptions: | $1,175.74 | | |
| | | | | Taxes w/o Exemptions: | $1,175.74 | | |
Improvement / Building
| Improvement #1: | MISC | State Code: | F1 | 960.0 sqft | Value: | $65,657 |
| Bathrooms: | 0 | Bedrooms: | 0 | | Ceiling: | DRYWALL PAINTED | Exterior Wall/Cover: | PLYWOOD/WOOD FRAME | | Floor Covering: | CONCRETE SEALER | Floor Structure: | CONCRETE ON GROUND | | Foundation: | SLAB | Heating: | SPACE HEATERS | | Interior Finish: | SERVICE GARAGE | Plumbing Fixture Cnt: | 1 | | Roof Structure/Cover: | COMP OPEN WOOD |   |   |
|
| | Type | Description | Class CD | Sub Class CD | Year Built | Area |
| | BAS | BASE/MAIN FLOOR | 1 | 0 | 1958 | 960.0 |
| | OCP | OPEN CARPORT | 1 | 0 | 1958 | 1080.0 |
| | CPD | OPEN CARPORT DIRT FLOOR | 1 | 0 | 1958 | 800.0 |
Sketch
Property Image
Land
| 1 | 72 | INDUSTRIAL STORAGE | 0.9300 | 40510.80 | 0.00 | 0.00 | 1.00 | $110,000 | $0 |
Roll Value History
| 2026 | N/A | N/A | N/A | N/A | N/A |
| 2025 | $65,657 | $110,000 | $0 | $175,657 | $175,657 |
| 2024 | $66,846 | $80,000 | $0 | $146,846 | $146,846 |
| 2023 | $68,034 | $70,000 | $0 | $138,034 | $138,034 |
| 2022 | $62,688 | $30,000 | $0 | $92,688 | $92,688 |
| 2021 | $55,444 | $30,000 | $0 | $85,444 | $85,444 |
| 2020 | $54,722 | $30,000 | $0 | $84,722 | $84,722 |
| 2019 | $23,290 | $30,000 | $0 | $53,290 | $53,290 |
| 2018 | $23,419 | $30,000 | $0 | $53,419 | $53,419 |
| 2017 | $23,676 | $30,000 | $0 | $53,676 | $53,676 |
| 2016 | $24,190 | $30,000 | $0 | $54,190 | $54,190 |
| 2015 | $24,705 | $30,159 | $0 | $54,864 | $54,864 |
| 2014 | $25,220 | $30,159 | $0 | $55,379 | $55,379 |
| 2013 | $8,097 | $30,159 | $0 | $38,256 | $38,256 |
| 2012 | $8,097 | $30,159 | $0 | $38,256 | $38,256 |
| 2011 | $8,097 | $30,159 | $0 | $38,256 | $38,256 |
| 2010 | $19,290 | $60,319 | $0 | $79,609 | $79,609 |
| 2009 | $19,290 | $84,970 | $0 | $104,260 | $104,260 |
| 2008 | $19,290 | $84,970 | $0 | $104,260 | $104,260 |
| 2007 | $21,433 | $55,550 | $0 | $76,983 | $76,983 |
Deed and Sales History
| 1 | 09/12/2023 | WD | Warranty Deed | ONYXX CAPITAL 1 LLC | HOLMES HARBOR SEWER DISTRICT | | | $0.00 | 57992 | 4564768 |
| 2 | 06/28/2011 | QCD | Quit Claim Deed | HOLMES HARBOR COMM PARTNERS LLC | ONYXX CAPITAL 1 LLC | | | $79,609.00 | 4860 | 4297493 |
| 3 | 10/21/2004 | BLA | DNU - Boundary Line Adjustment | HOLMES, HARBOR A | HOLMES HARBOR ASSOC LP, | | | $0.00 | 70381 | 4058547 |
| 4 | 07/02/2003 | WD | Warranty Deed | HOLMES HARBOR ASSOC LP, | HOLMES HARBOR COMM PARTNERS LL | | | $19,491.00 | 32891 | 4065424 |
| 5 | 12/01/1993 | QCD | Quit Claim Deed | GOLF, NORTHWEST I | HOLMES, HARBOR A | | | $12,272.00 | 34907 | 93025644 |
| 6 | 11/01/1990 | WD | Warranty Deed | ADAMS, & C | GOLF, NORTHWEST I | | | $21,754.00 | 6305 | 90021776 |
| 7 | 06/01/1988 | WD | Warranty Deed | TODD, SAILBOAT & | ADAMS, & C | | | $12,460.00 | 81703 | 88006371 |
| 8 | 09/01/1979 | TRUSTEED | Trustee's Deed | HOLMES, HARBOR P | TODD, SAILBOAT & | | | $0.00 | 94499 | 358597 |
| 9 | 01/01/1900 | OTHER | Other - Misc. Documents | Unknown | HOLMES, HARBOR P | | | $0.00 | 0 | 0 |
Payout Agreement
| No payout information available.. |