Property
Account |
| Property ID: | 279647 | Abbreviated Legal Description: | HHGY 8 LOT 4 BLK 2 |
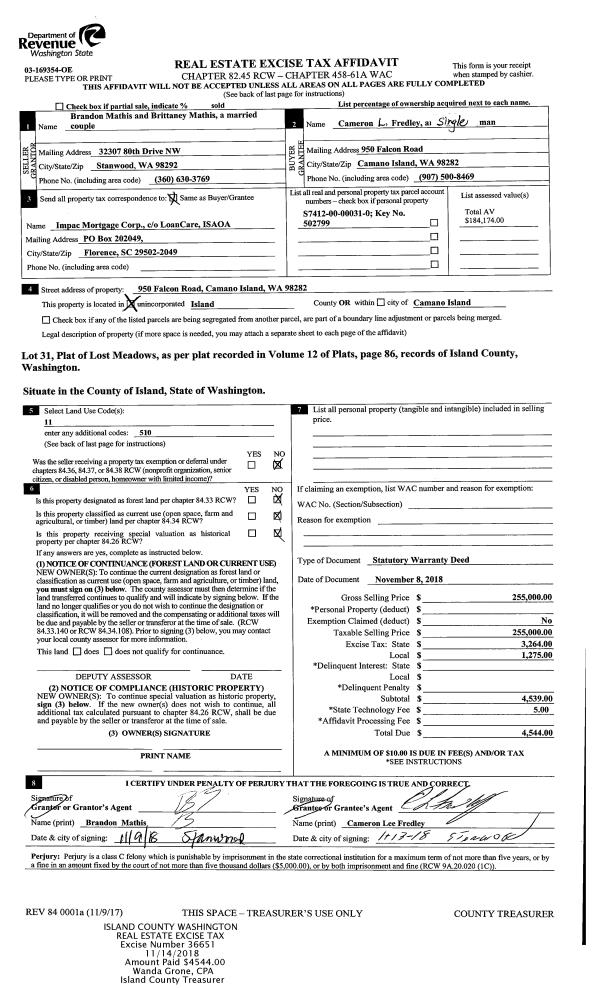
| Geographic ID: | S7165-08-02004-0 | Agent Code: | |
| Type: | Real | | |
| Tax Area: | 779 - APPRAISER-S Whid Schl Dist, Special District, vacant & 50 acres or less | Land Use Code | 99 |
| Open Space: | N | DFL | N |
| Historic Property: | N | Remodel Property: | N |
| Multi-Family Redevelopment: | N | | |
| Township: | | Section: | |
| Range: | |
Location |
| Address: | | Mapsco: | |
| Neighborhood: | Cycle 3 | Map ID: | 289 |
| Neighborhood CD: | 3 |
Owner |
| Name: | FAY, KAREN B | Owner ID: | 270345 |
| Mailing Address: | 4912 GOODPIPER LN FREELAND, WA 98249-9640 | % Ownership: | 100.0000000000% |
| | | Exemptions: | |
Taxes and Assessment Details
Values
| (+) Improvement Homesite Value: | + | $0 | |
| (+) Improvement Non-Homesite Value: | + | $0 | |
| (+) Land Homesite Value: | + | $0 | |
| (+) Land Non-Homesite Value: | + | $110,000 | |
| (+) Curr Use (HS): | + | $0 | $0 |
| (+) Curr Use (NHS): | + | $0 | $0 |
| | | -------------------------- | |
| (=) Market Value: | = | $110,000 | |
| (–) Productivity Loss: | – | $0 | |
| | | -------------------------- | |
| (=) Subtotal: | = | $110,000 | |
| (+) Senior Appraised Value: | + | $0 | |
| (+) Non-Senior Appraised Value: | + | $110,000 | |
| | | -------------------------- | |
| (=) Total Appraised Value: | = | $110,000 | |
| (–) Senior Exemption Loss: | – | $0 | |
| (–) Exemption Loss: | – | $0 | |
| | | -------------------------- | |
| (=) Taxable Value: | = | $110,000 | |
Taxing Jurisdiction
| Owner: | FAY, KAREN B | | |
| % Ownership: | 100.0000000000% | | |
| Total Value: | $110,000 | | |
| Tax Area: | 779 - APPRAISER-S Whid Schl Dist, Special District, vacant & 50 acres or less |
| CF | Conservation Futures | 0.0316035091 | $110,000 | $110,000 | $3.48 | | |
| HOBOND | Hospital BOND | 0.1910887512 | $110,000 | $110,000 | $21.02 | | |
| HOGEN | Hospital GEN | 0.3902502903 | $110,000 | $110,000 | $42.93 | | |
| CE | County Current Expense | 0.3708482477 | $110,000 | $110,000 | $40.79 | | |
| CR | County Roads | 0.4584763726 | $110,000 | $110,000 | $50.43 | | |
| ISLANDEMS | Hospital GEN (EMS) | 0.5000000000 | $110,000 | $110,000 | $55.00 | | |
| LIB | Library Sno-Isle GEN | 0.3153421757 | $110,000 | $110,000 | $34.69 | | |
| PORTWHID | Port of S Whidbey GEN | 0.1094540357 | $110,000 | $110,000 | $12.04 | | |
| SCH206BOND | School 206 BOND | 0.3161759235 | $110,000 | $110,000 | $34.78 | | |
| SCH206MO | School 206 Enrichment | 0.4547169547 | $110,000 | $110,000 | $50.02 | | |
| ST | State School | 1.3035497053 | $110,000 | $110,000 | $143.39 | | |
| ST2 | State School Part 2 | 0.8169543533 | $110,000 | $110,000 | $89.86 | | |
| SWHIDPRBD | P & R S Whidbey BOND | 0.0152817568 | $110,000 | $110,000 | $1.68 | | |
| SWHIDPRBD2 | P & R S Whidbey BOND2 | 0.0138911264 | $110,000 | $110,000 | $1.53 | | |
| SWHIDPRMT | P & R S Whidbey GEN | 0.2053334452 | $110,000 | $110,000 | $22.59 | | |
| | Total Tax Rate: | 5.4929666475 | | | | | |
| | | | | Taxes w/Current Exemptions: | $604.23 | | |
| | | | | Taxes w/o Exemptions: | $604.23 | | |
Improvement / Building
Sketch
| No sketches available for this property. |
Property Image
Land
| 1 | 14 | SQ (08001-12000) | 0.2200 | 9583.20 | 0.00 | 0.00 | 1.00 | $110,000 | $0 |
Roll Value History
| 2026 | N/A | N/A | N/A | N/A | N/A |
| 2025 | $0 | $110,000 | $0 | $110,000 | $110,000 |
| 2024 | $0 | $120,000 | $0 | $120,000 | $120,000 |
| 2023 | $0 | $100,000 | $0 | $100,000 | $100,000 |
| 2022 | $0 | $70,000 | $0 | $70,000 | $70,000 |
| 2021 | $0 | $60,000 | $0 | $60,000 | $60,000 |
| 2020 | $0 | $50,000 | $0 | $50,000 | $50,000 |
| 2019 | $0 | $40,000 | $0 | $40,000 | $40,000 |
| 2018 | $0 | $35,000 | $0 | $35,000 | $35,000 |
| 2017 | $0 | $35,000 | $0 | $35,000 | $35,000 |
| 2016 | $0 | $35,000 | $0 | $35,000 | $35,000 |
| 2015 | $0 | $30,000 | $0 | $30,000 | $30,000 |
| 2014 | $0 | $30,000 | $0 | $30,000 | $30,000 |
| 2013 | $0 | $30,000 | $0 | $30,000 | $30,000 |
| 2012 | $0 | $45,900 | $0 | $45,900 | $45,900 |
| 2011 | $0 | $54,000 | $0 | $54,000 | $54,000 |
| 2010 | $0 | $65,000 | $0 | $65,000 | $65,000 |
| 2009 | $0 | $82,000 | $0 | $82,000 | $82,000 |
| 2008 | $0 | $85,000 | $0 | $85,000 | $85,000 |
| 2007 | $0 | $78,000 | $0 | $78,000 | $78,000 |
Deed and Sales History
| 1 | 10/30/2018 | WD | Warranty Deed | KINYOUN, JOHN | FAY, KAREN B | | | $25,000.00 | 36497 | 4454353 |
| 2 | 01/24/2008 | DECREE | Divorce Decree/Legal Separation | KINYOUN, JOHN K | KINYOUN, JOHN | | | $0.00 | 80459 | 4222725 |
| 3 | 11/01/1993 | WD | Warranty Deed | GOLF, NORTHWEST I | KINYOUN, JOHN K | | | $32,400.00 | 34359 | 93022685 |
| 4 | 11/01/1990 | WD | Warranty Deed | ADAMS, & C | GOLF, NORTHWEST I | | | $6,906.00 | 6305 | 90021776 |
| 5 | 06/01/1988 | WD | Warranty Deed | TODD, LEISURE L | ADAMS, & C | | | $6,560.00 | 81703 | 88006371 |
| 6 | 12/01/1982 | OTHER | Other - Misc. Documents | FIRST, REALTY I | TODD, LEISURE L | | | $0.00 | 23090 | 404099 |
| 7 | 01/01/1900 | OTHER | Other - Misc. Documents | Unknown | FIRST, REALTY I | | | $0.00 | 0 | 0 |
Payout Agreement
| 440 | Active | Annual Payments | | 10/25/2012 1:34:41 PM | Annually | 2 | $0 |