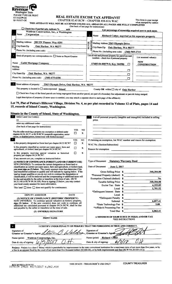
Property
Account |
| Property ID: | 279790 | Abbreviated Legal Description: | MS1:CLER ERR HHGY 8 LOT 3 BLK 4 |
| Geographic ID: | S7165-08-04003-0 | Agent Code: | |
| Type: | Real | | |
| Tax Area: | 770 - APPRAISER-S Whid Schl Dist, Special District, improved & less than 1 acre | Land Use Code | 11 |
| Open Space: | N | DFL | N |
| Historic Property: | N | Remodel Property: | N |
| Multi-Family Redevelopment: | N | | |
| Township: | | Section: | |
| Range: | |
Location |
| Address: | 4858 SPINNAKER DR FREELAND, WA 98249 | Mapsco: | |
| Neighborhood: | Cycle 3 | Map ID: | 289 |
| Neighborhood CD: | 3 |
Owner |
| Name: | SMITH, STEPHEN H | Owner ID: | 285964 |
| Mailing Address: | TOKA J SMITH 4858 SPINNAKER DR FREELAND, WA 98249 | % Ownership: | 100.0000000000% |
| | | Exemptions: | |
Taxes and Assessment Details
Values
| (+) Improvement Homesite Value: | + | $0 | |
| (+) Improvement Non-Homesite Value: | + | $260,849 | |
| (+) Land Homesite Value: | + | $0 | |
| (+) Land Non-Homesite Value: | + | $285,000 | |
| (+) Curr Use (HS): | + | $0 | $0 |
| (+) Curr Use (NHS): | + | $0 | $0 |
| | | -------------------------- | |
| (=) Market Value: | = | $545,849 | |
| (–) Productivity Loss: | – | $0 | |
| | | -------------------------- | |
| (=) Subtotal: | = | $545,849 | |
| (+) Senior Appraised Value: | + | $0 | |
| (+) Non-Senior Appraised Value: | + | $545,849 | |
| | | -------------------------- | |
| (=) Total Appraised Value: | = | $545,849 | |
| (–) Senior Exemption Loss: | – | $0 | |
| (–) Exemption Loss: | – | $0 | |
| | | -------------------------- | |
| (=) Taxable Value: | = | $545,849 | |
Taxing Jurisdiction
| Owner: | SMITH, STEPHEN H | | |
| % Ownership: | 100.0000000000% | | |
| Total Value: | $545,849 | | |
| Tax Area: | 770 - APPRAISER-S Whid Schl Dist, Special District, improved & less than 1 acre |
| CF | Conservation Futures | 0.0316035091 | $545,849 | $545,849 | $17.25 | | |
| FIRE3 | Fire & Rescue Dist #3 S Whidbey GEN | 1.2004855531 | $545,849 | $545,849 | $655.28 | | |
| HOBOND | Hospital BOND | 0.1910887512 | $545,849 | $545,849 | $104.31 | | |
| HOGEN | Hospital GEN | 0.3902502903 | $545,849 | $545,849 | $213.02 | | |
| CE | County Current Expense | 0.3708482477 | $545,849 | $545,849 | $202.43 | | |
| CR | County Roads | 0.4584763726 | $545,849 | $545,849 | $250.26 | | |
| ISLANDEMS | Hospital GEN (EMS) | 0.5000000000 | $545,849 | $545,849 | $272.92 | | |
| LIB | Library Sno-Isle GEN | 0.3153421757 | $545,849 | $545,849 | $172.13 | | |
| PORTWHID | Port of S Whidbey GEN | 0.1094540357 | $545,849 | $545,849 | $59.75 | | |
| SCH206BOND | School 206 BOND | 0.3161759235 | $545,849 | $545,849 | $172.58 | | |
| SCH206MO | School 206 Enrichment | 0.4547169547 | $545,849 | $545,849 | $248.21 | | |
| ST | State School | 1.3035497053 | $545,849 | $545,849 | $711.54 | | |
| ST2 | State School Part 2 | 0.8169543533 | $545,849 | $545,849 | $445.93 | | |
| SWHIDPRBD | P & R S Whidbey BOND | 0.0152817568 | $545,849 | $545,849 | $8.34 | | |
| SWHIDPRBD2 | P & R S Whidbey BOND2 | 0.0138911264 | $545,849 | $545,849 | $7.58 | | |
| SWHIDPRMT | P & R S Whidbey GEN | 0.2053334452 | $545,849 | $545,849 | $112.08 | | |
| | Total Tax Rate: | 6.6934522006 | | | | | |
| | | | | Taxes w/Current Exemptions: | $3,653.61 | | |
| | | | | Taxes w/o Exemptions: | $3,653.61 | | |
Improvement / Building
| Improvement #1: | RESIDENTIAL | State Code: | Y | 1210.0 sqft | Value: | $260,849 |
| Bathrooms: | 2 | Bedrooms: | 3 | | Ceiling: | DRYWALL PAINTED | Cooling: | HEAT PUMP/CONV/V | | Exterior Wall/Cover: | PLY/HARDBOARD T-111 | Floor Covering: | CARPET/VINYL 60-40 | | Floor Structure: | WOOD W/SUBFLOOR | Foundation: | CONCRETE | | Interior Finish: | DRYWALL PAINT | Plumbing Fixture Cnt: | 10 | | Roof Slope: | 5" IN 12" | Roof Structure/Cover: | CJ ASPHALT |
|
| | Type | Description | Class CD | Sub Class CD | Year Built | Area |
| | BAS | BASE/MAIN FLOOR | 3 | 0 | 2001 | 1210.0 |
| | AGR | ATTACHED GARAGE | 3 | 0 | 2001 | 440.0 |
| | OWP | OPEN WOOD PORCH W/STEPS | 3 | 0 | 2001 | 108.0 |
| | OWC | OPEN WOOD PORCH W/STEPS/ROOF/C | 3 | 0 | 2001 | 78.0 |
Sketch
Property Image
Land
| 1 | 14 | SQ (08001-12000) | 0.2300 | 10018.80 | 0.00 | 0.00 | 1.00 | $285,000 | $0 |
Roll Value History
| 2026 | N/A | N/A | N/A | N/A | N/A |
| 2025 | $260,849 | $285,000 | $0 | $545,849 | $545,849 |
| 2024 | $252,083 | $260,000 | $0 | $512,083 | $512,083 |
| 2023 | $255,005 | $240,000 | $0 | $495,005 | $495,005 |
| 2022 | $233,549 | $200,000 | $0 | $433,549 | $433,549 |
| 2021 | $197,964 | $115,000 | $0 | $312,964 | $312,964 |
| 2020 | $191,623 | $100,000 | $0 | $291,623 | $291,623 |
| 2019 | $134,442 | $170,000 | $0 | $304,442 | $304,442 |
| 2018 | $125,876 | $140,000 | $0 | $265,876 | $265,876 |
| 2017 | $126,620 | $120,000 | $0 | $246,620 | $246,620 |
| 2016 | $128,111 | $75,000 | $0 | $203,111 | $203,111 |
| 2015 | $129,601 | $65,000 | $0 | $194,601 | $194,601 |
| 2014 | $131,090 | $55,000 | $0 | $186,090 | $186,090 |
| 2013 | $142,008 | $45,000 | $0 | $187,008 | $187,008 |
| 2012 | $143,634 | $45,900 | $0 | $189,534 | $189,534 |
| 2011 | $145,262 | $54,000 | $0 | $199,262 | $199,262 |
| 2010 | $149,549 | $65,000 | $0 | $214,549 | $214,549 |
| 2009 | $155,841 | $82,000 | $0 | $237,841 | $237,841 |
| 2008 | $155,988 | $85,000 | $0 | $240,988 | $240,988 |
| 2007 | $143,949 | $78,000 | $0 | $221,949 | $221,949 |
Deed and Sales History
| 1 | 07/06/2018 | WD | Warranty Deed | SHEPPARD TRUSTEE, SIM C | SMITH, STEPHEN H | | | $350,000.00 | 34951 | 4447778 |
| 2 | 08/24/2017 | WD | Warranty Deed | CARLSON, CORLAN A | SHEPPARD TRUSTEE, SIM C | | | $279,000.00 | 30782 | 4428817 |
| 3 | 03/29/2001 | WD | Warranty Deed | B&H CONSTRUCTION OF WA, INC, | CARLSON, CORLAN A | | | $141,500.00 | 1117 | 20028996 |
| 4 | 05/23/2000 | WD | Warranty Deed | MASON, ELMER R | B&H CONSTRUCTION OF WA, INC, | | | $15,000.00 | 2021 | 20009604 |
| 5 | 05/01/1986 | WD | Warranty Deed | MASON, DARRELL | MASON, ELMER R | | | $3,500.00 | 61078 | 86004978 |
| 6 | 02/01/1986 | QCD | Quit Claim Deed | TODD, TERRANCE F | MASON, DARRELL | | | $0.00 | 60625 | 86003024 |
| 7 | 03/01/1984 | QCD | Quit Claim Deed | TODD, TERRANCE C | TODD, TERRANCE F | | | $0.00 | 60624 | 86003023 |
| 8 | 10/01/1979 | EXECUTORD | Executor Deed | MASON, DARRELL | TODD, TERRANCE C | | | $7,500.00 | 95259 | 361045 |
| 9 | 01/01/1900 | OTHER | Other - Misc. Documents | Unknown | MASON, DARRELL | | | $0.00 | 0 | 0 |
Payout Agreement
| No payout information available.. |