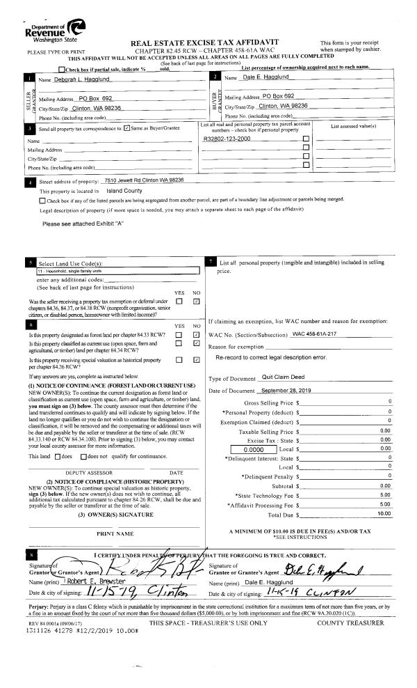
Property
Account |
| Property ID: | 279843 | Abbreviated Legal Description: | HHGY 8 LOT 8 BLK 4 EX NELY 5' |
| Geographic ID: | S7165-08-04008-0 | Agent Code: | |
| Type: | Real | | |
| Tax Area: | 770 - APPRAISER-S Whid Schl Dist, Special District, improved & less than 1 acre | Land Use Code | 11 |
| Open Space: | N | DFL | N |
| Historic Property: | N | Remodel Property: | N |
| Multi-Family Redevelopment: | N | | |
| Township: | | Section: | |
| Range: | |
Location |
| Address: | 4872 SPINNAKER DR FREELAND, WA 98249 | Mapsco: | |
| Neighborhood: | Cycle 3 | Map ID: | 289 |
| Neighborhood CD: | 3 |
Owner |
| Name: | HUGHES, WILLIAM D | Owner ID: | 182204 |
| Mailing Address: | DEBORA E HUGHES 4872 SPINNAKER DR FREELAND, WA 98249-9790 | % Ownership: | 100.0000000000% |
| | | Exemptions: | |
Taxes and Assessment Details
Values
| (+) Improvement Homesite Value: | + | $0 | |
| (+) Improvement Non-Homesite Value: | + | $332,154 | |
| (+) Land Homesite Value: | + | $0 | |
| (+) Land Non-Homesite Value: | + | $285,000 | |
| (+) Curr Use (HS): | + | $0 | $0 |
| (+) Curr Use (NHS): | + | $0 | $0 |
| | | -------------------------- | |
| (=) Market Value: | = | $617,154 | |
| (–) Productivity Loss: | – | $0 | |
| | | -------------------------- | |
| (=) Subtotal: | = | $617,154 | |
| (+) Senior Appraised Value: | + | $0 | |
| (+) Non-Senior Appraised Value: | + | $617,154 | |
| | | -------------------------- | |
| (=) Total Appraised Value: | = | $617,154 | |
| (–) Senior Exemption Loss: | – | $0 | |
| (–) Exemption Loss: | – | $0 | |
| | | -------------------------- | |
| (=) Taxable Value: | = | $617,154 | |
Taxing Jurisdiction
| Owner: | HUGHES, WILLIAM D | | |
| % Ownership: | 100.0000000000% | | |
| Total Value: | $617,154 | | |
| Tax Area: | 770 - APPRAISER-S Whid Schl Dist, Special District, improved & less than 1 acre |
| CF | Conservation Futures | 0.0316035091 | $617,154 | $617,154 | $19.50 | | |
| FIRE3 | Fire & Rescue Dist #3 S Whidbey GEN | 1.2004855531 | $617,154 | $617,154 | $740.88 | | |
| HOBOND | Hospital BOND | 0.1910887512 | $617,154 | $617,154 | $117.93 | | |
| HOGEN | Hospital GEN | 0.3902502903 | $617,154 | $617,154 | $240.84 | | |
| CE | County Current Expense | 0.3708482477 | $617,154 | $617,154 | $228.87 | | |
| CR | County Roads | 0.4584763726 | $617,154 | $617,154 | $282.95 | | |
| ISLANDEMS | Hospital GEN (EMS) | 0.5000000000 | $617,154 | $617,154 | $308.58 | | |
| LIB | Library Sno-Isle GEN | 0.3153421757 | $617,154 | $617,154 | $194.61 | | |
| PORTWHID | Port of S Whidbey GEN | 0.1094540357 | $617,154 | $617,154 | $67.55 | | |
| SCH206BOND | School 206 BOND | 0.3161759235 | $617,154 | $617,154 | $195.13 | | |
| SCH206MO | School 206 Enrichment | 0.4547169547 | $617,154 | $617,154 | $280.63 | | |
| ST | State School | 1.3035497053 | $617,154 | $617,154 | $804.49 | | |
| ST2 | State School Part 2 | 0.8169543533 | $617,154 | $617,154 | $504.19 | | |
| SWHIDPRBD | P & R S Whidbey BOND | 0.0152817568 | $617,154 | $617,154 | $9.43 | | |
| SWHIDPRBD2 | P & R S Whidbey BOND2 | 0.0138911264 | $617,154 | $617,154 | $8.57 | | |
| SWHIDPRMT | P & R S Whidbey GEN | 0.2053334452 | $617,154 | $617,154 | $126.72 | | |
| | Total Tax Rate: | 6.6934522006 | | | | | |
| | | | | Taxes w/Current Exemptions: | $4,130.87 | | |
| | | | | Taxes w/o Exemptions: | $4,130.87 | | |
Improvement / Building
| Improvement #1: | RESIDENTIAL | State Code: | Y | 2016.0 sqft | Value: | $332,154 |
| Bathrooms: | 2 | Bedrooms: | 3 | | Ceiling: | DRYWALL PAINTED | Exterior Wall/Cover: | PLY/HARDBOARD T-111 | | Floor Covering: | CERAMIC TILE/HWD 40/60 | Floor Structure: | WOOD W/SUBFLOOR | | Foundation: | CONCRETE | Heating: | FHA GAS | | Interior Finish: | DRYWALL PAINT | Plumbing Fixture Cnt: | 12 | | Roof Slope: | 4" IN 12" | Roof Structure/Cover: | CJ ASPHALT |
|
| | Type | Description | Class CD | Sub Class CD | Year Built | Area |
| | BAS | BASE/MAIN FLOOR | 3 | 0 | 2000 | 1056.0 |
| | BIG | BUILT IN GARAGE | 3 | 0 | 2000 | 528.0 |
| | UB8 | BASEMENT UNFINISHED 8" | 3 | 0 | 2000 | 364.0 |
| | UPS | UPPER STORY | 3 | 0 | 2000 | 960.0 |
| | OWP | OPEN WOOD PORCH W/STEPS | 3 | 0 | 2000 | 54.0 |
| | OWP | OPEN WOOD PORCH W/STEPS | 3 | 0 | 2000 | 384.0 |
| | OWP | OPEN WOOD PORCH W/STEPS | 3 | 0 | 2000 | 312.0 |
Sketch
Property Image
Land
| 1 | 13 | SQ (06001-08000) | 0.1800 | 7840.80 | 0.00 | 0.00 | 1.00 | $285,000 | $0 |
Roll Value History
| 2026 | N/A | N/A | N/A | N/A | N/A |
| 2025 | $332,154 | $285,000 | $0 | $617,154 | $617,154 |
| 2024 | $336,345 | $260,000 | $0 | $596,345 | $596,345 |
| 2023 | $340,539 | $240,000 | $0 | $580,539 | $580,539 |
| 2022 | $312,159 | $200,000 | $0 | $512,159 | $512,159 |
| 2021 | $274,730 | $115,000 | $0 | $389,730 | $389,730 |
| 2020 | $267,806 | $100,000 | $0 | $367,806 | $367,806 |
| 2019 | $203,864 | $170,000 | $0 | $373,864 | $373,864 |
| 2018 | $204,462 | $140,000 | $0 | $344,462 | $344,462 |
| 2017 | $205,656 | $120,000 | $0 | $325,656 | $325,656 |
| 2016 | $208,047 | $75,000 | $0 | $283,047 | $283,047 |
| 2015 | $210,438 | $65,000 | $0 | $275,438 | $275,438 |
| 2014 | $212,830 | $55,000 | $0 | $267,830 | $267,830 |
| 2013 | $205,284 | $45,000 | $0 | $250,284 | $250,284 |
| 2012 | $207,616 | $45,900 | $0 | $253,516 | $253,516 |
| 2011 | $209,949 | $54,000 | $0 | $263,949 | $263,949 |
| 2010 | $219,678 | $65,000 | $0 | $284,678 | $284,678 |
| 2009 | $226,521 | $82,000 | $0 | $308,521 | $308,521 |
| 2008 | $229,047 | $85,000 | $0 | $314,047 | $314,047 |
| 2007 | $227,340 | $78,000 | $0 | $305,340 | $305,340 |
Deed and Sales History
| 1 | 06/17/2002 | WD | Warranty Deed | KOETJE CONST. INC, | HUGHES, WILLIAM D | | | $203,000.00 | 22432 | 4023866 |
| 2 | 10/18/1999 | WD | Warranty Deed | HOLMES HARBOR HOME BLDG LLC, | KOETJE CONST. INC, | | | $25,000.00 | 94369 | 99023901 |
| 3 | 04/22/1999 | BLA | DNU - Boundary Line Adjustment | HOLMES, HARBOR H | HOLMES HARBOR HOME BLDG LLC, | | | $0.00 | 68235 | 98022343 |
| 4 | 12/01/1995 | WD | Warranty Deed | HOLMES, HARBOR A | HOLMES, HARBOR H | | | $0.00 | 54314 | 95019942 |
| 5 | 12/01/1993 | QCD | Quit Claim Deed | GOLF, NORTHWEST I | HOLMES, HARBOR A | | | $14,176.00 | 34907 | 93025644 |
| 6 | 11/01/1990 | WD | Warranty Deed | ADAMS, & C | GOLF, NORTHWEST I | | | $6,906.00 | 6305 | 90021776 |
| 7 | 06/01/1988 | WD | Warranty Deed | TODD, LEISURE L | ADAMS, & C | | | $4,870.00 | 81703 | 88006371 |
| 8 | 12/01/1982 | OTHER | Other - Misc. Documents | FIRST, REALTY I | TODD, LEISURE L | | | $0.00 | 23090 | 404099 |
| 9 | 01/01/1900 | OTHER | Other - Misc. Documents | Unknown | FIRST, REALTY I | | | $0.00 | 0 | 0 |
Payout Agreement
| No payout information available.. |