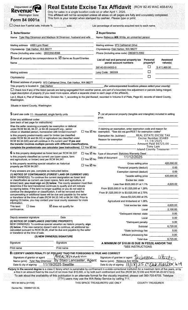
Property
Account |
| Property ID: | 280252 | Abbreviated Legal Description: | HHGY 8 LOT 20 BLK 5 |
| Geographic ID: | S7165-08-05020-0 | Agent Code: | |
| Type: | Real | | |
| Tax Area: | 770 - APPRAISER-S Whid Schl Dist, Special District, improved & less than 1 acre | Land Use Code | 11 |
| Open Space: | N | DFL | N |
| Historic Property: | N | Remodel Property: | N |
| Multi-Family Redevelopment: | N | | |
| Township: | | Section: | |
| Range: | |
Location |
| Address: | 4891 REINDEER RD FREELAND, WA 98249 | Mapsco: | |
| Neighborhood: | Cycle 3 | Map ID: | 289 |
| Neighborhood CD: | 3 |
Owner |
| Name: | NEWMAN, MIKE | Owner ID: | 1669 |
| Mailing Address: | PAM METCALF-NEWMAN 4891 REINDEER RD FREELAND, WA 98249-8766 | % Ownership: | 100.0000000000% |
| | | Exemptions: | |
Taxes and Assessment Details
Values
| (+) Improvement Homesite Value: | + | $0 | |
| (+) Improvement Non-Homesite Value: | + | $327,062 | |
| (+) Land Homesite Value: | + | $0 | |
| (+) Land Non-Homesite Value: | + | $285,000 | |
| (+) Curr Use (HS): | + | $0 | $0 |
| (+) Curr Use (NHS): | + | $0 | $0 |
| | | -------------------------- | |
| (=) Market Value: | = | $612,062 | |
| (–) Productivity Loss: | – | $0 | |
| | | -------------------------- | |
| (=) Subtotal: | = | $612,062 | |
| (+) Senior Appraised Value: | + | $0 | |
| (+) Non-Senior Appraised Value: | + | $612,062 | |
| | | -------------------------- | |
| (=) Total Appraised Value: | = | $612,062 | |
| (–) Senior Exemption Loss: | – | $0 | |
| (–) Exemption Loss: | – | $0 | |
| | | -------------------------- | |
| (=) Taxable Value: | = | $612,062 | |
Taxing Jurisdiction
| Owner: | NEWMAN, MIKE | | |
| % Ownership: | 100.0000000000% | | |
| Total Value: | $612,062 | | |
| Tax Area: | 770 - APPRAISER-S Whid Schl Dist, Special District, improved & less than 1 acre |
| CF | Conservation Futures | 0.0316035091 | $612,062 | $612,062 | $19.34 | | |
| FIRE3 | Fire & Rescue Dist #3 S Whidbey GEN | 1.2004855531 | $612,062 | $612,062 | $734.77 | | |
| HOBOND | Hospital BOND | 0.1910887512 | $612,062 | $612,062 | $116.96 | | |
| HOGEN | Hospital GEN | 0.3902502903 | $612,062 | $612,062 | $238.86 | | |
| CE | County Current Expense | 0.3708482477 | $612,062 | $612,062 | $226.98 | | |
| CR | County Roads | 0.4584763726 | $612,062 | $612,062 | $280.62 | | |
| ISLANDEMS | Hospital GEN (EMS) | 0.5000000000 | $612,062 | $612,062 | $306.03 | | |
| LIB | Library Sno-Isle GEN | 0.3153421757 | $612,062 | $612,062 | $193.01 | | |
| PORTWHID | Port of S Whidbey GEN | 0.1094540357 | $612,062 | $612,062 | $66.99 | | |
| SCH206BOND | School 206 BOND | 0.3161759235 | $612,062 | $612,062 | $193.52 | | |
| SCH206MO | School 206 Enrichment | 0.4547169547 | $612,062 | $612,062 | $278.31 | | |
| ST | State School | 1.3035497053 | $612,062 | $612,062 | $797.85 | | |
| ST2 | State School Part 2 | 0.8169543533 | $612,062 | $612,062 | $500.03 | | |
| SWHIDPRBD | P & R S Whidbey BOND | 0.0152817568 | $612,062 | $612,062 | $9.35 | | |
| SWHIDPRBD2 | P & R S Whidbey BOND2 | 0.0138911264 | $612,062 | $612,062 | $8.50 | | |
| SWHIDPRMT | P & R S Whidbey GEN | 0.2053334452 | $612,062 | $612,062 | $125.68 | | |
| | Total Tax Rate: | 6.6934522006 | | | | | |
| | | | | Taxes w/Current Exemptions: | $4,096.80 | | |
| | | | | Taxes w/o Exemptions: | $4,096.80 | | |
Improvement / Building
| Improvement #1: | RESIDENTIAL | State Code: | Y | 2143.0 sqft | Value: | $327,062 |
| Bathrooms: | 2.5 | Bedrooms: | 3 | | Ceiling: | DRYWALL PAINTED | Exterior Wall/Cover: | CEMENT FIBER | | Floor Covering: | CARPET/VINYL 80-20 | Floor Structure: | WOOD W/SUBFLOOR | | Foundation: | CONCRETE | Heating: | FHA GAS | | Interior Finish: | DRYWALL PAINT | Plumbing Fixture Cnt: | 13 | | Roof Slope: | 5" IN 12" | Roof Structure/Cover: | CJ ASPHALT |
|
| | Type | Description | Class CD | Sub Class CD | Year Built | Area |
| | BAS | BASE/MAIN FLOOR | 3 | 0 | 2000 | 1445.0 |
| | BIG | BUILT IN GARAGE | 3 | 0 | 2000 | 747.0 |
| | OWP | OPEN WOOD PORCH W/STEPS | 3 | 0 | 2000 | 44.0 |
| | OWP | OPEN WOOD PORCH W/STEPS | 3 | 0 | 2000 | 570.0 |
| | OWC | OPEN WOOD PORCH W/STEPS/ROOF/C | 3 | 0 | 2000 | 55.0 |
| | DWN | DOWNSTAIRS LIVING AREA | 3 | 0 | 2000 | 698.0 |
Sketch
Property Image
Land
| 1 | 13 | SQ (06001-08000) | 0.1800 | 7840.80 | 0.00 | 0.00 | 1.00 | $285,000 | $0 |
Roll Value History
| 2026 | N/A | N/A | N/A | N/A | N/A |
| 2025 | $327,062 | $285,000 | $0 | $612,062 | $612,062 |
| 2024 | $331,086 | $260,000 | $0 | $591,086 | $591,086 |
| 2023 | $335,113 | $240,000 | $0 | $575,113 | $575,113 |
| 2022 | $307,081 | $200,000 | $0 | $507,081 | $507,081 |
| 2021 | $270,208 | $115,000 | $0 | $385,208 | $385,208 |
| 2020 | $263,146 | $100,000 | $0 | $363,146 | $363,146 |
| 2019 | $186,104 | $170,000 | $0 | $356,104 | $356,104 |
| 2018 | $186,678 | $140,000 | $0 | $326,678 | $326,678 |
| 2017 | $187,822 | $120,000 | $0 | $307,822 | $307,822 |
| 2016 | $190,113 | $75,000 | $0 | $265,113 | $265,113 |
| 2015 | $192,404 | $65,000 | $0 | $257,404 | $257,404 |
| 2014 | $194,694 | $55,000 | $0 | $249,694 | $249,694 |
| 2013 | $219,082 | $45,000 | $0 | $264,082 | $264,082 |
| 2012 | $221,606 | $45,900 | $0 | $267,506 | $267,506 |
| 2011 | $224,133 | $54,000 | $0 | $278,133 | $278,133 |
| 2010 | $231,844 | $65,000 | $0 | $296,844 | $296,844 |
| 2009 | $241,665 | $82,000 | $0 | $323,665 | $323,665 |
| 2008 | $244,444 | $85,000 | $0 | $329,444 | $329,444 |
| 2007 | $248,367 | $78,000 | $0 | $326,367 | $326,367 |
Deed and Sales History
| 1 | 07/01/1988 | TTAXD | Treasurer's Tax Deed | LOONEY, WILLIAM A | NEWMAN, MIKE & | | | $0.00 | 62763 | 88008811 |
| 2 | 04/01/1983 | QCD | Quit Claim Deed | HARKE, FELIX R | LOONEY, WILLIAM A | | | $0.00 | 30948 | 408289 |
| 3 | 05/01/1978 | OTHER | Other - Misc. Documents | Unknown | HARKE, FELIX R | | | $0.00 | 86115 | 344704 |
Payout Agreement
| No payout information available.. |