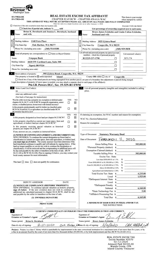
Property
Account |
| Property ID: | 280467 | Abbreviated Legal Description: | HHGY 9 LOT 1 BLK 2 |
| Geographic ID: | S7165-09-02001-0 | Agent Code: | |
| Type: | Real | | |
| Tax Area: | 770 - APPRAISER-S Whid Schl Dist, Special District, improved & less than 1 acre | Land Use Code | 11 |
| Open Space: | N | DFL | N |
| Historic Property: | N | Remodel Property: | N |
| Multi-Family Redevelopment: | N | | |
| Township: | | Section: | |
| Range: | |
Location |
| Address: | 4803 HAINES RD FREELAND, WA 98249 | Mapsco: | |
| Neighborhood: | Cycle 3 | Map ID: | 290 |
| Neighborhood CD: | 3 |
Owner |
| Name: | WILSON, DAVID C | Owner ID: | 253084 |
| Mailing Address: | JENNIFER L WILSON 4803 HAINES RD FREELAND, WA 98249 | % Ownership: | 100.0000000000% |
| | | Exemptions: | |
Taxes and Assessment Details
Values
| (+) Improvement Homesite Value: | + | $0 | |
| (+) Improvement Non-Homesite Value: | + | $380,470 | |
| (+) Land Homesite Value: | + | $0 | |
| (+) Land Non-Homesite Value: | + | $260,000 | |
| (+) Curr Use (HS): | + | $0 | $0 |
| (+) Curr Use (NHS): | + | $0 | $0 |
| | | -------------------------- | |
| (=) Market Value: | = | $640,470 | |
| (–) Productivity Loss: | – | $0 | |
| | | -------------------------- | |
| (=) Subtotal: | = | $640,470 | |
| (+) Senior Appraised Value: | + | $0 | |
| (+) Non-Senior Appraised Value: | + | $640,470 | |
| | | -------------------------- | |
| (=) Total Appraised Value: | = | $640,470 | |
| (–) Senior Exemption Loss: | – | $0 | |
| (–) Exemption Loss: | – | $0 | |
| | | -------------------------- | |
| (=) Taxable Value: | = | $640,470 | |
Taxing Jurisdiction
| Owner: | WILSON, DAVID C | | |
| % Ownership: | 100.0000000000% | | |
| Total Value: | $640,470 | | |
| Tax Area: | 770 - APPRAISER-S Whid Schl Dist, Special District, improved & less than 1 acre |
| CF | Conservation Futures | 0.0316035091 | $640,470 | $640,470 | $20.24 | | |
| FIRE3 | Fire & Rescue Dist #3 S Whidbey GEN | 1.2004855531 | $640,470 | $640,470 | $768.87 | | |
| HOBOND | Hospital BOND | 0.1910887512 | $640,470 | $640,470 | $122.39 | | |
| HOGEN | Hospital GEN | 0.3902502903 | $640,470 | $640,470 | $249.94 | | |
| CE | County Current Expense | 0.3708482477 | $640,470 | $640,470 | $237.52 | | |
| CR | County Roads | 0.4584763726 | $640,470 | $640,470 | $293.64 | | |
| ISLANDEMS | Hospital GEN (EMS) | 0.5000000000 | $640,470 | $640,470 | $320.24 | | |
| LIB | Library Sno-Isle GEN | 0.3153421757 | $640,470 | $640,470 | $201.97 | | |
| PORTWHID | Port of S Whidbey GEN | 0.1094540357 | $640,470 | $640,470 | $70.10 | | |
| SCH206BOND | School 206 BOND | 0.3161759235 | $640,470 | $640,470 | $202.50 | | |
| SCH206MO | School 206 Enrichment | 0.4547169547 | $640,470 | $640,470 | $291.23 | | |
| ST | State School | 1.3035497053 | $640,470 | $640,470 | $834.88 | | |
| ST2 | State School Part 2 | 0.8169543533 | $640,470 | $640,470 | $523.23 | | |
| SWHIDPRBD | P & R S Whidbey BOND | 0.0152817568 | $640,470 | $640,470 | $9.79 | | |
| SWHIDPRBD2 | P & R S Whidbey BOND2 | 0.0138911264 | $640,470 | $640,470 | $8.90 | | |
| SWHIDPRMT | P & R S Whidbey GEN | 0.2053334452 | $640,470 | $640,470 | $131.51 | | |
| | Total Tax Rate: | 6.6934522006 | | | | | |
| | | | | Taxes w/Current Exemptions: | $4,286.95 | | |
| | | | | Taxes w/o Exemptions: | $4,286.95 | | |
Improvement / Building
| Improvement #1: | RESIDENTIAL | State Code: | Y | 2197.0 sqft | Value: | $380,470 |
| Bathrooms: | 2.5 | Bedrooms: | 3 | | Ceiling: | DRYWALL PAINTED | Exterior Wall/Cover: | WOOD SIDING | | Floor Covering: | HARDWOOD/CARP 60-40 | Floor Structure: | WOOD W/SUBFLOOR | | Foundation: | CONCRETE | Heating: | FHA GAS | | Interior Finish: | DRYWALL PAINT | Plumbing Fixture Cnt: | 12 | | Roof Slope: | 5" IN 12" | Roof Structure/Cover: | CJ ASPHALT |
|
| | Type | Description | Class CD | Sub Class CD | Year Built | Area |
| | BAS | BASE/MAIN FLOOR | 3 | 0 | 2004 | 1267.0 |
| | DGR | DETACHED GARAGE | 3 | 0 | 2004 | 700.0 |
| | LOF | LOFT | 3 | 0 | 2004 | 180.0 |
| | OWP | OPEN WOOD PORCH W/STEPS | 3 | 0 | 2004 | 715.0 |
| | OWC | OPEN WOOD PORCH W/STEPS/ROOF/C | 3 | 0 | 2004 | 65.0 |
| | UPS | UPPER STORY | 3 | 0 | 2004 | 750.0 |
Sketch
Property Image
Land
| 1 | 15 | SQ (12001-21780) | 0.3600 | 15681.60 | 0.00 | 0.00 | 1.00 | $260,000 | $0 |
Roll Value History
| 2026 | N/A | N/A | N/A | N/A | N/A |
| 2025 | $380,470 | $260,000 | $0 | $640,470 | $640,470 |
| 2024 | $384,932 | $260,000 | $0 | $644,932 | $644,932 |
| 2023 | $389,395 | $230,000 | $0 | $619,395 | $619,395 |
| 2022 | $356,661 | $200,000 | $0 | $556,661 | $556,661 |
| 2021 | $313,646 | $115,000 | $0 | $428,646 | $428,646 |
| 2020 | $304,804 | $100,000 | $0 | $404,804 | $404,804 |
| 2019 | $226,659 | $170,000 | $0 | $396,659 | $396,659 |
| 2018 | $227,302 | $140,000 | $0 | $367,302 | $367,302 |
| 2017 | $228,587 | $120,000 | $0 | $348,587 | $348,587 |
| 2016 | $231,155 | $75,000 | $0 | $306,155 | $306,155 |
| 2015 | $233,723 | $85,000 | $0 | $318,723 | $318,723 |
| 2014 | $236,291 | $65,000 | $0 | $301,291 | $301,291 |
| 2013 | $250,326 | $45,000 | $0 | $295,326 | $295,326 |
| 2012 | $257,414 | $45,900 | $0 | $303,314 | $303,314 |
| 2011 | $260,200 | $54,000 | $0 | $314,200 | $314,200 |
| 2010 | $265,768 | $65,000 | $0 | $330,768 | $330,768 |
| 2009 | $279,779 | $100,000 | $0 | $379,779 | $379,779 |
| 2008 | $280,059 | $125,000 | $0 | $405,059 | $405,059 |
| 2007 | $245,172 | $125,000 | $0 | $370,172 | $370,172 |
Deed and Sales History
| 1 | 06/25/2010 | WD | Warranty Deed | ALLMER JR, HAROLD LEONARD | WILSON, DAVID C | | | $318,500.00 | 1613 | 4276509 |
| 2 | 05/01/2001 | WD | Warranty Deed | MCCREA, MARY EMILY | ALLMER JR, HAROLD LEONARD | | | $20,000.00 | 11630 | 20032041 |
| 3 | 03/23/2001 | PRD | Personal Representatives Deed | Unknown | MCCREA, MARY EMILY | | | $0.00 | 11081 | 20028834 |
Payout Agreement
| No payout information available.. |