Property
Account |
| Property ID: | 280779 | Abbreviated Legal Description: | HHGY 9 LOT 3 BLK 4 |
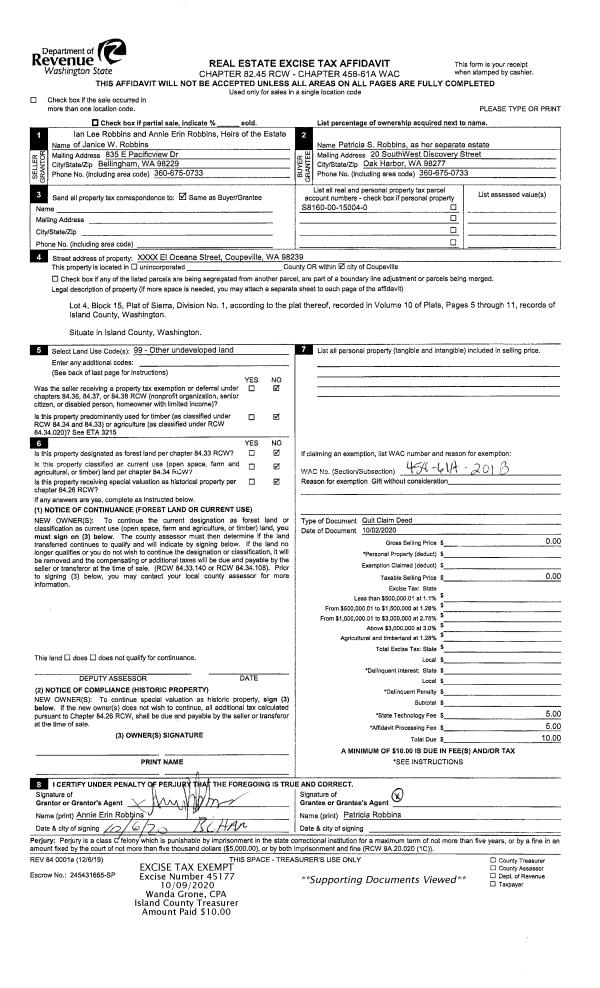
| Geographic ID: | S7165-09-04003-0 | Agent Code: | |
| Type: | Real | | |
| Tax Area: | 770 - APPRAISER-S Whid Schl Dist, Special District, improved & less than 1 acre | Land Use Code | 11 |
| Open Space: | N | DFL | N |
| Historic Property: | N | Remodel Property: | N |
| Multi-Family Redevelopment: | N | | |
| Township: | | Section: | |
| Range: | |
Location |
| Address: | 1392 JOSEPH LN FREELAND, WA 98249 | Mapsco: | |
| Neighborhood: | Cycle 3 | Map ID: | 290 |
| Neighborhood CD: | 3 |
Owner |
| Name: | SEATON, WILLIAM ANDERSON | Owner ID: | 299368 |
| Mailing Address: | MARION CAROL FISHER 1392 JOSEPH LN FREELAND, WA 98249 | % Ownership: | 100.0000000000% |
| | | Exemptions: | |
Taxes and Assessment Details
Values
| (+) Improvement Homesite Value: | + | $0 | |
| (+) Improvement Non-Homesite Value: | + | $331,406 | |
| (+) Land Homesite Value: | + | $0 | |
| (+) Land Non-Homesite Value: | + | $330,000 | |
| (+) Curr Use (HS): | + | $0 | $0 |
| (+) Curr Use (NHS): | + | $0 | $0 |
| | | -------------------------- | |
| (=) Market Value: | = | $661,406 | |
| (–) Productivity Loss: | – | $0 | |
| | | -------------------------- | |
| (=) Subtotal: | = | $661,406 | |
| (+) Senior Appraised Value: | + | $0 | |
| (+) Non-Senior Appraised Value: | + | $661,406 | |
| | | -------------------------- | |
| (=) Total Appraised Value: | = | $661,406 | |
| (–) Senior Exemption Loss: | – | $0 | |
| (–) Exemption Loss: | – | $0 | |
| | | -------------------------- | |
| (=) Taxable Value: | = | $661,406 | |
Taxing Jurisdiction
| Owner: | SEATON, WILLIAM ANDERSON | | |
| % Ownership: | 100.0000000000% | | |
| Total Value: | $661,406 | | |
| Tax Area: | 770 - APPRAISER-S Whid Schl Dist, Special District, improved & less than 1 acre |
| CF | Conservation Futures | 0.0316035091 | $661,406 | $661,406 | $20.90 | | |
| FIRE3 | Fire & Rescue Dist #3 S Whidbey GEN | 1.2004855531 | $661,406 | $661,406 | $794.01 | | |
| HOBOND | Hospital BOND | 0.1910887512 | $661,406 | $661,406 | $126.39 | | |
| HOGEN | Hospital GEN | 0.3902502903 | $661,406 | $661,406 | $258.11 | | |
| CE | County Current Expense | 0.3708482477 | $661,406 | $661,406 | $245.28 | | |
| CR | County Roads | 0.4584763726 | $661,406 | $661,406 | $303.24 | | |
| ISLANDEMS | Hospital GEN (EMS) | 0.5000000000 | $661,406 | $661,406 | $330.70 | | |
| LIB | Library Sno-Isle GEN | 0.3153421757 | $661,406 | $661,406 | $208.57 | | |
| PORTWHID | Port of S Whidbey GEN | 0.1094540357 | $661,406 | $661,406 | $72.39 | | |
| SCH206BOND | School 206 BOND | 0.3161759235 | $661,406 | $661,406 | $209.12 | | |
| SCH206MO | School 206 Enrichment | 0.4547169547 | $661,406 | $661,406 | $300.75 | | |
| ST | State School | 1.3035497053 | $661,406 | $661,406 | $862.18 | | |
| ST2 | State School Part 2 | 0.8169543533 | $661,406 | $661,406 | $540.34 | | |
| SWHIDPRBD | P & R S Whidbey BOND | 0.0152817568 | $661,406 | $661,406 | $10.11 | | |
| SWHIDPRBD2 | P & R S Whidbey BOND2 | 0.0138911264 | $661,406 | $661,406 | $9.19 | | |
| SWHIDPRMT | P & R S Whidbey GEN | 0.2053334452 | $661,406 | $661,406 | $135.81 | | |
| | Total Tax Rate: | 6.6934522006 | | | | | |
| | | | | Taxes w/Current Exemptions: | $4,427.09 | | |
| | | | | Taxes w/o Exemptions: | $4,427.09 | | |
Improvement / Building
| Improvement #1: | RESIDENTIAL | State Code: | Y | 1495.0 sqft | Value: | $331,406 |
| Bathrooms: | 2 | Bedrooms: | 3 | | Ceiling: | DRYWALL PAINTED | Cooling: | HEAT PUMP/CONV/V | | Exterior Wall/Cover: | CEMENT FIBER | Floor Covering: | CARPET/VINYL 60-40 | | Floor Structure: | WOOD W/SUBFLOOR | Foundation: | CONCRETE | | Interior Finish: | DRYWALL PAINT | Plumbing Fixture Cnt: | 9 | | Roof Slope: | 6" IN 12" | Roof Structure/Cover: | CJ ASPHALT |
|
| | Type | Description | Class CD | Sub Class CD | Year Built | Area |
| | BAS | BASE/MAIN FLOOR | 3 | 0 | 2021 | 1495.0 |
| | AGR | ATTACHED GARAGE | 3 | 0 | 2021 | 638.0 |
| | OWR | OPEN WOOD PORCH W/STEPS/ROOF | 3 | 0 | 2021 | 651.0 |
Sketch
Property Image
Land
| 1 | 13 | SQ (06001-08000) | 0.1700 | 7405.20 | 0.00 | 0.00 | 1.00 | $330,000 | $0 |
Roll Value History
| 2026 | N/A | N/A | N/A | N/A | N/A |
| 2025 | $331,406 | $330,000 | $0 | $661,406 | $661,406 |
| 2024 | $334,036 | $300,000 | $0 | $634,036 | $634,036 |
| 2023 | $337,542 | $250,000 | $0 | $587,542 | $587,542 |
| 2022 | $311,222 | $270,000 | $0 | $581,222 | $581,222 |
| 2021 | $276,146 | $190,000 | $0 | $466,146 | $466,146 |
| 2020 | $0 | $65,000 | $0 | $65,000 | $65,000 |
| 2019 | $0 | $65,000 | $0 | $65,000 | $65,000 |
| 2018 | $0 | $65,000 | $0 | $65,000 | $65,000 |
| 2017 | $0 | $65,000 | $0 | $65,000 | $65,000 |
| 2016 | $0 | $35,000 | $0 | $35,000 | $35,000 |
| 2015 | $0 | $60,000 | $0 | $60,000 | $60,000 |
| 2014 | $0 | $55,000 | $0 | $55,000 | $55,000 |
| 2013 | $0 | $65,000 | $0 | $65,000 | $65,000 |
| 2012 | $0 | $65,000 | $0 | $65,000 | $65,000 |
| 2011 | $0 | $54,000 | $0 | $54,000 | $54,000 |
| 2010 | $0 | $65,000 | $0 | $65,000 | $65,000 |
| 2009 | $0 | $82,000 | $0 | $82,000 | $82,000 |
| 2008 | $0 | $100,000 | $0 | $100,000 | $100,000 |
| 2007 | $0 | $100,000 | $0 | $100,000 | $100,000 |
Deed and Sales History
| 1 | 05/13/2021 | WD | Warranty Deed | EAGLE DEVELOPMENT GROUP, LLC | SEATON, WILLIAM ANDERSON | | | $605,000.00 | 48245 | 4519263 |
| 2 | 10/13/2020 | WD | Warranty Deed | MARTIN, LAWRENCE | EAGLE DEVELOPMENT GROUP, LLC | | | $75,000.00 | 45226 | 4499415 |
| 3 | 05/05/2004 | WD | Warranty Deed | LUNG, GEORGE | MARTIN, LAWRENCE | | | $34,000.00 | 41895 | 4099775 |
| 4 | 01/12/2000 | ESTSEPPROP | Establish Separate Property | LUNG, GEORGE | LUNG, GEORGE | | | $0.00 | 269 | 20001425 |
| 5 | 12/30/1999 | ESTSEPPROP | Establish Separate Property | LUNG, GEORGE | LUNG, GEORGE | | | $0.00 | 146 | 20000859 |
| 6 | 12/16/1999 | QCD | Quit Claim Deed | PACIFIC DEVELOPMENT CO, | LUNG, GEORGE | | | $0.00 | 95217 | 99028990 |
| 7 | 01/01/1900 | OTHER | Other - Misc. Documents | Unknown | PACIFIC DEVELOPMENT CO, | | | $0.00 | 0 | 0 |
Payout Agreement
| No payout information available.. |