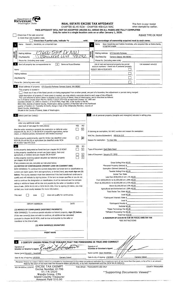
Property
Account |
| Property ID: | 281153 | Abbreviated Legal Description: | HONEYMOON BAY VISTA LOT 19 |
| Geographic ID: | S7175-00-00019-0 | Agent Code: | |
| Type: | Real | | |
| Tax Area: | 310 - APPRAISER-Cpvl Schl Dist, outside Cpvl, improved & 1 acre or less | Land Use Code | 11 |
| Open Space: | N | DFL | N |
| Historic Property: | N | Remodel Property: | N |
| Multi-Family Redevelopment: | N | | |
| Township: | | Section: | |
| Range: | |
Location |
| Address: | 4227 BAYSIDE LN GREENBANK, WA 98253 | Mapsco: | |
| Neighborhood: | Cycle 3 | Map ID: | 419 |
| Neighborhood CD: | 3 |
Owner |
| Name: | CARTER, JEFFREY T | Owner ID: | 282732 |
| Mailing Address: | PATRICIA RENEE SHANDA-CARTER 13730 MAIN ST BELLEVUE, WA 98005 | % Ownership: | 100.0000000000% |
| | | Exemptions: | |
Taxes and Assessment Details
Values
| (+) Improvement Homesite Value: | + | $0 | |
| (+) Improvement Non-Homesite Value: | + | $535,724 | |
| (+) Land Homesite Value: | + | $0 | |
| (+) Land Non-Homesite Value: | + | $625,000 | |
| (+) Curr Use (HS): | + | $0 | $0 |
| (+) Curr Use (NHS): | + | $0 | $0 |
| | | -------------------------- | |
| (=) Market Value: | = | $1,160,724 | |
| (–) Productivity Loss: | – | $0 | |
| | | -------------------------- | |
| (=) Subtotal: | = | $1,160,724 | |
| (+) Senior Appraised Value: | + | $0 | |
| (+) Non-Senior Appraised Value: | + | $1,160,724 | |
| | | -------------------------- | |
| (=) Total Appraised Value: | = | $1,160,724 | |
| (–) Senior Exemption Loss: | – | $0 | |
| (–) Exemption Loss: | – | $0 | |
| | | -------------------------- | |
| (=) Taxable Value: | = | $1,160,724 | |
Taxing Jurisdiction
| Owner: | CARTER, JEFFREY T | | |
| % Ownership: | 100.0000000000% | | |
| Total Value: | $1,160,724 | | |
| Tax Area: | 310 - APPRAISER-Cpvl Schl Dist, outside Cpvl, improved & 1 acre or less |
| CF | Conservation Futures | 0.0316035091 | $1,160,724 | $1,160,724 | $36.68 | | |
| CEM2 | Cemetery #2 | 0.0095056933 | $1,160,724 | $1,160,724 | $11.03 | | |
| FIRE5 | Fire & Rescue Dist #5 C Whidbey GEN | 1.2008080668 | $1,160,724 | $1,160,724 | $1,393.81 | | |
| FIRE5BOND | Fire & Rescue Dist #5 C Whidbey BOND | 0.1400090713 | $1,160,724 | $1,160,724 | $162.51 | | |
| HOBOND | Hospital BOND | 0.1910887512 | $1,160,724 | $1,160,724 | $221.80 | | |
| HOGEN | Hospital GEN | 0.3902502903 | $1,160,724 | $1,160,724 | $452.97 | | |
| CE | County Current Expense | 0.3708482477 | $1,160,724 | $1,160,724 | $430.45 | | |
| CR | County Roads | 0.4584763726 | $1,160,724 | $1,160,724 | $532.16 | | |
| ISLANDEMS | Hospital GEN (EMS) | 0.5000000000 | $1,160,724 | $1,160,724 | $580.36 | | |
| LIB | Library Sno-Isle GEN | 0.3153421757 | $1,160,724 | $1,160,724 | $366.03 | | |
| LIBCAP | Library Sno-Isle BOND (Cap Fac Imp Area) | 0.0543427938 | $1,160,724 | $1,160,724 | $63.08 | | |
| POCOUP | Port of Coupeville GEN | 0.1093371703 | $1,160,724 | $1,160,724 | $126.91 | | |
| POCOUPIDD | Port of Coupeville IDD | 0.3409740022 | $1,160,724 | $1,160,724 | $395.78 | | |
| COUPSDTECH | School 204 CP (TECH) | 0.7545480007 | $1,160,724 | $1,160,724 | $875.82 | | |
| SCH204MO | School 204 Enrichment | 0.6716186034 | $1,160,724 | $1,160,724 | $779.56 | | |
| ST | State School | 1.3035497053 | $1,160,724 | $1,160,724 | $1,513.06 | | |
| ST2 | State School Part 2 | 0.8169543533 | $1,160,724 | $1,160,724 | $948.26 | | |
| | Total Tax Rate: | 7.6592568070 | | | | | |
| | | | | Taxes w/Current Exemptions: | $8,890.27 | | |
| | | | | Taxes w/o Exemptions: | $8,890.27 | | |
Improvement / Building
| Improvement #1: | RESIDENTIAL | State Code: | Y | 3330.4 sqft | Value: | $535,724 |
| Bathrooms: | 2.75 | Bedrooms: | 2 | | Ceiling: | TONGUE & GROOVE | Exterior Wall/Cover: | VINYL | | Floor Covering: | SOFTWOOD/VINYL 60-40 | Floor Structure: | WOOD W/SUBFLOOR | | Foundation: | CONCRETE | Heating: | FHA GAS | | Interior Finish: | DRYWALL PAINT | Plumbing Fixture Cnt: | 15 | | Roof Slope: | 3" IN 12" | Roof Structure/Cover: | CJ ASPHALT |
|
| | Type | Description | Class CD | Sub Class CD | Year Built | Area |
| | BAS | BASE/MAIN FLOOR | 4 | 0 | 1980 | 1665.2 |
| | OCP | OPEN CARPORT | 4 | 0 | 1980 | 483.6 |
| | OWP | OPEN WOOD PORCH W/STEPS | 4 | 0 | 1980 | 36.0 |
| | OWP | OPEN WOOD PORCH W/STEPS | 4 | 0 | 1980 | 590.0 |
| | OWC | OPEN WOOD PORCH W/STEPS/ROOF/C | 4 | 0 | 1980 | 49.0 |
| | DWN | DOWNSTAIRS LIVING AREA | 4 | 0 | 1980 | 1665.2 |
| | DGR | DETACHED GARAGE | 4 | 0 | 1980 | 1254.0 |
Sketch
Property Image
Land
| 1 | HB | HIGH BLUFF | 0.3184 | 13869.50 | 66.00 | 0.00 | 1.00 | $625,000 | $0 |
Roll Value History
| 2026 | N/A | N/A | N/A | N/A | N/A |
| 2025 | $535,724 | $625,000 | $0 | $1,160,724 | $1,160,724 |
| 2024 | $542,400 | $600,000 | $0 | $1,142,400 | $1,142,400 |
| 2023 | $549,076 | $550,000 | $0 | $1,099,076 | $1,099,076 |
| 2022 | $503,244 | $550,000 | $0 | $1,053,244 | $1,053,244 |
| 2021 | $442,850 | $300,000 | $0 | $742,850 | $742,850 |
| 2020 | $432,162 | $300,000 | $0 | $732,162 | $732,162 |
| 2019 | $343,539 | $375,000 | $0 | $718,539 | $718,539 |
| 2018 | $344,536 | $300,000 | $0 | $644,536 | $644,536 |
| 2017 | $217,429 | $250,000 | $0 | $467,429 | $467,429 |
| 2016 | $220,535 | $250,000 | $0 | $470,535 | $470,535 |
| 2015 | $223,641 | $250,000 | $0 | $473,641 | $473,641 |
| 2014 | $226,749 | $200,000 | $0 | $426,749 | $426,749 |
| 2013 | $230,050 | $200,000 | $0 | $430,050 | $430,050 |
| 2012 | $233,313 | $175,654 | $0 | $408,967 | $408,967 |
| 2011 | $234,861 | $175,654 | $0 | $410,515 | $410,515 |
| 2010 | $239,484 | $175,654 | $0 | $415,138 | $415,138 |
| 2009 | $362,621 | $277,533 | $0 | $640,154 | $640,154 |
| 2008 | $367,098 | $277,533 | $0 | $644,631 | $644,631 |
| 2007 | $364,666 | $219,567 | $0 | $584,233 | $584,233 |
Deed and Sales History
| 1 | 10/23/2017 | WD | Warranty Deed | SUMMER JTWROS, TERI JO | CARTER, JEFFREY T | | | $647,000.00 | 31731 | 4433205 |
| 2 | 03/02/2010 | TRUSTEED | Trustee's Deed | TURNBERRY REAL ESTATE INC, | SUMMER JTWROS, TERI JO | | | $430,000.00 | 547 | 4270056 |
| 3 | 09/30/2009 | TRUSTEED | Trustee's Deed | PARSON, CATHERINE A | TURNBERRY REAL ESTATE INC, | | | $459,900.00 | 92341 | 4261133 |
| 4 | 11/15/2007 | QCD | Quit Claim Deed | PARSON, CATHERINE A | PARSON, CATHERINE A | | | $0.00 | 73790 | 4216450 |
| 5 | 11/05/2007 | QCD | Quit Claim Deed | PARSON, CATHERINE A | PARSON, CATHERINE A | | | $0.00 | 73789 | 4216449 |
| 6 | 09/18/2002 | QCD | Quit Claim Deed | PARSON, CATHERINE A | PARSON, CATHERINE A | | | $0.00 | 24305 | 4035650 |
| 7 | 09/08/1998 | ESTSEPPROP | Establish Separate Property | PARSON, CATHERINE A | PARSON, CATHERINE A | | | $0.00 | 83953 | 98021213 |
| 8 | 09/01/1998 | OTHER | Other - Misc. Documents | Unknown | PARSON, CATHERINE A | | | $0.00 | 83953 | 98021213 |
| 9 | 08/08/1998 | WD | Warranty Deed | PARSON, CATHERINE A | PARSON, CATHERINE A | | | $0.00 | 93378 | 99019317 |
| 10 | 12/01/1990 | DECREE | Divorce Decree/Legal Separation | BENNEHOFF, BERT W | PARSON, CATHERINE A | | | $0.00 | 6667 | 90023286 |
| 11 | 11/01/1986 | WD | Warranty Deed | BENNEHOFF, BERT W | BENNEHOFF, BERT W | | | $0.00 | 70084 | 87000626 |
| 12 | 01/01/1986 | WD | Warranty Deed | ALLEN, WILLIAM B | BENNEHOFF, BERT W | | | $160,000.00 | 63284 | 86014830 |
| 13 | 03/01/1982 | REC | Real Estate Contract | ALLEN, W B | ALLEN, WILLIAM B | | | $1.00 | 59437 | 5903 |
| 14 | 01/01/1900 | OTHER | Other - Misc. Documents | PARSON, CATHERINE A | ALLEN, W B | | | $0.00 | 0 | 0 |
Payout Agreement
| No payout information available.. |