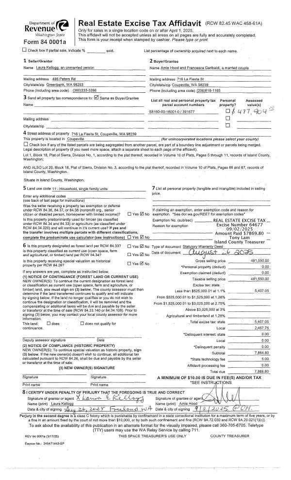
Property
Account |
| Property ID: | 28133 | Abbreviated Legal Description: | 49 ALEX DC - S65' EX W62' OF FOLL:BG 1080'S & 30'W OF NE CR ALEX DC S50' TPB W232 S100' E232' N100' TPB |
| Geographic ID: | R13233-282-3880 | Agent Code: | |
| Type: | Real | | |
| Tax Area: | 300 - APPRAISER-Cpvl Schl Dist, in Cpvl | Land Use Code | 11 |
| Open Space: | N | DFL | N |
| Historic Property: | N | Remodel Property: | N |
| Multi-Family Redevelopment: | N | | |
| Township: | 32 | Section: | 33 |
| Range: | R1 |
Location |
| Address: | 604 N MAIN ST COUPEVILLE, WA 98239 | Mapsco: | |
| Neighborhood: | 2 Main Street Commercial | Map ID: | 175 |
| Neighborhood CD: | 21cCPmain1 |
Owner |
| Name: | YOUNG, EMMA C | Owner ID: | 7282 |
| Mailing Address: | PO BOX 2051 OAK HARBOR, WA 98277-6051 | % Ownership: | 100.0000000000% |
| | | Exemptions: | |
Taxes and Assessment Details
Values
| (+) Improvement Homesite Value: | + | $0 | |
| (+) Improvement Non-Homesite Value: | + | $449,046 | |
| (+) Land Homesite Value: | + | $0 | |
| (+) Land Non-Homesite Value: | + | $240,000 | |
| (+) Curr Use (HS): | + | $0 | $0 |
| (+) Curr Use (NHS): | + | $0 | $0 |
| | | -------------------------- | |
| (=) Market Value: | = | $689,046 | |
| (–) Productivity Loss: | – | $0 | |
| | | -------------------------- | |
| (=) Subtotal: | = | $689,046 | |
| (+) Senior Appraised Value: | + | $0 | |
| (+) Non-Senior Appraised Value: | + | $689,046 | |
| | | -------------------------- | |
| (=) Total Appraised Value: | = | $689,046 | |
| (–) Senior Exemption Loss: | – | $0 | |
| (–) Exemption Loss: | – | $0 | |
| | | -------------------------- | |
| (=) Taxable Value: | = | $689,046 | |
Taxing Jurisdiction
| Owner: | YOUNG, EMMA C | | |
| % Ownership: | 100.0000000000% | | |
| Total Value: | $689,046 | | |
| Tax Area: | 300 - APPRAISER-Cpvl Schl Dist, in Cpvl |
| CF | Conservation Futures | 0.0316035091 | $689,046 | $689,046 | $21.78 | | |
| CEM2 | Cemetery #2 | 0.0095056933 | $689,046 | $689,046 | $6.55 | | |
| COUP | City: Town of Coupeville | 0.8426414490 | $689,046 | $689,046 | $580.62 | | |
| FIRE5 | Fire & Rescue Dist #5 C Whidbey GEN | 1.2008080668 | $689,046 | $689,046 | $827.41 | | |
| FIRE5BOND | Fire & Rescue Dist #5 C Whidbey BOND | 0.1400090713 | $689,046 | $689,046 | $96.47 | | |
| HOBOND | Hospital BOND | 0.1910887512 | $689,046 | $689,046 | $131.67 | | |
| HOGEN | Hospital GEN | 0.3902502903 | $689,046 | $689,046 | $268.90 | | |
| CE | County Current Expense | 0.3708482477 | $689,046 | $689,046 | $255.53 | | |
| ISLANDEMS | Hospital GEN (EMS) | 0.5000000000 | $689,046 | $689,046 | $344.52 | | |
| LIB | Library Sno-Isle GEN | 0.3153421757 | $689,046 | $689,046 | $217.29 | | |
| LIBCAP | Library Sno-Isle BOND (Cap Fac Imp Area) | 0.0543427938 | $689,046 | $689,046 | $37.44 | | |
| POCOUP | Port of Coupeville GEN | 0.1093371703 | $689,046 | $689,046 | $75.34 | | |
| POCOUPIDD | Port of Coupeville IDD | 0.3409740022 | $689,046 | $689,046 | $234.95 | | |
| COUPSDTECH | School 204 CP (TECH) | 0.7545480007 | $689,046 | $689,046 | $519.92 | | |
| SCH204MO | School 204 Enrichment | 0.6716186034 | $689,046 | $689,046 | $462.78 | | |
| ST | State School | 1.3035497053 | $689,046 | $689,046 | $898.21 | | |
| ST2 | State School Part 2 | 0.8169543533 | $689,046 | $689,046 | $562.92 | | |
| | Total Tax Rate: | 8.0434218834 | | | | | |
| | | | | Taxes w/Current Exemptions: | $5,542.30 | | |
| | | | | Taxes w/o Exemptions: | $5,542.30 | | |
Improvement / Building
| Improvement #1: | RESIDENTIAL/COMMERCIAL | State Code: | Y | 2444.7 sqft | Value: | $449,046 |
| Bathrooms: | 2 | Bedrooms: | 2 | | Ceiling: | PLASTER PAINTED | Exterior Wall/Cover: | WOOD SIDING | | Floor Covering: | CARPET/VINYL 80-20 | Floor Structure: | WOOD W/SUBFLOOR | | Foundation: | CONCRETE | Heating: | FHA ELECTRIC | | Interior Finish: | PLASTER | Plumbing Fixture Cnt: | 8 | | Roof Slope: | 12" IN 12" | Roof Structure/Cover: | CJ ASPHALT |
|
| | Type | Description | Class CD | Sub Class CD | Year Built | Area |
| | BAS | BASE/MAIN FLOOR | 4 | 0 | 1888 | 1241.6 |
| | OP1 | OPEN PORCH SLAB | 4 | 0 | 1888 | 120.0 |
| | UPS | UPPER STORY | 4 | 0 | 1888 | 1203.1 |
| | OWC | OPEN WOOD PORCH W/STEPS/ROOF/C | 4 | 0 | 1888 | 75.0 |
| | OWC | OPEN WOOD PORCH W/STEPS/ROOF/C | 4 | 0 | 1888 | 36.0 |
| | UTY | STORAGE/UTILITY | 4 | 0 | 1888 | 360.0 |
| | UTY | STORAGE/UTILITY | 4 | 0 | 1888 | 288.0 |
| | UTY | STORAGE/UTILITY | 4 | 0 | 1888 | 168.0 |
Sketch
Property Image
Land
| 1 | 14 | SQ (08001-12000) | 0.2500 | 10890.00 | 0.00 | 0.00 | 1.00 | $240,000 | $0 |
Roll Value History
| 2026 | N/A | N/A | N/A | N/A | N/A |
| 2025 | $449,046 | $240,000 | $0 | $689,046 | $689,046 |
| 2024 | $431,144 | $240,000 | $0 | $671,144 | $671,144 |
| 2023 | $437,112 | $200,000 | $0 | $637,112 | $637,112 |
| 2022 | $401,216 | $217,800 | $0 | $619,016 | $619,016 |
| 2021 | $353,580 | $217,800 | $0 | $571,380 | $571,380 |
| 2020 | $346,041 | $217,800 | $0 | $563,841 | $563,841 |
| 2019 | $265,365 | $217,800 | $0 | $483,165 | $483,165 |
| 2018 | $105,447 | $150,000 | $0 | $255,447 | $255,447 |
| 2017 | $106,897 | $108,900 | $0 | $215,797 | $215,797 |
| 2016 | $109,786 | $108,900 | $0 | $218,686 | $218,686 |
| 2015 | $112,676 | $108,900 | $0 | $221,576 | $221,576 |
| 2014 | $115,564 | $108,900 | $0 | $224,464 | $224,464 |
| 2013 | $118,453 | $108,900 | $0 | $227,353 | $227,353 |
| 2012 | $127,191 | $97,552 | $0 | $224,743 | $224,743 |
| 2011 | $122,701 | $97,552 | $0 | $220,253 | $220,253 |
| 2010 | $139,498 | $97,552 | $0 | $237,050 | $237,050 |
| 2009 | $146,428 | $131,560 | $0 | $277,988 | $277,988 |
| 2008 | $149,379 | $131,560 | $0 | $280,939 | $280,939 |
| 2007 | $149,379 | $131,560 | $0 | $280,939 | $280,939 |
Deed and Sales History
| 1 | 11/01/1981 | CD | DNU - Correction Deed | YOUNG, HAROLD J | YOUNG, EMMA C | | | $1.00 | 13529 | 390148 |
| 2 | 01/01/1900 | OTHER | Other - Misc. Documents | Unknown | YOUNG, HAROLD J | | | $0.00 | 0 | 0 |
Payout Agreement
| No payout information available.. |