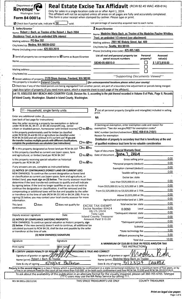
Property
Account |
| Property ID: | 281572 | Abbreviated Legal Description: | HONMN LK 1 LOT 30 TGW & SUB EZ AF#89002586 |
| Geographic ID: | S7180-00-00030-0 | Agent Code: | |
| Type: | Real | | |
| Tax Area: | 310 - APPRAISER-Cpvl Schl Dist, outside Cpvl, improved & 1 acre or less | Land Use Code | 11 |
| Open Space: | N | DFL | N |
| Historic Property: | N | Remodel Property: | N |
| Multi-Family Redevelopment: | N | | |
| Township: | | Section: | |
| Range: | |
Location |
| Address: | 1149 HONEYMOON LAKE DR GREENBANK, WA 98253 | Mapsco: | |
| Neighborhood: | Cycle 3 | Map ID: | 438 |
| Neighborhood CD: | 3 |
Owner |
| Name: | DELAP, DAVID KEITH / THERESA M | Owner ID: | 187372 |
| Mailing Address: | 7206 224TH ST SW EDMONDS, WA 98026-8328 | % Ownership: | 100.0000000000% |
| | | Exemptions: | |
Taxes and Assessment Details
Values
| (+) Improvement Homesite Value: | + | $0 | |
| (+) Improvement Non-Homesite Value: | + | $385,839 | |
| (+) Land Homesite Value: | + | $0 | |
| (+) Land Non-Homesite Value: | + | $350,000 | |
| (+) Curr Use (HS): | + | $0 | $0 |
| (+) Curr Use (NHS): | + | $0 | $0 |
| | | -------------------------- | |
| (=) Market Value: | = | $735,839 | |
| (–) Productivity Loss: | – | $0 | |
| | | -------------------------- | |
| (=) Subtotal: | = | $735,839 | |
| (+) Senior Appraised Value: | + | $0 | |
| (+) Non-Senior Appraised Value: | + | $735,839 | |
| | | -------------------------- | |
| (=) Total Appraised Value: | = | $735,839 | |
| (–) Senior Exemption Loss: | – | $0 | |
| (–) Exemption Loss: | – | $0 | |
| | | -------------------------- | |
| (=) Taxable Value: | = | $735,839 | |
Taxing Jurisdiction
| Owner: | DELAP, DAVID KEITH / THERESA M | | |
| % Ownership: | 100.0000000000% | | |
| Total Value: | $735,839 | | |
| Tax Area: | 310 - APPRAISER-Cpvl Schl Dist, outside Cpvl, improved & 1 acre or less |
| CF | Conservation Futures | 0.0316035091 | $735,839 | $735,839 | $23.26 | | |
| CEM2 | Cemetery #2 | 0.0095056933 | $735,839 | $735,839 | $6.99 | | |
| FIRE5 | Fire & Rescue Dist #5 C Whidbey GEN | 1.2008080668 | $735,839 | $735,839 | $883.60 | | |
| FIRE5BOND | Fire & Rescue Dist #5 C Whidbey BOND | 0.1400090713 | $735,839 | $735,839 | $103.02 | | |
| HOBOND | Hospital BOND | 0.1910887512 | $735,839 | $735,839 | $140.61 | | |
| HOGEN | Hospital GEN | 0.3902502903 | $735,839 | $735,839 | $287.16 | | |
| CE | County Current Expense | 0.3708482477 | $735,839 | $735,839 | $272.88 | | |
| CR | County Roads | 0.4584763726 | $735,839 | $735,839 | $337.36 | | |
| ISLANDEMS | Hospital GEN (EMS) | 0.5000000000 | $735,839 | $735,839 | $367.92 | | |
| LIB | Library Sno-Isle GEN | 0.3153421757 | $735,839 | $735,839 | $232.04 | | |
| LIBCAP | Library Sno-Isle BOND (Cap Fac Imp Area) | 0.0543427938 | $735,839 | $735,839 | $39.99 | | |
| POCOUP | Port of Coupeville GEN | 0.1093371703 | $735,839 | $735,839 | $80.45 | | |
| POCOUPIDD | Port of Coupeville IDD | 0.3409740022 | $735,839 | $735,839 | $250.90 | | |
| COUPSDTECH | School 204 CP (TECH) | 0.7545480007 | $735,839 | $735,839 | $555.23 | | |
| SCH204MO | School 204 Enrichment | 0.6716186034 | $735,839 | $735,839 | $494.20 | | |
| ST | State School | 1.3035497053 | $735,839 | $735,839 | $959.20 | | |
| ST2 | State School Part 2 | 0.8169543533 | $735,839 | $735,839 | $601.15 | | |
| | Total Tax Rate: | 7.6592568070 | | | | | |
| | | | | Taxes w/Current Exemptions: | $5,635.96 | | |
| | | | | Taxes w/o Exemptions: | $5,635.96 | | |
Improvement / Building
| Improvement #1: | RESIDENTIAL | State Code: | Y | 2760.0 sqft | Value: | $385,839 |
| Bathrooms: | 2.5 | Bedrooms: | 3 | | Ceiling: | DRYWALL PAINTED | Exterior Wall/Cover: | SHINGLE | | Floor Covering: | HARDWOOD/CARP 80-20 | Floor Structure: | WOOD W/SUBFLOOR | | Foundation: | CONCRETE | Heating: | (NONE) | | Interior Finish: | DRYWALL PAINT | Plumbing Fixture Cnt: | 14 | | Roof Slope: | 8" IN 12" | Roof Structure/Cover: | CJ ASPHALT |
|
| | Type | Description | Class CD | Sub Class CD | Year Built | Area |
| | BAS | BASE/MAIN FLOOR | 3 | 0 | 2003 | 1158.0 |
| | DWN | DOWNSTAIRS LIVING AREA | 3 | 0 | 2003 | 678.0 |
| | OP2 | OPEN PORCH W/STEPS | 3 | 0 | 2003 | 124.0 |
| | BGR | BASEMENT GARAGE | 3 | 0 | 2003 | 480.0 |
| | UPS | UPPER STORY | 3 | 0 | 2003 | 924.0 |
| | OWP | OPEN WOOD PORCH W/STEPS | 3 | 0 | 2003 | 40.0 |
| | OWP | OPEN WOOD PORCH W/STEPS | 3 | 0 | 2003 | 238.0 |
Sketch
Property Image
Land
| 1 | 14 | SQ (08001-12000) | 0.2700 | 11761.20 | 0.00 | 0.00 | 1.00 | $350,000 | $0 |
Roll Value History
| 2026 | N/A | N/A | N/A | N/A | N/A |
| 2025 | $385,839 | $350,000 | $0 | $735,839 | $735,839 |
| 2024 | $390,647 | $350,000 | $0 | $740,647 | $740,647 |
| 2023 | $395,455 | $270,000 | $0 | $665,455 | $665,455 |
| 2022 | $362,456 | $270,000 | $0 | $632,456 | $632,456 |
| 2021 | $324,435 | $200,000 | $0 | $524,435 | $524,435 |
| 2020 | $315,904 | $200,000 | $0 | $515,904 | $515,904 |
| 2019 | $248,413 | $250,000 | $0 | $498,413 | $498,413 |
| 2018 | $249,134 | $220,000 | $0 | $469,134 | $469,134 |
| 2017 | $250,574 | $170,000 | $0 | $420,574 | $420,574 |
| 2016 | $253,453 | $150,000 | $0 | $403,453 | $403,453 |
| 2015 | $256,335 | $135,000 | $0 | $391,335 | $391,335 |
| 2014 | $259,214 | $100,000 | $0 | $359,214 | $359,214 |
| 2013 | $288,491 | $100,000 | $0 | $388,491 | $388,491 |
| 2012 | $291,632 | $100,000 | $0 | $391,632 | $391,632 |
| 2011 | $294,774 | $100,000 | $0 | $394,774 | $394,774 |
| 2010 | $299,416 | $100,000 | $0 | $399,416 | $399,416 |
| 2009 | $315,215 | $150,000 | $0 | $465,215 | $465,215 |
| 2008 | $315,745 | $150,000 | $0 | $465,745 | $465,745 |
| 2007 | $319,439 | $150,000 | $0 | $469,439 | $469,439 |
Deed and Sales History
| 1 | 03/01/2002 | QCD | Quit Claim Deed | DELAP, DAVID KEITH | DELAP, DAVID KEITH | | | $0.00 | 20774 | 4012682 |
| 2 | 02/20/2001 | WD | Warranty Deed | Unknown | DELAP, DAVID KEITH | | | $33,000.00 | 10559 | 20025898 |
Payout Agreement
| No payout information available.. |