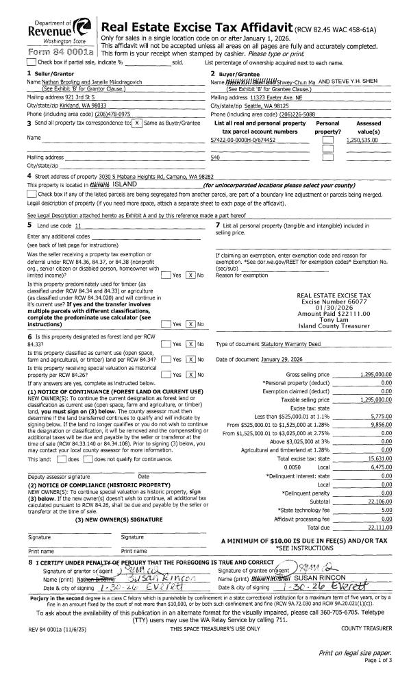
Property
Account |
| Property ID: | 281876 | Abbreviated Legal Description: | HONMN LK 1 LOT 60 |
| Geographic ID: | S7180-00-00060-0 | Agent Code: | |
| Type: | Real | | |
| Tax Area: | 319 - APPRAISER-Cpvl Schl Dist, outside Cpvl, vacant & 50 acres or less | Land Use Code | 99 |
| Open Space: | N | DFL | N |
| Historic Property: | N | Remodel Property: | N |
| Multi-Family Redevelopment: | N | | |
| Township: | | Section: | |
| Range: | |
Location |
| Address: | | Mapsco: | |
| Neighborhood: | Cycle 3 | Map ID: | 438 |
| Neighborhood CD: | 3 |
Owner |
| Name: | DELAP, DAVID KEITH / THERESA M | Owner ID: | 187372 |
| Mailing Address: | 7206 224TH ST SW EDMONDS, WA 98026-8328 | % Ownership: | 100.0000000000% |
| | | Exemptions: | |
Taxes and Assessment Details
Values
| (+) Improvement Homesite Value: | + | $0 | |
| (+) Improvement Non-Homesite Value: | + | $0 | |
| (+) Land Homesite Value: | + | $0 | |
| (+) Land Non-Homesite Value: | + | $12,000 | |
| (+) Curr Use (HS): | + | $0 | $0 |
| (+) Curr Use (NHS): | + | $0 | $0 |
| | | -------------------------- | |
| (=) Market Value: | = | $12,000 | |
| (–) Productivity Loss: | – | $0 | |
| | | -------------------------- | |
| (=) Subtotal: | = | $12,000 | |
| (+) Senior Appraised Value: | + | $0 | |
| (+) Non-Senior Appraised Value: | + | $12,000 | |
| | | -------------------------- | |
| (=) Total Appraised Value: | = | $12,000 | |
| (–) Senior Exemption Loss: | – | $0 | |
| (–) Exemption Loss: | – | $0 | |
| | | -------------------------- | |
| (=) Taxable Value: | = | $12,000 | |
Taxing Jurisdiction
| Owner: | DELAP, DAVID KEITH / THERESA M | | |
| % Ownership: | 100.0000000000% | | |
| Total Value: | $12,000 | | |
| Tax Area: | 319 - APPRAISER-Cpvl Schl Dist, outside Cpvl, vacant & 50 acres or less |
| CF | Conservation Futures | 0.0316035091 | $12,000 | $12,000 | $0.38 | | |
| CEM2 | Cemetery #2 | 0.0095056933 | $12,000 | $12,000 | $0.11 | | |
| HOBOND | Hospital BOND | 0.1910887512 | $12,000 | $12,000 | $2.29 | | |
| HOGEN | Hospital GEN | 0.3902502903 | $12,000 | $12,000 | $4.68 | | |
| CE | County Current Expense | 0.3708482477 | $12,000 | $12,000 | $4.45 | | |
| CR | County Roads | 0.4584763726 | $12,000 | $12,000 | $5.50 | | |
| ISLANDEMS | Hospital GEN (EMS) | 0.5000000000 | $12,000 | $12,000 | $6.00 | | |
| LIB | Library Sno-Isle GEN | 0.3153421757 | $12,000 | $12,000 | $3.78 | | |
| LIBCAP | Library Sno-Isle BOND (Cap Fac Imp Area) | 0.0543427938 | $12,000 | $12,000 | $0.65 | | |
| POCOUP | Port of Coupeville GEN | 0.1093371703 | $12,000 | $12,000 | $1.31 | | |
| POCOUPIDD | Port of Coupeville IDD | 0.3409740022 | $12,000 | $12,000 | $4.09 | | |
| COUPSDTECH | School 204 CP (TECH) | 0.7545480007 | $12,000 | $12,000 | $9.05 | | |
| SCH204MO | School 204 Enrichment | 0.6716186034 | $12,000 | $12,000 | $8.06 | | |
| ST | State School | 1.3035497053 | $12,000 | $12,000 | $15.64 | | |
| ST2 | State School Part 2 | 0.8169543533 | $12,000 | $12,000 | $9.80 | | |
| | Total Tax Rate: | 6.3184396689 | | | | | |
| | | | | Taxes w/Current Exemptions: | $75.79 | | |
| | | | | Taxes w/o Exemptions: | $75.79 | | |
Improvement / Building
Sketch
| No sketches available for this property. |
Property Image
Land
| 1 | 15 | SQ (12001-21780) | 0.3000 | 13068.00 | 0.00 | 0.00 | 1.00 | $12,000 | $0 |
Roll Value History
| 2026 | N/A | N/A | N/A | N/A | N/A |
| 2025 | $0 | $12,000 | $0 | $12,000 | $12,000 |
| 2024 | $0 | $12,000 | $0 | $12,000 | $12,000 |
| 2023 | $0 | $9,000 | $0 | $9,000 | $9,000 |
| 2022 | $0 | $9,000 | $0 | $9,000 | $9,000 |
| 2021 | $0 | $7,000 | $0 | $7,000 | $7,000 |
| 2020 | $0 | $7,000 | $0 | $7,000 | $7,000 |
| 2019 | $0 | $5,000 | $0 | $5,000 | $5,000 |
| 2018 | $0 | $5,000 | $0 | $5,000 | $5,000 |
| 2017 | $0 | $5,000 | $0 | $5,000 | $5,000 |
| 2016 | $0 | $5,000 | $0 | $5,000 | $5,000 |
| 2015 | $0 | $5,000 | $0 | $5,000 | $5,000 |
| 2014 | $0 | $5,000 | $0 | $5,000 | $5,000 |
| 2013 | $4,732 | $5,000 | $0 | $9,732 | $9,732 |
| 2012 | $4,732 | $6,500 | $0 | $11,232 | $11,232 |
| 2011 | $4,732 | $6,500 | $0 | $11,232 | $11,232 |
| 2010 | $4,732 | $6,500 | $0 | $11,232 | $11,232 |
| 2009 | $5,124 | $6,500 | $0 | $11,624 | $11,624 |
| 2008 | $5,512 | $6,500 | $0 | $12,012 | $12,012 |
| 2007 | $1,267 | $14,569 | $0 | $15,836 | $15,836 |
Deed and Sales History
| 1 | 03/01/2002 | QCD | Quit Claim Deed | DELAP, DAVID KEITH | DELAP, DAVID KEITH | | | $0.00 | 20775 | 4012683 |
| 2 | 02/23/2001 | WD | Warranty Deed | KAUFFMAN, CHRISTOPHER/ELLEN | DELAP, DAVID KEITH | | | $24,500.00 | 10580 | 20026000 |
| 3 | 02/01/1993 | WD | Warranty Deed | WELSH, MICHAEL T | KAUFFMAN, CHRISTOPHER/ELLEN | | | $25,000.00 | 30467 | 93002566 |
| 4 | 02/01/1990 | WD | Warranty Deed | WRIGHT, THOMAS C | WELSH, MICHAEL T | | | $9,950.00 | 1047 | 90003459 |
| 5 | 03/01/1979 | OTHER | Other - Misc. Documents | JA, | WRIGHT, THOMAS C | | | $2,700.00 | 90890 | 348242 |
| 6 | 02/01/1979 | OTHER | Other - Misc. Documents | Unknown | JA, | | | $2,700.00 | 908900 | 34824200 |
Payout Agreement
| No payout information available.. |