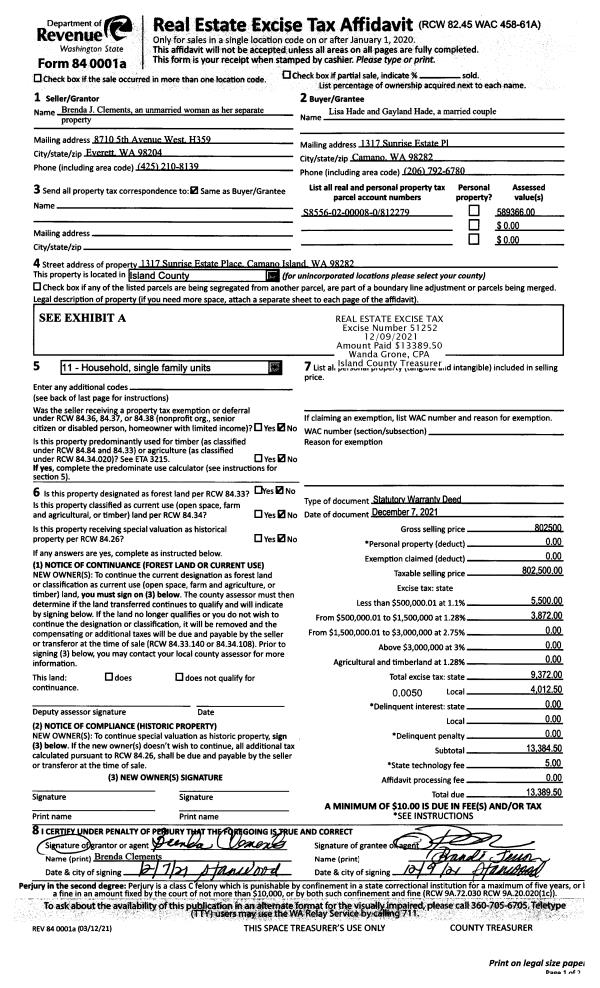
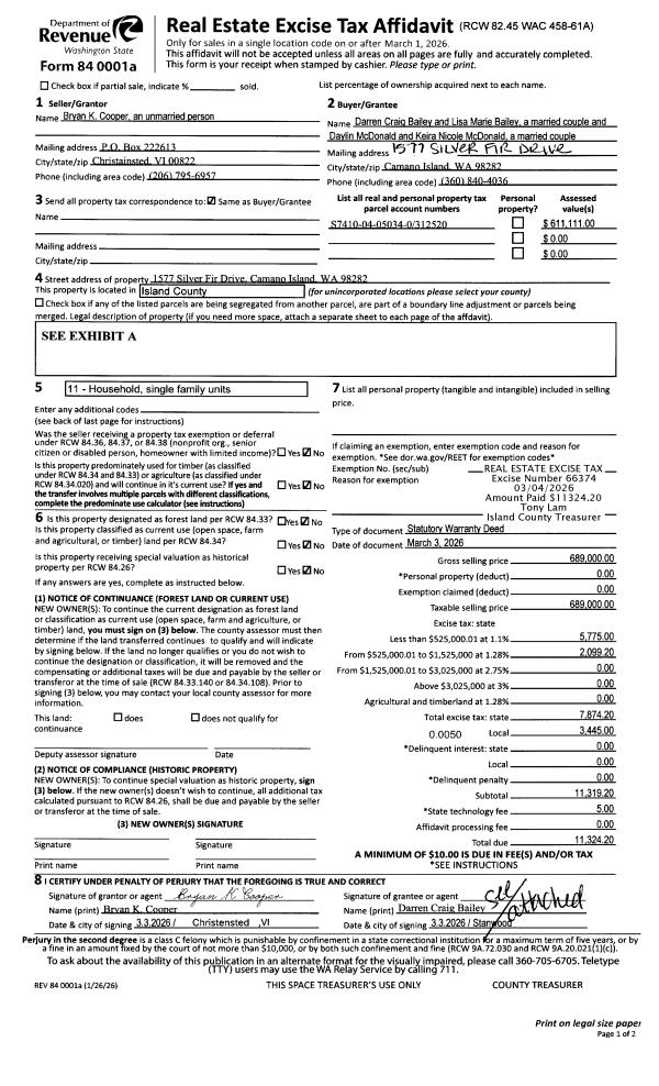
Property
Account |
| Property ID: | 282599 | Abbreviated Legal Description: | HONMN LK 2 LOT 37 |
| Geographic ID: | S7180-02-00037-0 | Agent Code: | |
| Type: | Real | | |
| Tax Area: | 310 - APPRAISER-Cpvl Schl Dist, outside Cpvl, improved & 1 acre or less | Land Use Code | 11 |
| Open Space: | N | DFL | N |
| Historic Property: | N | Remodel Property: | N |
| Multi-Family Redevelopment: | N | | |
| Township: | | Section: | |
| Range: | |
Location |
| Address: | 4307 WALDEN LOOP GREENBANK, WA 98253 | Mapsco: | |
| Neighborhood: | Cycle 3 | Map ID: | 422 |
| Neighborhood CD: | 3 |
Owner |
| Name: | NOLTENSMEYER, KURT JON | Owner ID: | 301891 |
| Mailing Address: | 4307 WALDEN LOOP GREENBANK, WA 98253 | % Ownership: | 100.0000000000% |
| | | Exemptions: | |
Taxes and Assessment Details
Values
| (+) Improvement Homesite Value: | + | $0 | |
| (+) Improvement Non-Homesite Value: | + | $322,208 | |
| (+) Land Homesite Value: | + | $0 | |
| (+) Land Non-Homesite Value: | + | $260,000 | |
| (+) Curr Use (HS): | + | $0 | $0 |
| (+) Curr Use (NHS): | + | $0 | $0 |
| | | -------------------------- | |
| (=) Market Value: | = | $582,208 | |
| (–) Productivity Loss: | – | $0 | |
| | | -------------------------- | |
| (=) Subtotal: | = | $582,208 | |
| (+) Senior Appraised Value: | + | $0 | |
| (+) Non-Senior Appraised Value: | + | $582,208 | |
| | | -------------------------- | |
| (=) Total Appraised Value: | = | $582,208 | |
| (–) Senior Exemption Loss: | – | $0 | |
| (–) Exemption Loss: | – | $0 | |
| | | -------------------------- | |
| (=) Taxable Value: | = | $582,208 | |
Taxing Jurisdiction
| Owner: | NOLTENSMEYER, KURT JON | | |
| % Ownership: | 100.0000000000% | | |
| Total Value: | $582,208 | | |
| Tax Area: | 310 - APPRAISER-Cpvl Schl Dist, outside Cpvl, improved & 1 acre or less |
| CF | Conservation Futures | 0.0316035091 | $582,208 | $582,208 | $18.40 | | |
| CEM2 | Cemetery #2 | 0.0095056933 | $582,208 | $582,208 | $5.53 | | |
| FIRE5 | Fire & Rescue Dist #5 C Whidbey GEN | 1.2008080668 | $582,208 | $582,208 | $699.12 | | |
| FIRE5BOND | Fire & Rescue Dist #5 C Whidbey BOND | 0.1400090713 | $582,208 | $582,208 | $81.51 | | |
| HOBOND | Hospital BOND | 0.1910887512 | $582,208 | $582,208 | $111.25 | | |
| HOGEN | Hospital GEN | 0.3902502903 | $582,208 | $582,208 | $227.21 | | |
| CE | County Current Expense | 0.3708482477 | $582,208 | $582,208 | $215.91 | | |
| CR | County Roads | 0.4584763726 | $582,208 | $582,208 | $266.93 | | |
| ISLANDEMS | Hospital GEN (EMS) | 0.5000000000 | $582,208 | $582,208 | $291.10 | | |
| LIB | Library Sno-Isle GEN | 0.3153421757 | $582,208 | $582,208 | $183.59 | | |
| LIBCAP | Library Sno-Isle BOND (Cap Fac Imp Area) | 0.0543427938 | $582,208 | $582,208 | $31.64 | | |
| POCOUP | Port of Coupeville GEN | 0.1093371703 | $582,208 | $582,208 | $63.66 | | |
| POCOUPIDD | Port of Coupeville IDD | 0.3409740022 | $582,208 | $582,208 | $198.52 | | |
| COUPSDTECH | School 204 CP (TECH) | 0.7545480007 | $582,208 | $582,208 | $439.30 | | |
| SCH204MO | School 204 Enrichment | 0.6716186034 | $582,208 | $582,208 | $391.02 | | |
| ST | State School | 1.3035497053 | $582,208 | $582,208 | $758.94 | | |
| ST2 | State School Part 2 | 0.8169543533 | $582,208 | $582,208 | $475.64 | | |
| | Total Tax Rate: | 7.6592568070 | | | | | |
| | | | | Taxes w/Current Exemptions: | $4,459.27 | | |
| | | | | Taxes w/o Exemptions: | $4,459.27 | | |
Improvement / Building
| Improvement #1: | RESIDENTIAL | State Code: | Y | 1524.0 sqft | Value: | $322,208 |
| Bathrooms: | 1.75 | Bedrooms: | 2 | | Ceiling: | DRYWALL PAINTED | Exterior Wall/Cover: | CEMENT FIBER | | Floor Covering: | TILE CERAMIC | Floor Structure: | SLAB ABOVE GRADE | | Foundation: | CONCRETE | Heating: | RADIANT FLOOR | | Interior Finish: | DRYWALL PAINT | Plumbing Fixture Cnt: | 11 | | Roof Slope: | 6" IN 12" | Roof Structure/Cover: | CJ ALUMINIUM HEAVY |
|
| | Type | Description | Class CD | Sub Class CD | Year Built | Area |
| | BAS | BASE/MAIN FLOOR | 3 | 0 | 2003 | 1524.0 |
| | OP4 | OPEN PORCH W/CEILING-ROOF | 3 | 0 | 2003 | 51.0 |
| | AGR | ATTACHED GARAGE | 3 | 0 | 2003 | 420.0 |
Sketch
Property Image
Land
| 1 | 14 | SQ (08001-12000) | 0.0000 | 0.00 | 0.00 | 0.00 | 1.00 | $260,000 | $0 |
Roll Value History
| 2026 | N/A | N/A | N/A | N/A | N/A |
| 2025 | $322,208 | $260,000 | $0 | $582,208 | $582,208 |
| 2024 | $326,077 | $230,000 | $0 | $556,077 | $556,077 |
| 2023 | $329,948 | $220,000 | $0 | $549,948 | $549,948 |
| 2022 | $302,283 | $220,000 | $0 | $522,283 | $522,283 |
| 2021 | $265,905 | $150,000 | $0 | $415,905 | $415,905 |
| 2020 | $258,938 | $140,000 | $0 | $398,938 | $99,576 |
| 2019 | $186,154 | $180,000 | $0 | $366,154 | $99,576 |
| 2018 | $186,687 | $140,000 | $0 | $326,687 | $99,576 |
| 2017 | $187,754 | $100,000 | $0 | $287,754 | $99,576 |
| 2016 | $189,888 | $60,000 | $0 | $249,888 | $99,576 |
| 2015 | $192,021 | $60,000 | $0 | $252,021 | $99,576 |
| 2014 | $194,155 | $60,000 | $0 | $254,155 | $99,576 |
| 2013 | $188,939 | $60,000 | $0 | $248,939 | $99,576 |
| 2012 | $191,040 | $60,000 | $0 | $251,040 | $251,040 |
| 2011 | $193,139 | $65,000 | $0 | $258,139 | $258,139 |
| 2010 | $200,290 | $65,000 | $0 | $265,290 | $265,290 |
| 2009 | $210,809 | $65,000 | $0 | $275,809 | $275,809 |
| 2008 | $210,944 | $65,000 | $0 | $275,944 | $275,944 |
| 2007 | $213,222 | $65,000 | $0 | $278,222 | $278,222 |
Deed and Sales History
| 1 | 11/01/2021 | QCD | Quit Claim Deed | SPROUSE, STACY | NOLTENSMEYER, KURT JON | | | $0.00 | 50802 | 4533360 |
| 2 | 11/01/2021 | WD | Warranty Deed | ESTRELLA, SUZANNAH M | NOLTENSMEYER, KURT JON | | | $535,750.00 | 50801 | 4533359 |
| 3 | 06/02/2014 | WD | Warranty Deed | NICHOLS, DOROTHY L | ESTRELLA, SUZANNAH M | | | $240,000.00 | 15497 | 4360286 |
| 4 | 06/15/1999 | QCD | Quit Claim Deed | NICHOLS, DOROTHY L | NICHOLS, DOROTHY L | | | $0.00 | 92677 | 99015963 |
| 5 | 03/01/1997 | WD | Warranty Deed | NICHOLS, DOROTHY L | NICHOLS, DOROTHY L | | | $18,000.00 | 70832 | 97003780 |
| 6 | 03/01/1997 | ESTSEPPROP | Establish Separate Property | CASSANO, BARRY A | NICHOLS, DOROTHY L | | | $0.00 | 70833 | 97003781 |
| 7 | 11/01/1992 | WD | Warranty Deed | BRAMAN, ROBERT A | CASSANO, BARRY A | | | $0.00 | 30203 | 93000990 |
| 8 | 05/01/1990 | QCD | Quit Claim Deed | CASSANO, BARRY A | BRAMAN, ROBERT A | | | $0.00 | 2653 | 90008626 |
| 9 | 05/01/1990 | WD | Warranty Deed | BRAMAN, ROBERT A | CASSANO, BARRY A | | | $9,350.00 | 2654 | 90008627 |
| 10 | 08/01/1986 | WD | Warranty Deed | NW, PROGRESSIVE B | BRAMAN, ROBERT A | | | $0.00 | 62087 | 86009781 |
| 11 | 07/01/1979 | TRUSTEED | Trustee's Deed | HONEYMOON, LAKE I | NW, PROGRESSIVE B | | | $39,600.00 | 93368 | 355426 |
| 12 | 01/01/1900 | OTHER | Other - Misc. Documents | Unknown | HONEYMOON, LAKE I | | | $0.00 | 0 | 0 |
Payout Agreement
| No payout information available.. |