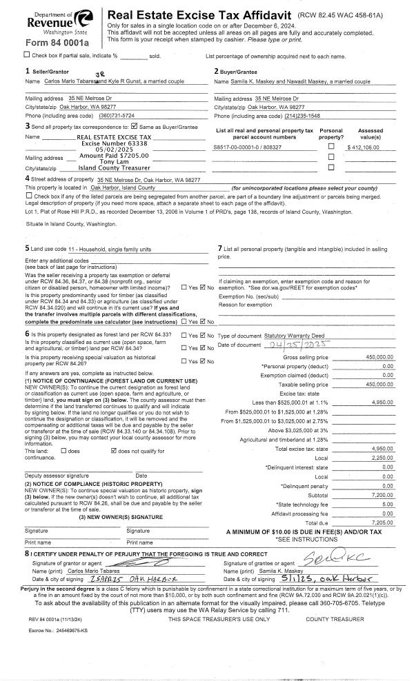
Property
Account |
| Property ID: | 282893 | Abbreviated Legal Description: | HONMN LK 2 LOT 67 TGW & SUB EZ AF#92014698 |
| Geographic ID: | S7180-02-00067-0 | Agent Code: | |
| Type: | Real | | |
| Tax Area: | 310 - APPRAISER-Cpvl Schl Dist, outside Cpvl, improved & 1 acre or less | Land Use Code | 11 |
| Open Space: | N | DFL | N |
| Historic Property: | N | Remodel Property: | N |
| Multi-Family Redevelopment: | N | | |
| Township: | | Section: | |
| Range: | |
Location |
| Address: | 1096 WORTHY PL GREENBANK, WA 98253 | Mapsco: | |
| Neighborhood: | Cycle 3 | Map ID: | 422 |
| Neighborhood CD: | 3 |
Owner |
| Name: | FALLON, TRENT R | Owner ID: | 315020 |
| Mailing Address: | ALOHI LILIANA ELLIOT 221 PARK AVE LANGLEY, WA 98260 | % Ownership: | 100.0000000000% |
| | | Exemptions: | |
Taxes and Assessment Details
Values
| (+) Improvement Homesite Value: | + | $0 | |
| (+) Improvement Non-Homesite Value: | + | $149,440 | |
| (+) Land Homesite Value: | + | $0 | |
| (+) Land Non-Homesite Value: | + | $170,000 | |
| (+) Curr Use (HS): | + | $0 | $0 |
| (+) Curr Use (NHS): | + | $0 | $0 |
| | | -------------------------- | |
| (=) Market Value: | = | $319,440 | |
| (–) Productivity Loss: | – | $0 | |
| | | -------------------------- | |
| (=) Subtotal: | = | $319,440 | |
| (+) Senior Appraised Value: | + | $0 | |
| (+) Non-Senior Appraised Value: | + | $319,440 | |
| | | -------------------------- | |
| (=) Total Appraised Value: | = | $319,440 | |
| (–) Senior Exemption Loss: | – | $0 | |
| (–) Exemption Loss: | – | $0 | |
| | | -------------------------- | |
| (=) Taxable Value: | = | $319,440 | |
Taxing Jurisdiction
| Owner: | FALLON, TRENT R | | |
| % Ownership: | 100.0000000000% | | |
| Total Value: | $319,440 | | |
| Tax Area: | 310 - APPRAISER-Cpvl Schl Dist, outside Cpvl, improved & 1 acre or less |
| CF | Conservation Futures | 0.0316035091 | $319,440 | $319,440 | $10.10 | | |
| CEM2 | Cemetery #2 | 0.0095056933 | $319,440 | $319,440 | $3.04 | | |
| FIRE5 | Fire & Rescue Dist #5 C Whidbey GEN | 1.2008080668 | $319,440 | $319,440 | $383.59 | | |
| FIRE5BOND | Fire & Rescue Dist #5 C Whidbey BOND | 0.1400090713 | $319,440 | $319,440 | $44.72 | | |
| HOBOND | Hospital BOND | 0.1910887512 | $319,440 | $319,440 | $61.04 | | |
| HOGEN | Hospital GEN | 0.3902502903 | $319,440 | $319,440 | $124.66 | | |
| CE | County Current Expense | 0.3708482477 | $319,440 | $319,440 | $118.46 | | |
| CR | County Roads | 0.4584763726 | $319,440 | $319,440 | $146.46 | | |
| ISLANDEMS | Hospital GEN (EMS) | 0.5000000000 | $319,440 | $319,440 | $159.72 | | |
| LIB | Library Sno-Isle GEN | 0.3153421757 | $319,440 | $319,440 | $100.73 | | |
| LIBCAP | Library Sno-Isle BOND (Cap Fac Imp Area) | 0.0543427938 | $319,440 | $319,440 | $17.36 | | |
| POCOUP | Port of Coupeville GEN | 0.1093371703 | $319,440 | $319,440 | $34.93 | | |
| POCOUPIDD | Port of Coupeville IDD | 0.3409740022 | $319,440 | $319,440 | $108.92 | | |
| COUPSDTECH | School 204 CP (TECH) | 0.7545480007 | $319,440 | $319,440 | $241.03 | | |
| SCH204MO | School 204 Enrichment | 0.6716186034 | $319,440 | $319,440 | $214.54 | | |
| ST | State School | 1.3035497053 | $319,440 | $319,440 | $416.41 | | |
| ST2 | State School Part 2 | 0.8169543533 | $319,440 | $319,440 | $260.97 | | |
| | Total Tax Rate: | 7.6592568070 | | | | | |
| | | | | Taxes w/Current Exemptions: | $2,446.68 | | |
| | | | | Taxes w/o Exemptions: | $2,446.68 | | |
Improvement / Building
| Improvement #1: | RESIDENTIAL | State Code: | Y | 1238.7 sqft | Value: | $149,440 |
| Bathrooms: | 1.75 | Bedrooms: | 2 | | Ceiling: | DRYWALL PAINTED | Cooling: | HEAT PUMP/CONV/V | | Exterior Wall/Cover: | CEMENT FIBER | Floor Covering: | (NONE) | | Floor Structure: | WOOD W/SUBFLOOR | Foundation: | CONCRETE | | Interior Finish: | DRYWALL PAINT | Plumbing Fixture Cnt: | 9 | | Roof Slope: | 4" IN 12" | Roof Structure/Cover: | CJ ASPHALT |
|
| | Type | Description | Class CD | Sub Class CD | Year Built | Area |
| | BAS | BASE/MAIN FLOOR | 3 | 0 | 2025 | 1238.7 |
| | OWR | OPEN WOOD PORCH W/STEPS/ROOF | 3 | 0 | 2025 | 64.0 |
Sketch
| No sketches available for this property. |
Property Image
Land
| 1 | 14 | SQ (08001-12000) | 0.2000 | 8712.00 | 0.00 | 0.00 | 1.00 | $170,000 | $0 |
Roll Value History
| 2026 | N/A | N/A | N/A | N/A | N/A |
| 2025 | $149,440 | $170,000 | $0 | $319,440 | $319,440 |
| 2024 | $0 | $70,000 | $0 | $70,000 | $70,000 |
| 2023 | $0 | $70,000 | $0 | $70,000 | $70,000 |
| 2022 | $0 | $70,000 | $0 | $70,000 | $70,000 |
| 2021 | $0 | $60,000 | $0 | $60,000 | $60,000 |
| 2020 | $0 | $40,000 | $0 | $40,000 | $40,000 |
| 2019 | $0 | $40,000 | $0 | $40,000 | $40,000 |
| 2018 | $0 | $30,000 | $0 | $30,000 | $30,000 |
| 2017 | $0 | $30,000 | $0 | $30,000 | $30,000 |
| 2016 | $0 | $60,000 | $0 | $60,000 | $60,000 |
| 2015 | $0 | $60,000 | $0 | $60,000 | $60,000 |
| 2014 | $0 | $60,000 | $0 | $60,000 | $60,000 |
| 2013 | $0 | $60,000 | $0 | $60,000 | $60,000 |
| 2012 | $0 | $60,000 | $0 | $60,000 | $60,000 |
| 2011 | $0 | $65,000 | $0 | $65,000 | $65,000 |
| 2010 | $0 | $65,000 | $0 | $65,000 | $65,000 |
| 2009 | $0 | $65,000 | $0 | $65,000 | $65,000 |
| 2008 | $0 | $65,000 | $0 | $65,000 | $65,000 |
| 2007 | $0 | $65,000 | $0 | $65,000 | $65,000 |
Deed and Sales History
| 1 | 12/30/2024 | QCD | Quit Claim Deed | FALLON, TRENT | FALLON, TRENT R | | | $0.00 | 62221 | 4580868 |
| 2 | 07/23/2019 | WD | Warranty Deed | SMITH, FRANCES C | FALLON, TRENT | | | $32,000.00 | 39635 | 4468319 |
| 3 | 03/07/1997 | QCD | Quit Claim Deed | WHITTEN, RICHARD S | SMITH, FRANCES C | | | $0.00 | 35615 | 4450564 |
| 4 | 07/01/1992 | WD | Warranty Deed | HONEYMOON, LAKE I | WHITTEN, RICHARD S | | | $17,500.00 | 23028 | 92014696 |
| 5 | 01/01/1900 | OTHER | Other - Misc. Documents | Unknown | HONEYMOON, LAKE I | | | $0.00 | 0 | 0 |
Payout Agreement
| No payout information available.. |