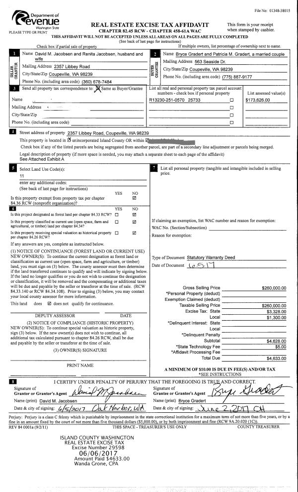
Property
Account |
| Property ID: | 28295 | Abbreviated Legal Description: | 13 - BG @ INTER HWY & WLN ALEX DC S200' W50' N200' E50' TPB |
| Geographic ID: | R13233-332-1930 | Agent Code: | |
| Type: | Real | | |
| Tax Area: | 300 - APPRAISER-Cpvl Schl Dist, in Cpvl | Land Use Code | 11 |
| Open Space: | N | DFL | N |
| Historic Property: | N | Remodel Property: | N |
| Multi-Family Redevelopment: | N | | |
| Township: | 32 | Section: | 33 |
| Range: | R1 |
Location |
| Address: | | Mapsco: | |
| Neighborhood: | Area 2 Coupeville Non-Waterfront Residential | Map ID: | 174 |
| Neighborhood CD: | 2CPV02R |
Owner |
| Name: | HAJDUCZOK JTWROS, ZINA D | Owner ID: | 280964 |
| Mailing Address: | VOLODYMYR I KUNKO JTWROS 601 MADRONA WAY COUPEVILLE, WA 98239 | % Ownership: | 100.0000000000% |
| | | Exemptions: | |
Taxes and Assessment Details
Values
| (+) Improvement Homesite Value: | + | $0 | |
| (+) Improvement Non-Homesite Value: | + | $21,327 | |
| (+) Land Homesite Value: | + | $0 | |
| (+) Land Non-Homesite Value: | + | $92,000 | |
| (+) Curr Use (HS): | + | $0 | $0 |
| (+) Curr Use (NHS): | + | $0 | $0 |
| | | -------------------------- | |
| (=) Market Value: | = | $113,327 | |
| (–) Productivity Loss: | – | $0 | |
| | | -------------------------- | |
| (=) Subtotal: | = | $113,327 | |
| (+) Senior Appraised Value: | + | $0 | |
| (+) Non-Senior Appraised Value: | + | $113,327 | |
| | | -------------------------- | |
| (=) Total Appraised Value: | = | $113,327 | |
| (–) Senior Exemption Loss: | – | $0 | |
| (–) Exemption Loss: | – | $0 | |
| | | -------------------------- | |
| (=) Taxable Value: | = | $113,327 | |
Taxing Jurisdiction
| Owner: | HAJDUCZOK JTWROS, ZINA D | | |
| % Ownership: | 100.0000000000% | | |
| Total Value: | $113,327 | | |
| Tax Area: | 300 - APPRAISER-Cpvl Schl Dist, in Cpvl |
| CF | Conservation Futures | 0.0316035091 | $113,327 | $113,327 | $3.58 | | |
| CEM2 | Cemetery #2 | 0.0095056933 | $113,327 | $113,327 | $1.08 | | |
| COUP | City: Town of Coupeville | 0.8426414490 | $113,327 | $113,327 | $95.49 | | |
| FIRE5 | Fire & Rescue Dist #5 C Whidbey GEN | 1.2008080668 | $113,327 | $113,327 | $136.08 | | |
| FIRE5BOND | Fire & Rescue Dist #5 C Whidbey BOND | 0.1400090713 | $113,327 | $113,327 | $15.87 | | |
| HOBOND | Hospital BOND | 0.1910887512 | $113,327 | $113,327 | $21.66 | | |
| HOGEN | Hospital GEN | 0.3902502903 | $113,327 | $113,327 | $44.23 | | |
| CE | County Current Expense | 0.3708482477 | $113,327 | $113,327 | $42.03 | | |
| ISLANDEMS | Hospital GEN (EMS) | 0.5000000000 | $113,327 | $113,327 | $56.66 | | |
| LIB | Library Sno-Isle GEN | 0.3153421757 | $113,327 | $113,327 | $35.74 | | |
| LIBCAP | Library Sno-Isle BOND (Cap Fac Imp Area) | 0.0543427938 | $113,327 | $113,327 | $6.16 | | |
| POCOUP | Port of Coupeville GEN | 0.1093371703 | $113,327 | $113,327 | $12.39 | | |
| POCOUPIDD | Port of Coupeville IDD | 0.3409740022 | $113,327 | $113,327 | $38.64 | | |
| COUPSDTECH | School 204 CP (TECH) | 0.7545480007 | $113,327 | $113,327 | $85.51 | | |
| SCH204MO | School 204 Enrichment | 0.6716186034 | $113,327 | $113,327 | $76.11 | | |
| ST | State School | 1.3035497053 | $113,327 | $113,327 | $147.73 | | |
| ST2 | State School Part 2 | 0.8169543533 | $113,327 | $113,327 | $92.58 | | |
| | Total Tax Rate: | 8.0434218834 | | | | | |
| | | | | Taxes w/Current Exemptions: | $911.54 | | |
| | | | | Taxes w/o Exemptions: | $911.54 | | |
Improvement / Building
| Improvement #1: | RESIDENTIAL | State Code: | Y | 0.0 sqft | Value: | $21,327 |
Sketch
| No sketches available for this property. |
Property Image
Land
| 1 | 91 | UNDEVELOPED LAND-METES AND BOUNDS | 0.2200 | 9583.20 | 0.00 | 0.00 | 1.00 | $92,000 | $0 |
Roll Value History
| 2026 | N/A | N/A | N/A | N/A | N/A |
| 2025 | $21,327 | $92,000 | $0 | $113,327 | $113,327 |
| 2024 | $21,741 | $95,000 | $0 | $116,741 | $116,741 |
| 2023 | $21,741 | $95,000 | $0 | $116,741 | $116,741 |
| 2022 | $21,741 | $95,000 | $0 | $116,741 | $116,741 |
| 2021 | $21,741 | $75,000 | $0 | $96,741 | $96,741 |
| 2020 | $21,741 | $75,000 | $0 | $96,741 | $96,741 |
| 2019 | $21,741 | $75,000 | $0 | $96,741 | $96,741 |
| 2018 | $0 | $75,000 | $0 | $75,000 | $75,000 |
| 2017 | $0 | $75,000 | $0 | $75,000 | $75,000 |
| 2016 | $0 | $75,000 | $0 | $75,000 | $75,000 |
| 2015 | $0 | $75,000 | $0 | $75,000 | $75,000 |
| 2014 | $0 | $75,000 | $0 | $75,000 | $75,000 |
| 2013 | $0 | $75,000 | $0 | $75,000 | $75,000 |
| 2012 | $0 | $75,000 | $0 | $75,000 | $75,000 |
| 2011 | $0 | $75,000 | $0 | $75,000 | $75,000 |
| 2010 | $0 | $75,000 | $0 | $75,000 | $75,000 |
| 2009 | $0 | $85,000 | $0 | $85,000 | $85,000 |
| 2008 | $0 | $90,000 | $0 | $90,000 | $90,000 |
| 2007 | $0 | $90,000 | $0 | $90,000 | $90,000 |
Deed and Sales History
| 1 | 06/07/2017 | WD | Warranty Deed | CLARK TRUSTEE, WILLIAM A | HAJDUCZOK JTWROS, ZINA D | | | $525,000.00 | 30213 | 4426407 |
|   | |
| 2 | 01/08/2016 | TRUSTEED | Trustee's Deed | CLARK, WILLIAM A | CLARK TRUSTEE, WILLIAM A | | | $0.00 | 22804 | 4392406 |
| 3 | 10/29/2012 | WD | Warranty Deed | SHORT, MURRIEAL I | CLARK, WILLIAM A | | | $225,000.00 | 9333 | 4326339 |
|   | |
| 4 | 04/02/2007 | PRD | Personal Representatives Deed | SHORT, MURRIEAL I | SHORT, MURRIEAL I | | | $0.00 | 71125 | 4198602 |
| 5 | 12/04/2002 | 5 | DNU - Marriage License/Name Change | SHORT, EDWARD E/MURRIEAL | SHORT, MURRIEAL I | | | $0.00 | 69711 | 0 |
| 6 | 01/01/1900 | OTHER | Other - Misc. Documents | Unknown | SHORT, EDWARD E/MURRIEAL | | | $0.00 | 0 | 0 |
Payout Agreement
| No payout information available.. |