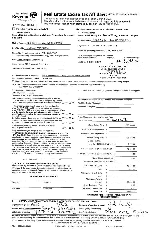
Property
Account |
| Property ID: | 28302 | Abbreviated Legal Description: | 80 ALEX DC - PT BLK 9 & ADJ VAC RACE & ALEXANDER STS IN ALEX-GLENWOOD: BG 80'W & 9'N OF SECR BLK 9 S75' W80' N75' E TPB |
| Geographic ID: | R13233-344-3560 | Agent Code: | |
| Type: | Real | | |
| Tax Area: | 300 - APPRAISER-Cpvl Schl Dist, in Cpvl | Land Use Code | 11 |
| Open Space: | N | DFL | N |
| Historic Property: | N | Remodel Property: | N |
| Multi-Family Redevelopment: | N | | |
| Township: | 32 | Section: | 33 |
| Range: | R1 |
Location |
| Address: | 24 NW 8th st COUPEVILLE, WA 98239 | Mapsco: | |
| Neighborhood: | Area 2 Commercial North West | Map ID: | 175 |
| Neighborhood CD: | 21cCPwest |
Owner |
| Name: | OLIVER, CARL D | Owner ID: | 310751 |
| Mailing Address: | PO BOX 1500 COUPEVILLE, WA 98239 | % Ownership: | 100.0000000000% |
| | | Exemptions: | |
Taxes and Assessment Details
Values
| (+) Improvement Homesite Value: | + | $0 | |
| (+) Improvement Non-Homesite Value: | + | $652,127 | |
| (+) Land Homesite Value: | + | $0 | |
| (+) Land Non-Homesite Value: | + | $300,000 | |
| (+) Curr Use (HS): | + | $0 | $0 |
| (+) Curr Use (NHS): | + | $0 | $0 |
| | | -------------------------- | |
| (=) Market Value: | = | $952,127 | |
| (–) Productivity Loss: | – | $0 | |
| | | -------------------------- | |
| (=) Subtotal: | = | $952,127 | |
| (+) Senior Appraised Value: | + | $0 | |
| (+) Non-Senior Appraised Value: | + | $952,127 | |
| | | -------------------------- | |
| (=) Total Appraised Value: | = | $952,127 | |
| (–) Senior Exemption Loss: | – | $0 | |
| (–) Exemption Loss: | – | $0 | |
| | | -------------------------- | |
| (=) Taxable Value: | = | $952,127 | |
Taxing Jurisdiction
| Owner: | OLIVER, CARL D | | |
| % Ownership: | 100.0000000000% | | |
| Total Value: | $952,127 | | |
| Tax Area: | 300 - APPRAISER-Cpvl Schl Dist, in Cpvl |
| CF | Conservation Futures | 0.0316035091 | $952,127 | $952,127 | $30.09 | | |
| CEM2 | Cemetery #2 | 0.0095056933 | $952,127 | $952,127 | $9.05 | | |
| COUP | City: Town of Coupeville | 0.8426414490 | $952,127 | $952,127 | $802.30 | | |
| FIRE5 | Fire & Rescue Dist #5 C Whidbey GEN | 1.2008080668 | $952,127 | $952,127 | $1,143.32 | | |
| FIRE5BOND | Fire & Rescue Dist #5 C Whidbey BOND | 0.1400090713 | $952,127 | $952,127 | $133.31 | | |
| HOBOND | Hospital BOND | 0.1910887512 | $952,127 | $952,127 | $181.94 | | |
| HOGEN | Hospital GEN | 0.3902502903 | $952,127 | $952,127 | $371.57 | | |
| CE | County Current Expense | 0.3708482477 | $952,127 | $952,127 | $353.09 | | |
| ISLANDEMS | Hospital GEN (EMS) | 0.5000000000 | $952,127 | $952,127 | $476.06 | | |
| LIB | Library Sno-Isle GEN | 0.3153421757 | $952,127 | $952,127 | $300.25 | | |
| LIBCAP | Library Sno-Isle BOND (Cap Fac Imp Area) | 0.0543427938 | $952,127 | $952,127 | $51.74 | | |
| POCOUP | Port of Coupeville GEN | 0.1093371703 | $952,127 | $952,127 | $104.10 | | |
| POCOUPIDD | Port of Coupeville IDD | 0.3409740022 | $952,127 | $952,127 | $324.65 | | |
| COUPSDTECH | School 204 CP (TECH) | 0.7545480007 | $952,127 | $952,127 | $718.43 | | |
| SCH204MO | School 204 Enrichment | 0.6716186034 | $952,127 | $952,127 | $639.47 | | |
| ST | State School | 1.3035497053 | $952,127 | $952,127 | $1,241.14 | | |
| ST2 | State School Part 2 | 0.8169543533 | $952,127 | $952,127 | $777.84 | | |
| | Total Tax Rate: | 8.0434218834 | | | | | |
| | | | | Taxes w/Current Exemptions: | $7,658.35 | | |
| | | | | Taxes w/o Exemptions: | $7,658.35 | | |
Improvement / Building
| Improvement #1: | RESIDENTIAL | State Code: | Y | 3843.0 sqft | Value: | $652,127 |
| Bathrooms: | 3.5 | Bedrooms: | 4 | | Ceiling: | DRYWALL PAINTED | Exterior Wall/Cover: | PLY/HARDBOARD T-111 | | Floor Covering: | CARPET/VINYL 60-40 | Floor Structure: | WOOD W/SUBFLOOR | | Foundation: | CONCRETE | Heating: | FHA ELECTRIC | | Interior Finish: | DRYWALL PAINT | Plumbing Fixture Cnt: | 14 | | Roof Slope: | 5" IN 12" | Roof Structure/Cover: | CJ ASPHALT |
|
| | Type | Description | Class CD | Sub Class CD | Year Built | Area |
| | BAS | BASE/MAIN FLOOR | 5 | 0 | 2018 | 1921.5 |
| | AGR | ATTACHED GARAGE | 5 | 0 | 2018 | 552.0 |
| | DWN | DOWNSTAIRS LIVING AREA | 5 | 0 | 2018 | 1921.5 |
| | OP4 | OPEN PORCH W/CEILING-ROOF | 5 | 0 | 2018 | 144.0 |
| | OWC | OPEN WOOD PORCH W/STEPS/ROOF/C | 5 | 0 | 2018 | 189.0 |
Sketch
Property Image
Land
| 1 | 13 | SQ (06001-08000) | 0.1400 | 6098.40 | 0.00 | 0.00 | 1.00 | $300,000 | $0 |
Roll Value History
| 2026 | N/A | N/A | N/A | N/A | N/A |
| 2025 | $652,127 | $300,000 | $0 | $952,127 | $952,127 |
| 2024 | $657,428 | $300,000 | $0 | $957,428 | $957,428 |
| 2023 | $662,731 | $220,000 | $0 | $882,731 | $882,731 |
| 2022 | $604,923 | $180,000 | $0 | $784,923 | $784,923 |
| 2021 | $530,196 | $180,000 | $0 | $710,196 | $710,196 |
| 2020 | $516,542 | $160,000 | $0 | $676,542 | $676,542 |
| 2019 | $455,938 | $170,000 | $0 | $625,938 | $625,938 |
| 2018 | $194,653 | $150,000 | $0 | $344,653 | $344,653 |
| 2017 | $0 | $45,000 | $0 | $45,000 | $45,000 |
| 2016 | $0 | $45,000 | $0 | $45,000 | $45,000 |
| 2015 | $0 | $45,000 | $0 | $45,000 | $45,000 |
| 2014 | $0 | $45,000 | $0 | $45,000 | $45,000 |
| 2013 | $0 | $45,000 | $0 | $45,000 | $45,000 |
| 2012 | $0 | $75,000 | $0 | $75,000 | $75,000 |
| 2011 | $0 | $56,340 | $0 | $56,340 | $56,340 |
| 2010 | $0 | $180,000 | $0 | $180,000 | $180,000 |
| 2009 | $0 | $180,000 | $0 | $180,000 | $180,000 |
| 2008 | $0 | $180,000 | $0 | $180,000 | $180,000 |
| 2007 | $0 | $115,500 | $0 | $115,500 | $115,500 |
Deed and Sales History
| 1 | 11/07/2023 | QCD | Quit Claim Deed | OLIVER TTEE, CRAIG R | OLIVER, CARL D | | | $0.00 | 58598 | 4566999 |
| 2 | 05/11/2023 | WD | Warranty Deed | BLACK, KELLIE | OLIVER, CARL | | | $400,000.00 | 56728 | 4560010 |
| 3 | 02/10/2023 | QCD | Quit Claim Deed | OLIVER JTWROS, CARL | OLIVER TTEE, CRAIG R | | | $0.00 | 56036 | 4557936 |
| 4 | 05/26/2017 | QCD | Quit Claim Deed | OLIVER, CARL | OLIVER JTWROS, CARL | | | $0.00 | 29434 | 4423131 |
| 5 | 10/26/2016 | WD | Warranty Deed | KAZEL, MICHAEL | OLIVER, CARL | | | $143,500.00 | 26720 | 4410364 |
| 6 | 09/18/2013 | ESTSEPPROP | Establish Separate Property | KAZEL, MICHAEL | KAZEL, MICHAEL | | | $0.00 | 12880 | 4348474 |
| 7 | 09/19/2013 | WD | Warranty Deed | VIEWRIDGE INVESTMENTS LLC | KAZEL, MICHAEL | | | $105,000.00 | 12879 | 4348473 |
| 8 | 08/01/2011 | WD | Warranty Deed | POUST, CHARLES A / SANDRA J | VIEWRIDGE INVESTMENTS LLC | | | $160,000.00 | 5162 | 4299205 |
| 9 | 04/01/1997 | WD | Warranty Deed | ALEXANDER, ST P | POUST, CHARLES A | | | $46,500.00 | 71146 | 97005192 |
| 10 | 09/01/1994 | QCD | Quit Claim Deed | ALEXANDER, ST P | ALEXANDER, ST P | | | $7,783.00 | 44019 | 94020733 |
| 11 | 04/01/1993 | WD | Warranty Deed | CARTER, WARREN H | ALEXANDER, ST P | | | $29,700.00 | 31583 | 93008093 |
| 12 | 09/01/1990 | QCD | Quit Claim Deed | STEELE, MILTON H | CARTER, WARREN H | | | $0.00 | 5239 | 90017446 |
| 13 | 09/01/1990 | WD | Warranty Deed | CARTER, WARREN H | STEELE, MILTON H | | | $27,000.00 | 5240 | 90017447 |
| 14 | 06/01/1990 | QCD | Quit Claim Deed | CARTER-RAINEY, NINA L | CARTER, WARREN H | | | $0.00 | 3205 | 90010323 |
| 15 | 06/01/1989 | WD | Warranty Deed | FORRESTER, FRED D | CARTER-RAINEY, NINA L | | | $5,000.00 | 92314 | 89007896 |
Payout Agreement
| No payout information available.. |