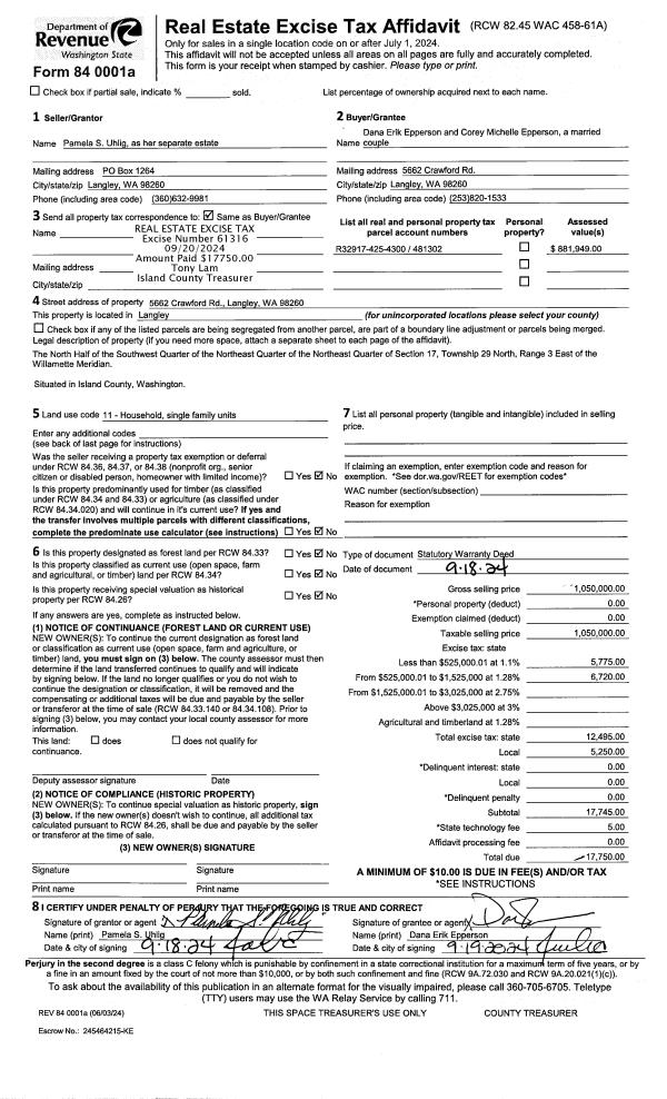
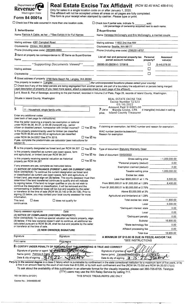
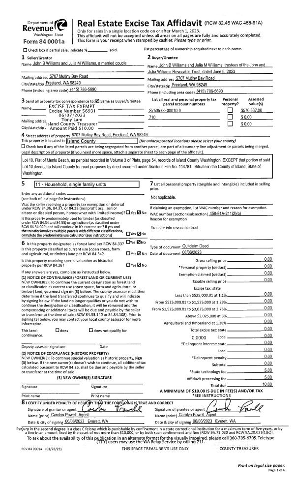
Property
Account |
| Property ID: | 283124 | Abbreviated Legal Description: | HOPE VIEW LOTS 4 & 5 BLK 1 INCL ADJ TIDES TGW EZ AF#91002490 TGW EZ AF#90014797 |
| Geographic ID: | S7190-00-01004-0 | Agent Code: | |
| Type: | Real | | |
| Tax Area: | 110 - APPRAISER-OH Schl Dist, outside OH, improved & 1 acre or less | Land Use Code | 11 |
| Open Space: | N | DFL | N |
| Historic Property: | N | Remodel Property: | N |
| Multi-Family Redevelopment: | N | | |
| Township: | | Section: | |
| Range: | |
Location |
| Address: | 5008 JONES RD OAK HARBOR, WA 98277 | Mapsco: | |
| Neighborhood: | Cycle 6 | Map ID: | 674 |
| Neighborhood CD: | 6 |
Owner |
| Name: | PIERCE, GUY ALAN | Owner ID: | 313412 |
| Mailing Address: | KAREN LOUISE PIERCE 5008 JONES RD OAK HARBOR, WA 98277 | % Ownership: | 100.0000000000% |
| | | Exemptions: | |
Taxes and Assessment Details
Values
| (+) Improvement Homesite Value: | + | $0 | |
| (+) Improvement Non-Homesite Value: | + | $28,923 | |
| (+) Land Homesite Value: | + | $0 | |
| (+) Land Non-Homesite Value: | + | $505,000 | |
| (+) Curr Use (HS): | + | $0 | $0 |
| (+) Curr Use (NHS): | + | $0 | $0 |
| | | -------------------------- | |
| (=) Market Value: | = | $533,923 | |
| (–) Productivity Loss: | – | $0 | |
| | | -------------------------- | |
| (=) Subtotal: | = | $533,923 | |
| (+) Senior Appraised Value: | + | $0 | |
| (+) Non-Senior Appraised Value: | + | $533,923 | |
| | | -------------------------- | |
| (=) Total Appraised Value: | = | $533,923 | |
| (–) Senior Exemption Loss: | – | $0 | |
| (–) Exemption Loss: | – | $0 | |
| | | -------------------------- | |
| (=) Taxable Value: | = | $533,923 | |
Taxing Jurisdiction
| Owner: | PIERCE, GUY ALAN | | |
| % Ownership: | 100.0000000000% | | |
| Total Value: | $533,923 | | |
| Tax Area: | 110 - APPRAISER-OH Schl Dist, outside OH, improved & 1 acre or less |
| CF | Conservation Futures | 0.0316035091 | $533,923 | $533,923 | $16.87 | | |
| CEM1 | Cemetery #1 | 0.0040320932 | $533,923 | $533,923 | $2.15 | | |
| FIRE2 | Fire & Rescue Dist #2 N Whidbey GEN | 0.5475949600 | $533,923 | $533,923 | $292.37 | | |
| HOBOND | Hospital BOND | 0.1910887512 | $533,923 | $533,923 | $102.03 | | |
| HOGEN | Hospital GEN | 0.3902502903 | $533,923 | $533,923 | $208.36 | | |
| CE | County Current Expense | 0.3708482477 | $533,923 | $533,923 | $198.00 | | |
| CR | County Roads | 0.4584763726 | $533,923 | $533,923 | $244.79 | | |
| ISLANDEMS | Hospital GEN (EMS) | 0.5000000000 | $533,923 | $533,923 | $266.96 | | |
| LIB | Library Sno-Isle GEN | 0.3153421757 | $533,923 | $533,923 | $168.37 | | |
| NWHIDPRMT | P & R N Whidbey GEN | 0.2004466701 | $533,923 | $533,923 | $107.02 | | |
| SCH201MO | School 201 Enrichment | 1.8559231640 | $533,923 | $533,923 | $990.92 | | |
| ST | State School | 1.3035497053 | $533,923 | $533,923 | $696.00 | | |
| ST2 | State School Part 2 | 0.8169543533 | $533,923 | $533,923 | $436.19 | | |
| | Total Tax Rate: | 6.9861102925 | | | | | |
| | | | | Taxes w/Current Exemptions: | $3,730.03 | | |
| | | | | Taxes w/o Exemptions: | $3,730.03 | | |
Improvement / Building
| Improvement #1: | MANUFACTURED HOME | State Code: | Y | 1248.0 sqft | Value: | $28,923 |
| Bathrooms: | 0 | Bedrooms: | 0 | | Ceiling: | PLASTER PAINTED | Cooling: | EVAP NO DUCT | | Exterior Wall/Cover: | VINYL | Floor Covering: | CARPET 100% | | Floor Structure: | SLAB ON GRADE | Foundation: | SLAB | | Heating: | FHA ELECTRIC | Interior Finish: | PLASTER | | Plumbing Fixture Cnt: | 1 | Roof Slope: | FLAT | | Roof Structure/Cover: | CJ ALUMINIUM HEAVY |   |   |
|
| | Type | Description | Class CD | Sub Class CD | Year Built | Area |
| | BAS | BASE/MAIN FLOOR | 4 | 0 | 1973 | 1248.0 |
| | OWR | OPEN WOOD PORCH W/STEPS/ROOF | 4 | 0 | 1973 | 78.0 |
| | OP3 | OPEN PORCH W/ROOF | 4 | 0 | 1973 | 125.0 |
Sketch
Property Image
Land
| 1 | HB | HIGH BLUFF | 0.7078 | 30831.77 | 200.00 | 0.00 | 1.00 | $505,000 | $0 |
Roll Value History
| 2026 | N/A | N/A | N/A | N/A | N/A |
| 2025 | $28,923 | $505,000 | $0 | $533,923 | $533,923 |
| 2024 | $28,923 | $505,000 | $0 | $533,923 | $533,923 |
| 2023 | $25,151 | $480,000 | $0 | $505,151 | $505,151 |
| 2022 | $22,774 | $475,000 | $0 | $497,774 | $497,774 |
| 2021 | $19,804 | $275,000 | $0 | $294,804 | $294,804 |
| 2020 | $21,149 | $275,000 | $0 | $296,149 | $296,149 |
| 2019 | $18,173 | $300,000 | $0 | $318,173 | $318,173 |
| 2018 | $18,930 | $200,000 | $0 | $218,930 | $218,930 |
| 2017 | $20,443 | $200,000 | $0 | $220,443 | $220,443 |
| 2016 | $21,201 | $200,000 | $0 | $221,201 | $221,201 |
| 2015 | $22,715 | $200,000 | $0 | $222,715 | $222,715 |
| 2014 | $23,472 | $200,000 | $0 | $223,472 | $223,472 |
| 2013 | $24,986 | $177,234 | $0 | $202,220 | $202,220 |
| 2012 | $26,502 | $177,234 | $0 | $203,736 | $203,736 |
| 2011 | $28,773 | $177,234 | $0 | $206,007 | $206,007 |
| 2010 | $47,622 | $177,234 | $0 | $224,856 | $224,856 |
| 2009 | $50,425 | $211,622 | $0 | $262,047 | $262,047 |
| 2008 | $51,214 | $211,622 | $0 | $262,836 | $262,836 |
| 2007 | $52,791 | $195,288 | $0 | $248,079 | $248,079 |
Deed and Sales History
| 1 | 08/05/2024 | WD | Warranty Deed | ROSE, MEGAN L | PIERCE, GUY ALAN | | | $534,000.00 | 60858 | 4575554 |
| 2 | 05/07/2024 | WD | Warranty Deed | LAPRISE, JON | ROSE, MEGAN L | | | $0.00 | 60402 | 4573769 |
| 3 | 10/26/2021 | WD | Warranty Deed | ROSE, DONNA Z | LAPRISE, JON | | | $325,000.00 | 50691 | 4532670 |
| 4 | 05/23/2017 | QCD | Quit Claim Deed | ROSE TRUSTEE, DONNA Z | ROSE, DONNA Z | | | $0.00 | 29406 | 4423027 |
| 5 | 02/09/2006 | 5 | DNU - Marriage License/Name Change | ROSE, FAMILY T | ROSE TRUSTEE, DONNA Z | | | $0.00 | 60824 | 4163313 |
| 6 | 07/01/1995 | OTHER | Other - Misc. Documents | ROSE, RICHARD A | ROSE, FAMILY T | | | $0.00 | 52337 | 0 |
| 7 | 08/01/1992 | QCD | Quit Claim Deed | ROSE, RICHARD A | ROSE, RICHARD A | | | $0.00 | 23759 | 92018262 |
| 8 | 03/01/1986 | WD | Warranty Deed | FAKKEMA, BETH Z | ROSE, RICHARD A | | | $57,040.00 | 60506 | 86002507 |
| 9 | 01/01/1986 | PRD | Personal Representatives Deed | FAKKEMA, PAUL | FAKKEMA, BETH Z | | | $0.00 | 60034 | 86000144 |
| 10 | 03/01/1966 | TRUSTEED | Trustee's Deed | FAKKEMA, PAUL | FAKKEMA, PAUL | | | $0.00 | 21429 | 0 |
| 11 | 01/01/1900 | OTHER | Other - Misc. Documents | Unknown | FAKKEMA, PAUL | | | $0.00 | 0 | 0 |
Payout Agreement
| No payout information available.. |