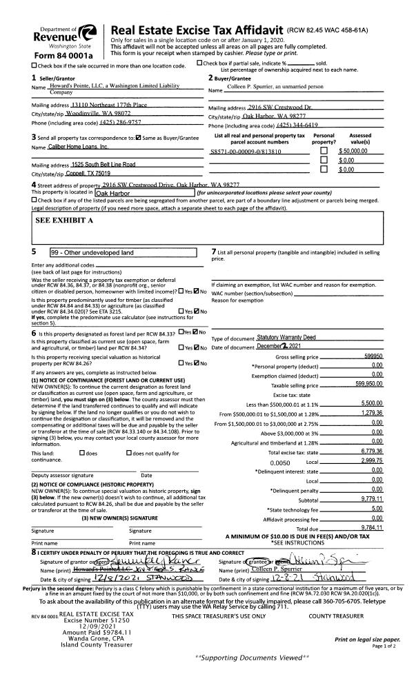
Property
Account |
| Property ID: | 283133 | Abbreviated Legal Description: | HOPE VIEW PTS OF LOTS 1 & 2 BLK 2 DESC: BG SWCR SD LOT 2 N04*W ALG WLN LOTS 1 & 2 60' TPB N70*E176.35' ALG CUR/R 49.83' TO NECR SD LOT 1 ALG NLY & WLY BDRY SD LOT 1 N58*W125.59' S40*W98.70' S04*E95.46' TPB |
| Geographic ID: | S7190-00-02001-0 | Agent Code: | |
| Type: | Real | | |
| Tax Area: | 110 - APPRAISER-OH Schl Dist, outside OH, improved & 1 acre or less | Land Use Code | 11 |
| Open Space: | N | DFL | N |
| Historic Property: | N | Remodel Property: | N |
| Multi-Family Redevelopment: | N | | |
| Township: | | Section: | |
| Range: | |
Location |
| Address: | 4975 BAKERVIEW RD OAK HARBOR, WA 98277 | Mapsco: | |
| Neighborhood: | Cycle 6 | Map ID: | 674 |
| Neighborhood CD: | 6 |
Owner |
| Name: | CASEY, SEAN | Owner ID: | 301888 |
| Mailing Address: | GISELLE CASEY 4975 BAKERVIEW RD OAK HARBOR, WA 98277 | % Ownership: | 100.0000000000% |
| | | Exemptions: | |
Taxes and Assessment Details
Values
| (+) Improvement Homesite Value: | + | $0 | |
| (+) Improvement Non-Homesite Value: | + | $309,027 | |
| (+) Land Homesite Value: | + | $0 | |
| (+) Land Non-Homesite Value: | + | $200,000 | |
| (+) Curr Use (HS): | + | $0 | $0 |
| (+) Curr Use (NHS): | + | $0 | $0 |
| | | -------------------------- | |
| (=) Market Value: | = | $509,027 | |
| (–) Productivity Loss: | – | $0 | |
| | | -------------------------- | |
| (=) Subtotal: | = | $509,027 | |
| (+) Senior Appraised Value: | + | $0 | |
| (+) Non-Senior Appraised Value: | + | $509,027 | |
| | | -------------------------- | |
| (=) Total Appraised Value: | = | $509,027 | |
| (–) Senior Exemption Loss: | – | $0 | |
| (–) Exemption Loss: | – | $0 | |
| | | -------------------------- | |
| (=) Taxable Value: | = | $509,027 | |
Taxing Jurisdiction
| Owner: | CASEY, SEAN | | |
| % Ownership: | 100.0000000000% | | |
| Total Value: | $509,027 | | |
| Tax Area: | 110 - APPRAISER-OH Schl Dist, outside OH, improved & 1 acre or less |
| CF | Conservation Futures | 0.0316035091 | $509,027 | $509,027 | $16.09 | | |
| CEM1 | Cemetery #1 | 0.0040320932 | $509,027 | $509,027 | $2.05 | | |
| FIRE2 | Fire & Rescue Dist #2 N Whidbey GEN | 0.5475949600 | $509,027 | $509,027 | $278.74 | | |
| HOBOND | Hospital BOND | 0.1910887512 | $509,027 | $509,027 | $97.27 | | |
| HOGEN | Hospital GEN | 0.3902502903 | $509,027 | $509,027 | $198.65 | | |
| CE | County Current Expense | 0.3708482477 | $509,027 | $509,027 | $188.77 | | |
| CR | County Roads | 0.4584763726 | $509,027 | $509,027 | $233.38 | | |
| ISLANDEMS | Hospital GEN (EMS) | 0.5000000000 | $509,027 | $509,027 | $254.51 | | |
| LIB | Library Sno-Isle GEN | 0.3153421757 | $509,027 | $509,027 | $160.52 | | |
| NWHIDPRMT | P & R N Whidbey GEN | 0.2004466701 | $509,027 | $509,027 | $102.03 | | |
| SCH201MO | School 201 Enrichment | 1.8559231640 | $509,027 | $509,027 | $944.72 | | |
| ST | State School | 1.3035497053 | $509,027 | $509,027 | $663.54 | | |
| ST2 | State School Part 2 | 0.8169543533 | $509,027 | $509,027 | $415.85 | | |
| | Total Tax Rate: | 6.9861102925 | | | | | |
| | | | | Taxes w/Current Exemptions: | $3,556.12 | | |
| | | | | Taxes w/o Exemptions: | $3,556.12 | | |
Improvement / Building
| Improvement #1: | RESIDENTIAL | State Code: | Y | 2051.0 sqft | Value: | $309,027 |
| Bathrooms: | 2 | Bedrooms: | 3 | | Ceiling: | DRYWALL PAINTED | Cooling: | HEAT PUMP/CONV/V | | Exterior Wall/Cover: | PLY/HARDBOARD T-111 | Floor Covering: | CARPET/VINYL 80-20 | | Floor Structure: | WOOD W/SUBFLOOR | Foundation: | CONCRETE | | Interior Finish: | DRYWALL PAINT | Plumbing Fixture Cnt: | 10 | | Roof Slope: | 5" IN 12" | Roof Structure/Cover: | CJ ASPHALT |
|
| | Type | Description | Class CD | Sub Class CD | Year Built | Area |
| | BAS | BASE/MAIN FLOOR | 3 | 0 | 1989 | 1459.0 |
| | AGR | ATTACHED GARAGE | 3 | 0 | 1989 | 500.0 |
| | OWP | OPEN WOOD PORCH W/STEPS | 3 | 0 | 1989 | 454.0 |
| | OWP | OPEN WOOD PORCH W/STEPS | 3 | 0 | 1989 | 29.2 |
| | OWP | OPEN WOOD PORCH W/STEPS | 3 | 0 | 1989 | 228.0 |
| | DWN | DOWNSTAIRS LIVING AREA | 3 | 0 | 1989 | 592.0 |
Sketch
Property Image
Land
| 1 | 15 | SQ (12001-21780) | 0.0000 | 0.00 | 0.00 | 0.00 | 1.00 | $200,000 | $0 |
Roll Value History
| 2026 | N/A | N/A | N/A | N/A | N/A |
| 2025 | $309,027 | $200,000 | $0 | $509,027 | $509,027 |
| 2024 | $313,029 | $190,000 | $0 | $503,029 | $503,029 |
| 2023 | $317,028 | $190,000 | $0 | $507,028 | $507,028 |
| 2022 | $283,463 | $180,000 | $0 | $463,463 | $463,463 |
| 2021 | $249,626 | $130,000 | $0 | $379,626 | $379,626 |
| 2020 | $243,672 | $110,000 | $0 | $353,672 | $353,672 |
| 2019 | $186,760 | $160,000 | $0 | $346,760 | $346,760 |
| 2018 | $187,335 | $140,000 | $0 | $327,335 | $327,335 |
| 2017 | $188,482 | $120,000 | $0 | $308,482 | $308,482 |
| 2016 | $158,224 | $90,000 | $0 | $248,224 | $248,224 |
| 2015 | $160,420 | $90,000 | $0 | $250,420 | $250,420 |
| 2014 | $162,618 | $63,750 | $0 | $226,368 | $226,368 |
| 2013 | $164,818 | $63,750 | $0 | $228,568 | $228,568 |
| 2012 | $167,013 | $63,750 | $0 | $230,763 | $230,763 |
| 2011 | $169,212 | $75,000 | $0 | $244,212 | $244,212 |
| 2010 | $178,877 | $75,000 | $0 | $253,877 | $253,877 |
| 2009 | $186,604 | $85,000 | $0 | $271,604 | $271,604 |
| 2008 | $187,397 | $85,000 | $0 | $272,397 | $272,397 |
| 2007 | $189,706 | $72,100 | $0 | $261,806 | $261,806 |
Deed and Sales History
| 1 | 10/27/2021 | WD | Warranty Deed | WALL, LARRY P & MARIAN J | CASEY, SEAN | | | $500,000.00 | 50798 | 4533342 |
| 2 | 02/01/1993 | QCD | Quit Claim Deed | WALL, LARRY P | SPIEGEL, JOHN G | | | $0.00 | 30384 | 93001972 |
| 3 | 01/01/1993 | WD | Warranty Deed | SPIEGEL, JOHN G | WALL, LARRY P | | | $165,000.00 | 30386 | 93001974 |
| 4 | 02/01/1992 | OTHER | Other - Misc. Documents | SPIEGEL, JOHN G | SPIEGEL, JOHN G | | | $0.00 | 64691 | 92002475 |
| 5 | 04/01/1989 | WD | Warranty Deed | CUNHA, CLIFFORD C | SPIEGEL, JOHN G | | | $22,500.00 | 91329 | 89004655 |
| 6 | 01/01/1900 | OTHER | Other - Misc. Documents | Unknown | CUNHA, CLIFFORD C | | | $0.00 | 0 | 0 |
Payout Agreement
| No payout information available.. |