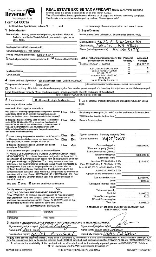
Property
Account |
| Property ID: | 283286 | Abbreviated Legal Description: | HOPE VIEW LOTS 16, 17 & 18 BLK 2 EX: BG MST WLY CR LOT 18 S24*E9.17' N24*E14.45' N24*E48.18' S31*W58.20' TPB TGW PT LOT 9 BLK 2 DESC: BG MST ELY CR LOT 9 N71*W7.30' S24*W60.55' N31*E61.80' TPB |
| Geographic ID: | S7190-00-02017-0 | Agent Code: | |
| Type: | Real | | |
| Tax Area: | 112 - APPRAISER-OH Schl Dist, outside OH, improved, greater than 1 acre | Land Use Code | 11 |
| Open Space: | N | DFL | N |
| Historic Property: | N | Remodel Property: | N |
| Multi-Family Redevelopment: | N | | |
| Township: | | Section: | |
| Range: | |
Location |
| Address: | 5011 JONES RD OAK HARBOR, WA 98277 | Mapsco: | |
| Neighborhood: | Cycle 6 | Map ID: | 674 |
| Neighborhood CD: | 6 |
Owner |
| Name: | KROON, LANI MELISSA | Owner ID: | 314700 |
| Mailing Address: | 5011 JONES RD OAK HARBOR, WA 98277 | % Ownership: | 100.0000000000% |
| | | Exemptions: | |
Taxes and Assessment Details
Values
| (+) Improvement Homesite Value: | + | $0 | |
| (+) Improvement Non-Homesite Value: | + | $365,434 | |
| (+) Land Homesite Value: | + | $0 | |
| (+) Land Non-Homesite Value: | + | $210,000 | |
| (+) Curr Use (HS): | + | $0 | $0 |
| (+) Curr Use (NHS): | + | $0 | $0 |
| | | -------------------------- | |
| (=) Market Value: | = | $575,434 | |
| (–) Productivity Loss: | – | $0 | |
| | | -------------------------- | |
| (=) Subtotal: | = | $575,434 | |
| (+) Senior Appraised Value: | + | $0 | |
| (+) Non-Senior Appraised Value: | + | $575,434 | |
| | | -------------------------- | |
| (=) Total Appraised Value: | = | $575,434 | |
| (–) Senior Exemption Loss: | – | $0 | |
| (–) Exemption Loss: | – | $0 | |
| | | -------------------------- | |
| (=) Taxable Value: | = | $575,434 | |
Taxing Jurisdiction
| Owner: | KROON, LANI MELISSA | | |
| % Ownership: | 100.0000000000% | | |
| Total Value: | $575,434 | | |
| Tax Area: | 112 - APPRAISER-OH Schl Dist, outside OH, improved, greater than 1 acre |
| CF | Conservation Futures | 0.0316035091 | $575,434 | $575,434 | $18.19 | | |
| CEM1 | Cemetery #1 | 0.0040320932 | $575,434 | $575,434 | $2.32 | | |
| FIRE2 | Fire & Rescue Dist #2 N Whidbey GEN | 0.5475949600 | $575,434 | $575,434 | $315.10 | | |
| HOBOND | Hospital BOND | 0.1910887512 | $575,434 | $575,434 | $109.96 | | |
| HOGEN | Hospital GEN | 0.3902502903 | $575,434 | $575,434 | $224.56 | | |
| CE | County Current Expense | 0.3708482477 | $575,434 | $575,434 | $213.40 | | |
| CR | County Roads | 0.4584763726 | $575,434 | $575,434 | $263.82 | | |
| ISLANDEMS | Hospital GEN (EMS) | 0.5000000000 | $575,434 | $575,434 | $287.72 | | |
| LIB | Library Sno-Isle GEN | 0.3153421757 | $575,434 | $575,434 | $181.46 | | |
| NWHIDPRMT | P & R N Whidbey GEN | 0.2004466701 | $575,434 | $575,434 | $115.34 | | |
| SCH201MO | School 201 Enrichment | 1.8559231640 | $575,434 | $575,434 | $1,067.96 | | |
| ST | State School | 1.3035497053 | $575,434 | $575,434 | $750.11 | | |
| ST2 | State School Part 2 | 0.8169543533 | $575,434 | $575,434 | $470.10 | | |
| | Total Tax Rate: | 6.9861102925 | | | | | |
| | | | | Taxes w/Current Exemptions: | $4,020.04 | | |
| | | | | Taxes w/o Exemptions: | $4,020.04 | | |
Improvement / Building
| Improvement #1: | RESIDENTIAL | State Code: | Y | 2736.0 sqft | Value: | $365,434 |
| Bathrooms: | 2.5 | Bedrooms: | 3 | | Ceiling: | DRYWALL PAINTED | Exterior Wall/Cover: | CEMENT FIBER | | Floor Covering: | HARDWOOD/CARP 60-40 | Floor Structure: | WOOD W/SUBFLOOR | | Foundation: | CONCRETE | Heating: | BASEBOARD ELECTRIC | | Interior Finish: | DRYWALL PAINT | Plumbing Fixture Cnt: | 12 | | Roof Slope: | 6" IN 12" | Roof Structure/Cover: | CJ ALUMINIUM HEAVY |
|
| | Type | Description | Class CD | Sub Class CD | Year Built | Area |
| | BAS | BASE/MAIN FLOOR | 3 | 0 | 1963 | 1368.0 |
| | AGR | ATTACHED GARAGE | 3 | 0 | 1963 | 624.0 |
| | OWP | OPEN WOOD PORCH W/STEPS | 3 | 0 | 1963 | 170.4 |
| | OWP | OPEN WOOD PORCH W/STEPS | 3 | 0 | 1963 | 170.8 |
| | DWN | DOWNSTAIRS LIVING AREA | 3 | 0 | 1963 | 1368.0 |
| | UTY | STORAGE/UTILITY | 3 | 0 | 1963 | 768.0 |
Sketch
Property Image
Land
| 1 | 17 | AC (01.01-02.00) | 1.3800 | 60112.80 | 0.00 | 0.00 | 1.00 | $210,000 | $0 |
Roll Value History
| 2026 | N/A | N/A | N/A | N/A | N/A |
| 2025 | $365,434 | $210,000 | $0 | $575,434 | $575,434 |
| 2024 | $377,688 | $200,000 | $0 | $577,688 | $577,688 |
| 2023 | $382,516 | $200,000 | $0 | $582,516 | $582,516 |
| 2022 | $342,002 | $190,000 | $0 | $532,002 | $532,002 |
| 2021 | $301,189 | $140,000 | $0 | $441,189 | $441,189 |
| 2020 | $294,370 | $120,000 | $0 | $414,370 | $414,370 |
| 2019 | $232,732 | $180,000 | $0 | $412,732 | $412,732 |
| 2018 | $233,447 | $150,000 | $0 | $383,447 | $383,447 |
| 2017 | $231,547 | $135,000 | $0 | $366,547 | $366,547 |
| 2016 | $201,776 | $120,000 | $0 | $321,776 | $321,776 |
| 2015 | $204,832 | $105,000 | $0 | $309,832 | $309,832 |
| 2014 | $207,889 | $65,000 | $0 | $272,889 | $272,889 |
| 2013 | $210,946 | $70,000 | $0 | $280,946 | $280,946 |
| 2012 | $214,003 | $89,250 | $0 | $303,253 | $303,253 |
| 2011 | $217,061 | $105,000 | $0 | $322,061 | $322,061 |
| 2010 | $222,802 | $105,000 | $0 | $327,802 | $327,802 |
| 2009 | $232,355 | $120,000 | $0 | $352,355 | $352,355 |
| 2008 | $235,573 | $106,000 | $0 | $341,573 | $341,573 |
| 2007 | $238,848 | $93,215 | $0 | $332,063 | $332,063 |
Deed and Sales History
| 1 | 11/26/2024 | PRD | Personal Representatives Deed | KROON, ERIC | KROON, LANI MELISSA | | | $0.00 | 61951 | 4579880 |
| 2 | 05/15/2017 | QCD | Quit Claim Deed | KROON, ERIC | KROON, ERIC | | | $0.00 | 29278 | 4422491 |
| 3 | 05/10/2017 | WD | Warranty Deed | MCDOUGALL, ALLAN K | KROON, ERIC | | | $490,000.00 | 29276 | 4422490 |
| 4 | 05/15/2015 | NAMECHG | DNU - Name Change Order | MCDOUGALL, ALLAN K | MCDOUGALL, ALLAN K | | | | 86156 | |
| 5 | 09/26/2003 | BLA | DNU - Boundary Line Adjustment | MCDOUGALL, ALLAN K | MCDOUGALL, ALLAN K | | | $0.00 | 70023 | 4040034 |
| 6 | 04/09/2003 | ESTSEPPROP | Establish Separate Property | MCDOUGALL, ALLAN K | MCDOUGALL, ALLAN K | | | $0.00 | 31650 | 4055996 |
| 7 | 09/01/1997 | WD | Warranty Deed | RIMMER, EVANGELINE P | MCDOUGALL, ALLAN K | | | $207,000.00 | 73384 | 97016002 |
| 8 | 11/01/1991 | TRUSTEED | Trustee's Deed | RIMMER, WALTER H | RIMMER, EVANGELINE P | | | $0.00 | 14310 | 91018734 |
| 9 | 07/01/1986 | OTHER | Other - Misc. Documents | RIMMER, WALTER H | RIMMER, WALTER H | | | $0.00 | 61760 | 86007805 |
| 10 | 03/01/1977 | CD | DNU - Correction Deed | KOETJE, NEIL H | RIMMER, WALTER H | | | $0.00 | 71033 | 0 |
| 11 | 01/01/1900 | OTHER | Other - Misc. Documents | Unknown | KOETJE, NEIL H | | | $0.00 | 0 | 0 |
Payout Agreement
| No payout information available.. |