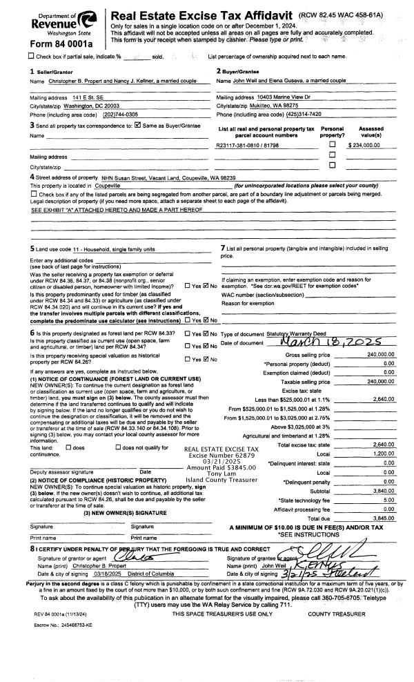
Property
Account |
| Property ID: | 28339 | Abbreviated Legal Description: | 21 ALEX DC - BG INT SLN 1ST ST PROD W & WLN MAIN ST W180' S120' E180' N120' TPB |
| Geographic ID: | R13233-344-3870 | Agent Code: | |
| Type: | Real | | |
| Tax Area: | 300 - APPRAISER-Cpvl Schl Dist, in Cpvl | Land Use Code | 71 |
| Open Space: | N | DFL | N |
| Historic Property: | N | Remodel Property: | N |
| Multi-Family Redevelopment: | N | | |
| Township: | 32 | Section: | 33 |
| Range: | R1 |
Location |
| Address: | 804 N MAIN ST COUPEVILLE, WA 98239 | Mapsco: | |
| Neighborhood: | 2 Main Street Commercial | Map ID: | 175 |
| Neighborhood CD: | 21cCPmain1 |
Owner |
| Name: | HILL MASONIC TEMPLE ASSOC | Owner ID: | 7306 |
| Mailing Address: | PO BOX 700 COUPEVILLE, WA 98239-0700 | % Ownership: | 100.0000000000% |
| | | Exemptions: | |
Taxes and Assessment Details
Values
| (+) Improvement Homesite Value: | + | $0 | |
| (+) Improvement Non-Homesite Value: | + | $194,361 | |
| (+) Land Homesite Value: | + | $0 | |
| (+) Land Non-Homesite Value: | + | $260,000 | |
| (+) Curr Use (HS): | + | $0 | $0 |
| (+) Curr Use (NHS): | + | $0 | $0 |
| | | -------------------------- | |
| (=) Market Value: | = | $454,361 | |
| (–) Productivity Loss: | – | $0 | |
| | | -------------------------- | |
| (=) Subtotal: | = | $454,361 | |
| (+) Senior Appraised Value: | + | $0 | |
| (+) Non-Senior Appraised Value: | + | $454,361 | |
| | | -------------------------- | |
| (=) Total Appraised Value: | = | $454,361 | |
| (–) Senior Exemption Loss: | – | $0 | |
| (–) Exemption Loss: | – | $0 | |
| | | -------------------------- | |
| (=) Taxable Value: | = | $454,361 | |
Taxing Jurisdiction
| Owner: | HILL MASONIC TEMPLE ASSOC | | |
| % Ownership: | 100.0000000000% | | |
| Total Value: | $454,361 | | |
| Tax Area: | 300 - APPRAISER-Cpvl Schl Dist, in Cpvl |
| CF | Conservation Futures | 0.0316035091 | $454,361 | $454,361 | $14.36 | | |
| CEM2 | Cemetery #2 | 0.0095056933 | $454,361 | $454,361 | $4.32 | | |
| COUP | City: Town of Coupeville | 0.8426414490 | $454,361 | $454,361 | $382.86 | | |
| FIRE5 | Fire & Rescue Dist #5 C Whidbey GEN | 1.2008080668 | $454,361 | $454,361 | $545.60 | | |
| FIRE5BOND | Fire & Rescue Dist #5 C Whidbey BOND | 0.1400090713 | $454,361 | $454,361 | $63.61 | | |
| HOBOND | Hospital BOND | 0.1910887512 | $454,361 | $454,361 | $86.82 | | |
| HOGEN | Hospital GEN | 0.3902502903 | $454,361 | $454,361 | $177.31 | | |
| CE | County Current Expense | 0.3708482477 | $454,361 | $454,361 | $168.50 | | |
| ISLANDEMS | Hospital GEN (EMS) | 0.5000000000 | $454,361 | $454,361 | $227.18 | | |
| LIB | Library Sno-Isle GEN | 0.3153421757 | $454,361 | $454,361 | $143.28 | | |
| LIBCAP | Library Sno-Isle BOND (Cap Fac Imp Area) | 0.0543427938 | $454,361 | $454,361 | $24.69 | | |
| POCOUP | Port of Coupeville GEN | 0.1093371703 | $454,361 | $454,361 | $49.68 | | |
| POCOUPIDD | Port of Coupeville IDD | 0.3409740022 | $454,361 | $454,361 | $154.93 | | |
| COUPSDTECH | School 204 CP (TECH) | 0.7545480007 | $454,361 | $454,361 | $342.84 | | |
| SCH204MO | School 204 Enrichment | 0.6716186034 | $454,361 | $454,361 | $305.16 | | |
| ST | State School | 1.3035497053 | $454,361 | $454,361 | $592.28 | | |
| ST2 | State School Part 2 | 0.8169543533 | $454,361 | $454,361 | $371.19 | | |
| | Total Tax Rate: | 8.0434218834 | | | | | |
| | | | | Taxes w/Current Exemptions: | $3,654.61 | | |
| | | | | Taxes w/o Exemptions: | $3,654.61 | | |
Improvement / Building
| Improvement #1: | COMMERCIAL | State Code: | Y | 4260.0 sqft | Value: | $194,361 |
| Bathrooms: | 0 | Bedrooms: | 0 | | Ceiling: | ACOUSTIC FURRED | Exterior Wall/Cover: | HARDBD/WD OR ST STUD | | Floor Covering: | CARPET 100% | Floor Structure: | WOOD ON WOOD JOIST | | Foundation: | CONCRETE | Heating: | FHA ELECTRIC | | Interior Finish: | FRATERNAL | Plumbing Fixture Cnt: | 1 | | Roof Structure/Cover: | COMP OPEN WOOD |   |   |
|
| | Type | Description | Class CD | Sub Class CD | Year Built | Area |
| | BAS | BASE/MAIN FLOOR | 3 | 0 | 1878 | 2040.0 |
| | OP4 | OPEN PORCH W/CEILING-ROOF | 3 | 0 | 1878 | 180.0 |
| | OP3 | OPEN PORCH W/ROOF | 3 | 0 | 1878 | 96.0 |
| | OP1 | OPEN PORCH SLAB | 3 | 0 | 1878 | 36.0 |
| | OP1 | OPEN PORCH SLAB | 3 | 0 | 1878 | 296.0 |
| | UPS | UPPER STORY | 3 | 0 | 1878 | 2220.0 |
| | oPV2 | PV/ASPH 3" | 3 | 0 | 1878 | 4350.0 |
| | oGRC | GAR/CONBLK | 3 | 0 | 1878 | 221.0 |
Sketch
Property Image
Land
| 1 | 64 | PERSONAL BUSINESS | 0.2755 | 20525.47 | 0.00 | 0.00 | 1.00 | $260,000 | $0 |
Roll Value History
| 2026 | N/A | N/A | N/A | N/A | N/A |
| 2025 | $194,361 | $260,000 | $0 | $454,361 | $454,361 |
| 2024 | $167,589 | $240,000 | $0 | $407,589 | $407,589 |
| 2023 | $174,323 | $200,000 | $0 | $374,323 | $374,323 |
| 2022 | $147,288 | $160,000 | $0 | $307,288 | $307,288 |
| 2021 | $146,114 | $160,000 | $0 | $306,114 | $306,114 |
| 2020 | $145,982 | $160,000 | $0 | $305,982 | $305,982 |
| 2019 | $134,406 | $200,000 | $0 | $334,406 | $334,406 |
| 2018 | $88,145 | $180,000 | $0 | $268,145 | $268,145 |
| 2017 | $88,171 | $175,419 | $0 | $263,590 | $263,590 |
| 2016 | $88,198 | $175,419 | $0 | $263,617 | $263,617 |
| 2015 | $88,224 | $175,419 | $0 | $263,643 | $263,643 |
| 2014 | $86,725 | $175,419 | $0 | $262,144 | $262,144 |
| 2013 | $77,269 | $172,800 | $0 | $250,069 | $250,069 |
| 2012 | $106,196 | $143,208 | $0 | $249,404 | $249,404 |
| 2011 | $106,196 | $143,208 | $0 | $249,404 | $249,404 |
| 2010 | $108,468 | $143,208 | $0 | $251,676 | $251,676 |
| 2009 | $111,892 | $193,320 | $0 | $305,212 | $305,212 |
| 2008 | $118,740 | $193,320 | $0 | $312,060 | $312,060 |
| 2007 | $122,164 | $193,320 | $0 | $315,484 | $315,484 |
Deed and Sales History
| 1 | 08/01/1989 | QCD | Quit Claim Deed | WHIDBEY, ISLAND L | HILL, MASONIC T | | | $0.00 | 93462 | 89011591 |
| 2 | 01/01/1900 | OTHER | Other - Misc. Documents | Unknown | WHIDBEY, ISLAND L | | | $0.00 | 0 | 0 |
Payout Agreement
| No payout information available.. |