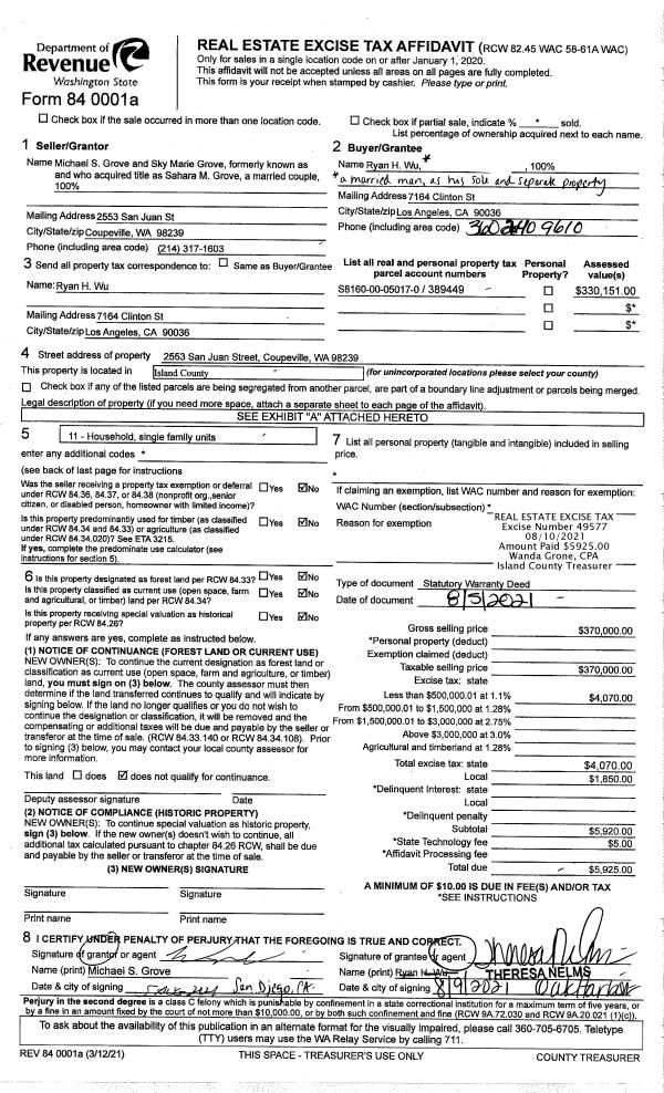
Property
Account |
| Property ID: | 283696 | Abbreviated Legal Description: | HORSE HAVEN 1 LOT 5 |
| Geographic ID: | S7200-00-00005-0 | Agent Code: | |
| Type: | Real | | |
| Tax Area: | 710 - APPRAISER-S Whid Schl Dist, outside Langley, improved & 1 acre or less | Land Use Code | 11 |
| Open Space: | N | DFL | N |
| Historic Property: | N | Remodel Property: | N |
| Multi-Family Redevelopment: | N | | |
| Township: | | Section: | |
| Range: | |
Location |
| Address: | 4930 BLUE LADY LN LANGLEY, WA 98260 | Mapsco: | |
| Neighborhood: | Cycle 4 | Map ID: | 722 |
| Neighborhood CD: | 4 |
Owner |
| Name: | ALFARO SALAZAR, KAREN | Owner ID: | 295879 |
| Mailing Address: | 4930 BLUE LADY LANE LANGLEY, WA 98260 | % Ownership: | 100.0000000000% |
| | | Exemptions: | |
Taxes and Assessment Details
Values
| (+) Improvement Homesite Value: | + | $202,120 | |
| (+) Improvement Non-Homesite Value: | + | $0 | |
| (+) Land Homesite Value: | + | $230,000 | |
| (+) Land Non-Homesite Value: | + | $0 | |
| (+) Curr Use (HS): | + | $0 | $0 |
| (+) Curr Use (NHS): | + | $0 | $0 |
| | | -------------------------- | |
| (=) Market Value: | = | $432,120 | |
| (–) Productivity Loss: | – | $0 | |
| | | -------------------------- | |
| (=) Subtotal: | = | $432,120 | |
| (+) Senior Appraised Value: | + | $0 | |
| (+) Non-Senior Appraised Value: | + | $432,120 | |
| | | -------------------------- | |
| (=) Total Appraised Value: | = | $432,120 | |
| (–) Senior Exemption Loss: | – | $0 | |
| (–) Exemption Loss: | – | $0 | |
| | | -------------------------- | |
| (=) Taxable Value: | = | $432,120 | |
Taxing Jurisdiction
| Owner: | ALFARO SALAZAR, KAREN | | |
| % Ownership: | 100.0000000000% | | |
| Total Value: | $432,120 | | |
| Tax Area: | 710 - APPRAISER-S Whid Schl Dist, outside Langley, improved & 1 acre or less |
| CF | Conservation Futures | 0.0316035091 | $432,120 | $432,120 | $13.66 | | |
| FIRE3 | Fire & Rescue Dist #3 S Whidbey GEN | 1.2004855531 | $432,120 | $432,120 | $518.75 | | |
| HOBOND | Hospital BOND | 0.1910887512 | $432,120 | $432,120 | $82.57 | | |
| HOGEN | Hospital GEN | 0.3902502903 | $432,120 | $432,120 | $168.63 | | |
| CE | County Current Expense | 0.3708482477 | $432,120 | $432,120 | $160.25 | | |
| CR | County Roads | 0.4584763726 | $432,120 | $432,120 | $198.12 | | |
| ISLANDEMS | Hospital GEN (EMS) | 0.5000000000 | $432,120 | $432,120 | $216.06 | | |
| LIB | Library Sno-Isle GEN | 0.3153421757 | $432,120 | $432,120 | $136.27 | | |
| PORTWHID | Port of S Whidbey GEN | 0.1094540357 | $432,120 | $432,120 | $47.30 | | |
| SCH206BOND | School 206 BOND | 0.3161759235 | $432,120 | $432,120 | $136.63 | | |
| SCH206MO | School 206 Enrichment | 0.4547169547 | $432,120 | $432,120 | $196.49 | | |
| ST | State School | 1.3035497053 | $432,120 | $432,120 | $563.29 | | |
| ST2 | State School Part 2 | 0.8169543533 | $432,120 | $432,120 | $353.02 | | |
| SWHIDPRBD | P & R S Whidbey BOND | 0.0152817568 | $432,120 | $432,120 | $6.60 | | |
| SWHIDPRBD2 | P & R S Whidbey BOND2 | 0.0138911264 | $432,120 | $432,120 | $6.00 | | |
| SWHIDPRMT | P & R S Whidbey GEN | 0.2053334452 | $432,120 | $432,120 | $88.73 | | |
| | Total Tax Rate: | 6.6934522006 | | | | | |
| | | | | Taxes w/Current Exemptions: | $2,892.37 | | |
| | | | | Taxes w/o Exemptions: | $2,892.37 | | |
Improvement / Building
| Improvement #1: | RESIDENTIAL | State Code: | Y | 1079.3 sqft | Value: | $202,120 |
| Bathrooms: | 2 | Bedrooms: | 2 | | Ceiling: | DRYWALL PAINTED | Exterior Wall/Cover: | PLY/HARDBOARD T-111 | | Floor Covering: | VINYL TILE | Floor Structure: | WOOD W/SUBFLOOR | | Foundation: | CONCRETE | Heating: | WALL HEAT ELECTRIC | | Interior Finish: | DRYWALL PAINT | Plumbing Fixture Cnt: | 9 | | Roof Slope: | 4" IN 12" | Roof Structure/Cover: | CJ ASPHALT |
|
| | Type | Description | Class CD | Sub Class CD | Year Built | Area |
| | BAS | BASE/MAIN FLOOR | 3 | 0 | 1987 | 1079.3 |
| | OWP | OPEN WOOD PORCH W/STEPS | 3 | 0 | 1987 | 140.4 |
| | OWP | OPEN WOOD PORCH W/STEPS | 3 | 0 | 1987 | 366.3 |
| | OWR | OPEN WOOD PORCH W/STEPS/ROOF | 3 | 0 | 1987 | 121.0 |
Sketch
Property Image
Land
| 1 | 15 | SQ (12001-21780) | 0.0000 | 0.00 | 0.00 | 0.00 | 1.00 | $230,000 | $0 |
Roll Value History
| 2026 | N/A | N/A | N/A | N/A | N/A |
| 2025 | $202,120 | $230,000 | $0 | $432,120 | $432,120 |
| 2024 | $204,671 | $220,000 | $0 | $424,671 | $424,671 |
| 2023 | $207,220 | $220,000 | $0 | $427,220 | $427,220 |
| 2022 | $189,955 | $200,000 | $0 | $389,955 | $389,955 |
| 2021 | $167,177 | $140,000 | $0 | $307,177 | $307,177 |
| 2020 | $145,048 | $130,000 | $0 | $275,048 | $275,048 |
| 2019 | $102,130 | $150,000 | $0 | $252,130 | $100,852 |
| 2018 | $102,452 | $130,000 | $0 | $232,452 | $92,981 |
| 2017 | $102,994 | $110,000 | $0 | $212,994 | $85,198 |
| 2016 | $104,282 | $100,000 | $0 | $204,282 | $81,713 |
| 2015 | $105,569 | $100,000 | $0 | $205,569 | $82,228 |
| 2014 | $90,242 | $100,000 | $0 | $190,242 | $76,097 |
| 2013 | $91,493 | $100,000 | $0 | $191,493 | $76,597 |
| 2012 | $92,743 | $139,500 | $0 | $232,243 | $92,897 |
| 2011 | $93,996 | $155,000 | $0 | $248,996 | $99,598 |
| 2010 | $98,389 | $155,000 | $0 | $253,389 | $101,356 |
| 2009 | $102,728 | $220,000 | $0 | $322,728 | $322,728 |
| 2008 | $104,094 | $245,775 | $0 | $349,869 | $349,869 |
| 2007 | $105,466 | $245,775 | $0 | $351,241 | $351,241 |
Deed and Sales History
| 1 | 08/18/2020 | WD | Warranty Deed | FORRESTER, KAREN ELIZABETH | ALFARO SALAZAR, KAREN | | | $415,000.00 | 44331 | 4494365 |
| 2 | 08/19/2010 | DECREE | Divorce Decree/Legal Separation | FORRESTER, KAREN E | FORRESTER, KAREN ELIZABETH | | | | 2153 | 4279849 |
| 3 | 02/07/2000 | 5 | DNU - Marriage License/Name Change | Unknown | FORRESTER, KAREN E | | | $0.00 | 68584 | 99017868 |
| 4 | 12/01/1993 | OTHER | Other - Misc. Documents | Unknown | BAYLINSON, KAREN E | | | $0.00 | 65678 | 93024309 |
| 5 | 01/01/1900 | OTHER | Other - Misc. Documents | FORRESTER, KAREN E | BAYLINSON, ARNOLD | | | $0.00 | 0 | 0 |
Payout Agreement
| No payout information available.. |