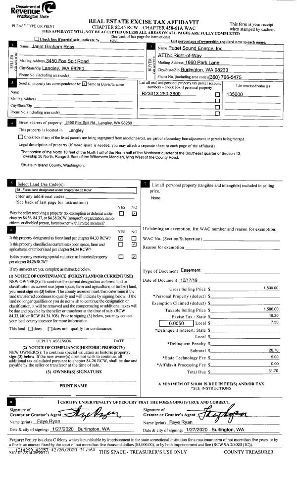
Property
Account |
| Property ID: | 283954 | Abbreviated Legal Description: | HOWELLS TR LOT 20 EX E30' INCL ADJ TIDES |
| Geographic ID: | S7210-00-00020-1 | Agent Code: | |
| Type: | Real | | |
| Tax Area: | 310 - APPRAISER-Cpvl Schl Dist, outside Cpvl, improved & 1 acre or less | Land Use Code | 11 |
| Open Space: | N | DFL | N |
| Historic Property: | N | Remodel Property: | N |
| Multi-Family Redevelopment: | N | | |
| Township: | | Section: | |
| Range: | |
Location |
| Address: | 1332 DINES POINT RD GREENBANK, WA 98253 | Mapsco: | |
| Neighborhood: | Cycle 3 | Map ID: | 405 |
| Neighborhood CD: | 3 |
Owner |
| Name: | WAYLAND TRUSTEE, DANIEL | Owner ID: | 258828 |
| Mailing Address: | DEBORAH WAYLAND TRUSTEE THE WAYLAND REVOCABLE LIVING TRUST 411 E BROOKSHIRE AVE ORANGE, CA 92865 | % Ownership: | 100.0000000000% |
| | | Exemptions: | |
Taxes and Assessment Details
Values
| (+) Improvement Homesite Value: | + | $0 | |
| (+) Improvement Non-Homesite Value: | + | $293,535 | |
| (+) Land Homesite Value: | + | $0 | |
| (+) Land Non-Homesite Value: | + | $725,700 | |
| (+) Curr Use (HS): | + | $0 | $0 |
| (+) Curr Use (NHS): | + | $0 | $0 |
| | | -------------------------- | |
| (=) Market Value: | = | $1,019,235 | |
| (–) Productivity Loss: | – | $0 | |
| | | -------------------------- | |
| (=) Subtotal: | = | $1,019,235 | |
| (+) Senior Appraised Value: | + | $0 | |
| (+) Non-Senior Appraised Value: | + | $1,019,235 | |
| | | -------------------------- | |
| (=) Total Appraised Value: | = | $1,019,235 | |
| (–) Senior Exemption Loss: | – | $0 | |
| (–) Exemption Loss: | – | $0 | |
| | | -------------------------- | |
| (=) Taxable Value: | = | $1,019,235 | |
Taxing Jurisdiction
| Owner: | WAYLAND TRUSTEE, DANIEL | | |
| % Ownership: | 100.0000000000% | | |
| Total Value: | $1,019,235 | | |
| Tax Area: | 310 - APPRAISER-Cpvl Schl Dist, outside Cpvl, improved & 1 acre or less |
| CF | Conservation Futures | 0.0316035091 | $1,019,235 | $1,019,235 | $32.21 | | |
| CEM2 | Cemetery #2 | 0.0095056933 | $1,019,235 | $1,019,235 | $9.69 | | |
| FIRE5 | Fire & Rescue Dist #5 C Whidbey GEN | 1.2008080668 | $1,019,235 | $1,019,235 | $1,223.91 | | |
| FIRE5BOND | Fire & Rescue Dist #5 C Whidbey BOND | 0.1400090713 | $1,019,235 | $1,019,235 | $142.70 | | |
| HOBOND | Hospital BOND | 0.1910887512 | $1,019,235 | $1,019,235 | $194.76 | | |
| HOGEN | Hospital GEN | 0.3902502903 | $1,019,235 | $1,019,235 | $397.76 | | |
| CE | County Current Expense | 0.3708482477 | $1,019,235 | $1,019,235 | $377.98 | | |
| CR | County Roads | 0.4584763726 | $1,019,235 | $1,019,235 | $467.30 | | |
| ISLANDEMS | Hospital GEN (EMS) | 0.5000000000 | $1,019,235 | $1,019,235 | $509.62 | | |
| LIB | Library Sno-Isle GEN | 0.3153421757 | $1,019,235 | $1,019,235 | $321.41 | | |
| LIBCAP | Library Sno-Isle BOND (Cap Fac Imp Area) | 0.0543427938 | $1,019,235 | $1,019,235 | $55.39 | | |
| POCOUP | Port of Coupeville GEN | 0.1093371703 | $1,019,235 | $1,019,235 | $111.44 | | |
| POCOUPIDD | Port of Coupeville IDD | 0.3409740022 | $1,019,235 | $1,019,235 | $347.53 | | |
| COUPSDTECH | School 204 CP (TECH) | 0.7545480007 | $1,019,235 | $1,019,235 | $769.06 | | |
| SCH204MO | School 204 Enrichment | 0.6716186034 | $1,019,235 | $1,019,235 | $684.54 | | |
| ST | State School | 1.3035497053 | $1,019,235 | $1,019,235 | $1,328.62 | | |
| ST2 | State School Part 2 | 0.8169543533 | $1,019,235 | $1,019,235 | $832.67 | | |
| | Total Tax Rate: | 7.6592568070 | | | | | |
| | | | | Taxes w/Current Exemptions: | $7,806.59 | | |
| | | | | Taxes w/o Exemptions: | $7,806.59 | | |
Improvement / Building
| Improvement #1: | RESIDENTIAL | State Code: | Y | 1817.2 sqft | Value: | $293,535 |
| Bathrooms: | 2 | Bedrooms: | 2 | | Ceiling: | DRYWALL PAINTED | Cooling: | HEAT PUMP/CONV/V | | Exterior Wall/Cover: | CEMENT FIBER | Floor Covering: | HARDWOOD/CARP 60-40 | | Floor Structure: | WOOD W/SUBFLOOR | Foundation: | CONCRETE | | Interior Finish: | DRYWALL PAINT | Plumbing Fixture Cnt: | 10 | | Roof Slope: | 4" IN 12" | Roof Structure/Cover: | CJ ALUMINIUM HEAVY |
|
| | Type | Description | Class CD | Sub Class CD | Year Built | Area |
| | BAS | BASE/MAIN FLOOR | 3 | 0 | 1974 | 872.4 |
| | UPS | UPPER STORY | 3 | 0 | 1974 | 944.8 |
| | OWP | OPEN WOOD PORCH W/STEPS | 3 | 0 | 1974 | 24.0 |
| | OWP | OPEN WOOD PORCH W/STEPS | 3 | 0 | 1974 | 208.8 |
| | DGR | DETACHED GARAGE | 3 | 0 | 1974 | 348.0 |
Sketch
Property Image
Land
| 1 | LB | LOW BANK | 0.6700 | 29185.20 | 70.00 | 0.00 | 1.00 | $725,000 | $0 |
| 2 | 55 | TIDES | 0.0000 | 0.00 | 70.00 | 0.00 | 1.00 | $700 | $0 |
Roll Value History
| 2026 | N/A | N/A | N/A | N/A | N/A |
| 2025 | $293,535 | $725,700 | $0 | $1,019,235 | $1,019,235 |
| 2024 | $297,193 | $700,700 | $0 | $997,893 | $997,893 |
| 2023 | $290,169 | $675,700 | $0 | $965,869 | $965,869 |
| 2022 | $265,950 | $675,700 | $0 | $941,650 | $941,650 |
| 2021 | $234,034 | $500,700 | $0 | $734,734 | $734,734 |
| 2020 | $228,197 | $400,700 | $0 | $628,897 | $628,897 |
| 2019 | $172,712 | $450,700 | $0 | $623,412 | $623,412 |
| 2018 | $173,195 | $400,700 | $0 | $573,895 | $573,895 |
| 2017 | $174,098 | $400,700 | $0 | $574,798 | $574,798 |
| 2016 | $176,036 | $400,700 | $0 | $576,736 | $576,736 |
| 2015 | $177,970 | $400,700 | $0 | $578,670 | $578,670 |
| 2014 | $179,907 | $400,700 | $0 | $580,607 | $580,607 |
| 2013 | $165,828 | $424,648 | $0 | $590,476 | $590,476 |
| 2012 | $167,733 | $424,648 | $0 | $592,381 | $592,381 |
| 2011 | $169,637 | $424,648 | $0 | $594,285 | $594,285 |
| 2010 | $179,237 | $424,648 | $0 | $603,885 | $603,885 |
| 2009 | $186,548 | $530,635 | $0 | $717,183 | $717,183 |
| 2008 | $189,112 | $583,628 | $0 | $772,740 | $772,740 |
| 2007 | $139,206 | $506,828 | $0 | $646,034 | $646,034 |
Deed and Sales History
| 1 | 06/29/2012 | TRUSTEED | Trustee's Deed | WAYLAND, DANIEL W | WAYLAND TRUSTEE, DANIEL | | | $0.00 | 8424 | 4320419 |
| 2 | 06/13/2008 | WD | Warranty Deed | KIM, BYUNG H | WAYLAND, DANIEL W | | | $759,000.00 | 81587 | 4231144 |
| 3 | 06/01/1995 | WD | Warranty Deed | YOUNGBLOOD, ELINOR C | KIM, BYUNG H | | | $290,000.00 | 52281 | 95010427 |
| 4 | 01/01/1900 | OTHER | Other - Misc. Documents | Unknown | YOUNGBLOOD, ELINOR C | | | $0.00 | 51487 | 0 |
Payout Agreement
| No payout information available.. |