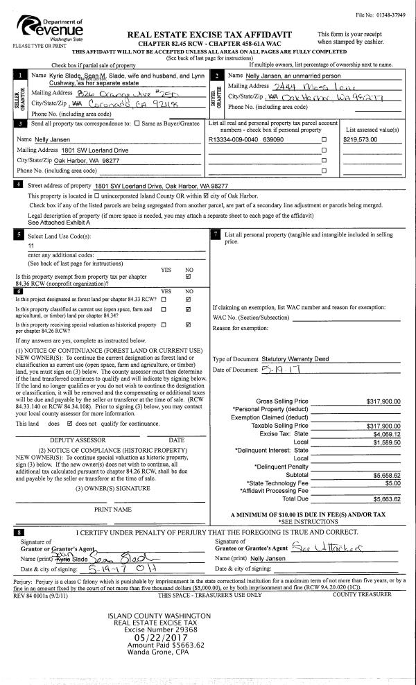
Property
Account |
| Property ID: | 284267 | Abbreviated Legal Description: | IDLEWOOD 1 LOT 10 |
| Geographic ID: | S7220-00-00010-0 | Agent Code: | |
| Type: | Real | | |
| Tax Area: | 540 - APPRAISER-Stan/Cam Schl Dist, Special Dist, improved & less than 1 acre | Land Use Code | 11 |
| Open Space: | N | DFL | N |
| Historic Property: | N | Remodel Property: | N |
| Multi-Family Redevelopment: | N | | |
| Township: | | Section: | |
| Range: | |
Location |
| Address: | 2810 DOGWOOD LN CAMANO ISLAND, WA 98282 | Mapsco: | |
| Neighborhood: | Cycle 5 | Map ID: | 862 |
| Neighborhood CD: | 5 |
Owner |
| Name: | LAW, KRISTY M | Owner ID: | 296726 |
| Mailing Address: | 15215 85TH AVE NE KENMORE, WA 98028 | % Ownership: | 100.0000000000% |
| | | Exemptions: | |
Taxes and Assessment Details
Values
| (+) Improvement Homesite Value: | + | $0 | |
| (+) Improvement Non-Homesite Value: | + | $413,838 | |
| (+) Land Homesite Value: | + | $0 | |
| (+) Land Non-Homesite Value: | + | $210,000 | |
| (+) Curr Use (HS): | + | $0 | $0 |
| (+) Curr Use (NHS): | + | $0 | $0 |
| | | -------------------------- | |
| (=) Market Value: | = | $623,838 | |
| (–) Productivity Loss: | – | $0 | |
| | | -------------------------- | |
| (=) Subtotal: | = | $623,838 | |
| (+) Senior Appraised Value: | + | $0 | |
| (+) Non-Senior Appraised Value: | + | $623,838 | |
| | | -------------------------- | |
| (=) Total Appraised Value: | = | $623,838 | |
| (–) Senior Exemption Loss: | – | $0 | |
| (–) Exemption Loss: | – | $0 | |
| | | -------------------------- | |
| (=) Taxable Value: | = | $623,838 | |
Taxing Jurisdiction
| Owner: | LAW, KRISTY M | | |
| % Ownership: | 100.0000000000% | | |
| Total Value: | $623,838 | | |
| Tax Area: | 540 - APPRAISER-Stan/Cam Schl Dist, Special Dist, improved & less than 1 acre |
| CF | Conservation Futures | 0.0316035091 | $623,838 | $623,838 | $19.72 | | |
| EMS1 | Fire & Rescue Dist #1 Camano GEN (EMS) | 0.3677864386 | $623,838 | $623,838 | $229.44 | | |
| FIRE1 | Fire & Rescue Dist #1 Camano GEN | 1.2502910536 | $623,838 | $623,838 | $779.98 | | |
| FIRE1BOND | Fire & Rescue Dist #1 Camano BOND | 0.1570001679 | $623,838 | $623,838 | $97.94 | | |
| CE | County Current Expense | 0.3708482477 | $623,838 | $623,838 | $231.35 | | |
| CR | County Roads | 0.4584763726 | $623,838 | $623,838 | $286.01 | | |
| LCIB | Library Sno-Isle BOND (Camano Island) | 0.0396325772 | $623,838 | $623,838 | $24.72 | | |
| LIB | Library Sno-Isle GEN | 0.3153421757 | $623,838 | $623,838 | $196.72 | | |
| SCH205_401 | School 205-401 Enrichment | 1.2698420524 | $623,838 | $623,838 | $792.18 | | |
| SCH205BOND | School 205-401 BOND | 0.9396497583 | $623,838 | $623,838 | $586.19 | | |
| ST | State School | 1.3035497053 | $623,838 | $623,838 | $813.20 | | |
| ST2 | State School Part 2 | 0.8169543533 | $623,838 | $623,838 | $509.65 | | |
| | Total Tax Rate: | 7.3209764117 | | | | | |
| | | | | Taxes w/Current Exemptions: | $4,567.10 | | |
| | | | | Taxes w/o Exemptions: | $4,567.10 | | |
Improvement / Building
| Improvement #1: | RESIDENTIAL | State Code: | Y | 1965.8 sqft | Value: | $413,838 |
| Bathrooms: | 2 | Bedrooms: | 3 | | Ceiling: | DRYWALL PAINTED | Cooling: | HEAT PUMP/CONV/V | | Exterior Wall/Cover: | WOOD SIDING | Floor Covering: | HARDWOOD/CARP 60-40 | | Floor Structure: | WOOD W/SUBFLOOR | Foundation: | CONCRETE | | Interior Finish: | DRYWALL PAINT | Plumbing Fixture Cnt: | 9 | | Roof Slope: | 3" IN 12" | Roof Structure/Cover: | CJ ASPHALT |
|
| | Type | Description | Class CD | Sub Class CD | Year Built | Area |
| | BAS | BASE/MAIN FLOOR | 4 | 0 | 1991 | 1965.8 |
| | OP2 | OPEN PORCH W/STEPS | 4 | 0 | 1991 | 20.0 |
| | OP3 | OPEN PORCH W/ROOF | 4 | 0 | 1991 | 45.0 |
| | DGR | DETACHED GARAGE | 4 | 0 | 1991 | 488.8 |
| | OWP | OPEN WOOD PORCH W/STEPS | 4 | 0 | 1991 | 35.0 |
Sketch
Property Image
Land
| 1 | 15 | SQ (12001-21780) | 0.0000 | 0.00 | 0.00 | 0.00 | 1.00 | $210,000 | $0 |
Roll Value History
| 2026 | N/A | N/A | N/A | N/A | N/A |
| 2025 | $413,838 | $210,000 | $0 | $623,838 | $623,838 |
| 2024 | $418,692 | $200,000 | $0 | $618,692 | $618,692 |
| 2023 | $423,547 | $190,000 | $0 | $613,547 | $613,547 |
| 2022 | $387,937 | $180,000 | $0 | $567,937 | $567,937 |
| 2021 | $341,140 | $130,000 | $0 | $471,140 | $471,140 |
| 2020 | $274,541 | $90,000 | $0 | $364,541 | $364,541 |
| 2019 | $209,951 | $130,000 | $0 | $339,951 | $339,951 |
| 2018 | $210,540 | $120,000 | $0 | $330,540 | $330,540 |
| 2017 | $201,006 | $75,000 | $0 | $276,006 | $276,006 |
| 2016 | $194,253 | $50,000 | $0 | $244,253 | $244,253 |
| 2015 | $171,457 | $40,000 | $0 | $211,457 | $211,457 |
| 2014 | $173,571 | $40,000 | $0 | $213,571 | $213,571 |
| 2013 | $175,681 | $40,000 | $0 | $215,681 | $215,681 |
| 2012 | $177,794 | $66,400 | $0 | $244,194 | $244,194 |
| 2011 | $179,907 | $83,000 | $0 | $262,907 | $262,907 |
| 2010 | $186,848 | $83,000 | $0 | $269,848 | $269,848 |
| 2009 | $192,171 | $90,000 | $0 | $282,171 | $282,171 |
| 2008 | $194,471 | $90,000 | $0 | $284,471 | $284,471 |
| 2007 | $196,770 | $116,000 | $0 | $312,770 | $312,770 |
Deed and Sales History
| 1 | 11/10/2020 | QCD | Quit Claim Deed | LAW, KRISTY M | LAW, KRISTY M | | | $0.00 | 45743 | 4502634 |
| 2 | 11/10/2020 | WD | Warranty Deed | WITTY SR, DANIEL E | LAW, KRISTY M | | | $465,000.00 | 45742 | 4502633 |
| 3 | 01/27/2017 | WD | Warranty Deed | MCGREGOR, TOREI WADE | WITTY SR, DANIEL E | | | $325,000.00 | 27928 | 4416225 |
| 4 | 09/01/2015 | WD | Warranty Deed | PAYNE, JAMES R | MCGREGOR, TOREI WADE | | | $269,950.00 | 21253 | 4385417 |
| 5 | 12/01/1989 | WD | Warranty Deed | COBLE, WILLIAM G | PAYNE, JAMES R | | | $15,000.00 | 95791 | 89018602 |
| 6 | 08/01/1983 | PACD | Purchaser's Assignment | COBLE, GARY W | COBLE, WILLIAM G | | | $0.00 | 32526 | 414556 |
| 7 | 06/01/1980 | EXECUTORD | Executor Deed | KOSKI, TONY E | COBLE, GARY W | | | $10,250.00 | 2031 | 370039 |
Payout Agreement
| No payout information available.. |