Property
Account |
| Property ID: | 28437 | Abbreviated Legal Description: | 69 COUPE DC - N12' OF:BG 343'S & 33'E OF NW CR COUPE DC N49.59' E29' S70.19' N54*W35.6'TPB SEE BDY LN AGREE A# 93796 AF# 356640 |
| Geographic ID: | R13233-372-4010 | Agent Code: | |
| Type: | Real | | |
| Tax Area: | 300 - APPRAISER-Cpvl Schl Dist, in Cpvl | Land Use Code | 79 |
| Open Space: | N | DFL | N |
| Historic Property: | N | Remodel Property: | N |
| Multi-Family Redevelopment: | N | | |
| Township: | 32 | Section: | 33 |
| Range: | R1 |
Location |
| Address: | | Mapsco: | |
| Neighborhood: | 2 Front Street Comercial | Map ID: | 175 |
| Neighborhood CD: | 21cCPfront |
Owner |
| Name: | HISTORIC WHIDBEY | Owner ID: | 287737 |
| Mailing Address: | PO BOX 1123 COUPEVILLE, WA 98239 | % Ownership: | 100.0000000000% |
| | | Exemptions: | EX |
Taxes and Assessment Details
Values
| (+) Improvement Homesite Value: | + | $0 | |
| (+) Improvement Non-Homesite Value: | + | $0 | |
| (+) Land Homesite Value: | + | $0 | |
| (+) Land Non-Homesite Value: | + | $450 | |
| (+) Curr Use (HS): | + | $0 | $0 |
| (+) Curr Use (NHS): | + | $0 | $0 |
| | | -------------------------- | |
| (=) Market Value: | = | $450 | |
| (–) Productivity Loss: | – | $0 | |
| | | -------------------------- | |
| (=) Subtotal: | = | $450 | |
| (+) Senior Appraised Value: | + | $0 | |
| (+) Non-Senior Appraised Value: | + | $450 | |
| | | -------------------------- | |
| (=) Total Appraised Value: | = | $450 | |
| (–) Senior Exemption Loss: | – | $0 | |
| (–) Exemption Loss: | – | $450 | |
| | | -------------------------- | |
| (=) Taxable Value: | = | $0 | |
Taxing Jurisdiction
| Owner: | HISTORIC WHIDBEY | | |
| % Ownership: | 100.0000000000% | | |
| Total Value: | $450 | | |
| Tax Area: | 300 - APPRAISER-Cpvl Schl Dist, in Cpvl |
| CF | Conservation Futures | 0.0316035091 | $450 | $0 | $0.00 | | |
| CEM2 | Cemetery #2 | 0.0095056933 | $450 | $0 | $0.00 | | |
| COUP | City: Town of Coupeville | 0.8426414490 | $450 | $0 | $0.00 | | |
| FIRE5 | Fire & Rescue Dist #5 C Whidbey GEN | 1.2008080668 | $450 | $0 | $0.00 | | |
| FIRE5BOND | Fire & Rescue Dist #5 C Whidbey BOND | 0.1400090713 | $450 | $0 | $0.00 | | |
| HOBOND | Hospital BOND | 0.1910887512 | $450 | $0 | $0.00 | | |
| HOGEN | Hospital GEN | 0.3902502903 | $450 | $0 | $0.00 | | |
| CE | County Current Expense | 0.3708482477 | $450 | $0 | $0.00 | | |
| ISLANDEMS | Hospital GEN (EMS) | 0.5000000000 | $450 | $0 | $0.00 | | |
| LIB | Library Sno-Isle GEN | 0.3153421757 | $450 | $0 | $0.00 | | |
| LIBCAP | Library Sno-Isle BOND (Cap Fac Imp Area) | 0.0543427938 | $450 | $0 | $0.00 | | |
| POCOUP | Port of Coupeville GEN | 0.1093371703 | $450 | $0 | $0.00 | | |
| POCOUPIDD | Port of Coupeville IDD | 0.3409740022 | $450 | $0 | $0.00 | | |
| COUPSDTECH | School 204 CP (TECH) | 0.7545480007 | $450 | $0 | $0.00 | | |
| SCH204MO | School 204 Enrichment | 0.6716186034 | $450 | $0 | $0.00 | | |
| ST | State School | 1.3035497053 | $450 | $0 | $0.00 | | |
| ST2 | State School Part 2 | 0.8169543533 | $450 | $0 | $0.00 | | |
| | Total Tax Rate: | 8.0434218834 | | | | | |
| | | | | Taxes w/Current Exemptions: | $0.00 | | |
| | | | | Taxes w/o Exemptions: | $3.62 | | |
Improvement / Building
Sketch
| No sketches available for this property. |
Property Image
Land
| 1 | 68 | COMMERCIAL RETAIL | 0.0085 | 370.26 | 0.00 | 0.00 | 1.00 | $450 | $0 |
Roll Value History
| 2026 | N/A | N/A | N/A | N/A | N/A |
| 2025 | $0 | $450 | $0 | $450 | $0 |
| 2024 | $0 | $450 | $0 | $450 | $0 |
| 2023 | $0 | $450 | $0 | $450 | $0 |
| 2022 | $0 | $450 | $0 | $450 | $0 |
| 2021 | $0 | $450 | $0 | $450 | $0 |
| 2020 | $0 | $450 | $0 | $450 | $0 |
| 2019 | $0 | $450 | $0 | $450 | $0 |
| 2018 | $0 | $5,924 | $0 | $5,924 | $0 |
| 2017 | $0 | $4,443 | $0 | $4,443 | $4,443 |
| 2016 | $0 | $4,443 | $0 | $4,443 | $4,443 |
| 2015 | $0 | $4,443 | $0 | $4,443 | $4,443 |
| 2014 | $0 | $4,443 | $0 | $4,443 | $4,443 |
| 2013 | $0 | $4,443 | $0 | $4,443 | $4,443 |
| 2012 | $0 | $6,990 | $0 | $6,990 | $6,990 |
| 2011 | $0 | $6,990 | $0 | $6,990 | $6,990 |
| 2010 | $0 | $6,990 | $0 | $6,990 | $6,990 |
| 2009 | $0 | $6,990 | $0 | $6,990 | $6,990 |
| 2008 | $0 | $6,990 | $0 | $6,990 | $6,990 |
| 2007 | $0 | $3,256 | $0 | $3,256 | $3,256 |
Deed and Sales History
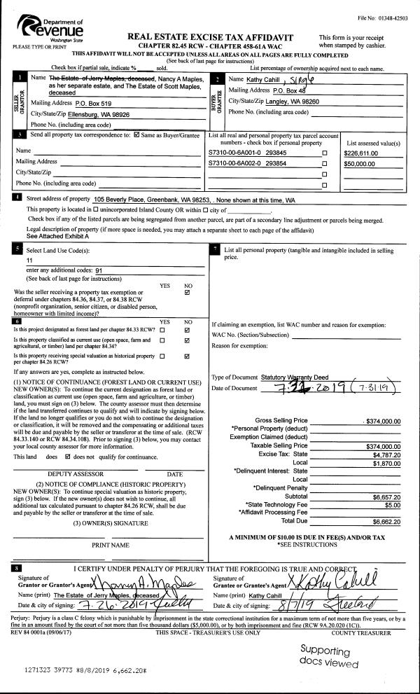
| 1 | 04/10/2019 | WD | Warranty Deed | HISTORIC WHIDBEY | HISTORIC WHIDBEY | | | $0.00 | 39776 | 4468939 |
| 2 | 04/10/2019 | EZ | Easement | HISTORIC WHIDBEY | HISTORIC WHIDBEY | | | $0.00 | 39775 | 4468938 |
| 3 | 10/29/2018 | WD | Warranty Deed | MCPHERSON JTWROS, D J & J H | HISTORIC WHIDBEY | | | $265,000.00 | 36505 | 4454352 |
|   | |
| 4 | 10/29/2018 | EZ | Easement | HISTORIC WHIDBEY | UNITED STATES OF AMERICA | | | $110,000.00 | 36503 | 4454350 |
|   | |
| 5 | 10/04/2006 | WD | Warranty Deed | WILLHIGHT, STANLEY V | MCPHERSON JTWROS, DONALD J & J | | | $3,298.00 | 64336 | 4183608 |
| 6 | 01/01/1900 | OTHER | Other - Misc. Documents | Unknown | WILLHIGHT, STANLEY V | | | $0.00 | 0 | 0 |
Payout Agreement
| No payout information available.. |