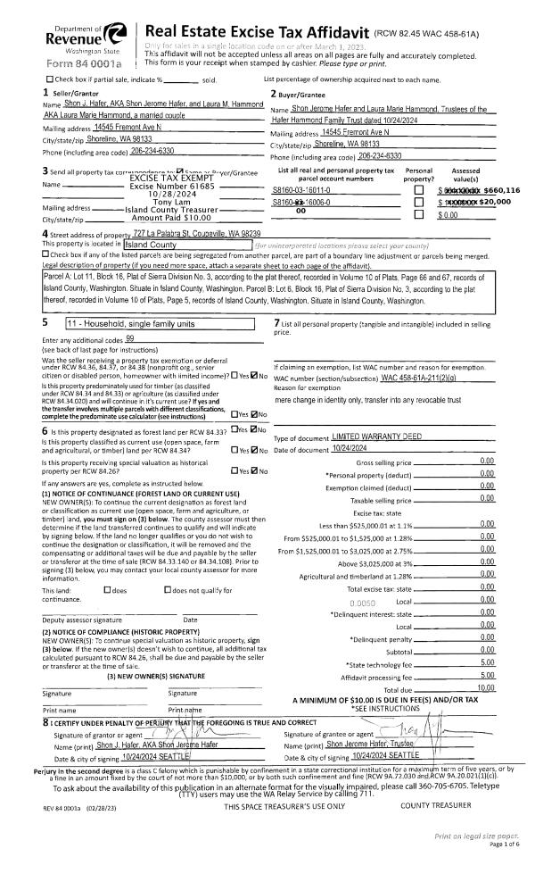
Property
Account |
| Property ID: | 284766 | Abbreviated Legal Description: | INDIAN RDG LOT 2 BLK 2 |
| Geographic ID: | S7225-00-02002-0 | Agent Code: | |
| Type: | Real | | |
| Tax Area: | 110 - APPRAISER-OH Schl Dist, outside OH, improved & 1 acre or less | Land Use Code | 11 |
| Open Space: | N | DFL | N |
| Historic Property: | N | Remodel Property: | N |
| Multi-Family Redevelopment: | N | | |
| Township: | | Section: | |
| Range: | |
Location |
| Address: | 1081 SW HELLER ST OAK HARBOR, WA 98277 | Mapsco: | |
| Neighborhood: | Cycle 1 | Map ID: | 90 |
| Neighborhood CD: | 1 |
Owner |
| Name: | MARTIN, DALTON | Owner ID: | 312635 |
| Mailing Address: | 1081 SW HELLER ST OAK HARBOR, WA 98277 | % Ownership: | 100.0000000000% |
| | | Exemptions: | |
Taxes and Assessment Details
Values
| (+) Improvement Homesite Value: | + | $0 | |
| (+) Improvement Non-Homesite Value: | + | $183,173 | |
| (+) Land Homesite Value: | + | $0 | |
| (+) Land Non-Homesite Value: | + | $200,000 | |
| (+) Curr Use (HS): | + | $0 | $0 |
| (+) Curr Use (NHS): | + | $0 | $0 |
| | | -------------------------- | |
| (=) Market Value: | = | $383,173 | |
| (–) Productivity Loss: | – | $0 | |
| | | -------------------------- | |
| (=) Subtotal: | = | $383,173 | |
| (+) Senior Appraised Value: | + | $0 | |
| (+) Non-Senior Appraised Value: | + | $383,173 | |
| | | -------------------------- | |
| (=) Total Appraised Value: | = | $383,173 | |
| (–) Senior Exemption Loss: | – | $0 | |
| (–) Exemption Loss: | – | $0 | |
| | | -------------------------- | |
| (=) Taxable Value: | = | $383,173 | |
Taxing Jurisdiction
| Owner: | MARTIN, DALTON | | |
| % Ownership: | 100.0000000000% | | |
| Total Value: | $383,173 | | |
| Tax Area: | 110 - APPRAISER-OH Schl Dist, outside OH, improved & 1 acre or less |
| CF | Conservation Futures | 0.0316035091 | $383,173 | $383,173 | $12.11 | | |
| CEM1 | Cemetery #1 | 0.0040320932 | $383,173 | $383,173 | $1.54 | | |
| FIRE2 | Fire & Rescue Dist #2 N Whidbey GEN | 0.5475949600 | $383,173 | $383,173 | $209.82 | | |
| HOBOND | Hospital BOND | 0.1910887512 | $383,173 | $383,173 | $73.22 | | |
| HOGEN | Hospital GEN | 0.3902502903 | $383,173 | $383,173 | $149.53 | | |
| CE | County Current Expense | 0.3708482477 | $383,173 | $383,173 | $142.10 | | |
| CR | County Roads | 0.4584763726 | $383,173 | $383,173 | $175.68 | | |
| ISLANDEMS | Hospital GEN (EMS) | 0.5000000000 | $383,173 | $383,173 | $191.59 | | |
| LIB | Library Sno-Isle GEN | 0.3153421757 | $383,173 | $383,173 | $120.83 | | |
| NWHIDPRMT | P & R N Whidbey GEN | 0.2004466701 | $383,173 | $383,173 | $76.81 | | |
| SCH201MO | School 201 Enrichment | 1.8559231640 | $383,173 | $383,173 | $711.14 | | |
| ST | State School | 1.3035497053 | $383,173 | $383,173 | $499.49 | | |
| ST2 | State School Part 2 | 0.8169543533 | $383,173 | $383,173 | $313.03 | | |
| | Total Tax Rate: | 6.9861102925 | | | | | |
| | | | | Taxes w/Current Exemptions: | $2,676.89 | | |
| | | | | Taxes w/o Exemptions: | $2,676.89 | | |
Improvement / Building
| Improvement #1: | RESIDENTIAL | State Code: | Y | 1200.0 sqft | Value: | $183,173 |
| Bathrooms: | 1 | Bedrooms: | 3 | | Ceiling: | DRYWALL PAINTED | Exterior Wall/Cover: | PLY/HARDBOARD T-111 | | Floor Covering: | VINYL 100% | Floor Structure: | WOOD W/SUBFLOOR | | Foundation: | CONCRETE BLOCKS | Heating: | WALL HEAT ELECTRIC | | Interior Finish: | DRYWALL PAINT | Plumbing Fixture Cnt: | 6 | | Roof Slope: | 3" IN 12" | Roof Structure/Cover: | BEAM ASPHALT |
|
| | Type | Description | Class CD | Sub Class CD | Year Built | Area |
| | BAS | BASE/MAIN FLOOR | 3 | 0 | 1965 | 1200.0 |
| | OWP | OPEN WOOD PORCH W/STEPS | 3 | 0 | 1965 | 176.0 |
Sketch
Property Image
Land
| 1 | 14 | SQ (08001-12000) | 0.0000 | 0.00 | 0.00 | 0.00 | 1.00 | $200,000 | $0 |
Roll Value History
| 2026 | N/A | N/A | N/A | N/A | N/A |
| 2025 | $183,173 | $200,000 | $0 | $383,173 | $383,173 |
| 2024 | $176,612 | $190,000 | $0 | $366,612 | $366,612 |
| 2023 | $174,296 | $190,000 | $0 | $364,296 | $364,296 |
| 2022 | $159,926 | $180,000 | $0 | $339,926 | $339,926 |
| 2021 | $120,075 | $120,000 | $0 | $240,075 | $240,075 |
| 2020 | $117,535 | $100,000 | $0 | $217,535 | $217,535 |
| 2019 | $84,491 | $150,000 | $0 | $234,491 | $234,491 |
| 2018 | $84,805 | $130,000 | $0 | $214,805 | $214,805 |
| 2017 | $80,477 | $110,000 | $0 | $190,477 | $190,477 |
| 2016 | $81,678 | $90,000 | $0 | $171,678 | $171,678 |
| 2015 | $82,879 | $70,000 | $0 | $152,879 | $152,879 |
| 2014 | $84,080 | $55,000 | $0 | $139,080 | $139,080 |
| 2013 | $85,281 | $55,000 | $0 | $140,281 | $140,281 |
| 2012 | $86,483 | $60,000 | $0 | $146,483 | $146,483 |
| 2011 | $93,770 | $50,000 | $0 | $143,770 | $143,770 |
| 2010 | $101,071 | $50,000 | $0 | $151,071 | $151,071 |
| 2009 | $104,216 | $60,000 | $0 | $164,216 | $164,216 |
| 2008 | $105,630 | $72,000 | $0 | $177,630 | $177,630 |
| 2007 | $107,105 | $72,000 | $0 | $179,105 | $179,105 |
Deed and Sales History
| 1 | 06/03/2024 | WD | Warranty Deed | LOUD, JOSHUA C | MARTIN, DALTON | | | $400,000.00 | 60210 | 4573154 |
| 2 | 09/22/2021 | WD | Warranty Deed | THAYER, CHRISTOPHER M | LOUD, JOSHUA C | | | $360,000.00 | 50144 | 4529754 |
| 3 | 08/21/2008 | WD | Warranty Deed | LITRENTA, PHILIP R | THAYER, CHRISTOPHER M | | | $179,000.00 | 82241 | 4235691 |
| 4 | 05/01/1979 | WD | Warranty Deed | Unknown | LITRENTA, PHILIP R | | | $37,000.00 | 92164 | 352099 |
Payout Agreement
| No payout information available.. |