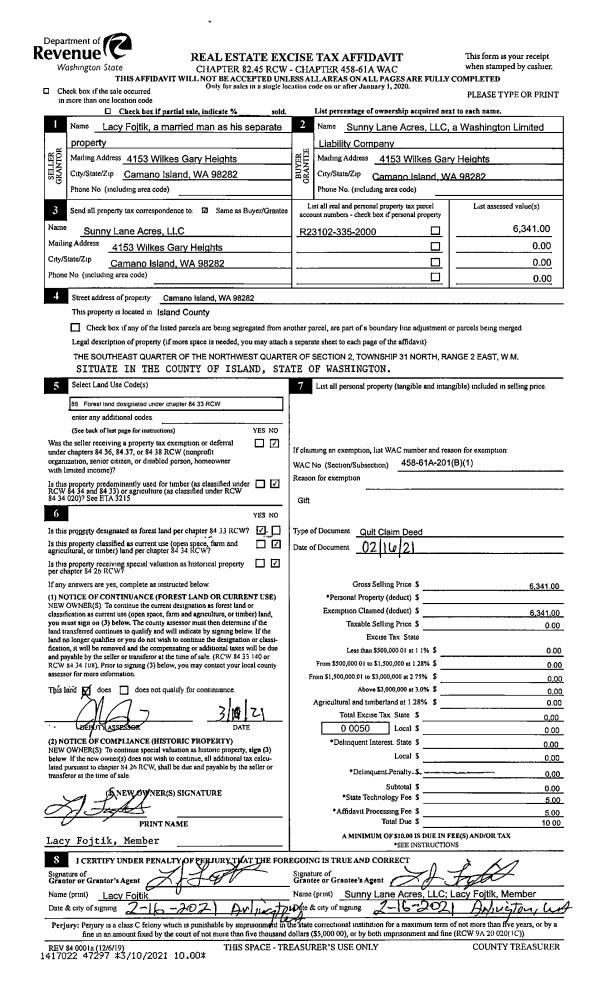
Property
Account |
| Property ID: | 284784 | Abbreviated Legal Description: | INDIAN RDG LOT 4 BLK 2 |
| Geographic ID: | S7225-00-02004-0 | Agent Code: | |
| Type: | Real | | |
| Tax Area: | 110 - APPRAISER-OH Schl Dist, outside OH, improved & 1 acre or less | Land Use Code | 11 |
| Open Space: | N | DFL | N |
| Historic Property: | N | Remodel Property: | N |
| Multi-Family Redevelopment: | N | | |
| Township: | | Section: | |
| Range: | |
Location |
| Address: | 1141 SW HELLER ST OAK HARBOR, WA 98277 | Mapsco: | |
| Neighborhood: | Cycle 1 | Map ID: | 90 |
| Neighborhood CD: | 1 |
Owner |
| Name: | KAFADER, MARION E | Owner ID: | 297204 |
| Mailing Address: | 1141 SW HELLER ST OAK HARBOR, WA 98277 | % Ownership: | 100.0000000000% |
| | | Exemptions: | |
Taxes and Assessment Details
Values
| (+) Improvement Homesite Value: | + | $0 | |
| (+) Improvement Non-Homesite Value: | + | $320,894 | |
| (+) Land Homesite Value: | + | $0 | |
| (+) Land Non-Homesite Value: | + | $200,000 | |
| (+) Curr Use (HS): | + | $0 | $0 |
| (+) Curr Use (NHS): | + | $0 | $0 |
| | | -------------------------- | |
| (=) Market Value: | = | $520,894 | |
| (–) Productivity Loss: | – | $0 | |
| | | -------------------------- | |
| (=) Subtotal: | = | $520,894 | |
| (+) Senior Appraised Value: | + | $0 | |
| (+) Non-Senior Appraised Value: | + | $520,894 | |
| | | -------------------------- | |
| (=) Total Appraised Value: | = | $520,894 | |
| (–) Senior Exemption Loss: | – | $0 | |
| (–) Exemption Loss: | – | $0 | |
| | | -------------------------- | |
| (=) Taxable Value: | = | $520,894 | |
Taxing Jurisdiction
| Owner: | KAFADER, MARION E | | |
| % Ownership: | 100.0000000000% | | |
| Total Value: | $520,894 | | |
| Tax Area: | 110 - APPRAISER-OH Schl Dist, outside OH, improved & 1 acre or less |
| CF | Conservation Futures | 0.0316035091 | $520,894 | $520,894 | $16.46 | | |
| CEM1 | Cemetery #1 | 0.0040320932 | $520,894 | $520,894 | $2.10 | | |
| FIRE2 | Fire & Rescue Dist #2 N Whidbey GEN | 0.5475949600 | $520,894 | $520,894 | $285.24 | | |
| HOBOND | Hospital BOND | 0.1910887512 | $520,894 | $520,894 | $99.54 | | |
| HOGEN | Hospital GEN | 0.3902502903 | $520,894 | $520,894 | $203.28 | | |
| CE | County Current Expense | 0.3708482477 | $520,894 | $520,894 | $193.17 | | |
| CR | County Roads | 0.4584763726 | $520,894 | $520,894 | $238.82 | | |
| ISLANDEMS | Hospital GEN (EMS) | 0.5000000000 | $520,894 | $520,894 | $260.45 | | |
| LIB | Library Sno-Isle GEN | 0.3153421757 | $520,894 | $520,894 | $164.26 | | |
| NWHIDPRMT | P & R N Whidbey GEN | 0.2004466701 | $520,894 | $520,894 | $104.41 | | |
| SCH201MO | School 201 Enrichment | 1.8559231640 | $520,894 | $520,894 | $966.74 | | |
| ST | State School | 1.3035497053 | $520,894 | $520,894 | $679.01 | | |
| ST2 | State School Part 2 | 0.8169543533 | $520,894 | $520,894 | $425.55 | | |
| | Total Tax Rate: | 6.9861102925 | | | | | |
| | | | | Taxes w/Current Exemptions: | $3,639.03 | | |
| | | | | Taxes w/o Exemptions: | $3,639.03 | | |
Improvement / Building
| Improvement #1: | RESIDENTIAL | State Code: | Y | 2416.0 sqft | Value: | $320,894 |
| Bathrooms: | 3.5 | Bedrooms: | 4 | | Ceiling: | DRYWALL PAINTED | Exterior Wall/Cover: | VINYL | | Floor Covering: | HARDWOOD/CARP 20-80 | Floor Structure: | WOOD W/SUBFLOOR | | Foundation: | CONCRETE BLOCKS | Heating: | FHA GAS | | Interior Finish: | DRYWALL PAINT | Plumbing Fixture Cnt: | 14 | | Roof Slope: | 6" IN 12" | Roof Structure/Cover: | CJ ASPHALT |
|
| | Type | Description | Class CD | Sub Class CD | Year Built | Area |
| | BAS | BASE/MAIN FLOOR | 3 | 0 | 1956 | 1428.0 |
| | UTY | STORAGE/UTILITY | 3 | 0 | 1956 | 440.0 |
| | DWN | DOWNSTAIRS LIVING AREA | 3 | 0 | 1956 | 988.0 |
| | OP2 | OPEN PORCH W/STEPS | 3 | 0 | 1956 | 74.0 |
| | OWP | OPEN WOOD PORCH W/STEPS | 3 | 0 | 1956 | 261.5 |
Sketch
Property Image
Land
| 1 | 14 | SQ (08001-12000) | 0.0000 | 0.00 | 0.00 | 0.00 | 1.00 | $200,000 | $0 |
Roll Value History
| 2026 | N/A | N/A | N/A | N/A | N/A |
| 2025 | $320,894 | $200,000 | $0 | $520,894 | $520,894 |
| 2024 | $325,048 | $190,000 | $0 | $515,048 | $515,048 |
| 2023 | $329,202 | $190,000 | $0 | $519,202 | $519,202 |
| 2022 | $301,864 | $180,000 | $0 | $481,864 | $481,864 |
| 2021 | $265,756 | $120,000 | $0 | $385,756 | $385,756 |
| 2020 | $246,536 | $100,000 | $0 | $346,536 | $346,536 |
| 2019 | $189,547 | $150,000 | $0 | $339,547 | $339,547 |
| 2018 | $190,145 | $130,000 | $0 | $320,145 | $320,145 |
| 2017 | $181,708 | $110,000 | $0 | $291,708 | $291,708 |
| 2016 | $184,066 | $90,000 | $0 | $274,066 | $274,066 |
| 2015 | $185,522 | $70,000 | $0 | $255,522 | $255,522 |
| 2014 | $187,869 | $55,000 | $0 | $242,869 | $242,869 |
| 2013 | $190,218 | $55,000 | $0 | $245,218 | $245,218 |
| 2012 | $172,193 | $60,000 | $0 | $232,193 | $232,193 |
| 2011 | $186,118 | $50,000 | $0 | $236,118 | $236,118 |
| 2010 | $196,270 | $50,000 | $0 | $246,270 | $246,270 |
| 2009 | $204,858 | $60,000 | $0 | $264,858 | $264,858 |
| 2008 | $207,627 | $72,000 | $0 | $279,627 | $279,627 |
| 2007 | $210,359 | $72,000 | $0 | $282,359 | $282,359 |
Deed and Sales History
| 1 | 10/26/2020 | WD | Warranty Deed | THOMPSON, SETH ZORYIA | KAFADER, MARION E | | | $417,000.00 | 45393 | 4500426 |
| 2 | 05/23/2018 | WD | Warranty Deed | MCGAHA, LISA | THOMPSON, SETH ZORYIA | | | $340,000.00 | 34281 | 4445192 |
| 3 | 08/16/2011 | WD | Warranty Deed | BAUER, JAKE P | MCGAHA, LISA | | | $225,000.00 | 5285 | 4299803 |
| 4 | 04/19/2004 | WD | Warranty Deed | ROWELL, JARED C | BAUER, JAKE P | | | $170,900.00 | 41629 | 4098026 |
| 5 | 03/24/2003 | WD | Warranty Deed | RATLIFF, MICHAEL D | ROWELL, JARED C | | | $143,600.00 | 31344 | 4053250 |
| 6 | 03/09/2001 | WD | Warranty Deed | NORMAN, WARD T | RATLIFF, MICHAEL D | | | $133,000.00 | 10892 | 20027888 |
| 7 | 08/01/1992 | QCD | Quit Claim Deed | NORMAN, WARD T | NORMAN, WARD T | | | $0.00 | 23180 | 92015499 |
| 8 | 01/01/1900 | OTHER | Other - Misc. Documents | Unknown | NORMAN, WARD T | | | $0.00 | 0 | 0 |
Payout Agreement
| No payout information available.. |