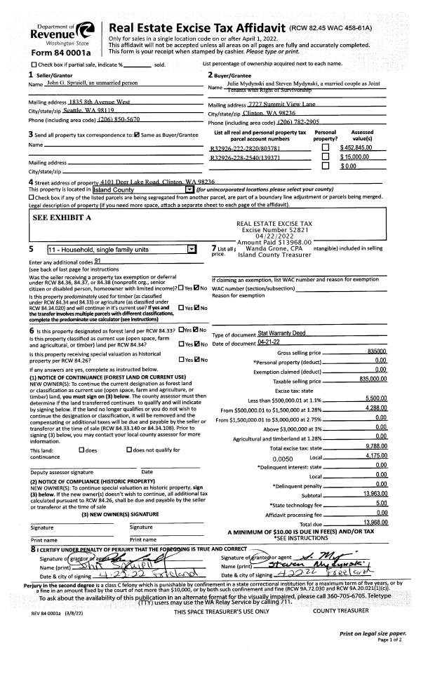
Property
Account |
| Property ID: | 285159 | Abbreviated Legal Description: | ISLAND TERR LOT 6 |
| Geographic ID: | S7235-00-00006-0 | Agent Code: | |
| Type: | Real | | |
| Tax Area: | 560 - APPRAISER-Stan/Cam Schl Dist, Special Dist, improved & less than 1 acre | Land Use Code | 11 |
| Open Space: | N | DFL | N |
| Historic Property: | N | Remodel Property: | N |
| Multi-Family Redevelopment: | N | | |
| Township: | | Section: | |
| Range: | |
Location |
| Address: | 3168 GLACIER LN CAMANO ISLAND, WA 98282 | Mapsco: | |
| Neighborhood: | 58NofTamarackS | Map ID: | 864 |
| Neighborhood CD: | 58RntamS |
Owner |
| Name: | COPELAND, TANNER W | Owner ID: | 283629 |
| Mailing Address: | KATELYN R COPELAND 3168 GLACIER LN CAMANO ISLAND, WA 98282 | % Ownership: | 100.0000000000% |
| | | Exemptions: | |
Taxes and Assessment Details
Values
| (+) Improvement Homesite Value: | + | $0 | |
| (+) Improvement Non-Homesite Value: | + | $325,519 | |
| (+) Land Homesite Value: | + | $0 | |
| (+) Land Non-Homesite Value: | + | $230,000 | |
| (+) Curr Use (HS): | + | $0 | $0 |
| (+) Curr Use (NHS): | + | $0 | $0 |
| | | -------------------------- | |
| (=) Market Value: | = | $555,519 | |
| (–) Productivity Loss: | – | $0 | |
| | | -------------------------- | |
| (=) Subtotal: | = | $555,519 | |
| (+) Senior Appraised Value: | + | $0 | |
| (+) Non-Senior Appraised Value: | + | $555,519 | |
| | | -------------------------- | |
| (=) Total Appraised Value: | = | $555,519 | |
| (–) Senior Exemption Loss: | – | $0 | |
| (–) Exemption Loss: | – | $0 | |
| | | -------------------------- | |
| (=) Taxable Value: | = | $555,519 | |
Taxing Jurisdiction
| Owner: | COPELAND, TANNER W | | |
| % Ownership: | 100.0000000000% | | |
| Total Value: | $555,519 | | |
| Tax Area: | 560 - APPRAISER-Stan/Cam Schl Dist, Special Dist, improved & less than 1 acre |
| CF | Conservation Futures | 0.0316035091 | $555,519 | $555,519 | $17.56 | | |
| EMS1 | Fire & Rescue Dist #1 Camano GEN (EMS) | 0.3677864386 | $555,519 | $555,519 | $204.31 | | |
| FIRE1 | Fire & Rescue Dist #1 Camano GEN | 1.2502910536 | $555,519 | $555,519 | $694.56 | | |
| FIRE1BOND | Fire & Rescue Dist #1 Camano BOND | 0.1570001679 | $555,519 | $555,519 | $87.22 | | |
| CE | County Current Expense | 0.3708482477 | $555,519 | $555,519 | $206.01 | | |
| CR | County Roads | 0.4584763726 | $555,519 | $555,519 | $254.69 | | |
| LCIB | Library Sno-Isle BOND (Camano Island) | 0.0396325772 | $555,519 | $555,519 | $22.02 | | |
| LIB | Library Sno-Isle GEN | 0.3153421757 | $555,519 | $555,519 | $175.18 | | |
| SCH205_401 | School 205-401 Enrichment | 1.2698420524 | $555,519 | $555,519 | $705.42 | | |
| SCH205BOND | School 205-401 BOND | 0.9396497583 | $555,519 | $555,519 | $521.99 | | |
| ST | State School | 1.3035497053 | $555,519 | $555,519 | $724.15 | | |
| ST2 | State School Part 2 | 0.8169543533 | $555,519 | $555,519 | $453.83 | | |
| | Total Tax Rate: | 7.3209764117 | | | | | |
| | | | | Taxes w/Current Exemptions: | $4,066.94 | | |
| | | | | Taxes w/o Exemptions: | $4,066.94 | | |
Improvement / Building
| Improvement #1: | RESIDENTIAL | State Code: | Y | 1715.5 sqft | Value: | $325,519 |
| Bathrooms: | 2.5 | Bedrooms: | 3 | | Ceiling: | DRYWALL PAINTED | Exterior Wall/Cover: | CEMENT FIBER | | Floor Covering: | HARDWOOD/CARP 60-40 | Floor Structure: | WOOD W/SUBFLOOR | | Foundation: | CONCRETE | Heating: | FHA GAS | | Interior Finish: | DRYWALL PAINT | Plumbing Fixture Cnt: | 11 | | Roof Slope: | 6" IN 12" | Roof Structure/Cover: | CJ ASPHALT |
|
| | Type | Description | Class CD | Sub Class CD | Year Built | Area |
| | BAS | BASE/MAIN FLOOR | 3 | 0 | 2004 | 1194.1 |
| | BIG | BUILT IN GARAGE | 3 | 0 | 2004 | 551.7 |
| | OWP | OPEN WOOD PORCH W/STEPS | 3 | 0 | 2004 | 193.2 |
| | OWP | OPEN WOOD PORCH W/STEPS | 3 | 0 | 2004 | 39.0 |
| | DWN | DOWNSTAIRS LIVING AREA | 3 | 0 | 2004 | 521.4 |
Sketch
Property Image
Land
| 1 | 14 | SQ (08001-12000) | 0.0000 | 0.00 | 0.00 | 0.00 | 1.00 | $230,000 | $0 |
Roll Value History
| 2026 | N/A | N/A | N/A | N/A | N/A |
| 2025 | $325,519 | $230,000 | $0 | $555,519 | $555,519 |
| 2024 | $329,249 | $220,000 | $0 | $549,249 | $549,249 |
| 2023 | $332,979 | $220,000 | $0 | $552,979 | $552,979 |
| 2022 | $304,050 | $200,000 | $0 | $504,050 | $504,050 |
| 2021 | $262,187 | $140,000 | $0 | $402,187 | $402,187 |
| 2020 | $254,497 | $110,000 | $0 | $364,497 | $364,497 |
| 2019 | $186,846 | $140,000 | $0 | $326,846 | $326,846 |
| 2018 | $187,358 | $130,000 | $0 | $317,358 | $317,358 |
| 2017 | $161,941 | $50,000 | $0 | $211,941 | $211,941 |
| 2016 | $163,825 | $50,000 | $0 | $213,825 | $213,825 |
| 2015 | $171,547 | $50,000 | $0 | $221,547 | $221,547 |
| 2014 | $173,472 | $50,000 | $0 | $223,472 | $223,472 |
| 2013 | $175,396 | $50,000 | $0 | $225,396 | $225,396 |
| 2012 | $177,319 | $66,400 | $0 | $243,719 | $243,719 |
| 2011 | $179,243 | $83,000 | $0 | $262,243 | $262,243 |
| 2010 | $183,310 | $83,000 | $0 | $266,310 | $266,310 |
| 2009 | $187,083 | $80,000 | $0 | $267,083 | $267,083 |
| 2008 | $187,228 | $99,000 | $0 | $286,228 | $286,228 |
| 2007 | $189,269 | $71,000 | $0 | $260,269 | $260,269 |
Deed and Sales History
| 1 | 01/16/2018 | WD | Warranty Deed | STANDLEY, BLAKE | COPELAND, TANNER W | | | $319,000.00 | 32653 | 4437697 |
| 2 | 09/13/2017 | TRUSTEED | Trustee's Deed | TRUBSHAW, HARRY I | STANDLEY, BLAKE | | | $215,600.00 | 31125 | 4430339 |
| 3 | 11/17/2004 | WD | Warranty Deed | BRANDVOLD INC, PARKER | TRUBSHAW, HARRY I | | | $201,000.00 | 45489 | 4118868 |
| 4 | 12/11/2003 | QCD | Quit Claim Deed | D G BRANDVOLD CORP, | BRANDVOLD INC, PARKER | | | $28,000.00 | 35577 | 4085813 |
| 5 | 06/08/1999 | WD | Warranty Deed | MARTIN, RALPH W | D G BRANDVOLD CORP, | | | $25,000.00 | 92340 | 99014370 |
| 6 | 01/01/1900 | OTHER | Other - Misc. Documents | Unknown | MARTIN, RALPH W | | | $0.00 | 0 | 0 |
Payout Agreement
| No payout information available.. |