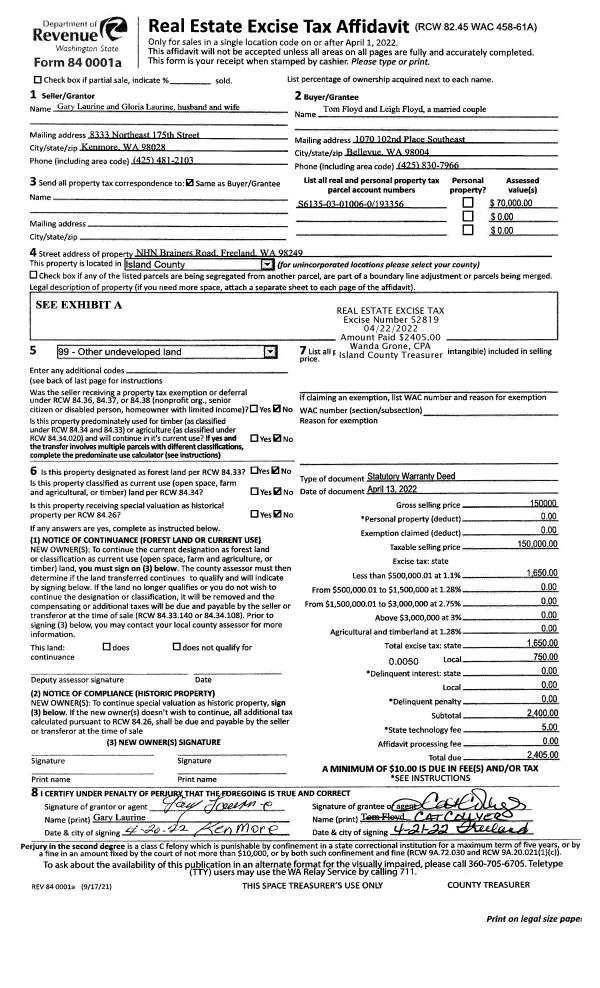
Property
Account |
| Property ID: | 285177 | Abbreviated Legal Description: | ISLAND TERR LOT 8 |
| Geographic ID: | S7235-00-00008-0 | Agent Code: | |
| Type: | Real | | |
| Tax Area: | 560 - APPRAISER-Stan/Cam Schl Dist, Special Dist, improved & less than 1 acre | Land Use Code | 11 |
| Open Space: | N | DFL | N |
| Historic Property: | N | Remodel Property: | N |
| Multi-Family Redevelopment: | N | | |
| Township: | | Section: | |
| Range: | |
Location |
| Address: | 3156 GLACIER LN CAMANO ISLAND, WA 98282 | Mapsco: | |
| Neighborhood: | 58NofTamarackS | Map ID: | 864 |
| Neighborhood CD: | 58RntamS |
Owner |
| Name: | HARGITT, SEAN | Owner ID: | 179921 |
| Mailing Address: | LAURA HARGITT 3156 GLACIER LN CAMANO ISLAND, WA 98282 | % Ownership: | 100.0000000000% |
| | | Exemptions: | |
Taxes and Assessment Details
Values
| (+) Improvement Homesite Value: | + | $0 | |
| (+) Improvement Non-Homesite Value: | + | $256,022 | |
| (+) Land Homesite Value: | + | $0 | |
| (+) Land Non-Homesite Value: | + | $230,000 | |
| (+) Curr Use (HS): | + | $0 | $0 |
| (+) Curr Use (NHS): | + | $0 | $0 |
| | | -------------------------- | |
| (=) Market Value: | = | $486,022 | |
| (–) Productivity Loss: | – | $0 | |
| | | -------------------------- | |
| (=) Subtotal: | = | $486,022 | |
| (+) Senior Appraised Value: | + | $0 | |
| (+) Non-Senior Appraised Value: | + | $486,022 | |
| | | -------------------------- | |
| (=) Total Appraised Value: | = | $486,022 | |
| (–) Senior Exemption Loss: | – | $0 | |
| (–) Exemption Loss: | – | $0 | |
| | | -------------------------- | |
| (=) Taxable Value: | = | $486,022 | |
Taxing Jurisdiction
| Owner: | HARGITT, SEAN | | |
| % Ownership: | 100.0000000000% | | |
| Total Value: | $486,022 | | |
| Tax Area: | 560 - APPRAISER-Stan/Cam Schl Dist, Special Dist, improved & less than 1 acre |
| CF | Conservation Futures | 0.0316035091 | $486,022 | $486,022 | $15.36 | | |
| EMS1 | Fire & Rescue Dist #1 Camano GEN (EMS) | 0.3677864386 | $486,022 | $486,022 | $178.75 | | |
| FIRE1 | Fire & Rescue Dist #1 Camano GEN | 1.2502910536 | $486,022 | $486,022 | $607.67 | | |
| FIRE1BOND | Fire & Rescue Dist #1 Camano BOND | 0.1570001679 | $486,022 | $486,022 | $76.31 | | |
| CE | County Current Expense | 0.3708482477 | $486,022 | $486,022 | $180.24 | | |
| CR | County Roads | 0.4584763726 | $486,022 | $486,022 | $222.83 | | |
| LCIB | Library Sno-Isle BOND (Camano Island) | 0.0396325772 | $486,022 | $486,022 | $19.26 | | |
| LIB | Library Sno-Isle GEN | 0.3153421757 | $486,022 | $486,022 | $153.26 | | |
| SCH205_401 | School 205-401 Enrichment | 1.2698420524 | $486,022 | $486,022 | $617.17 | | |
| SCH205BOND | School 205-401 BOND | 0.9396497583 | $486,022 | $486,022 | $456.69 | | |
| ST | State School | 1.3035497053 | $486,022 | $486,022 | $633.55 | | |
| ST2 | State School Part 2 | 0.8169543533 | $486,022 | $486,022 | $397.06 | | |
| | Total Tax Rate: | 7.3209764117 | | | | | |
| | | | | Taxes w/Current Exemptions: | $3,558.15 | | |
| | | | | Taxes w/o Exemptions: | $3,558.15 | | |
Improvement / Building
| Improvement #1: | RESIDENTIAL | State Code: | Y | 1652.0 sqft | Value: | $256,022 |
| Bathrooms: | 2 | Bedrooms: | 3 | | Ceiling: | DRYWALL PAINTED | Exterior Wall/Cover: | PLY/HARDBOARD T-111 | | Floor Covering: | HARDWOOD/CARP 80-20 | Floor Structure: | WOOD W/SUBFLOOR | | Foundation: | CONCRETE | Heating: | WALL HEAT ELECTRIC | | Interior Finish: | DRYWALL PAINT | Plumbing Fixture Cnt: | 9 | | Roof Slope: | 5" IN 12" | Roof Structure/Cover: | CJ ASPHALT |
|
| | Type | Description | Class CD | Sub Class CD | Year Built | Area |
| | BAS | BASE/MAIN FLOOR | 3 | 0 | 1995 | 1028.0 |
| | BIG | BUILT IN GARAGE | 3 | 0 | 1995 | 480.0 |
| | OWP | OPEN WOOD PORCH W/STEPS | 3 | 0 | 1995 | 42.0 |
| | OWP | OPEN WOOD PORCH W/STEPS | 3 | 0 | 1995 | 294.0 |
| | DWN | DOWNSTAIRS LIVING AREA | 3 | 0 | 1995 | 624.0 |
Sketch
Property Image
Land
| 1 | 14 | SQ (08001-12000) | 0.0000 | 0.00 | 0.00 | 0.00 | 1.00 | $230,000 | $0 |
Roll Value History
| 2026 | N/A | N/A | N/A | N/A | N/A |
| 2025 | $256,022 | $230,000 | $0 | $486,022 | $486,022 |
| 2024 | $259,212 | $220,000 | $0 | $479,212 | $479,212 |
| 2023 | $262,402 | $220,000 | $0 | $482,402 | $482,402 |
| 2022 | $240,495 | $200,000 | $0 | $440,495 | $440,495 |
| 2021 | $193,135 | $140,000 | $0 | $333,135 | $333,135 |
| 2020 | $186,218 | $110,000 | $0 | $296,218 | $296,218 |
| 2019 | $136,449 | $140,000 | $0 | $276,449 | $276,449 |
| 2018 | $136,863 | $130,000 | $0 | $266,863 | $266,863 |
| 2017 | $137,693 | $50,000 | $0 | $187,693 | $187,693 |
| 2016 | $139,351 | $50,000 | $0 | $189,351 | $189,351 |
| 2015 | $134,463 | $50,000 | $0 | $184,463 | $184,463 |
| 2014 | $136,102 | $50,000 | $0 | $186,102 | $186,102 |
| 2013 | $137,740 | $50,000 | $0 | $187,740 | $187,740 |
| 2012 | $139,379 | $66,400 | $0 | $205,779 | $205,779 |
| 2011 | $141,016 | $83,000 | $0 | $224,016 | $224,016 |
| 2010 | $148,268 | $83,000 | $0 | $231,268 | $231,268 |
| 2009 | $151,317 | $80,000 | $0 | $231,317 | $231,317 |
| 2008 | $153,531 | $99,000 | $0 | $252,531 | $252,531 |
| 2007 | $155,742 | $71,000 | $0 | $226,742 | $226,742 |
Deed and Sales History
| 1 | 04/26/1999 | WD | Warranty Deed | TEMPLEMAN, JASON E | HARGITT, SEAN | | | $133,000.00 | 91650 | 99010457 |
| 2 | 02/01/1996 | WD | Warranty Deed | BRANDVOLD, DUANE E | TEMPLEMAN, JASON E | | | $118,500.00 | 60635 | 96003458 |
| 3 | 07/01/1995 | WD | Warranty Deed | HENDRICKS, SAIL F | BRANDVOLD, DUANE E | | | $15,000.00 | 52604 | 95011946 |
| 4 | 05/01/1979 | OTHER | Other - Misc. Documents | Unknown | HENDRICKS, SAIL F | | | $0.00 | 58603 | 351761 |
Payout Agreement
| No payout information available.. |