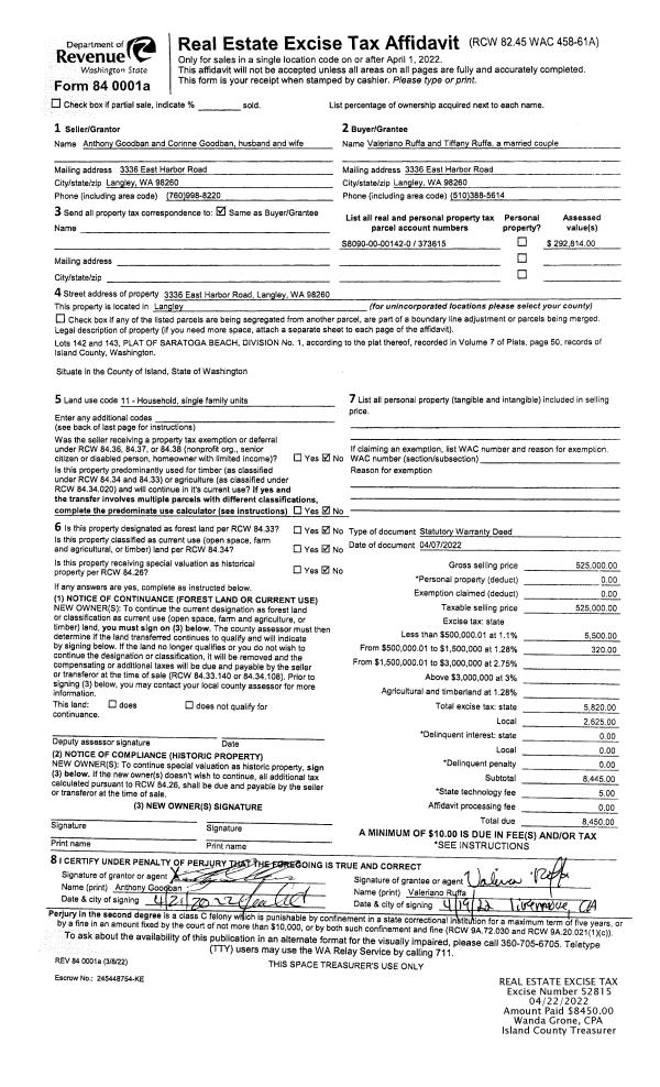
Property
Account |
| Property ID: | 285202 | Abbreviated Legal Description: | ISLAND TERR LOT 11 |
| Geographic ID: | S7235-00-00011-0 | Agent Code: | |
| Type: | Real | | |
| Tax Area: | 560 - APPRAISER-Stan/Cam Schl Dist, Special Dist, improved & less than 1 acre | Land Use Code | 11 |
| Open Space: | N | DFL | N |
| Historic Property: | N | Remodel Property: | N |
| Multi-Family Redevelopment: | N | | |
| Township: | | Section: | |
| Range: | |
Location |
| Address: | 3142 GLACIER LN CAMANO ISLAND, WA 98282 | Mapsco: | |
| Neighborhood: | 58NofTamarackS | Map ID: | 864 |
| Neighborhood CD: | 58RntamS |
Owner |
| Name: | FAIR, JOSEPH D | Owner ID: | 264927 |
| Mailing Address: | MARGARET E FAIR 3142 GLACIER LN CAMANO ISLAND, WA 98282 | % Ownership: | 100.0000000000% |
| | | Exemptions: | |
Taxes and Assessment Details
Values
| (+) Improvement Homesite Value: | + | $0 | |
| (+) Improvement Non-Homesite Value: | + | $139,664 | |
| (+) Land Homesite Value: | + | $0 | |
| (+) Land Non-Homesite Value: | + | $230,000 | |
| (+) Curr Use (HS): | + | $0 | $0 |
| (+) Curr Use (NHS): | + | $0 | $0 |
| | | -------------------------- | |
| (=) Market Value: | = | $369,664 | |
| (–) Productivity Loss: | – | $0 | |
| | | -------------------------- | |
| (=) Subtotal: | = | $369,664 | |
| (+) Senior Appraised Value: | + | $0 | |
| (+) Non-Senior Appraised Value: | + | $369,664 | |
| | | -------------------------- | |
| (=) Total Appraised Value: | = | $369,664 | |
| (–) Senior Exemption Loss: | – | $0 | |
| (–) Exemption Loss: | – | $0 | |
| | | -------------------------- | |
| (=) Taxable Value: | = | $369,664 | |
Taxing Jurisdiction
| Owner: | FAIR, JOSEPH D | | |
| % Ownership: | 100.0000000000% | | |
| Total Value: | $369,664 | | |
| Tax Area: | 560 - APPRAISER-Stan/Cam Schl Dist, Special Dist, improved & less than 1 acre |
| CF | Conservation Futures | 0.0316035091 | $369,664 | $369,664 | $11.68 | | |
| EMS1 | Fire & Rescue Dist #1 Camano GEN (EMS) | 0.3677864386 | $369,664 | $369,664 | $135.96 | | |
| FIRE1 | Fire & Rescue Dist #1 Camano GEN | 1.2502910536 | $369,664 | $369,664 | $462.19 | | |
| FIRE1BOND | Fire & Rescue Dist #1 Camano BOND | 0.1570001679 | $369,664 | $369,664 | $58.04 | | |
| CE | County Current Expense | 0.3708482477 | $369,664 | $369,664 | $137.09 | | |
| CR | County Roads | 0.4584763726 | $369,664 | $369,664 | $169.48 | | |
| LCIB | Library Sno-Isle BOND (Camano Island) | 0.0396325772 | $369,664 | $369,664 | $14.65 | | |
| LIB | Library Sno-Isle GEN | 0.3153421757 | $369,664 | $369,664 | $116.57 | | |
| SCH205_401 | School 205-401 Enrichment | 1.2698420524 | $369,664 | $369,664 | $469.41 | | |
| SCH205BOND | School 205-401 BOND | 0.9396497583 | $369,664 | $369,664 | $347.35 | | |
| ST | State School | 1.3035497053 | $369,664 | $369,664 | $481.88 | | |
| ST2 | State School Part 2 | 0.8169543533 | $369,664 | $369,664 | $302.00 | | |
| | Total Tax Rate: | 7.3209764117 | | | | | |
| | | | | Taxes w/Current Exemptions: | $2,706.30 | | |
| | | | | Taxes w/o Exemptions: | $2,706.30 | | |
Improvement / Building
| Improvement #1: | RESIDENTIAL | State Code: | Y | 1056.0 sqft | Value: | $139,664 |
| Bathrooms: | 2 | Bedrooms: | 3 | | Ceiling: | DRYWALL PAINTED | Exterior Wall/Cover: | PLY/HARDBOARD T-111 | | Floor Covering: | CARPET/VINYL 80-20 | Floor Structure: | WOOD W/SUBFLOOR | | Foundation: | CONCRETE | Heating: | WALL HEAT ELECTRIC | | Interior Finish: | DRYWALL PAINT | Plumbing Fixture Cnt: | 9 | | Roof Slope: | 4" IN 12" | Roof Structure/Cover: | CJ ASPHALT |
|
| | Type | Description | Class CD | Sub Class CD | Year Built | Area |
| | BAS | BASE/MAIN FLOOR | 2 | 0 | 1994 | 1056.0 |
| | OWP | OPEN WOOD PORCH W/STEPS | 2 | 0 | 1994 | 48.0 |
| | OWP | OPEN WOOD PORCH W/STEPS | 2 | 0 | 1994 | 87.0 |
Sketch
Property Image
Land
| 1 | 14 | SQ (08001-12000) | 0.0000 | 0.00 | 0.00 | 0.00 | 1.00 | $230,000 | $0 |
Roll Value History
| 2026 | N/A | N/A | N/A | N/A | N/A |
| 2025 | $139,664 | $230,000 | $0 | $369,664 | $369,664 |
| 2024 | $141,624 | $220,000 | $0 | $361,624 | $361,624 |
| 2023 | $143,584 | $220,000 | $0 | $363,584 | $363,584 |
| 2022 | $131,797 | $200,000 | $0 | $331,797 | $331,797 |
| 2021 | $116,152 | $140,000 | $0 | $256,152 | $256,152 |
| 2020 | $111,367 | $110,000 | $0 | $221,367 | $221,367 |
| 2019 | $79,749 | $140,000 | $0 | $219,749 | $219,749 |
| 2018 | $80,007 | $130,000 | $0 | $210,007 | $210,007 |
| 2017 | $80,523 | $50,000 | $0 | $130,523 | $130,523 |
| 2016 | $81,556 | $50,000 | $0 | $131,556 | $131,556 |
| 2015 | $88,009 | $50,000 | $0 | $138,009 | $138,009 |
| 2014 | $89,133 | $50,000 | $0 | $139,133 | $139,133 |
| 2013 | $90,256 | $50,000 | $0 | $140,256 | $140,256 |
| 2012 | $91,380 | $66,400 | $0 | $157,780 | $157,780 |
| 2011 | $92,503 | $83,000 | $0 | $175,503 | $175,503 |
| 2010 | $92,941 | $83,000 | $0 | $175,941 | $175,941 |
| 2009 | $98,056 | $80,000 | $0 | $178,056 | $178,056 |
| 2008 | $99,211 | $99,000 | $0 | $198,211 | $198,211 |
| 2007 | $100,367 | $71,000 | $0 | $171,367 | $171,367 |
Deed and Sales History
| 1 | 01/14/2014 | BARGSLD | Bargain And Sale Deed | JP MORGAN CHASE NATIONAL ASSOCIATION | FAIR, JOSEPH D | | | $105,000.00 | 14082 | 4354240 |
| 2 | 09/30/2013 | TRUSTEED | Trustee's Deed | PIERCE, TERRY W | JP MORGAN CHASE NATIONAL ASSOCIATION | | | $81,175.00 | 12978 | 4348940 |
| 3 | 03/24/2004 | WD | Warranty Deed | ALBERT, TREVOR K | PIERCE, TERRY W | | | $126,500.00 | 41261 | 4095826 |
| 4 | 04/01/1997 | WD | Warranty Deed | SCHMOE, T J | ALBERT, TREVOR K | | | $96,950.00 | 71127 | 97005101 |
| 5 | 09/01/1994 | WD | Warranty Deed | NESS, EDDIE J | SCHMOE, T J | | | $18,000.00 | 43913 | 94020335 |
| 6 | 11/01/1979 | EXECUTORD | Executor Deed | ISLAND, TERRACE D | NESS, EDDIE J | | | $5,000.00 | 95401 | 361558 |
| 7 | 01/01/1900 | OTHER | Other - Misc. Documents | Unknown | ISLAND, TERRACE D | | | $0.00 | 0 | 0 |
Payout Agreement
| No payout information available.. |