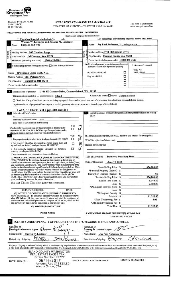
Property
Account |
| Property ID: | 28534 | Abbreviated Legal Description: | 76 ALEX DC - BG 241.1'S OF NECR DC N87*W71.4' W125' TO SWCR TR DESC V7 P615 N43.1' N8*E100' TO RD TPB S8*W72' S74*E32' N8*E72' N74*W TPB |
| Geographic ID: | R13233-385-3830 | Agent Code: | |
| Type: | Real | | |
| Tax Area: | 300 - APPRAISER-Cpvl Schl Dist, in Cpvl | Land Use Code | 53 |
| Open Space: | N | DFL | N |
| Historic Property: | N | Remodel Property: | N |
| Multi-Family Redevelopment: | N | | |
| Township: | 32 | Section: | 33 |
| Range: | R1 |
Location |
| Address: | 7 NW FRONT ST COUPEVILLE, WA 98239 | Mapsco: | |
| Neighborhood: | 2 Front Street Comercial | Map ID: | 175 |
| Neighborhood CD: | 21cCPfront |
Owner |
| Name: | HODSON, EDWIN | Owner ID: | 281920 |
| Mailing Address: | JOAN CLAIRE SAMSON 2475 DISCOVERY PL LANGLEY, WA 98260 | % Ownership: | 100.0000000000% |
| | | Exemptions: | |
Taxes and Assessment Details
Values
| (+) Improvement Homesite Value: | + | $0 | |
| (+) Improvement Non-Homesite Value: | + | $83,174 | |
| (+) Land Homesite Value: | + | $0 | |
| (+) Land Non-Homesite Value: | + | $206,910 | |
| (+) Curr Use (HS): | + | $0 | $0 |
| (+) Curr Use (NHS): | + | $0 | $0 |
| | | -------------------------- | |
| (=) Market Value: | = | $290,084 | |
| (–) Productivity Loss: | – | $0 | |
| | | -------------------------- | |
| (=) Subtotal: | = | $290,084 | |
| (+) Senior Appraised Value: | + | $0 | |
| (+) Non-Senior Appraised Value: | + | $290,084 | |
| | | -------------------------- | |
| (=) Total Appraised Value: | = | $290,084 | |
| (–) Senior Exemption Loss: | – | $0 | |
| (–) Exemption Loss: | – | $0 | |
| | | -------------------------- | |
| (=) Taxable Value: | = | $290,084 | |
Taxing Jurisdiction
| Owner: | HODSON, EDWIN | | |
| % Ownership: | 100.0000000000% | | |
| Total Value: | $290,084 | | |
| Tax Area: | 300 - APPRAISER-Cpvl Schl Dist, in Cpvl |
| CF | Conservation Futures | 0.0316035091 | $290,084 | $290,084 | $9.17 | | |
| CEM2 | Cemetery #2 | 0.0095056933 | $290,084 | $290,084 | $2.76 | | |
| COUP | City: Town of Coupeville | 0.8426414490 | $290,084 | $290,084 | $244.44 | | |
| FIRE5 | Fire & Rescue Dist #5 C Whidbey GEN | 1.2008080668 | $290,084 | $290,084 | $348.34 | | |
| FIRE5BOND | Fire & Rescue Dist #5 C Whidbey BOND | 0.1400090713 | $290,084 | $290,084 | $40.61 | | |
| HOBOND | Hospital BOND | 0.1910887512 | $290,084 | $290,084 | $55.43 | | |
| HOGEN | Hospital GEN | 0.3902502903 | $290,084 | $290,084 | $113.21 | | |
| CE | County Current Expense | 0.3708482477 | $290,084 | $290,084 | $107.58 | | |
| ISLANDEMS | Hospital GEN (EMS) | 0.5000000000 | $290,084 | $290,084 | $145.04 | | |
| LIB | Library Sno-Isle GEN | 0.3153421757 | $290,084 | $290,084 | $91.48 | | |
| LIBCAP | Library Sno-Isle BOND (Cap Fac Imp Area) | 0.0543427938 | $290,084 | $290,084 | $15.76 | | |
| POCOUP | Port of Coupeville GEN | 0.1093371703 | $290,084 | $290,084 | $31.72 | | |
| POCOUPIDD | Port of Coupeville IDD | 0.3409740022 | $290,084 | $290,084 | $98.91 | | |
| COUPSDTECH | School 204 CP (TECH) | 0.7545480007 | $290,084 | $290,084 | $218.88 | | |
| SCH204MO | School 204 Enrichment | 0.6716186034 | $290,084 | $290,084 | $194.83 | | |
| ST | State School | 1.3035497053 | $290,084 | $290,084 | $378.14 | | |
| ST2 | State School Part 2 | 0.8169543533 | $290,084 | $290,084 | $236.99 | | |
| | Total Tax Rate: | 8.0434218834 | | | | | |
| | | | | Taxes w/Current Exemptions: | $2,333.29 | | |
| | | | | Taxes w/o Exemptions: | $2,333.29 | | |
Improvement / Building
| Improvement #1: | COMMERCIAL | State Code: | F1 | 643.9 sqft | Value: | $83,174 |
| Bathrooms: | 0 | Bedrooms: | 0 | | Ceiling: | DRYWALL PAINTED | Exterior Wall/Cover: | WD SIDING/WOOD FRAME | | Floor Covering: | CARPET 100% | Floor Structure: | WOOD ON WOOD JOIST | | Foundation: | CONCRETE | Heating: | FHA ELECTRIC | | Interior Finish: | RETAIL | Plumbing Fixture Cnt: | 1 | | Roof Structure/Cover: | COMP OPEN WOOD |   |   |
|
| | Type | Description | Class CD | Sub Class CD | Year Built | Area |
| | BAS | BASE/MAIN FLOOR | 3 | 0 | 1970 | 643.9 |
| | OP1 | OPEN PORCH SLAB | 3 | 0 | 1970 | 528.0 |
| | OP2 | OPEN PORCH W/STEPS | 3 | 0 | 1970 | 79.5 |
| | UTY | STORAGE/UTILITY | 3 | 0 | 1970 | 80.0 |
Sketch
Property Image
Land
| 1 | 68 | COMMERCIAL RETAIL | 0.0500 | 2178.00 | 0.00 | 0.00 | 1.00 | $206,910 | $0 |
Roll Value History
| 2026 | N/A | N/A | N/A | N/A | N/A |
| 2025 | $83,174 | $206,910 | $0 | $290,084 | $290,084 |
| 2024 | $79,273 | $206,910 | $0 | $286,183 | $286,183 |
| 2023 | $83,174 | $206,910 | $0 | $290,084 | $290,084 |
| 2022 | $67,443 | $206,910 | $0 | $274,353 | $274,353 |
| 2021 | $66,124 | $206,910 | $0 | $273,034 | $273,034 |
| 2020 | $65,964 | $206,910 | $0 | $272,874 | $272,874 |
| 2019 | $61,075 | $206,910 | $0 | $267,985 | $267,985 |
| 2018 | $53,614 | $206,910 | $0 | $260,524 | $260,524 |
| 2017 | $53,649 | $87,120 | $0 | $140,769 | $140,769 |
| 2016 | $53,716 | $87,120 | $0 | $140,836 | $140,836 |
| 2015 | $56,139 | $87,120 | $0 | $143,259 | $143,259 |
| 2014 | $56,237 | $87,120 | $0 | $143,357 | $143,357 |
| 2013 | $55,367 | $87,120 | $0 | $142,487 | $142,487 |
| 2012 | $68,340 | $101,949 | $0 | $170,289 | $170,289 |
| 2011 | $68,340 | $101,949 | $0 | $170,289 | $170,289 |
| 2010 | $69,717 | $101,949 | $0 | $171,666 | $171,666 |
| 2009 | $71,543 | $137,604 | $0 | $209,147 | $209,147 |
| 2008 | $72,515 | $137,604 | $0 | $210,119 | $210,119 |
| 2007 | $75,181 | $137,604 | $0 | $212,785 | $212,785 |
Deed and Sales History
| 1 | 09/12/2017 | WD | Warranty Deed | BLACK DOG BEACH PROPERTIES LLC | HODSON, EDWIN | | | $273,000.00 | 31067 | 4430087 |
| 2 | 11/19/2007 | 5 | DNU - Marriage License/Name Change | HUGHES, LARRY J | BLACK DOG BEACH PROPERTIES LLC | | | $0.00 | 73809 | 4216541 |
| 3 | 09/09/2005 | WD | Warranty Deed | WRONA, PAMELA J | HUGHES, LARRY J | | | $194,000.00 | 54627 | 4147648 |
| 4 | 02/12/2003 | WD | Warranty Deed | QUINN, KATHLEEN | WRONA, PAMELA J | | | $170,000.00 | 30621 | 4047935 |
| 5 | 06/03/2002 | DECREE | Divorce Decree/Legal Separation | QUINN, SHELBY & | QUINN, KATHLEEN | | | $0.00 | 22513 | 4024243 |
| 6 | 04/01/1994 | WD | Warranty Deed | MITCHELL, LOIS S | QUINN, SHELBY & | | | $90,000.00 | 41446 | 94008847 |
| 7 | 10/01/1987 | PRD | Personal Representatives Deed | MITCHELL, FRANK W | MITCHELL, LOIS S | | | $0.00 | 73656 | 87015904 |
| 8 | 07/01/1982 | TRUSTEED | Trustee's Deed | HOLLAHAN, JOHN R | MITCHELL, FRANK W | | | $17,000.00 | 21762 | 398703 |
| 9 | 09/01/1968 | EXECUTORD | Executor Deed | Unknown | HOLLAHAN, JOHN R | | | $0.00 | 33005 | 0 |
Payout Agreement
| No payout information available.. |