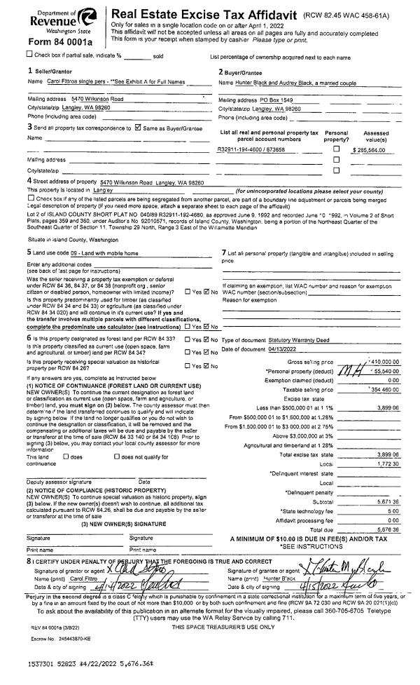
Property
Account |
| Property ID: | 285408 | Abbreviated Legal Description: | ISLAND TERR LOT 31 |
| Geographic ID: | S7235-00-00031-0 | Agent Code: | |
| Type: | Real | | |
| Tax Area: | 560 - APPRAISER-Stan/Cam Schl Dist, Special Dist, improved & less than 1 acre | Land Use Code | 11 |
| Open Space: | N | DFL | N |
| Historic Property: | N | Remodel Property: | N |
| Multi-Family Redevelopment: | N | | |
| Township: | | Section: | |
| Range: | |
Location |
| Address: | 3167 GLACIER LN CAMANO ISLAND, WA 98282 | Mapsco: | |
| Neighborhood: | 58NofTamarackS | Map ID: | 864 |
| Neighborhood CD: | 58RntamS |
Owner |
| Name: | ATALIG, FRANCISCO C | Owner ID: | 65003 |
| Mailing Address: | SHAWNEE L ATALIG 3167 GLACIER LN CAMANO ISLAND, WA 98282-8225 | % Ownership: | 100.0000000000% |
| | | Exemptions: | |
Taxes and Assessment Details
Values
| (+) Improvement Homesite Value: | + | $0 | |
| (+) Improvement Non-Homesite Value: | + | $246,158 | |
| (+) Land Homesite Value: | + | $0 | |
| (+) Land Non-Homesite Value: | + | $230,000 | |
| (+) Curr Use (HS): | + | $0 | $0 |
| (+) Curr Use (NHS): | + | $0 | $0 |
| | | -------------------------- | |
| (=) Market Value: | = | $476,158 | |
| (–) Productivity Loss: | – | $0 | |
| | | -------------------------- | |
| (=) Subtotal: | = | $476,158 | |
| (+) Senior Appraised Value: | + | $0 | |
| (+) Non-Senior Appraised Value: | + | $476,158 | |
| | | -------------------------- | |
| (=) Total Appraised Value: | = | $476,158 | |
| (–) Senior Exemption Loss: | – | $0 | |
| (–) Exemption Loss: | – | $0 | |
| | | -------------------------- | |
| (=) Taxable Value: | = | $476,158 | |
Taxing Jurisdiction
| Owner: | ATALIG, FRANCISCO C | | |
| % Ownership: | 100.0000000000% | | |
| Total Value: | $476,158 | | |
| Tax Area: | 560 - APPRAISER-Stan/Cam Schl Dist, Special Dist, improved & less than 1 acre |
| CF | Conservation Futures | 0.0316035091 | $476,158 | $476,158 | $15.05 | | |
| EMS1 | Fire & Rescue Dist #1 Camano GEN (EMS) | 0.3677864386 | $476,158 | $476,158 | $175.12 | | |
| FIRE1 | Fire & Rescue Dist #1 Camano GEN | 1.2502910536 | $476,158 | $476,158 | $595.34 | | |
| FIRE1BOND | Fire & Rescue Dist #1 Camano BOND | 0.1570001679 | $476,158 | $476,158 | $74.76 | | |
| CE | County Current Expense | 0.3708482477 | $476,158 | $476,158 | $176.58 | | |
| CR | County Roads | 0.4584763726 | $476,158 | $476,158 | $218.31 | | |
| LCIB | Library Sno-Isle BOND (Camano Island) | 0.0396325772 | $476,158 | $476,158 | $18.87 | | |
| LIB | Library Sno-Isle GEN | 0.3153421757 | $476,158 | $476,158 | $150.15 | | |
| SCH205_401 | School 205-401 Enrichment | 1.2698420524 | $476,158 | $476,158 | $604.65 | | |
| SCH205BOND | School 205-401 BOND | 0.9396497583 | $476,158 | $476,158 | $447.42 | | |
| ST | State School | 1.3035497053 | $476,158 | $476,158 | $620.70 | | |
| ST2 | State School Part 2 | 0.8169543533 | $476,158 | $476,158 | $389.00 | | |
| | Total Tax Rate: | 7.3209764117 | | | | | |
| | | | | Taxes w/Current Exemptions: | $3,485.95 | | |
| | | | | Taxes w/o Exemptions: | $3,485.95 | | |
Improvement / Building
| Improvement #1: | RESIDENTIAL | State Code: | Y | 1378.0 sqft | Value: | $246,158 |
| Bathrooms: | 2 | Bedrooms: | 3 | | Ceiling: | DRYWALL PAINTED | Exterior Wall/Cover: | PLY/HARDBOARD T-111 | | Floor Covering: | CARPET/VINYL 80-20 | Floor Structure: | WOOD W/SUBFLOOR | | Foundation: | CONCRETE | Heating: | WALL HEAT ELECTRIC | | Interior Finish: | DRYWALL PAINT | Plumbing Fixture Cnt: | 9 | | Roof Slope: | 4" IN 12" | Roof Structure/Cover: | CJ ASPHALT |
|
| | Type | Description | Class CD | Sub Class CD | Year Built | Area |
| | BAS | BASE/MAIN FLOOR | 3 | 0 | 1994 | 898.0 |
| | AGR | ATTACHED GARAGE | 3 | 0 | 1994 | 192.0 |
| | BIG | BUILT IN GARAGE | 3 | 0 | 1994 | 360.0 |
| | OWP | OPEN WOOD PORCH W/STEPS | 3 | 0 | 1994 | 42.0 |
| | OWC | OPEN WOOD PORCH W/STEPS/ROOF/C | 3 | 0 | 1994 | 100.0 |
| | DWN | DOWNSTAIRS LIVING AREA | 3 | 0 | 1994 | 480.0 |
| | CPD | OPEN CARPORT DIRT FLOOR | 3 | 0 | 1994 | 432.0 |
| | CPD | OPEN CARPORT DIRT FLOOR | 3 | 0 | 1994 | 288.0 |
| | OWP | OPEN WOOD PORCH W/STEPS | 3 | 0 | 1994 | 44.0 |
Sketch
Property Image
Land
| 1 | 14 | SQ (08001-12000) | 0.0000 | 0.00 | 0.00 | 0.00 | 1.00 | $230,000 | $0 |
Roll Value History
| 2026 | N/A | N/A | N/A | N/A | N/A |
| 2025 | $246,158 | $230,000 | $0 | $476,158 | $476,158 |
| 2024 | $249,225 | $220,000 | $0 | $469,225 | $469,225 |
| 2023 | $252,293 | $220,000 | $0 | $472,293 | $472,293 |
| 2022 | $231,231 | $200,000 | $0 | $431,231 | $431,231 |
| 2021 | $173,914 | $140,000 | $0 | $313,914 | $313,914 |
| 2020 | $169,365 | $110,000 | $0 | $279,365 | $279,365 |
| 2019 | $121,828 | $140,000 | $0 | $261,828 | $261,828 |
| 2018 | $122,201 | $130,000 | $0 | $252,201 | $252,201 |
| 2017 | $122,951 | $50,000 | $0 | $172,951 | $172,951 |
| 2016 | $124,451 | $50,000 | $0 | $174,451 | $174,451 |
| 2015 | $117,914 | $50,000 | $0 | $167,914 | $167,914 |
| 2014 | $119,334 | $50,000 | $0 | $169,334 | $169,334 |
| 2013 | $120,757 | $50,000 | $0 | $170,757 | $170,757 |
| 2012 | $122,177 | $66,400 | $0 | $188,577 | $188,577 |
| 2011 | $123,600 | $83,000 | $0 | $206,600 | $206,600 |
| 2010 | $129,651 | $83,000 | $0 | $212,651 | $212,651 |
| 2009 | $126,301 | $80,000 | $0 | $206,301 | $206,301 |
| 2008 | $127,905 | $99,000 | $0 | $226,905 | $226,905 |
| 2007 | $129,508 | $71,000 | $0 | $200,508 | $200,508 |
Deed and Sales History
| 1 | 08/22/2008 | QCD | Quit Claim Deed | ATALIG, SHAWNEE L | ATALIG, FRANCISCO C | | | $0.00 | 82260 | 4235771 |
| 2 | 02/01/1995 | WD | Warranty Deed | JOHNSON, DAVID B | ATALIG, SHAWNEE L | | | $110,000.00 | 50422 | 95002000 |
| 3 | 04/01/1994 | WD | Warranty Deed | KNOSP, MARJORIE A | JOHNSON, DAVID B | | | $16,000.00 | 41666 | 94010006 |
| 4 | 06/01/1988 | OTHER | Other - Misc. Documents | CAMPBELL, CECIL D | KNOSP, MARJORIE A | | | $0.00 | 62684 | 0 |
| 5 | 01/01/1900 | OTHER | Other - Misc. Documents | Unknown | CAMPBELL, CECIL D | | | $0.00 | 0 | 0 |
Payout Agreement
| No payout information available.. |