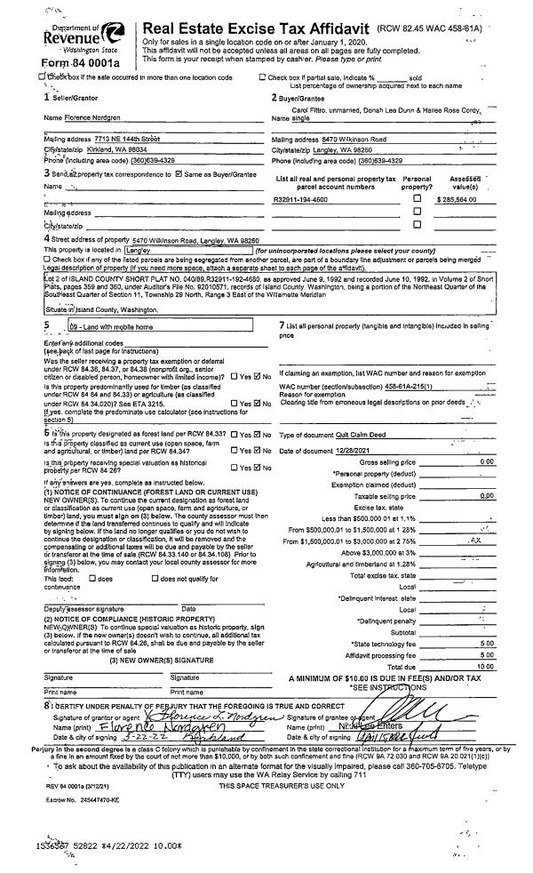
Property
Account |
| Property ID: | 285417 | Abbreviated Legal Description: | ISLAND TERR LOT 32 |
| Geographic ID: | S7235-00-00032-0 | Agent Code: | |
| Type: | Real | | |
| Tax Area: | 560 - APPRAISER-Stan/Cam Schl Dist, Special Dist, improved & less than 1 acre | Land Use Code | 11 |
| Open Space: | N | DFL | N |
| Historic Property: | N | Remodel Property: | N |
| Multi-Family Redevelopment: | N | | |
| Township: | | Section: | |
| Range: | |
Location |
| Address: | 3173 GLACIER LN CAMANO ISLAND, WA 98282 | Mapsco: | |
| Neighborhood: | 58NofTamarackS | Map ID: | 864 |
| Neighborhood CD: | 58RntamS |
Owner |
| Name: | DUFRESNE, SARA | Owner ID: | 65004 |
| Mailing Address: | 3173 GLACIER LN CAMANO ISLAND, WA 98282-8225 | % Ownership: | 100.0000000000% |
| | | Exemptions: | |
Taxes and Assessment Details
Values
| (+) Improvement Homesite Value: | + | $0 | |
| (+) Improvement Non-Homesite Value: | + | $199,694 | |
| (+) Land Homesite Value: | + | $0 | |
| (+) Land Non-Homesite Value: | + | $230,000 | |
| (+) Curr Use (HS): | + | $0 | $0 |
| (+) Curr Use (NHS): | + | $0 | $0 |
| | | -------------------------- | |
| (=) Market Value: | = | $429,694 | |
| (–) Productivity Loss: | – | $0 | |
| | | -------------------------- | |
| (=) Subtotal: | = | $429,694 | |
| (+) Senior Appraised Value: | + | $0 | |
| (+) Non-Senior Appraised Value: | + | $429,694 | |
| | | -------------------------- | |
| (=) Total Appraised Value: | = | $429,694 | |
| (–) Senior Exemption Loss: | – | $0 | |
| (–) Exemption Loss: | – | $0 | |
| | | -------------------------- | |
| (=) Taxable Value: | = | $429,694 | |
Taxing Jurisdiction
| Owner: | DUFRESNE, SARA | | |
| % Ownership: | 100.0000000000% | | |
| Total Value: | $429,694 | | |
| Tax Area: | 560 - APPRAISER-Stan/Cam Schl Dist, Special Dist, improved & less than 1 acre |
| CF | Conservation Futures | 0.0316035091 | $429,694 | $429,694 | $13.58 | | |
| EMS1 | Fire & Rescue Dist #1 Camano GEN (EMS) | 0.3677864386 | $429,694 | $429,694 | $158.04 | | |
| FIRE1 | Fire & Rescue Dist #1 Camano GEN | 1.2502910536 | $429,694 | $429,694 | $537.24 | | |
| FIRE1BOND | Fire & Rescue Dist #1 Camano BOND | 0.1570001679 | $429,694 | $429,694 | $67.46 | | |
| CE | County Current Expense | 0.3708482477 | $429,694 | $429,694 | $159.35 | | |
| CR | County Roads | 0.4584763726 | $429,694 | $429,694 | $197.00 | | |
| LCIB | Library Sno-Isle BOND (Camano Island) | 0.0396325772 | $429,694 | $429,694 | $17.03 | | |
| LIB | Library Sno-Isle GEN | 0.3153421757 | $429,694 | $429,694 | $135.50 | | |
| SCH205_401 | School 205-401 Enrichment | 1.2698420524 | $429,694 | $429,694 | $545.64 | | |
| SCH205BOND | School 205-401 BOND | 0.9396497583 | $429,694 | $429,694 | $403.76 | | |
| ST | State School | 1.3035497053 | $429,694 | $429,694 | $560.13 | | |
| ST2 | State School Part 2 | 0.8169543533 | $429,694 | $429,694 | $351.04 | | |
| | Total Tax Rate: | 7.3209764117 | | | | | |
| | | | | Taxes w/Current Exemptions: | $3,145.77 | | |
| | | | | Taxes w/o Exemptions: | $3,145.77 | | |
Improvement / Building
| Improvement #1: | RESIDENTIAL | State Code: | Y | 1008.0 sqft | Value: | $199,694 |
| Bathrooms: | 1 | Bedrooms: | 3 | | Ceiling: | DRYWALL PAINTED | Exterior Wall/Cover: | CEMENT FIBER | | Floor Covering: | VINYL/HARDWOOD 20-80 | Floor Structure: | WOOD W/SUBFLOOR | | Foundation: | CONCRETE | Heating: | WALL HEAT ELECTRIC | | Interior Finish: | DRYWALL PAINT | Plumbing Fixture Cnt: | 6 | | Roof Slope: | 4" IN 12" | Roof Structure/Cover: | CJ ASPHALT |
|
| | Type | Description | Class CD | Sub Class CD | Year Built | Area |
| | BAS | BASE/MAIN FLOOR | 3 | 0 | 1994 | 1008.0 |
| | OP4 | OPEN PORCH W/CEILING-ROOF | 3 | 0 | 1994 | 16.0 |
| | AGR | ATTACHED GARAGE | 3 | 0 | 1994 | 440.0 |
Sketch
Property Image
Land
| 1 | 14 | SQ (08001-12000) | 0.0000 | 0.00 | 0.00 | 0.00 | 1.00 | $230,000 | $0 |
Roll Value History
| 2026 | N/A | N/A | N/A | N/A | N/A |
| 2025 | $199,694 | $230,000 | $0 | $429,694 | $429,694 |
| 2024 | $202,152 | $220,000 | $0 | $422,152 | $422,152 |
| 2023 | $204,610 | $220,000 | $0 | $424,610 | $424,610 |
| 2022 | $187,502 | $200,000 | $0 | $387,502 | $387,502 |
| 2021 | $164,261 | $140,000 | $0 | $304,261 | $304,261 |
| 2020 | $160,060 | $110,000 | $0 | $270,060 | $270,060 |
| 2019 | $115,211 | $140,000 | $0 | $255,211 | $255,211 |
| 2018 | $115,549 | $130,000 | $0 | $245,549 | $245,549 |
| 2017 | $95,081 | $50,000 | $0 | $145,081 | $145,081 |
| 2016 | $96,270 | $50,000 | $0 | $146,270 | $146,270 |
| 2015 | $96,431 | $50,000 | $0 | $146,431 | $146,431 |
| 2014 | $97,631 | $50,000 | $0 | $147,631 | $147,631 |
| 2013 | $98,829 | $50,000 | $0 | $148,829 | $148,829 |
| 2012 | $100,029 | $66,400 | $0 | $166,429 | $166,429 |
| 2011 | $101,228 | $83,000 | $0 | $184,228 | $184,228 |
| 2010 | $102,756 | $83,000 | $0 | $185,756 | $185,756 |
| 2009 | $103,142 | $80,000 | $0 | $183,142 | $183,142 |
| 2008 | $104,458 | $99,000 | $0 | $203,458 | $203,458 |
| 2007 | $105,795 | $71,000 | $0 | $176,795 | $176,795 |
Deed and Sales History
| 1 | 03/05/2003 | TRUSTEED | Trustee's Deed | SECRETARY OF VETERANS AFFAIRS, | DUFRESNE, SARA | | | $106,000.00 | 31083 | 4051288 |
| 2 | 04/19/2002 | WD | Warranty Deed | A DELAWARE CORPORATION, CHASE | SECRETARY OF VETERANS AFFAIRS, | | | $100,469.00 | 21471 | 4017552 |
| 3 | 04/19/2002 | TRUSTEED | Trustee's Deed | Unknown | A DELAWARE CORPORATION, CHASE | | | $100,469.00 | 21470 | 4017551 |
| 4 | 02/01/1995 | WD | Warranty Deed | JOHNSON, DAVID B | PEPPER, CLIFFORD L | | | $99,950.00 | 50595 | 95002842 |
| 5 | 04/01/1994 | WD | Warranty Deed | KNOSP, MARJORIE A | JOHNSON, DAVID B | | | $16,000.00 | 41665 | 94010005 |
| 6 | 06/01/1988 | OTHER | Other - Misc. Documents | CAMPBELL, CECIL D | KNOSP, MARJORIE A | | | $0.00 | 62684 | 0 |
| 7 | 01/01/1900 | OTHER | Other - Misc. Documents | Unknown | CAMPBELL, CECIL D | | | $0.00 | 0 | 0 |
Payout Agreement
| No payout information available.. |