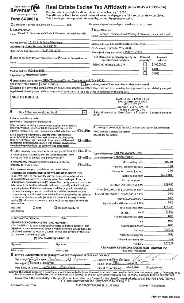
Property
Account |
| Property ID: | 285435 | Abbreviated Legal Description: | ISLAND TERR LOT 34 |
| Geographic ID: | S7235-00-00034-0 | Agent Code: | |
| Type: | Real | | |
| Tax Area: | 560 - APPRAISER-Stan/Cam Schl Dist, Special Dist, improved & less than 1 acre | Land Use Code | 11 |
| Open Space: | N | DFL | N |
| Historic Property: | N | Remodel Property: | N |
| Multi-Family Redevelopment: | N | | |
| Township: | | Section: | |
| Range: | |
Location |
| Address: | 3183 GLACIER LN CAMANO ISLAND, WA 98282 | Mapsco: | |
| Neighborhood: | 58NofTamarackS | Map ID: | 864 |
| Neighborhood CD: | 58RntamS |
Owner |
| Name: | HEGGENES, IRIS | Owner ID: | 297293 |
| Mailing Address: | 4212 ANKAR PARK DR #245 BELLINGHAM, WA 98226 | % Ownership: | 100.0000000000% |
| | | Exemptions: | |
Taxes and Assessment Details
Values
| (+) Improvement Homesite Value: | + | $0 | |
| (+) Improvement Non-Homesite Value: | + | $90,334 | |
| (+) Land Homesite Value: | + | $0 | |
| (+) Land Non-Homesite Value: | + | $230,000 | |
| (+) Curr Use (HS): | + | $0 | $0 |
| (+) Curr Use (NHS): | + | $0 | $0 |
| | | -------------------------- | |
| (=) Market Value: | = | $320,334 | |
| (–) Productivity Loss: | – | $0 | |
| | | -------------------------- | |
| (=) Subtotal: | = | $320,334 | |
| (+) Senior Appraised Value: | + | $0 | |
| (+) Non-Senior Appraised Value: | + | $320,334 | |
| | | -------------------------- | |
| (=) Total Appraised Value: | = | $320,334 | |
| (–) Senior Exemption Loss: | – | $0 | |
| (–) Exemption Loss: | – | $0 | |
| | | -------------------------- | |
| (=) Taxable Value: | = | $320,334 | |
Taxing Jurisdiction
| Owner: | HEGGENES, IRIS | | |
| % Ownership: | 100.0000000000% | | |
| Total Value: | $320,334 | | |
| Tax Area: | 560 - APPRAISER-Stan/Cam Schl Dist, Special Dist, improved & less than 1 acre |
| CF | Conservation Futures | 0.0316035091 | $320,334 | $320,334 | $10.12 | | |
| EMS1 | Fire & Rescue Dist #1 Camano GEN (EMS) | 0.3677864386 | $320,334 | $320,334 | $117.81 | | |
| FIRE1 | Fire & Rescue Dist #1 Camano GEN | 1.2502910536 | $320,334 | $320,334 | $400.51 | | |
| FIRE1BOND | Fire & Rescue Dist #1 Camano BOND | 0.1570001679 | $320,334 | $320,334 | $50.29 | | |
| CE | County Current Expense | 0.3708482477 | $320,334 | $320,334 | $118.80 | | |
| CR | County Roads | 0.4584763726 | $320,334 | $320,334 | $146.87 | | |
| LCIB | Library Sno-Isle BOND (Camano Island) | 0.0396325772 | $320,334 | $320,334 | $12.70 | | |
| LIB | Library Sno-Isle GEN | 0.3153421757 | $320,334 | $320,334 | $101.01 | | |
| SCH205_401 | School 205-401 Enrichment | 1.2698420524 | $320,334 | $320,334 | $406.77 | | |
| SCH205BOND | School 205-401 BOND | 0.9396497583 | $320,334 | $320,334 | $301.00 | | |
| ST | State School | 1.3035497053 | $320,334 | $320,334 | $417.57 | | |
| ST2 | State School Part 2 | 0.8169543533 | $320,334 | $320,334 | $261.70 | | |
| | Total Tax Rate: | 7.3209764117 | | | | | |
| | | | | Taxes w/Current Exemptions: | $2,345.15 | | |
| | | | | Taxes w/o Exemptions: | $2,345.15 | | |
Improvement / Building
| Improvement #1: | MANUFACTURED HOME | State Code: | Y | 864.0 sqft | Value: | $90,334 |
| Bathrooms: | 1 | Bedrooms: | 2 | | Ceiling: | PLASTER PAINTED | Cooling: | EVAP NO DUCT | | Exterior Wall/Cover: | VINYL | Floor Covering: | CARPET 100% | | Floor Structure: | SLAB ON GRADE | Foundation: | SLAB | | Heating: | FHA ELECTRIC | Interior Finish: | PLASTER | | Plumbing Fixture Cnt: | 1 | Roof Slope: | FLAT | | Roof Structure/Cover: | CJ ALUMINIUM HEAVY |   |   |
|
| | Type | Description | Class CD | Sub Class CD | Year Built | Area |
| | BAS | BASE/MAIN FLOOR | 4 | 0 | 1995 | 864.0 |
| | OWP | OPEN WOOD PORCH W/STEPS | 4 | 0 | 1995 | 86.0 |
| | OWP | OPEN WOOD PORCH W/STEPS | 4 | 0 | 1995 | 56.0 |
| | DGR | DETACHED GARAGE | 4 | 0 | 1995 | 570.7 |
Sketch
Property Image
Land
| 1 | 14 | SQ (08001-12000) | 0.0000 | 0.00 | 0.00 | 0.00 | 1.00 | $230,000 | $0 |
Roll Value History
| 2026 | N/A | N/A | N/A | N/A | N/A |
| 2025 | $90,334 | $230,000 | $0 | $320,334 | $320,334 |
| 2024 | $93,156 | $220,000 | $0 | $313,156 | $313,156 |
| 2023 | $83,457 | $220,000 | $0 | $303,457 | $303,457 |
| 2022 | $77,800 | $200,000 | $0 | $277,800 | $277,800 |
| 2021 | $69,582 | $140,000 | $0 | $209,582 | $209,582 |
| 2020 | $44,472 | $110,000 | $0 | $154,472 | $154,472 |
| 2019 | $36,199 | $140,000 | $0 | $176,199 | $176,199 |
| 2018 | $37,366 | $130,000 | $0 | $167,366 | $167,366 |
| 2017 | $38,534 | $50,000 | $0 | $88,534 | $88,534 |
| 2016 | $39,702 | $50,000 | $0 | $89,702 | $89,702 |
| 2015 | $41,424 | $50,000 | $0 | $91,424 | $91,424 |
| 2014 | $42,214 | $50,000 | $0 | $92,214 | $92,214 |
| 2013 | $42,609 | $50,000 | $0 | $92,609 | $92,609 |
| 2012 | $43,399 | $66,400 | $0 | $109,799 | $109,799 |
| 2011 | $44,189 | $83,000 | $0 | $127,189 | $127,189 |
| 2010 | $40,730 | $83,000 | $0 | $123,730 | $123,730 |
| 2009 | $42,867 | $88,000 | $0 | $130,867 | $130,867 |
| 2008 | $68,304 | $98,292 | $0 | $166,596 | $166,596 |
| 2007 | $45,296 | $84,121 | $0 | $129,417 | $129,417 |
Deed and Sales History
| 1 | 10/23/2020 | WD | Warranty Deed | RUDOLPH TRUSTEE, ALICE B | HEGGENES, IRIS | | | $210,000.00 | 45448 | 4500821 |
| 2 | 12/18/2016 | QCD | Quit Claim Deed | TORKELSON, ALAN | RUDOLPH TRUSTEE, ALICE B | | | $0.00 | 28868 | 4420700 |
| 3 | 11/01/1994 | WD | Warranty Deed | HANSEN, ARNOLD C | TORKELSON, ALAN | | | $17,000.00 | 44470 | 94022994 |
| 4 | 08/01/1990 | WD | Warranty Deed | BONAVENTURE, LANDS L | HANSEN, ARNOLD C | | | $6,900.00 | 4939 | 90016442 |
| 5 | 04/01/1979 | OTHER | Other - Misc. Documents | Unknown | BONAVENTURE, LANDS L | | | $4,500.00 | 92159 | 352093 |
Payout Agreement
| No payout information available.. |