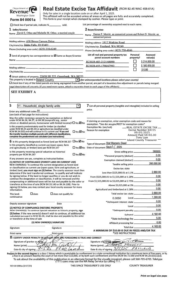
Property
Account |
| Property ID: | 285514 | Abbreviated Legal Description: | ISLAND VISTA LOT 7 |
| Geographic ID: | S7240-00-00007-0 | Agent Code: | |
| Type: | Real | | |
| Tax Area: | 510 - APPRAISER-Stan/Cam Schl Dist, improved & 1 acre or less | Land Use Code | 11 |
| Open Space: | N | DFL | N |
| Historic Property: | N | Remodel Property: | N |
| Multi-Family Redevelopment: | N | | |
| Township: | | Section: | |
| Range: | |
Location |
| Address: | 937 MADRONA BEACH RD CAMANO ISLAND, WA 98282 | Mapsco: | |
| Neighborhood: | North Camano | Map ID: | 573 |
| Neighborhood CD: | 06-C |
Owner |
| Name: | BIG RED PROPERTIES, LLC | Owner ID: | 316642 |
| Mailing Address: | PO BOX 432 SILVANA, WA 98287 | % Ownership: | 100.0000000000% |
| | | Exemptions: | |
Taxes and Assessment Details
Values
| (+) Improvement Homesite Value: | + | $0 | |
| (+) Improvement Non-Homesite Value: | + | $50,950 | |
| (+) Land Homesite Value: | + | $0 | |
| (+) Land Non-Homesite Value: | + | $240,000 | |
| (+) Curr Use (HS): | + | $0 | $0 |
| (+) Curr Use (NHS): | + | $0 | $0 |
| | | -------------------------- | |
| (=) Market Value: | = | $290,950 | |
| (–) Productivity Loss: | – | $0 | |
| | | -------------------------- | |
| (=) Subtotal: | = | $290,950 | |
| (+) Senior Appraised Value: | + | $0 | |
| (+) Non-Senior Appraised Value: | + | $290,950 | |
| | | -------------------------- | |
| (=) Total Appraised Value: | = | $290,950 | |
| (–) Senior Exemption Loss: | – | $0 | |
| (–) Exemption Loss: | – | $0 | |
| | | -------------------------- | |
| (=) Taxable Value: | = | $290,950 | |
Taxing Jurisdiction
| Owner: | BIG RED PROPERTIES, LLC | | |
| % Ownership: | 100.0000000000% | | |
| Total Value: | $290,950 | | |
| Tax Area: | 510 - APPRAISER-Stan/Cam Schl Dist, improved & 1 acre or less |
| CF | Conservation Futures | 0.0316035091 | $290,950 | $290,950 | $9.20 | | |
| EMS1 | Fire & Rescue Dist #1 Camano GEN (EMS) | 0.3677864386 | $290,950 | $290,950 | $107.01 | | |
| FIRE1 | Fire & Rescue Dist #1 Camano GEN | 1.2502910536 | $290,950 | $290,950 | $363.77 | | |
| FIRE1BOND | Fire & Rescue Dist #1 Camano BOND | 0.1570001679 | $290,950 | $290,950 | $45.68 | | |
| CE | County Current Expense | 0.3708482477 | $290,950 | $290,950 | $107.90 | | |
| CR | County Roads | 0.4584763726 | $290,950 | $290,950 | $133.39 | | |
| LCIB | Library Sno-Isle BOND (Camano Island) | 0.0396325772 | $290,950 | $290,950 | $11.53 | | |
| LIB | Library Sno-Isle GEN | 0.3153421757 | $290,950 | $290,950 | $91.75 | | |
| SCH205_401 | School 205-401 Enrichment | 1.2698420524 | $290,950 | $290,950 | $369.46 | | |
| SCH205BOND | School 205-401 BOND | 0.9396497583 | $290,950 | $290,950 | $273.39 | | |
| ST | State School | 1.3035497053 | $290,950 | $290,950 | $379.27 | | |
| ST2 | State School Part 2 | 0.8169543533 | $290,950 | $290,950 | $237.69 | | |
| | Total Tax Rate: | 7.3209764117 | | | | | |
| | | | | Taxes w/Current Exemptions: | $2,130.04 | | |
| | | | | Taxes w/o Exemptions: | $2,130.04 | | |
Improvement / Building
| Improvement #1: | MANUFACTURED HOME | State Code: | Y | 1083.0 sqft | Value: | $50,950 |
| Bathrooms: | 0 | Bedrooms: | 0 | | Ceiling: | PLASTER PAINTED | Cooling: | EVAP NO DUCT | | Exterior Wall/Cover: | VINYL | Floor Covering: | CARPET 100% | | Floor Structure: | SLAB ON GRADE | Foundation: | SLAB | | Heating: | FHA ELECTRIC | Interior Finish: | PLASTER | | Plumbing Fixture Cnt: | 1 | Roof Slope: | FLAT | | Roof Structure/Cover: | CJ ALUMINIUM HEAVY |   |   |
|
| | Type | Description | Class CD | Sub Class CD | Year Built | Area |
| | BAS | BASE/MAIN FLOOR | 3 | 0 | 1976 | 1083.0 |
| | DGR | DETACHED GARAGE | 3 | 0 | 1976 | 432.0 |
| | OWP | OPEN WOOD PORCH W/STEPS | 3 | 0 | 1976 | 80.0 |
| | OWC | OPEN WOOD PORCH W/STEPS/ROOF/C | 3 | 0 | 1976 | 66.0 |
Sketch
Property Image
Land
| 1 | 13 | SQ (06001-08000) | 0.0000 | 0.00 | 0.00 | 0.00 | 1.00 | $240,000 | $0 |
Roll Value History
| 2026 | N/A | N/A | N/A | N/A | N/A |
| 2025 | $50,950 | $240,000 | $0 | $290,950 | $290,950 |
| 2024 | $53,164 | $240,000 | $0 | $293,164 | $293,164 |
| 2023 | $56,487 | $240,000 | $0 | $296,487 | $296,487 |
| 2022 | $28,668 | $230,000 | $0 | $258,668 | $258,668 |
| 2021 | $26,439 | $130,000 | $0 | $156,439 | $156,439 |
| 2020 | $27,865 | $130,000 | $0 | $157,865 | $157,865 |
| 2019 | $23,106 | $110,000 | $0 | $133,106 | $133,106 |
| 2018 | $24,262 | $100,000 | $0 | $124,262 | $124,262 |
| 2017 | $25,417 | $100,000 | $0 | $125,417 | $125,417 |
| 2016 | $23,711 | $90,000 | $0 | $113,711 | $113,711 |
| 2015 | $24,747 | $66,400 | $0 | $91,147 | $91,147 |
| 2014 | $25,782 | $66,400 | $0 | $92,182 | $92,182 |
| 2013 | $26,818 | $66,400 | $0 | $93,218 | $93,218 |
| 2012 | $27,853 | $66,400 | $0 | $94,253 | $94,253 |
| 2011 | $29,407 | $83,000 | $0 | $112,407 | $112,407 |
| 2010 | $28,437 | $83,000 | $0 | $111,437 | $111,437 |
| 2009 | $29,413 | $100,000 | $0 | $129,413 | $129,413 |
| 2008 | $29,802 | $100,000 | $0 | $129,802 | $129,802 |
| 2007 | $30,779 | $100,000 | $0 | $130,779 | $130,779 |
Deed and Sales History
| 1 | 01/28/2025 | QCD | Quit Claim Deed | AALMO, LAUREN SHARON | BIG RED PROPERTIES, LLC | | | $0.00 | 62567 | 4582260 |
| 2 | 01/28/2025 | QCD | Quit Claim Deed | LAUREN SHARON AALMO, PR | AALMO, LAUREN SHARON | | | $0.00 | 62566 | 4582260 |
| 3 | 06/04/2017 | WD | Warranty Deed | ERNESTI, JEROME W | AALMO, BRUCE | | | $100,000.00 | 29700 | 4424104 |
| 4 | 06/01/1998 | OTHER | Other - Misc. Documents | ERNESTI, JEROME W | ERNESTI, JEROME W | | | $22,401.00 | 82093 | 0 |
| 5 | 05/20/1998 | WD | Warranty Deed | DRISCOLL, JEANETTE | ERNESTI, JEROME W | | | $57,549.00 | 82094 | 98010977 |
| 6 | 09/01/1996 | OTHER | Other - Misc. Documents | DRISCOLL, JEANNETTE M | DRISCOLL, JEANETTE | | | $0.00 | 63362 | 0 |
| 7 | 06/01/1996 | OTHER | Other - Misc. Documents | DRISCOLL, ROBERT E | DRISCOLL, JEANNETTE M | | | $0.00 | 67043 | 96011217 |
| 8 | 01/01/1900 | OTHER | Other - Misc. Documents | Unknown | DRISCOLL, ROBERT E | | | $0.00 | 0 | 0 |
Payout Agreement
| No payout information available.. |