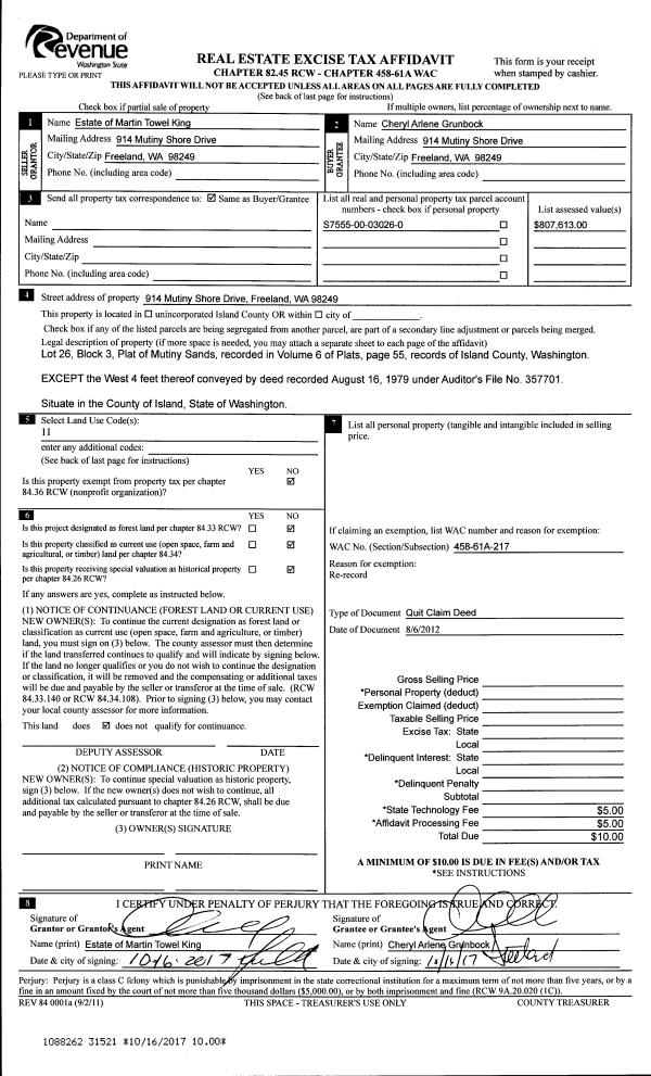
Property
Account |
| Property ID: | 285630 | Abbreviated Legal Description: | JACOBS PK LOT 2 & LOT 3 BLK A EX E16' |
| Geographic ID: | S7245-00-0A002-0 | Agent Code: | |
| Type: | Real | | |
| Tax Area: | 580 - APPRAISER-Stan/Cam Schl Dist, Special Dist, improved & less than 1 acre | Land Use Code | 11 |
| Open Space: | N | DFL | N |
| Historic Property: | N | Remodel Property: | N |
| Multi-Family Redevelopment: | N | | |
| Township: | | Section: | |
| Range: | |
Location |
| Address: | 1382 OCEAN DR CAMANO ISLAND, WA 98282 | Mapsco: | |
| Neighborhood: | Cycle 5 | Map ID: | 980 |
| Neighborhood CD: | 5 |
Owner |
| Name: | KUDER, WILLIAM A | Owner ID: | 282368 |
| Mailing Address: | KATHERINE GEM KUDER 8111 8TH AVE NE SEATTLE, WA 98115 | % Ownership: | 100.0000000000% |
| | | Exemptions: | |
Taxes and Assessment Details
Values
| (+) Improvement Homesite Value: | + | $0 | |
| (+) Improvement Non-Homesite Value: | + | $256,187 | |
| (+) Land Homesite Value: | + | $0 | |
| (+) Land Non-Homesite Value: | + | $650,000 | |
| (+) Curr Use (HS): | + | $0 | $0 |
| (+) Curr Use (NHS): | + | $0 | $0 |
| | | -------------------------- | |
| (=) Market Value: | = | $906,187 | |
| (–) Productivity Loss: | – | $0 | |
| | | -------------------------- | |
| (=) Subtotal: | = | $906,187 | |
| (+) Senior Appraised Value: | + | $0 | |
| (+) Non-Senior Appraised Value: | + | $906,187 | |
| | | -------------------------- | |
| (=) Total Appraised Value: | = | $906,187 | |
| (–) Senior Exemption Loss: | – | $0 | |
| (–) Exemption Loss: | – | $0 | |
| | | -------------------------- | |
| (=) Taxable Value: | = | $906,187 | |
Taxing Jurisdiction
| Owner: | KUDER, WILLIAM A | | |
| % Ownership: | 100.0000000000% | | |
| Total Value: | $906,187 | | |
| Tax Area: | 580 - APPRAISER-Stan/Cam Schl Dist, Special Dist, improved & less than 1 acre |
| CF | Conservation Futures | 0.0316035091 | $906,187 | $906,187 | $28.64 | | |
| EMS1 | Fire & Rescue Dist #1 Camano GEN (EMS) | 0.3677864386 | $906,187 | $906,187 | $333.28 | | |
| FIRE1 | Fire & Rescue Dist #1 Camano GEN | 1.2502910536 | $906,187 | $906,187 | $1,133.00 | | |
| FIRE1BOND | Fire & Rescue Dist #1 Camano BOND | 0.1570001679 | $906,187 | $906,187 | $142.27 | | |
| CE | County Current Expense | 0.3708482477 | $906,187 | $906,187 | $336.06 | | |
| CR | County Roads | 0.4584763726 | $906,187 | $906,187 | $415.47 | | |
| LCIB | Library Sno-Isle BOND (Camano Island) | 0.0396325772 | $906,187 | $906,187 | $35.91 | | |
| LIB | Library Sno-Isle GEN | 0.3153421757 | $906,187 | $906,187 | $285.76 | | |
| SCH205_401 | School 205-401 Enrichment | 1.2698420524 | $906,187 | $906,187 | $1,150.71 | | |
| SCH205BOND | School 205-401 BOND | 0.9396497583 | $906,187 | $906,187 | $851.50 | | |
| ST | State School | 1.3035497053 | $906,187 | $906,187 | $1,181.26 | | |
| ST2 | State School Part 2 | 0.8169543533 | $906,187 | $906,187 | $740.31 | | |
| | Total Tax Rate: | 7.3209764117 | | | | | |
| | | | | Taxes w/Current Exemptions: | $6,634.17 | | |
| | | | | Taxes w/o Exemptions: | $6,634.17 | | |
Improvement / Building
| Improvement #1: | RESIDENTIAL | State Code: | Y | 1167.0 sqft | Value: | $256,187 |
| Bathrooms: | 2 | Bedrooms: | 3 | | Ceiling: | DRYWALL PAINTED | Cooling: | HEAT PUMP/CONV/V | | Exterior Wall/Cover: | PLY/HARDBOARD T-111 | Floor Covering: | VINYL 100% | | Floor Structure: | WOOD W/SUBFLOOR | Foundation: | CONCRETE | | Interior Finish: | DRYWALL PAINT | Plumbing Fixture Cnt: | 9 | | Roof Slope: | 4" IN 12" | Roof Structure/Cover: | CJ ASPHALT |
|
| | Type | Description | Class CD | Sub Class CD | Year Built | Area |
| | BAS | BASE/MAIN FLOOR | 3 | 0 | 1932 | 1167.0 |
| | OWP | OPEN WOOD PORCH W/STEPS | 3 | 0 | 1932 | 456.0 |
| | OWP | OPEN WOOD PORCH W/STEPS | 3 | 0 | 1932 | 360.0 |
| | OWP | OPEN WOOD PORCH W/STEPS | 3 | 0 | 1932 | 133.0 |
Sketch
Property Image
Land
| 1 | LB | LOW BANK | 0.0000 | 0.00 | 34.00 | 0.00 | 1.00 | $650,000 | $0 |
Roll Value History
| 2026 | N/A | N/A | N/A | N/A | N/A |
| 2025 | $256,187 | $650,000 | $0 | $906,187 | $906,187 |
| 2024 | $258,270 | $600,000 | $0 | $858,270 | $858,270 |
| 2023 | $260,353 | $600,000 | $0 | $860,353 | $860,353 |
| 2022 | $237,632 | $600,000 | $0 | $837,632 | $837,632 |
| 2021 | $208,277 | $500,000 | $0 | $708,277 | $708,277 |
| 2020 | $95,897 | $475,000 | $0 | $570,897 | $570,897 |
| 2019 | $71,367 | $400,000 | $0 | $471,367 | $471,367 |
| 2018 | $16,236 | $400,000 | $0 | $416,236 | $416,236 |
| 2017 | $33,396 | $300,000 | $0 | $333,396 | $333,396 |
| 2016 | $34,108 | $300,000 | $0 | $334,108 | $334,108 |
| 2015 | $36,840 | $300,000 | $0 | $336,840 | $336,840 |
| 2014 | $37,503 | $300,000 | $0 | $337,503 | $337,503 |
| 2013 | $38,165 | $319,482 | $0 | $357,647 | $357,647 |
| 2012 | $38,826 | $319,482 | $0 | $358,308 | $358,308 |
| 2011 | $39,489 | $336,297 | $0 | $375,786 | $375,786 |
| 2010 | $43,482 | $336,297 | $0 | $379,779 | $379,779 |
| 2009 | $41,725 | $392,693 | $0 | $434,418 | $434,418 |
| 2008 | $42,405 | $392,693 | $0 | $435,098 | $435,098 |
| 2007 | $43,085 | $418,349 | $0 | $461,434 | $461,434 |
Deed and Sales History
| 1 | 10/04/2017 | WD | Warranty Deed | ERICKSON, STEVEN K | KUDER, WILLIAM A | | | $400,000.00 | 31446 | 4431797 |
| 2 | 11/04/2016 | JUDG | DNU - Judgement | ERICKSON, STEVEN K | ERICKSON, STEVEN K | | | $0.00 | 31337 | 4431268 |
| 3 | 11/13/2006 | WD | Warranty Deed | FOSSE, RONALD C | ERICKSON, STEVEN K | | | $476,500.00 | 65006 | 4188079 |
| 4 | 12/01/1979 | CD | DNU - Correction Deed | FOSSE, CLIFF H | FOSSE, RONALD C | | | $0.00 | 95746 | 362590 |
| 5 | 01/01/1900 | OTHER | Other - Misc. Documents | Unknown | FOSSE, CLIFF H | | | $0.00 | 0 | 0 |
Payout Agreement
| No payout information available.. |