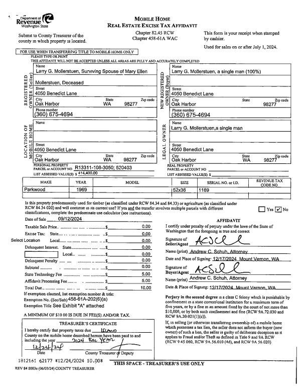
Property
Account |
| Property ID: | 285667 | Abbreviated Legal Description: | JACOBS PK LOT 6 BLK A |
| Geographic ID: | S7245-00-0A006-0 | Agent Code: | |
| Type: | Real | | |
| Tax Area: | 580 - APPRAISER-Stan/Cam Schl Dist, Special Dist, improved & less than 1 acre | Land Use Code | 11 |
| Open Space: | N | DFL | N |
| Historic Property: | N | Remodel Property: | N |
| Multi-Family Redevelopment: | N | | |
| Township: | | Section: | |
| Range: | |
Location |
| Address: | 1388 OCEAN DR CAMANO ISLAND, WA 98282 | Mapsco: | |
| Neighborhood: | Cycle 5 | Map ID: | 980 |
| Neighborhood CD: | 5 |
Owner |
| Name: | THOMPSON TTEE, CHRISTOPHER F | Owner ID: | 312654 |
| Mailing Address: | MADELINE M THOMPSON TTEE 3 SHIRE COTO DE CAZA, CA 92679 | % Ownership: | 100.0000000000% |
| | | Exemptions: | |
Taxes and Assessment Details
Values
| (+) Improvement Homesite Value: | + | $0 | |
| (+) Improvement Non-Homesite Value: | + | $305,999 | |
| (+) Land Homesite Value: | + | $0 | |
| (+) Land Non-Homesite Value: | + | $650,000 | |
| (+) Curr Use (HS): | + | $0 | $0 |
| (+) Curr Use (NHS): | + | $0 | $0 |
| | | -------------------------- | |
| (=) Market Value: | = | $955,999 | |
| (–) Productivity Loss: | – | $0 | |
| | | -------------------------- | |
| (=) Subtotal: | = | $955,999 | |
| (+) Senior Appraised Value: | + | $0 | |
| (+) Non-Senior Appraised Value: | + | $955,999 | |
| | | -------------------------- | |
| (=) Total Appraised Value: | = | $955,999 | |
| (–) Senior Exemption Loss: | – | $0 | |
| (–) Exemption Loss: | – | $0 | |
| | | -------------------------- | |
| (=) Taxable Value: | = | $955,999 | |
Taxing Jurisdiction
| Owner: | THOMPSON TTEE, CHRISTOPHER F | | |
| % Ownership: | 100.0000000000% | | |
| Total Value: | $955,999 | | |
| Tax Area: | 580 - APPRAISER-Stan/Cam Schl Dist, Special Dist, improved & less than 1 acre |
| CF | Conservation Futures | 0.0316035091 | $955,999 | $955,999 | $30.21 | | |
| EMS1 | Fire & Rescue Dist #1 Camano GEN (EMS) | 0.3677864386 | $955,999 | $955,999 | $351.60 | | |
| FIRE1 | Fire & Rescue Dist #1 Camano GEN | 1.2502910536 | $955,999 | $955,999 | $1,195.28 | | |
| FIRE1BOND | Fire & Rescue Dist #1 Camano BOND | 0.1570001679 | $955,999 | $955,999 | $150.09 | | |
| CE | County Current Expense | 0.3708482477 | $955,999 | $955,999 | $354.53 | | |
| CR | County Roads | 0.4584763726 | $955,999 | $955,999 | $438.30 | | |
| LCIB | Library Sno-Isle BOND (Camano Island) | 0.0396325772 | $955,999 | $955,999 | $37.89 | | |
| LIB | Library Sno-Isle GEN | 0.3153421757 | $955,999 | $955,999 | $301.47 | | |
| SCH205_401 | School 205-401 Enrichment | 1.2698420524 | $955,999 | $955,999 | $1,213.97 | | |
| SCH205BOND | School 205-401 BOND | 0.9396497583 | $955,999 | $955,999 | $898.30 | | |
| ST | State School | 1.3035497053 | $955,999 | $955,999 | $1,246.19 | | |
| ST2 | State School Part 2 | 0.8169543533 | $955,999 | $955,999 | $781.01 | | |
| | Total Tax Rate: | 7.3209764117 | | | | | |
| | | | | Taxes w/Current Exemptions: | $6,998.84 | | |
| | | | | Taxes w/o Exemptions: | $6,998.84 | | |
Improvement / Building
| Improvement #1: | RESIDENTIAL | State Code: | Y | 1404.0 sqft | Value: | $305,999 |
| Bathrooms: | 2 | Bedrooms: | 3 | | Ceiling: | DRYWALL PAINTED | Exterior Wall/Cover: | CEMENT FIBER | | Floor Covering: | CERAMIC TILE/CPT 40-60 | Floor Structure: | WOOD W/SUBFLOOR | | Foundation: | CONCRETE | Heating: | WALL HEAT ELECTRIC | | Interior Finish: | DRYWALL PAINT | Plumbing Fixture Cnt: | 12 | | Roof Slope: | 6" IN 12" | Roof Structure/Cover: | BEAM ASPHALT |
|
| | Type | Description | Class CD | Sub Class CD | Year Built | Area |
| | BAS | BASE/MAIN FLOOR | 4 | 0 | 2005 | 702.0 |
| | OP2 | OPEN PORCH W/STEPS | 4 | 0 | 2005 | 33.3 |
| | UPS | UPPER STORY | 4 | 0 | 2005 | 702.0 |
| | OWP | OPEN WOOD PORCH W/STEPS | 4 | 0 | 2005 | 68.8 |
| | OWP | OPEN WOOD PORCH W/STEPS | 4 | 0 | 2005 | 288.0 |
Sketch
Property Image
Land
| 1 | LB | LOW BANK | 0.0000 | 0.00 | 25.00 | 0.00 | 1.00 | $650,000 | $0 |
Roll Value History
| 2026 | N/A | N/A | N/A | N/A | N/A |
| 2025 | $305,999 | $650,000 | $0 | $955,999 | $955,999 |
| 2024 | $309,506 | $600,000 | $0 | $909,506 | $909,506 |
| 2023 | $298,986 | $600,000 | $0 | $898,986 | $898,986 |
| 2022 | $273,905 | $600,000 | $0 | $873,905 | $873,905 |
| 2021 | $232,657 | $500,000 | $0 | $732,657 | $732,657 |
| 2020 | $225,906 | $475,000 | $0 | $700,906 | $700,906 |
| 2019 | $161,969 | $400,000 | $0 | $561,969 | $561,969 |
| 2018 | $162,439 | $400,000 | $0 | $562,439 | $562,439 |
| 2017 | $163,362 | $250,000 | $0 | $413,362 | $413,362 |
| 2016 | $165,241 | $250,000 | $0 | $415,241 | $415,241 |
| 2015 | $156,466 | $250,000 | $0 | $406,466 | $406,466 |
| 2014 | $158,188 | $250,000 | $0 | $408,188 | $408,188 |
| 2013 | $159,909 | $234,913 | $0 | $394,822 | $394,822 |
| 2012 | $161,631 | $234,913 | $0 | $396,544 | $396,544 |
| 2011 | $163,352 | $247,277 | $0 | $410,629 | $410,629 |
| 2010 | $163,818 | $247,277 | $0 | $411,095 | $411,095 |
| 2009 | $173,144 | $288,745 | $0 | $461,889 | $461,889 |
| 2008 | $174,986 | $288,745 | $0 | $463,731 | $463,731 |
| 2007 | $176,817 | $307,610 | $0 | $484,427 | $484,427 |
Deed and Sales History
| 1 | 04/18/2024 | QCD | Quit Claim Deed | THOMPSON, CHRISTOPHER THOMAS | THOMPSON TTEE, CHRISTOPHER F | | | $0.00 | 60226 | 4573204 |
| 2 | 08/23/2023 | WD | Warranty Deed | MCKAIN, JERRY | THOMPSON TTEE ET AL, CHRISTOPHER F | | | $1,100,000.00 | 57913 | 4564430 |
| 3 | 08/01/1978 | OTHER | Other - Misc. Documents | MCKAIN, ELLIOTT G | MCKAIN, JERRY | | | $0.00 | 58505 | 339894 |
| 4 | 01/01/1900 | OTHER | Other - Misc. Documents | Unknown | MCKAIN, ELLIOTT G | | | $0.00 | 0 | 0 |
Payout Agreement
| No payout information available.. |