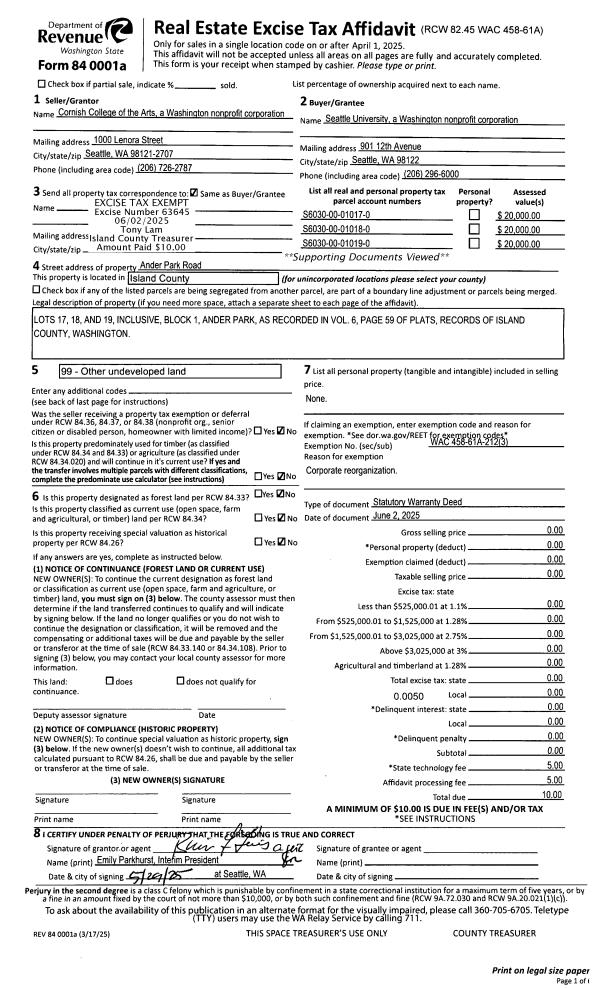
Property
Account |
| Property ID: | 28570 | Abbreviated Legal Description: | 104 COUPE DC - E100'OF:BG 263.24'E & 66'S OF NWCR COUPE DC S134-1/2'ELY 224.2'N152-1/2'W224-1/2'TPB (AKA LOTS 3 & 4 BLK 2 PLAT OF COUPEVILLE) UNDIV 1/2 INT EA F M & B A HANSEN - TRUSTEES |
| Geographic ID: | R13233-394-4420 | Agent Code: | |
| Type: | Real | | |
| Tax Area: | 300 - APPRAISER-Cpvl Schl Dist, in Cpvl | Land Use Code | 79 |
| Open Space: | N | DFL | N |
| Historic Property: | N | Remodel Property: | N |
| Multi-Family Redevelopment: | N | | |
| Township: | 32 | Section: | 33 |
| Range: | R1 |
Location |
| Address: | | Mapsco: | |
| Neighborhood: | 2 Front Street Comercial | Map ID: | 175 |
| Neighborhood CD: | 21cCPfront |
Owner |
| Name: | LEE JR, HARRY C | Owner ID: | 268409 |
| Mailing Address: | CATHERINE K LEE 105 NE FRONT ST BOX 1674 COUPEVILLE, WA 98239 | % Ownership: | 100.0000000000% |
| | | Exemptions: | |
Taxes and Assessment Details
Values
| (+) Improvement Homesite Value: | + | $0 | |
| (+) Improvement Non-Homesite Value: | + | $0 | |
| (+) Land Homesite Value: | + | $0 | |
| (+) Land Non-Homesite Value: | + | $50,000 | |
| (+) Curr Use (HS): | + | $0 | $0 |
| (+) Curr Use (NHS): | + | $0 | $0 |
| | | -------------------------- | |
| (=) Market Value: | = | $50,000 | |
| (–) Productivity Loss: | – | $0 | |
| | | -------------------------- | |
| (=) Subtotal: | = | $50,000 | |
| (+) Senior Appraised Value: | + | $0 | |
| (+) Non-Senior Appraised Value: | + | $50,000 | |
| | | -------------------------- | |
| (=) Total Appraised Value: | = | $50,000 | |
| (–) Senior Exemption Loss: | – | $0 | |
| (–) Exemption Loss: | – | $0 | |
| | | -------------------------- | |
| (=) Taxable Value: | = | $50,000 | |
Taxing Jurisdiction
| Owner: | LEE JR, HARRY C | | |
| % Ownership: | 100.0000000000% | | |
| Total Value: | $50,000 | | |
| Tax Area: | 300 - APPRAISER-Cpvl Schl Dist, in Cpvl |
| CF | Conservation Futures | 0.0316035091 | $50,000 | $50,000 | $1.58 | | |
| CEM2 | Cemetery #2 | 0.0095056933 | $50,000 | $50,000 | $0.48 | | |
| COUP | City: Town of Coupeville | 0.8426414490 | $50,000 | $50,000 | $42.13 | | |
| FIRE5 | Fire & Rescue Dist #5 C Whidbey GEN | 1.2008080668 | $50,000 | $50,000 | $60.04 | | |
| FIRE5BOND | Fire & Rescue Dist #5 C Whidbey BOND | 0.1400090713 | $50,000 | $50,000 | $7.00 | | |
| HOBOND | Hospital BOND | 0.1910887512 | $50,000 | $50,000 | $9.55 | | |
| HOGEN | Hospital GEN | 0.3902502903 | $50,000 | $50,000 | $19.51 | | |
| CE | County Current Expense | 0.3708482477 | $50,000 | $50,000 | $18.54 | | |
| ISLANDEMS | Hospital GEN (EMS) | 0.5000000000 | $50,000 | $50,000 | $25.00 | | |
| LIB | Library Sno-Isle GEN | 0.3153421757 | $50,000 | $50,000 | $15.77 | | |
| LIBCAP | Library Sno-Isle BOND (Cap Fac Imp Area) | 0.0543427938 | $50,000 | $50,000 | $2.72 | | |
| POCOUP | Port of Coupeville GEN | 0.1093371703 | $50,000 | $50,000 | $5.47 | | |
| POCOUPIDD | Port of Coupeville IDD | 0.3409740022 | $50,000 | $50,000 | $17.05 | | |
| COUPSDTECH | School 204 CP (TECH) | 0.7545480007 | $50,000 | $50,000 | $37.73 | | |
| SCH204MO | School 204 Enrichment | 0.6716186034 | $50,000 | $50,000 | $33.58 | | |
| ST | State School | 1.3035497053 | $50,000 | $50,000 | $65.18 | | |
| ST2 | State School Part 2 | 0.8169543533 | $50,000 | $50,000 | $40.85 | | |
| | Total Tax Rate: | 8.0434218834 | | | | | |
| | | | | Taxes w/Current Exemptions: | $402.18 | | |
| | | | | Taxes w/o Exemptions: | $402.18 | | |
Improvement / Building
Sketch
| No sketches available for this property. |
Property Image
Land
| 1 | 68 | COMMERCIAL RETAIL | 0.3400 | 14810.40 | 100.00 | 0.00 | 1.00 | $50,000 | $0 |
Roll Value History
| 2026 | N/A | N/A | N/A | N/A | N/A |
| 2025 | $0 | $50,000 | $0 | $50,000 | $50,000 |
| 2024 | $0 | $83,325 | $0 | $83,325 | $83,325 |
| 2023 | $0 | $83,325 | $0 | $83,325 | $83,325 |
| 2022 | $0 | $83,325 | $0 | $83,325 | $83,325 |
| 2021 | $0 | $83,325 | $0 | $83,325 | $83,325 |
| 2020 | $0 | $83,325 | $0 | $83,325 | $83,325 |
| 2019 | $0 | $83,325 | $0 | $83,325 | $83,325 |
| 2018 | $0 | $83,325 | $0 | $83,325 | $83,325 |
| 2017 | $0 | $79,992 | $0 | $79,992 | $79,992 |
| 2016 | $0 | $79,992 | $0 | $79,992 | $79,992 |
| 2015 | $0 | $156,400 | $0 | $156,400 | $156,400 |
| 2014 | $0 | $156,400 | $0 | $156,400 | $156,400 |
| 2013 | $0 | $156,400 | $0 | $156,400 | $156,400 |
| 2012 | $0 | $204,300 | $0 | $204,300 | $204,300 |
| 2011 | $0 | $204,300 | $0 | $204,300 | $204,300 |
| 2010 | $0 | $204,300 | $0 | $204,300 | $204,300 |
| 2009 | $0 | $204,300 | $0 | $204,300 | $204,300 |
| 2008 | $0 | $204,300 | $0 | $204,300 | $204,300 |
| 2007 | $0 | $126,500 | $0 | $126,500 | $126,500 |
Deed and Sales History
| 1 | 11/06/2014 | WD | Warranty Deed | LEE JR, HARRY C | LEE JR, HARRY C | | | $300,000.00 | 17517 | 4368332 |
|   | |
| 2 | 07/01/1995 | QCD | Quit Claim Deed | HANSEN, FRANK M | HANSEN, FRANK M | | | $0.00 | 53596 | 95016484 |
| 3 | 03/01/1995 | QCD | Quit Claim Deed | HANSEN, FRANK M | HANSEN, FRANK M | | | $0.00 | 51115 | 95005202 |
| 4 | 11/01/1989 | DECREE | Divorce Decree/Legal Separation | HANSEN, FRANK M | HANSEN, FRANK M | | | $0.00 | 95120 | 89016480 |
| 5 | 03/01/1984 | OTHER | Other - Misc. Documents | HANSEN, FRANK M | HANSEN, FRANK M | | | $0.00 | 60449 | 0 |
| 6 | 06/01/1981 | QCD | Quit Claim Deed | HANSEN, FRANK M | HANSEN, FRANK M | | | $1.00 | 11863 | 384416 |
| 7 | 05/01/1981 | REC | Real Estate Contract | GOOKINS, GORDON G | HANSEN, FRANK M | | | $45,000.00 | 11757 | 384039 |
| 8 | 01/01/1900 | OTHER | Other - Misc. Documents | Unknown | GOOKINS, GORDON G | | | $0.00 | 0 | 0 |
Payout Agreement
| No payout information available.. |