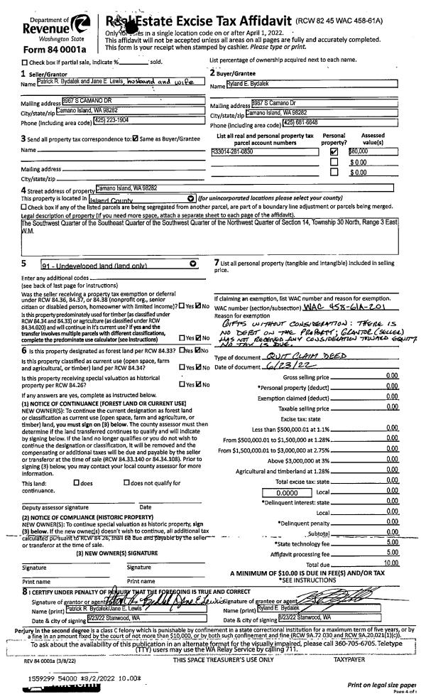
Property
Account |
| Property ID: | 285774 | Abbreviated Legal Description: | JACOBS PK PT LOTS 20 & 21 BLK A LY E OF FOLL DESC LN: BG NLY CR COM TO SD LOTS 20 & 21 S ALG SD LN 99.69' S5*W1.36' S84*E0.12' TO ORIG LOT LN BETW SD LOTS 20 & 21 S ALG SD LN 64.70' N87*W1.17' S3*W40.40' S87*E0.36' S2*W8.11' S87*E2.94' TO SD ORIG LOT LN S |
| Geographic ID: | S7245-00-0A021-0 | Agent Code: | |
| Type: | Real | | |
| Tax Area: | 580 - APPRAISER-Stan/Cam Schl Dist, Special Dist, improved & less than 1 acre | Land Use Code | 11 |
| Open Space: | N | DFL | N |
| Historic Property: | N | Remodel Property: | N |
| Multi-Family Redevelopment: | N | | |
| Township: | | Section: | |
| Range: | |
Location |
| Address: | 1410 OCEAN DR CAMANO ISLAND, WA 98282 | Mapsco: | |
| Neighborhood: | Cycle 5 | Map ID: | 980 |
| Neighborhood CD: | 5 |
Owner |
| Name: | BRUNSON, JULIE D | Owner ID: | 279737 |
| Mailing Address: | 13236 120TH AVE NE KIRKLAND, WA 98034 | % Ownership: | 100.0000000000% |
| | | Exemptions: | |
Taxes and Assessment Details
Values
| (+) Improvement Homesite Value: | + | $0 | |
| (+) Improvement Non-Homesite Value: | + | $80,038 | |
| (+) Land Homesite Value: | + | $0 | |
| (+) Land Non-Homesite Value: | + | $650,000 | |
| (+) Curr Use (HS): | + | $0 | $0 |
| (+) Curr Use (NHS): | + | $0 | $0 |
| | | -------------------------- | |
| (=) Market Value: | = | $730,038 | |
| (–) Productivity Loss: | – | $0 | |
| | | -------------------------- | |
| (=) Subtotal: | = | $730,038 | |
| (+) Senior Appraised Value: | + | $0 | |
| (+) Non-Senior Appraised Value: | + | $730,038 | |
| | | -------------------------- | |
| (=) Total Appraised Value: | = | $730,038 | |
| (–) Senior Exemption Loss: | – | $0 | |
| (–) Exemption Loss: | – | $0 | |
| | | -------------------------- | |
| (=) Taxable Value: | = | $730,038 | |
Taxing Jurisdiction
| Owner: | BRUNSON, JULIE D | | |
| % Ownership: | 100.0000000000% | | |
| Total Value: | $730,038 | | |
| Tax Area: | 580 - APPRAISER-Stan/Cam Schl Dist, Special Dist, improved & less than 1 acre |
| CF | Conservation Futures | 0.0316035091 | $730,038 | $730,038 | $23.07 | | |
| EMS1 | Fire & Rescue Dist #1 Camano GEN (EMS) | 0.3677864386 | $730,038 | $730,038 | $268.50 | | |
| FIRE1 | Fire & Rescue Dist #1 Camano GEN | 1.2502910536 | $730,038 | $730,038 | $912.76 | | |
| FIRE1BOND | Fire & Rescue Dist #1 Camano BOND | 0.1570001679 | $730,038 | $730,038 | $114.62 | | |
| CE | County Current Expense | 0.3708482477 | $730,038 | $730,038 | $270.73 | | |
| CR | County Roads | 0.4584763726 | $730,038 | $730,038 | $334.71 | | |
| LCIB | Library Sno-Isle BOND (Camano Island) | 0.0396325772 | $730,038 | $730,038 | $28.93 | | |
| LIB | Library Sno-Isle GEN | 0.3153421757 | $730,038 | $730,038 | $230.21 | | |
| SCH205_401 | School 205-401 Enrichment | 1.2698420524 | $730,038 | $730,038 | $927.03 | | |
| SCH205BOND | School 205-401 BOND | 0.9396497583 | $730,038 | $730,038 | $685.98 | | |
| ST | State School | 1.3035497053 | $730,038 | $730,038 | $951.64 | | |
| ST2 | State School Part 2 | 0.8169543533 | $730,038 | $730,038 | $596.41 | | |
| | Total Tax Rate: | 7.3209764117 | | | | | |
| | | | | Taxes w/Current Exemptions: | $5,344.59 | | |
| | | | | Taxes w/o Exemptions: | $5,344.59 | | |
Improvement / Building
| Improvement #1: | RESIDENTIAL | State Code: | Y | 632.0 sqft | Value: | $80,038 |
| Bathrooms: | 1 | Bedrooms: | 1 | | Ceiling: | PLYWOOD PAINTED | Exterior Wall/Cover: | WOOD SIDING | | Floor Covering: | CARPET/VINYL 60-40 | Floor Structure: | WOOD W/SUBFLOOR | | Foundation: | CONCRETE BLOCKS | Heating: | BASEBOARD ELECTRIC | | Interior Finish: | DRYWALL PAINT | Plumbing Fixture Cnt: | 5 | | Roof Slope: | 6" IN 12" | Roof Structure/Cover: | CJ ASPHALT |
|
| | Type | Description | Class CD | Sub Class CD | Year Built | Area |
| | BAS | BASE/MAIN FLOOR | 2 | 0 | 1925 | 632.0 |
| | OWP | OPEN WOOD PORCH W/STEPS | 2 | 0 | 1925 | 108.0 |
| | OWP | OPEN WOOD PORCH W/STEPS | 2 | 0 | 1925 | 112.0 |
Sketch
Property Image
Land
| 1 | LB | LOW BANK | 0.0000 | 0.00 | 25.00 | 0.00 | 1.00 | $650,000 | $0 |
Roll Value History
| 2026 | N/A | N/A | N/A | N/A | N/A |
| 2025 | $80,038 | $650,000 | $0 | $730,038 | $730,038 |
| 2024 | $83,110 | $600,000 | $0 | $683,110 | $683,110 |
| 2023 | $84,445 | $600,000 | $0 | $684,445 | $684,445 |
| 2022 | $77,675 | $600,000 | $0 | $677,675 | $677,675 |
| 2021 | $56,158 | $500,000 | $0 | $556,158 | $556,158 |
| 2020 | $55,011 | $475,000 | $0 | $530,011 | $530,011 |
| 2019 | $39,988 | $400,000 | $0 | $439,988 | $439,988 |
| 2018 | $40,166 | $400,000 | $0 | $440,166 | $440,166 |
| 2017 | $40,520 | $250,000 | $0 | $290,520 | $290,520 |
| 2016 | $41,231 | $250,000 | $0 | $291,231 | $291,231 |
| 2015 | $30,667 | $250,000 | $0 | $280,667 | $280,667 |
| 2014 | $31,334 | $250,000 | $0 | $281,334 | $281,334 |
| 2013 | $32,001 | $234,913 | $0 | $266,914 | $266,914 |
| 2012 | $32,668 | $234,913 | $0 | $267,581 | $267,581 |
| 2011 | $33,334 | $247,277 | $0 | $280,611 | $280,611 |
| 2010 | $39,285 | $247,277 | $0 | $286,562 | $286,562 |
| 2009 | $35,120 | $288,745 | $0 | $323,865 | $323,865 |
| 2008 | $35,912 | $288,745 | $0 | $324,657 | $324,657 |
| 2007 | $36,704 | $307,610 | $0 | $344,314 | $344,314 |
Deed and Sales History
| 1 | 04/27/2017 | PRD | Personal Representatives Deed | BRUNSON, JASON H | BRUNSON, JULIE D | | | $0.00 | 29150 | 4421879 |
| 2 | 07/10/2013 | WD | Warranty Deed | VAN CAMP, JAMES W | BRUNSON, JASON H | | | $219,000.00 | 12000 | 4344028 |
| 3 | 10/08/2008 | QCD | Quit Claim Deed | VAN, CAMP, L | VAN CAMP, JAMES W | | | $0.00 | 90042 | 4242395 |
| 4 | 01/01/1992 | QCD | Quit Claim Deed | VAN, CAMP, L | VAN, CAMP, L | | | $0.00 | 20447 | 92002044 |
| 5 | 05/01/1983 | WD | Warranty Deed | FREDLUND, KENNETH | VAN, CAMP, L | | | $36,000.00 | 31460 | 410333 |
| 6 | 01/01/1900 | OTHER | Other - Misc. Documents | Unknown | FREDLUND, KENNETH | | | $0.00 | 0 | 0 |
Payout Agreement
| No payout information available.. |