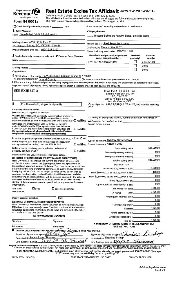
Property
Account |
| Property ID: | 285863 | Abbreviated Legal Description: | JACOBS PK LOT 33 & 34 BLK A LOT 33 BLK A DRAINFIELD FOR LOT 32 BLK A |
| Geographic ID: | S7245-00-0A033-0 | Agent Code: | |
| Type: | Real | | |
| Tax Area: | 580 - APPRAISER-Stan/Cam Schl Dist, Special Dist, improved & less than 1 acre | Land Use Code | 11 |
| Open Space: | N | DFL | N |
| Historic Property: | N | Remodel Property: | N |
| Multi-Family Redevelopment: | N | | |
| Township: | | Section: | |
| Range: | |
Location |
| Address: | 1438 OCEAN DR CAMANO ISLAND, WA 98282 | Mapsco: | |
| Neighborhood: | Cycle 5 | Map ID: | 981 |
| Neighborhood CD: | 5 |
Owner |
| Name: | INVESTMENTS III, BERG FAMILY | Owner ID: | 65050 |
| Mailing Address: | MARGARET B BERG 1601 EAST CALHOUN ST SEATTLE, WA 98112 | % Ownership: | 100.0000000000% |
| | | Exemptions: | |
Taxes and Assessment Details
Values
| (+) Improvement Homesite Value: | + | $0 | |
| (+) Improvement Non-Homesite Value: | + | $326,268 | |
| (+) Land Homesite Value: | + | $0 | |
| (+) Land Non-Homesite Value: | + | $700,000 | |
| (+) Curr Use (HS): | + | $0 | $0 |
| (+) Curr Use (NHS): | + | $0 | $0 |
| | | -------------------------- | |
| (=) Market Value: | = | $1,026,268 | |
| (–) Productivity Loss: | – | $0 | |
| | | -------------------------- | |
| (=) Subtotal: | = | $1,026,268 | |
| (+) Senior Appraised Value: | + | $0 | |
| (+) Non-Senior Appraised Value: | + | $1,026,268 | |
| | | -------------------------- | |
| (=) Total Appraised Value: | = | $1,026,268 | |
| (–) Senior Exemption Loss: | – | $0 | |
| (–) Exemption Loss: | – | $0 | |
| | | -------------------------- | |
| (=) Taxable Value: | = | $1,026,268 | |
Taxing Jurisdiction
| Owner: | INVESTMENTS III, BERG FAMILY | | |
| % Ownership: | 100.0000000000% | | |
| Total Value: | $1,026,268 | | |
| Tax Area: | 580 - APPRAISER-Stan/Cam Schl Dist, Special Dist, improved & less than 1 acre |
| CF | Conservation Futures | 0.0316035091 | $1,026,268 | $1,026,268 | $32.43 | | |
| EMS1 | Fire & Rescue Dist #1 Camano GEN (EMS) | 0.3677864386 | $1,026,268 | $1,026,268 | $377.45 | | |
| FIRE1 | Fire & Rescue Dist #1 Camano GEN | 1.2502910536 | $1,026,268 | $1,026,268 | $1,283.13 | | |
| FIRE1BOND | Fire & Rescue Dist #1 Camano BOND | 0.1570001679 | $1,026,268 | $1,026,268 | $161.12 | | |
| CE | County Current Expense | 0.3708482477 | $1,026,268 | $1,026,268 | $380.59 | | |
| CR | County Roads | 0.4584763726 | $1,026,268 | $1,026,268 | $470.52 | | |
| LCIB | Library Sno-Isle BOND (Camano Island) | 0.0396325772 | $1,026,268 | $1,026,268 | $40.67 | | |
| LIB | Library Sno-Isle GEN | 0.3153421757 | $1,026,268 | $1,026,268 | $323.63 | | |
| SCH205_401 | School 205-401 Enrichment | 1.2698420524 | $1,026,268 | $1,026,268 | $1,303.20 | | |
| SCH205BOND | School 205-401 BOND | 0.9396497583 | $1,026,268 | $1,026,268 | $964.33 | | |
| ST | State School | 1.3035497053 | $1,026,268 | $1,026,268 | $1,337.79 | | |
| ST2 | State School Part 2 | 0.8169543533 | $1,026,268 | $1,026,268 | $838.41 | | |
| | Total Tax Rate: | 7.3209764117 | | | | | |
| | | | | Taxes w/Current Exemptions: | $7,513.27 | | |
| | | | | Taxes w/o Exemptions: | $7,513.27 | | |
Improvement / Building
| Improvement #1: | RESIDENTIAL | State Code: | Y | 1192.0 sqft | Value: | $326,268 |
| Bathrooms: | 2 | Bedrooms: | 2 | | Ceiling: | DRYWALL PAINTED | Cooling: | HEAT PUMP/CONV/V | | Exterior Wall/Cover: | WOOD SIDING | Floor Covering: | HARDWOOD 100% | | Floor Structure: | WOOD W/SUBFLOOR | Foundation: | CONCRETE | | Interior Finish: | DRYWALL PAINT | Plumbing Fixture Cnt: | 9 | | Roof Slope: | 5" IN 12" | Roof Structure/Cover: | CJ ALUMINIUM HEAVY |
|
| | Type | Description | Class CD | Sub Class CD | Year Built | Area |
| | BAS | BASE/MAIN FLOOR | 4 | 0 | 1937 | 1192.0 |
| | OWP | OPEN WOOD PORCH W/STEPS | 4 | 0 | 1937 | 70.0 |
| | OWP | OPEN WOOD PORCH W/STEPS | 4 | 0 | 1937 | 438.0 |
| | DGR | DETACHED GARAGE | 4 | 0 | 1937 | 289.0 |
Sketch
Property Image
Land
| 1 | LB | LOW BANK | 0.0287 | 1250.00 | 25.00 | 0.00 | 1.00 | $600,000 | $0 |
| 2 | LB | LOW BANK | 0.0287 | 1250.00 | 25.00 | 0.00 | 1.00 | $100,000 | $0 |
Roll Value History
| 2026 | N/A | N/A | N/A | N/A | N/A |
| 2025 | $326,268 | $700,000 | $0 | $1,026,268 | $1,026,268 |
| 2024 | $330,187 | $700,000 | $0 | $1,030,187 | $1,030,187 |
| 2023 | $334,107 | $700,000 | $0 | $1,034,107 | $1,034,107 |
| 2022 | $306,080 | $700,000 | $0 | $1,006,080 | $1,006,080 |
| 2021 | $269,248 | $575,000 | $0 | $844,248 | $844,248 |
| 2020 | $261,833 | $575,000 | $0 | $836,833 | $836,833 |
| 2019 | $188,040 | $500,000 | $0 | $688,040 | $688,040 |
| 2018 | $93,725 | $500,000 | $0 | $593,725 | $593,725 |
| 2017 | $88,510 | $350,000 | $0 | $438,510 | $438,510 |
| 2016 | $89,830 | $350,000 | $0 | $439,830 | $439,830 |
| 2015 | $69,715 | $450,000 | $0 | $519,715 | $519,715 |
| 2014 | $70,766 | $450,000 | $0 | $520,766 | $520,766 |
| 2013 | $71,819 | $439,929 | $0 | $511,748 | $511,748 |
| 2012 | $72,870 | $439,929 | $0 | $512,799 | $512,799 |
| 2011 | $73,922 | $463,083 | $0 | $537,005 | $537,005 |
| 2010 | $88,660 | $463,083 | $0 | $551,743 | $551,743 |
| 2009 | $83,854 | $540,740 | $0 | $624,594 | $624,594 |
| 2008 | $85,143 | $540,740 | $0 | $625,883 | $625,883 |
| 2007 | $86,436 | $576,069 | $0 | $662,505 | $662,505 |
Deed and Sales History
| 1 | 09/09/2002 | QCD | Quit Claim Deed | BERG, MARGARET | INVESTMENTS III, BERG FAMILY | | | $0.00 | 23740 | 4031716 |
| 2 | 11/01/1983 | EZ | Easement | BERG, MARGARET | BERG, MARGARET | | | $0.00 | 60310 | 410425 |
| 3 | 02/01/1969 | CD | DNU - Correction Deed | Unknown | BERG, MARGARET | | | $0.00 | 34085 | 0 |
Payout Agreement
| No payout information available.. |